Property
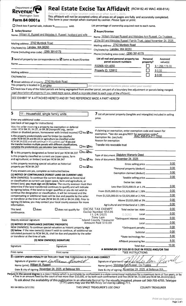
Account |
| Property ID: | 125812 | Abbreviated Legal Description: | 54 - BG N88*W938.86' FR PT S1*E810.59' FR E/4 CR SEC 6 N88*W240' S3*E945.03' S41* E178.85' TP ON ML TO CTR LONE LK TP S1*E964.08' FR TPB N1*W964.08' TPB TGW EZ |
| Geographic ID: | R32906-101-4550 | Agent Code: | |
| Type: | Real | | |
| Tax Area: | 712 - APPRAISER-S Whid Schl Dist, outside Langley, improved, greater than 1 acre | Land Use Code | 11 |
| Open Space: | N | DFL | N |
| Historic Property: | N | Remodel Property: | N |
| Multi-Family Redevelopment: | N | | |
| Township: | 29 | Section: | 06 |
| Range: | R3 |
Location |
| Address: | 2742 MURDOCK RD LANGLEY, WA 98260 | Mapsco: | |
| Neighborhood: | Cycle 4 | Map ID: | 738 |
| Neighborhood CD: | 4 |
Owner |
| Name: | RUSSELL, WILLIAM M | Owner ID: | 92524 |
| Mailing Address: | PO BOX 1094 LANGLEY, WA 98260-1094 | % Ownership: | 100.0000000000% |
| | | Exemptions: | |
Taxes and Assessment Details
Values
| (+) Improvement Homesite Value: | + | $0 | |
| (+) Improvement Non-Homesite Value: | + | $836,585 | |
| (+) Land Homesite Value: | + | $0 | |
| (+) Land Non-Homesite Value: | + | $470,000 | |
| (+) Curr Use (HS): | + | $0 | $0 |
| (+) Curr Use (NHS): | + | $0 | $0 |
| | | -------------------------- | |
| (=) Market Value: | = | $1,306,585 | |
| (–) Productivity Loss: | – | $0 | |
| | | -------------------------- | |
| (=) Subtotal: | = | $1,306,585 | |
| (+) Senior Appraised Value: | + | $0 | |
| (+) Non-Senior Appraised Value: | + | $1,306,585 | |
| | | -------------------------- | |
| (=) Total Appraised Value: | = | $1,306,585 | |
| (–) Senior Exemption Loss: | – | $0 | |
| (–) Exemption Loss: | – | $0 | |
| | | -------------------------- | |
| (=) Taxable Value: | = | $1,306,585 | |
Taxing Jurisdiction
| Owner: | RUSSELL, WILLIAM M | | |
| % Ownership: | 100.0000000000% | | |
| Total Value: | $1,306,585 | | |
| Tax Area: | 712 - APPRAISER-S Whid Schl Dist, outside Langley, improved, greater than 1 acre |
| CF | Conservation Futures | 0.0313996660 | $1,306,585 | $1,306,585 | $41.03 | | |
| FIRE3 | Fire & Rescue Dist #3 S Whidbey GEN | 1.2130821753 | $1,306,585 | $1,306,585 | $1,584.99 | | |
| HOBOND | Hospital BOND | 0.1893405597 | $1,306,585 | $1,306,585 | $247.39 | | |
| HOGEN | Hospital GEN | 0.3848777722 | $1,306,585 | $1,306,585 | $502.88 | | |
| CE | County Current Expense | 0.3674210519 | $1,306,585 | $1,306,585 | $480.07 | | |
| CR | County Roads | 0.4614296361 | $1,306,585 | $1,306,585 | $602.90 | | |
| ISLANDEMS | Hospital GEN (EMS) | 0.4952018576 | $1,306,585 | $1,306,585 | $647.02 | | |
| LIB | Library Sno-Isle GEN | 0.3039084203 | $1,306,585 | $1,306,585 | $397.08 | | |
| PORTWHID | Port of S Whidbey GEN | 0.1086004714 | $1,306,585 | $1,306,585 | $141.90 | | |
| SCH206BOND | School 206 BOND | 0.5960237832 | $1,306,585 | $1,306,585 | $778.76 | | |
| SCH206CAP | School 206 CP | 0.3066144020 | $1,306,585 | $1,306,585 | $400.62 | | |
| SCH206MO | School 206 Enrichment | 0.4808755445 | $1,306,585 | $1,306,585 | $628.30 | | |
| ST | State School | 1.4761226122 | $1,306,585 | $1,306,585 | $1,928.68 | | |
| ST2 | State School Part 2 | 0.7953803475 | $1,306,585 | $1,306,585 | $1,039.23 | | |
| SWHIDPRBD | P & R S Whidbey BOND | 0.0144185398 | $1,306,585 | $1,306,585 | $18.84 | | |
| SWHIDPRBD3 | P & R S Whidbey BOND3 | 0.1483535547 | $1,306,585 | $1,306,585 | $193.84 | | |
| SWHIDPRMT | P & R S Whidbey GEN | 0.4600000000 | $1,306,585 | $1,306,585 | $601.03 | | |
| | Total Tax Rate: | 7.8330503944 | | | | | |
| | | | | Taxes w/Current Exemptions: | $10,234.56 | | |
| | | | | Taxes w/o Exemptions: | $10,234.56 | | |
Improvement / Building
| Improvement #1: | RESIDENTIAL | State Code: | Y | 3336.0 sqft | Value: | $836,585 |
| Bathrooms: | 3.25 | Bedrooms: | 4 | | Ceiling: | DRYWALL PAINTED | Exterior Wall/Cover: | SHINGLE | | Floor Covering: | HARDWOOD 100% | Floor Structure: | WOOD W/SUBFLOOR | | Foundation: | CONCRETE | Heating: | FHA GAS | | Interior Finish: | DRYWALL PAINT | Plumbing Fixture Cnt: | 14 | | Roof Slope: | 8" IN 12" | Roof Structure/Cover: | CJ ALUMINIUM HEAVY |
|
| | Type | Description | Class CD | Sub Class CD | Year Built | Area |
| | BAS | BASE/MAIN FLOOR | 5 | 0 | 2002 | 2080.0 |
| | ATF | ATTIC FINISHED | 5 | 0 | 2002 | 360.0 |
| | ATF | ATTIC FINISHED | 5 | 0 | 2002 | 442.0 |
| | OP2 | OPEN PORCH W/STEPS | 5 | 0 | 2002 | 1550.0 |
| | OP4 | OPEN PORCH W/CEILING-ROOF | 5 | 0 | 2002 | 80.0 |
| | BGR | BASEMENT GARAGE | 5 | 0 | 2002 | 576.0 |
| | BIG | BUILT IN GARAGE | 5 | 0 | 2002 | 624.0 |
| | UPS | UPPER STORY | 5 | 0 | 2002 | 1256.0 |
Sketch
Property Image
Land
| 1 | 32 | AC (03.01-09.99) | 0.0000 | 0.00 | 140.00 | 0.00 | 1.00 | $470,000 | $0 |
Roll Value History
| 2026 | N/A | N/A | N/A | N/A | N/A |
| 2025 | $836,585 | $470,000 | $0 | $1,306,585 | $1,306,585 |
| 2024 | $846,175 | $450,000 | $0 | $1,296,175 | $1,296,175 |
| 2023 | $855,762 | $420,000 | $0 | $1,275,762 | $1,275,762 |
| 2022 | $781,394 | $400,000 | $0 | $1,181,394 | $1,181,394 |
| 2021 | $685,535 | $400,000 | $0 | $1,085,535 | $1,085,535 |
| 2020 | $615,039 | $400,000 | $0 | $1,015,039 | $1,015,039 |
| 2019 | $528,781 | $450,000 | $0 | $978,781 | $978,781 |
| 2018 | $530,333 | $450,000 | $0 | $980,333 | $980,333 |
| 2017 | $530,540 | $450,000 | $0 | $980,540 | $980,540 |
| 2016 | $536,707 | $350,000 | $0 | $886,707 | $886,707 |
| 2015 | $542,877 | $350,000 | $0 | $892,877 | $892,877 |
| 2014 | $525,314 | $350,000 | $0 | $875,314 | $875,314 |
| 2013 | $531,353 | $327,391 | $0 | $858,744 | $858,744 |
| 2012 | $537,392 | $327,391 | $0 | $864,783 | $864,783 |
| 2011 | $543,429 | $327,391 | $0 | $870,820 | $870,820 |
| 2010 | $552,509 | $327,391 | $0 | $879,900 | $879,900 |
| 2009 | $569,860 | $380,688 | $0 | $950,548 | $950,548 |
| 2008 | $680,271 | $305,629 | $0 | $985,900 | $985,900 |
| 2007 | $698,355 | $359,758 | $0 | $1,058,113 | $1,058,113 |
Deed and Sales History
| 1 | 11/24/2025 | WD | Warranty Deed | RUSSELL, WILLIAM M | BILL AND MELODEE RUSSELL FAMILY TRUST | | | $0.00 | 65536 | 4593813 |
| 2 | 11/13/2000 | WD | Warranty Deed | SPRINGER, GEORGE L | RUSSELL, WILLIAM M | | | $160,000.00 | 4529 | 20020886 |
| 3 | 12/01/1977 | OTHER | Other - Misc. Documents | Unknown | SPRINGER, GEORGE L | | | $45,000.00 | 80032 | 3253200 |
Payout Agreement
| No payout information available.. |