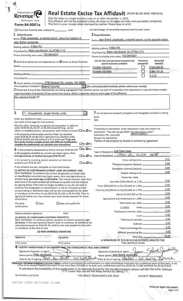
Property
Account |
| Property ID: | 125821 | Abbreviated Legal Description: | 50 - BG S1*E810.59' FR E/4 CR SEC 6 N88*W175' S4*W334 .21' S6*W512.08' N77*W45.97 S13*W43.66' S23*E102.44' S6*W143.40' TP 20' SLY OF ML TO CTR LONE LK TP S1*E 799.63' FR TPB N1*W799.63' TPB TGW EZ EX PT LY NLY OF EXIST FENCE LN 6/79 CC#9516 |
| Geographic ID: | R32906-102-5450 | Agent Code: | |
| Type: | Real | | |
| Tax Area: | 712 - APPRAISER-S Whid Schl Dist, outside Langley, improved, greater than 1 acre | Land Use Code | 11 |
| Open Space: | N | DFL | N |
| Historic Property: | N | Remodel Property: | N |
| Multi-Family Redevelopment: | N | | |
| Township: | 29 | Section: | 06 |
| Range: | R3 |
Location |
| Address: | 2798 MURDOCK RD LANGLEY, WA 98260 | Mapsco: | |
| Neighborhood: | Cycle 4 | Map ID: | 738 |
| Neighborhood CD: | 4 |
Owner |
| Name: | JACOBOWITZ, JEAN SCHICK | Owner ID: | 316400 |
| Mailing Address: | 4 MARC ROAD WEST LONG BRANCH, NJ 07764-1113 | % Ownership: | 100.0000000000% |
| | | Exemptions: | |
Taxes and Assessment Details
Values
| (+) Improvement Homesite Value: | + | $0 | |
| (+) Improvement Non-Homesite Value: | + | $507,748 | |
| (+) Land Homesite Value: | + | $0 | |
| (+) Land Non-Homesite Value: | + | $470,000 | |
| (+) Curr Use (HS): | + | $0 | $0 |
| (+) Curr Use (NHS): | + | $0 | $0 |
| | | -------------------------- | |
| (=) Market Value: | = | $977,748 | |
| (–) Productivity Loss: | – | $0 | |
| | | -------------------------- | |
| (=) Subtotal: | = | $977,748 | |
| (+) Senior Appraised Value: | + | $0 | |
| (+) Non-Senior Appraised Value: | + | $977,748 | |
| | | -------------------------- | |
| (=) Total Appraised Value: | = | $977,748 | |
| (–) Senior Exemption Loss: | – | $0 | |
| (–) Exemption Loss: | – | $0 | |
| | | -------------------------- | |
| (=) Taxable Value: | = | $977,748 | |
Taxing Jurisdiction
| Owner: | JACOBOWITZ, JEAN SCHICK | | |
| % Ownership: | 100.0000000000% | | |
| Total Value: | $977,748 | | |
| Tax Area: | 712 - APPRAISER-S Whid Schl Dist, outside Langley, improved, greater than 1 acre |
| CF | Conservation Futures | 0.0313996660 | $977,748 | $977,748 | $30.70 | | |
| FIRE3 | Fire & Rescue Dist #3 S Whidbey GEN | 1.2130821753 | $977,748 | $977,748 | $1,186.09 | | |
| HOBOND | Hospital BOND | 0.1893405597 | $977,748 | $977,748 | $185.13 | | |
| HOGEN | Hospital GEN | 0.3848777722 | $977,748 | $977,748 | $376.31 | | |
| CE | County Current Expense | 0.3674210519 | $977,748 | $977,748 | $359.25 | | |
| CR | County Roads | 0.4614296361 | $977,748 | $977,748 | $451.16 | | |
| ISLANDEMS | Hospital GEN (EMS) | 0.4952018576 | $977,748 | $977,748 | $484.18 | | |
| LIB | Library Sno-Isle GEN | 0.3039084203 | $977,748 | $977,748 | $297.15 | | |
| PORTWHID | Port of S Whidbey GEN | 0.1086004714 | $977,748 | $977,748 | $106.18 | | |
| SCH206BOND | School 206 BOND | 0.5960237832 | $977,748 | $977,748 | $582.76 | | |
| SCH206CAP | School 206 CP | 0.3066144020 | $977,748 | $977,748 | $299.79 | | |
| SCH206MO | School 206 Enrichment | 0.4808755445 | $977,748 | $977,748 | $470.18 | | |
| ST | State School | 1.4761226122 | $977,748 | $977,748 | $1,443.28 | | |
| ST2 | State School Part 2 | 0.7953803475 | $977,748 | $977,748 | $777.68 | | |
| SWHIDPRBD | P & R S Whidbey BOND | 0.0144185398 | $977,748 | $977,748 | $14.10 | | |
| SWHIDPRBD3 | P & R S Whidbey BOND3 | 0.1483535547 | $977,748 | $977,748 | $145.05 | | |
| SWHIDPRMT | P & R S Whidbey GEN | 0.4600000000 | $977,748 | $977,748 | $449.76 | | |
| | Total Tax Rate: | 7.8330503944 | | | | | |
| | | | | Taxes w/Current Exemptions: | $7,658.75 | | |
| | | | | Taxes w/o Exemptions: | $7,658.75 | | |
Improvement / Building
| Improvement #1: | RESIDENTIAL | State Code: | Y | 2471.6 sqft | Value: | $507,748 |
| Bathrooms: | 2 | Bedrooms: | 3 | | Ceiling: | DRYWALL PAINTED | Cooling: | HEAT PUMP/CONV/V | | Exterior Wall/Cover: | SHINGLE | Floor Covering: | HARDWOOD/CARP 60-40 | | Floor Structure: | WOOD W/SUBFLOOR | Foundation: | CONCRETE | | Interior Finish: | DRYWALL PAINT | Plumbing Fixture Cnt: | 10 | | Roof Slope: | 12" IN 12" | Roof Structure/Cover: | CJ ALUMINIUM HEAVY |
|
| | Type | Description | Class CD | Sub Class CD | Year Built | Area |
| | BAS | BASE/MAIN FLOOR | 4 | 0 | 1902 | 1559.6 |
| | OCP | OPEN CARPORT | 4 | 0 | 1902 | 130.0 |
| | UTY | STORAGE/UTILITY | 4 | 0 | 1902 | 208.0 |
| | OWP | OPEN WOOD PORCH W/STEPS | 4 | 0 | 1902 | 866.9 |
| | OWP | OPEN WOOD PORCH W/STEPS | 4 | 0 | 1902 | 33.0 |
| | OWC | OPEN WOOD PORCH W/STEPS/ROOF/C | 4 | 0 | 1902 | 70.0 |
| | UPH | HALF STORY | 4 | 0 | 1902 | 912.0 |
| | oCB2 | CABIN FIN | 4 | 0 | 1902 | 220.0 |
| | oCB1 | CABIN UNFI | 4 | 0 | 1902 | 120.0 |
| | OWP | OPEN WOOD PORCH W/STEPS | 4 | 0 | 1902 | 112.0 |
| | OWP | OPEN WOOD PORCH W/STEPS | 4 | 0 | 1902 | 60.0 |
| | OWP | OPEN WOOD PORCH W/STEPS | 4 | 0 | 1902 | 40.0 |
| | DGR | DETACHED GARAGE | 4 | 0 | 1902 | 480.0 |
Sketch
Property Image
Land
| 1 | 32 | AC (03.01-09.99) | 0.0000 | 0.00 | 159.00 | 0.00 | 1.00 | $470,000 | $0 |
Roll Value History
| 2026 | N/A | N/A | N/A | N/A | N/A |
| 2025 | $507,748 | $470,000 | $0 | $977,748 | $977,748 |
| 2024 | $514,191 | $450,000 | $0 | $964,191 | $964,191 |
| 2023 | $514,818 | $420,000 | $0 | $934,818 | $934,818 |
| 2022 | $472,883 | $400,000 | $0 | $872,883 | $872,883 |
| 2021 | $417,526 | $400,000 | $0 | $817,526 | $817,526 |
| 2020 | $388,901 | $400,000 | $0 | $788,901 | $788,901 |
| 2019 | $296,208 | $450,000 | $0 | $746,208 | $746,208 |
| 2018 | $297,113 | $450,000 | $0 | $747,113 | $747,113 |
| 2017 | $281,217 | $450,000 | $0 | $731,217 | $731,217 |
| 2016 | $284,786 | $350,000 | $0 | $634,786 | $634,786 |
| 2015 | $288,353 | $350,000 | $0 | $638,353 | $638,353 |
| 2014 | $273,711 | $350,000 | $0 | $623,711 | $623,711 |
| 2013 | $277,171 | $367,598 | $0 | $644,769 | $644,769 |
| 2012 | $280,629 | $367,598 | $0 | $648,227 | $648,227 |
| 2011 | $284,089 | $367,598 | $0 | $651,687 | $651,687 |
| 2010 | $297,751 | $367,598 | $0 | $665,349 | $665,349 |
| 2009 | $310,348 | $422,527 | $0 | $732,875 | $732,875 |
| 2008 | $283,349 | $422,527 | $0 | $705,876 | $705,876 |
| 2007 | $287,246 | $482,695 | $0 | $769,941 | $769,941 |
Deed and Sales History
| 1 | 01/16/2025 | QCD | Quit Claim Deed | JACOBOWITZ, PHILIP | JACOBOWITZ, JEAN SCHICK | | | $0.00 | 63396 | 4585479 |
| 2 | 07/05/2001 | QCD | Quit Claim Deed | SCHICK, JEAN A | JACOBOWITZ, PHILIP | | | $0.00 | 12510 | 20036460 |
| 3 | 07/01/1996 | OTHER | Other - Misc. Documents | DRAKE, JEAN A | SCHICK, JEAN A | | | $0.00 | 67071 | 0 |
| 4 | 07/01/1992 | DECREE | Divorce Decree/Legal Separation | DRAKE, RICHARD | DRAKE, JEAN A | | | $0.00 | 22965 | 92014468 |
| 5 | 05/01/1986 | WD | Warranty Deed | CABOT, ROBERT M | DRAKE, RICHARD | | | $240,000.00 | 61106 | 86005210 |
| 6 | 10/01/1984 | WD | Warranty Deed | CABOT, ROBERT M | CABOT, ROBERT M | | | $243,750.00 | 43011 | 84004444 |
| 7 | 10/01/1984 | QCD | Quit Claim Deed | ARNDT, ROBERT J | CABOT, ROBERT M | | | $0.00 | 43145 | 84004966 |
| 8 | 10/01/1978 | OTHER | Other - Misc. Documents | Unknown | ARNDT, ROBERT J | | | $165,000.00 | 85456 | 342613 |
Payout Agreement
| No payout information available.. |