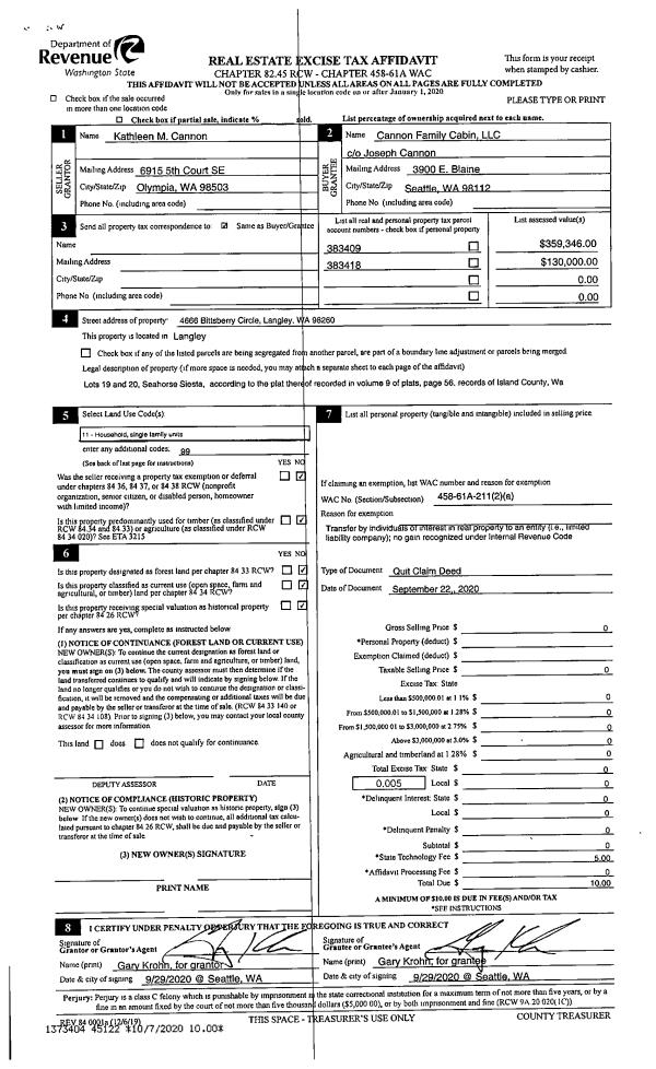
Property
Account |
| Property ID: | 126358 | Abbreviated Legal Description: | 43 - IN NE SE: BG SW CR NE SE N12' TPB N557' NE ALG SLN GABELEIN TR 429' N TP 641'S OF NLN NE SE E231' S617' W660' TPB EX RD EX W280' (AC ADJ PER SURVEY V5 SUR P181) |
| Geographic ID: | R32907-167-5200 | Agent Code: | |
| Type: | Real | | |
| Tax Area: | 712 - APPRAISER-S Whid Schl Dist, outside Langley, improved, greater than 1 acre | Land Use Code | 11 |
| Open Space: | N | DFL | N |
| Historic Property: | N | Remodel Property: | N |
| Multi-Family Redevelopment: | N | | |
| Township: | 29 | Section: | 07 |
| Range: | R3 |
Location |
| Address: | 2739 XANADU LN LANGLEY, WA 98260 | Mapsco: | |
| Neighborhood: | Cycle 4 | Map ID: | 743 |
| Neighborhood CD: | 4 |
Owner |
| Name: | XANABEE PROPERTIES LLC | Owner ID: | 300158 |
| Mailing Address: | 2708 XANADU LN LANGLEY, WA 98260 | % Ownership: | 100.0000000000% |
| | | Exemptions: | |
Taxes and Assessment Details
Values
| (+) Improvement Homesite Value: | + | $0 | |
| (+) Improvement Non-Homesite Value: | + | $87,294 | |
| (+) Land Homesite Value: | + | $0 | |
| (+) Land Non-Homesite Value: | + | $380,000 | |
| (+) Curr Use (HS): | + | $0 | $0 |
| (+) Curr Use (NHS): | + | $0 | $0 |
| | | -------------------------- | |
| (=) Market Value: | = | $467,294 | |
| (–) Productivity Loss: | – | $0 | |
| | | -------------------------- | |
| (=) Subtotal: | = | $467,294 | |
| (+) Senior Appraised Value: | + | $0 | |
| (+) Non-Senior Appraised Value: | + | $467,294 | |
| | | -------------------------- | |
| (=) Total Appraised Value: | = | $467,294 | |
| (–) Senior Exemption Loss: | – | $0 | |
| (–) Exemption Loss: | – | $0 | |
| | | -------------------------- | |
| (=) Taxable Value: | = | $467,294 | |
Taxing Jurisdiction
| Owner: | XANABEE PROPERTIES LLC | | |
| % Ownership: | 100.0000000000% | | |
| Total Value: | $467,294 | | |
| Tax Area: | 712 - APPRAISER-S Whid Schl Dist, outside Langley, improved, greater than 1 acre |
| CF | Conservation Futures | 0.0313996660 | $467,294 | $467,294 | $14.67 | | |
| FIRE3 | Fire & Rescue Dist #3 S Whidbey GEN | 1.2130821753 | $467,294 | $467,294 | $566.87 | | |
| HOBOND | Hospital BOND | 0.1893405597 | $467,294 | $467,294 | $88.48 | | |
| HOGEN | Hospital GEN | 0.3848777722 | $467,294 | $467,294 | $179.85 | | |
| CE | County Current Expense | 0.3674210519 | $467,294 | $467,294 | $171.69 | | |
| CR | County Roads | 0.4614296361 | $467,294 | $467,294 | $215.62 | | |
| ISLANDEMS | Hospital GEN (EMS) | 0.4952018576 | $467,294 | $467,294 | $231.40 | | |
| LIB | Library Sno-Isle GEN | 0.3039084203 | $467,294 | $467,294 | $142.01 | | |
| PORTWHID | Port of S Whidbey GEN | 0.1086004714 | $467,294 | $467,294 | $50.75 | | |
| SCH206BOND | School 206 BOND | 0.5960237832 | $467,294 | $467,294 | $278.52 | | |
| SCH206CAP | School 206 CP | 0.3066144020 | $467,294 | $467,294 | $143.28 | | |
| SCH206MO | School 206 Enrichment | 0.4808755445 | $467,294 | $467,294 | $224.71 | | |
| ST | State School | 1.4761226122 | $467,294 | $467,294 | $689.78 | | |
| ST2 | State School Part 2 | 0.7953803475 | $467,294 | $467,294 | $371.68 | | |
| SWHIDPRBD | P & R S Whidbey BOND | 0.0144185398 | $467,294 | $467,294 | $6.74 | | |
| SWHIDPRBD3 | P & R S Whidbey BOND3 | 0.1483535547 | $467,294 | $467,294 | $69.32 | | |
| SWHIDPRMT | P & R S Whidbey GEN | 0.4600000000 | $467,294 | $467,294 | $214.96 | | |
| | Total Tax Rate: | 7.8330503944 | | | | | |
| | | | | Taxes w/Current Exemptions: | $3,660.33 | | |
| | | | | Taxes w/o Exemptions: | $3,660.33 | | |
Improvement / Building
| Improvement #1: | MANUFACTURED HOME | State Code: | Y | 1512.0 sqft | Value: | $87,294 |
| Bathrooms: | 0 | Bedrooms: | 0 | | Ceiling: | PLASTER PAINTED | Cooling: | EVAP NO DUCT | | Exterior Wall/Cover: | VINYL | Floor Covering: | CARPET 100% | | Floor Structure: | SLAB ON GRADE | Foundation: | SLAB | | Heating: | FHA ELECTRIC | Interior Finish: | PLASTER | | Plumbing Fixture Cnt: | 1 | Roof Slope: | FLAT | | Roof Structure/Cover: | CJ ALUMINIUM HEAVY |   |   |
|
| | Type | Description | Class CD | Sub Class CD | Year Built | Area |
| | BAS | BASE/MAIN FLOOR | 2 | 0 | 1984 | 1512.0 |
| | OWP | OPEN WOOD PORCH W/STEPS | 2 | 0 | 1984 | 480.0 |
| | ENP | ENCLOSED PORCH | 2 | 0 | 1984 | 32.0 |
| | UTY | STORAGE/UTILITY | 2 | 0 | 1984 | 192.0 |
Sketch
Property Image
Land
| 1 | 32 | AC (03.01-09.99) | 5.6900 | 0.00 | 0.00 | 0.00 | 1.00 | $380,000 | $0 |
Roll Value History
| 2026 | N/A | N/A | N/A | N/A | N/A |
| 2025 | $87,294 | $380,000 | $0 | $467,294 | $467,294 |
| 2024 | $89,940 | $350,000 | $0 | $439,940 | $439,940 |
| 2023 | $80,503 | $330,000 | $0 | $410,503 | $410,503 |
| 2022 | $74,977 | $290,000 | $0 | $364,977 | $364,977 |
| 2021 | $66,108 | $230,000 | $0 | $296,108 | $296,108 |
| 2020 | $52,751 | $190,000 | $0 | $242,751 | $242,751 |
| 2019 | $42,934 | $250,000 | $0 | $292,934 | $292,934 |
| 2018 | $44,319 | $210,000 | $0 | $254,319 | $254,319 |
| 2017 | $45,703 | $190,000 | $0 | $235,703 | $235,703 |
| 2016 | $47,088 | $135,000 | $0 | $182,088 | $182,088 |
| 2015 | $48,472 | $135,000 | $0 | $183,472 | $183,472 |
| 2014 | $46,196 | $142,250 | $0 | $188,446 | $188,446 |
| 2013 | $47,480 | $153,630 | $0 | $201,110 | $201,110 |
| 2012 | $48,763 | $193,460 | $0 | $242,223 | $242,223 |
| 2011 | $50,046 | $193,460 | $0 | $243,506 | $243,506 |
| 2010 | $47,198 | $193,460 | $0 | $240,658 | $240,658 |
| 2009 | $49,807 | $250,360 | $0 | $300,167 | $300,167 |
| 2008 | $43,349 | $245,647 | $0 | $288,996 | $288,996 |
| 2007 | $51,631 | $219,065 | $0 | $270,696 | $270,696 |
Deed and Sales History
| 1 | 07/07/2021 | WD | Warranty Deed | KRAMER, KARYLE C | XANABEE PROPERTIES LLC | | | $300,000.00 | 49100 | 4524044 |
| 2 | 11/05/2019 | QCD | Quit Claim Deed | BUCK, NATHAN A | KRAMER, KARYLE C | | | $0.00 | 41037 | 4475184 |
| 3 | 06/01/1997 | WD | Warranty Deed | COCHRAN, EUGENE L | BUCK, NATHAN A | | | $56,200.00 | 71906 | 97008738 |
| 4 | 03/01/1997 | QCD | Quit Claim Deed | COCHRAN, EUGENE L | COCHRAN, EUGENE L | | | $0.00 | 70809 | 97003655 |
| 5 | 10/01/1976 | TRUSTEED | Trustee's Deed | DAVIS, LLOYD V | COCHRAN, EUGENE L | | | $7,800.00 | 63526 | 0 |
| 6 | 01/01/1900 | OTHER | Other - Misc. Documents | Unknown | DAVIS, LLOYD V | | | $0.00 | 0 | 0 |
Payout Agreement
| No payout information available.. |