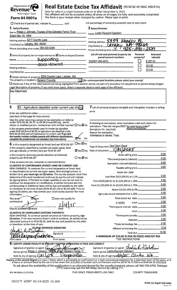
Property
Account |
| Property ID: | 126401 | Abbreviated Legal Description: | 37 - IN NE SE: BG 576.5'S OF NWCR NE SE E429' S114.5' SWLY ALG FENCE TP 124.5'S OF TPB N124.5' TPB 88/513 |
| Geographic ID: | R32907-200-4970 | Agent Code: | |
| Type: | Real | | |
| Tax Area: | 719 - APPRAISER-S Whid Schl Dist, outside Langley, vacant & 50 acres or less | Land Use Code | 83 |
| Open Space: | Y | DFL | N |
| Historic Property: | N | Remodel Property: | N |
| Multi-Family Redevelopment: | N | | |
| Township: | 29 | Section: | 07 |
| Range: | R3 |
Location |
| Address: | | Mapsco: | |
| Neighborhood: | Cycle 4 | Map ID: | 743 |
| Neighborhood CD: | 4 |
Owner |
| Name: | GABELEIN, LESLIE RAYNARD | Owner ID: | 315487 |
| Mailing Address: | 5359 WOODSY PL LANGLEY, WA 98260 | % Ownership: | 100.0000000000% |
| | | Exemptions: | |
Taxes and Assessment Details
Values
| (+) Improvement Homesite Value: | + | N/A | |
| (+) Improvement Non-Homesite Value: | + | N/A | |
| (+) Land Homesite Value: | + | N/A | |
| (+) Land Non-Homesite Value: | + | N/A | Ag / Timber Use Value |
| (+) Curr Use (HS): | + | N/A | N/A |
| (+) Curr Use (NHS): | + | N/A | N/A |
| | | -------------------------- | |
| (=) Market Value: | = | N/A | |
| (–) Productivity Loss: | – | N/A | |
| | | -------------------------- | |
| (=) Subtotal: | = | N/A | |
| (+) Senior Appraised Value: | + | N/A | |
| (+) Non-Senior Appraised Value: | + | N/A | |
| | | -------------------------- | |
| (=) Total Appraised Value: | = | N/A | |
| (–) Senior Exemption Loss: | – | N/A | |
| (–) Exemption Loss: | – | N/A | |
| | | -------------------------- | |
| (=) Taxable Value: | = | N/A | |
Taxing Jurisdiction
| Owner: | GABELEIN, LESLIE RAYNARD | | |
| % Ownership: | 100.0000000000% | | |
| Total Value: | N/A | | |
| Tax Area: | 719 - APPRAISER-S Whid Schl Dist, outside Langley, vacant & 50 acres or less |
| CF | Conservation Futures | N/A | N/A | N/A | N/A | | |
| WCD | Whidbey Conservation District | N/A | N/A | N/A | N/A | | |
| HOBOND | Hospital BOND | N/A | N/A | N/A | N/A | | |
| HOGEN | Hospital GEN | N/A | N/A | N/A | N/A | | |
| CE | County Current Expense | N/A | N/A | N/A | N/A | | |
| CR | County Roads | N/A | N/A | N/A | N/A | | |
| ISLANDEMS | Hospital GEN (EMS) | N/A | N/A | N/A | N/A | | |
| LIB | Library Sno-Isle GEN | N/A | N/A | N/A | N/A | | |
| PORTWHID | Port of S Whidbey GEN | N/A | N/A | N/A | N/A | | |
| SCH206CAP | School 206 CP | N/A | N/A | N/A | N/A | | |
| SCH206MO | School 206 Enrichment | N/A | N/A | N/A | N/A | | |
| ST | State School | N/A | N/A | N/A | N/A | | |
| ST2 | State School Part 2 | N/A | N/A | N/A | N/A | | |
| SWHIDPRBD | P & R S Whidbey BOND | N/A | N/A | N/A | N/A | | |
| SWHIDPRBD2 | P & R S Whidbey BOND2 | N/A | N/A | N/A | N/A | | |
| SWHIDPRMT | P & R S Whidbey GEN | N/A | N/A | N/A | N/A | | |
| | Total Tax Rate: | N/A | | | | | |
| | | | | Taxes w/Current Exemptions: | N/A | | |
| | | | | Taxes w/o Exemptions: | N/A | | |
Improvement / Building
Sketch
| No sketches available for this property. |
Property Image
Land
| 1 | 83 | OPEN AGRICULTURE | 1.1800 | 51400.80 | 0.00 | 0.00 | 1.00 | N/A | N/A |
Roll Value History
| 2026 | N/A | N/A | N/A | N/A | N/A |
| 2025 | $0 | $4,720 | $287 | $287 | $287 |
| 2024 | $0 | $4,720 | $287 | $287 | $287 |
| 2023 | $0 | $110,000 | $287 | $287 | $287 |
| 2022 | $0 | $110,000 | $287 | $287 | $287 |
| 2021 | $0 | $110,000 | $287 | $287 | $287 |
| 2020 | $0 | $110,000 | $287 | $287 | $287 |
| 2019 | $0 | $110,000 | $287 | $287 | $287 |
| 2018 | $0 | $100,000 | $287 | $287 | $287 |
| 2017 | $0 | $100,000 | $287 | $287 | $287 |
| 2016 | $0 | $100,000 | $287 | $287 | $287 |
| 2015 | $0 | $100,000 | $287 | $287 | $287 |
| 2014 | $0 | $63,750 | $287 | $287 | $287 |
| 2013 | $0 | $63,750 | $287 | $287 | $287 |
| 2012 | $0 | $63,750 | $287 | $287 | $287 |
| 2011 | $0 | $75,000 | $287 | $287 | $287 |
| 2010 | $0 | $75,000 | $287 | $287 | $287 |
| 2009 | $0 | $75,000 | $287 | $287 | $287 |
| 2008 | $0 | $62,500 | $287 | $287 | $287 |
| 2007 | $0 | $55,000 | $287 | $287 | $287 |
Deed and Sales History
| 1 | 01/31/2025 | QCD | Quit Claim Deed | JOHNSON TTEE, PEGGY J | GABELEIN, LESLIE RAYNARD | | | $0.00 | 62587 | 4582317 |
| 2 | 07/26/2022 | GRANTD | Grant Deed | GABELEIN TRUSTEE, RAYNARD | WHIDBEY CAMANO LAND TRUST | | | $790,000.00 | 53954 | 4548900 |
|   | |
| 3 | 05/01/1994 | QCD | Quit Claim Deed | GABELEIN, RAYNARD O | GABELEIN, RAYNARD O | | | $0.00 | 51222 | 95005745 |
| 4 | 01/01/1900 | OTHER | Other - Misc. Documents | Unknown | GABELEIN, RAYNARD O | | | $0.00 | 0 | 0 |
Payout Agreement
| No payout information available.. |