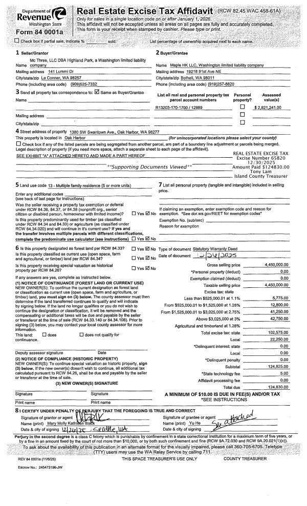
Property
Account |
| Property ID: | 12989 | Abbreviated Legal Description: | 39 - BG SE CR NE SW N88* W647.39' TPB N630.17' W650' TO ELN HELLER RD S TO NE LN SWANTWN RD SELY ALG RD TP N88*W80.84' & S14*W176.09' FR TPB N14*E176.09' S88*E80 .84' TPB EX BG SE CR NE SW N88*W647.39' TPB N300' N89* W104.22' S12*W88.1' SLY CUR /R197.16' |
| Geographic ID: | R13203-170-1700 | Agent Code: | |
| Type: | Real | | |
| Tax Area: | 100 - APPRAISER-OH Schl Dist, in OH | Land Use Code | 13 |
| Open Space: | N | DFL | N |
| Historic Property: | N | Remodel Property: | N |
| Multi-Family Redevelopment: | N | | |
| Township: | 32 | Section: | 03 |
| Range: | R1 |
Location |
| Address: | 1380 SW SWANTOWN AVE OAK HARBOR, WA 98277 | Mapsco: | |
| Neighborhood: | 3AcOH-sw swantown | Map ID: | 90 |
| Neighborhood CD: | 3AcOHswntn |
Owner |
| Name: | MCTHREE, LLC | Owner ID: | 266152 |
| Mailing Address: | 141 LUMMI DR LA CONNER, WA 98257-9631 | % Ownership: | 100.0000000000% |
| | | Exemptions: | |
Taxes and Assessment Details
Values
| (+) Improvement Homesite Value: | + | $0 | |
| (+) Improvement Non-Homesite Value: | + | $1,320,599 | |
| (+) Land Homesite Value: | + | $0 | |
| (+) Land Non-Homesite Value: | + | $1,500,642 | |
| (+) Curr Use (HS): | + | $0 | $0 |
| (+) Curr Use (NHS): | + | $0 | $0 |
| | | -------------------------- | |
| (=) Market Value: | = | $2,821,241 | |
| (–) Productivity Loss: | – | $0 | |
| | | -------------------------- | |
| (=) Subtotal: | = | $2,821,241 | |
| (+) Senior Appraised Value: | + | $0 | |
| (+) Non-Senior Appraised Value: | + | $2,821,241 | |
| | | -------------------------- | |
| (=) Total Appraised Value: | = | $2,821,241 | |
| (–) Senior Exemption Loss: | – | $0 | |
| (–) Exemption Loss: | – | $0 | |
| | | -------------------------- | |
| (=) Taxable Value: | = | $2,821,241 | |
Taxing Jurisdiction
| Owner: | MCTHREE, LLC | | |
| % Ownership: | 100.0000000000% | | |
| Total Value: | $2,821,241 | | |
| Tax Area: | 100 - APPRAISER-OH Schl Dist, in OH |
| CF | Conservation Futures | 0.0313996660 | $2,821,241 | $2,821,241 | $88.59 | | |
| CEM1 | Cemetery #1 | 0.0040018856 | $2,821,241 | $2,821,241 | $11.29 | | |
| COH | City of Oak Harbor | 2.3090730572 | $2,821,241 | $2,821,241 | $6,514.45 | | |
| OAKBOND | City of Oak Harbor BOND | 0.1902260131 | $2,821,241 | $2,821,241 | $536.67 | | |
| HOBOND | Hospital BOND | 0.1893405597 | $2,821,241 | $2,821,241 | $534.18 | | |
| HOGEN | Hospital GEN | 0.3848777722 | $2,821,241 | $2,821,241 | $1,085.83 | | |
| CE | County Current Expense | 0.3674210519 | $2,821,241 | $2,821,241 | $1,036.58 | | |
| ISLANDEMS | Hospital GEN (EMS) | 0.4952018576 | $2,821,241 | $2,821,241 | $1,397.08 | | |
| LIB | Library Sno-Isle GEN | 0.3039084203 | $2,821,241 | $2,821,241 | $857.40 | | |
| NWHIDPRMT | P & R N Whidbey GEN | 0.1990272349 | $2,821,241 | $2,821,241 | $561.50 | | |
| SCH201MO | School 201 Enrichment | 2.3851112745 | $2,821,241 | $2,821,241 | $6,728.97 | | |
| ST | State School | 1.4761226122 | $2,821,241 | $2,821,241 | $4,164.50 | | |
| ST2 | State School Part 2 | 0.7953803475 | $2,821,241 | $2,821,241 | $2,243.96 | | |
| | Total Tax Rate: | 9.1310917527 | | | | | |
| | | | | Taxes w/Current Exemptions: | $25,761.00 | | |
| | | | | Taxes w/o Exemptions: | $25,761.00 | | |
Improvement / Building
| Improvement #1: | RESIDENTIAL/COMMERCIAL | State Code: | A1 | 1488.0 sqft | Value: | $108,169 |
| Bathrooms: | 2 | Bedrooms: | 4 | | Ceiling: | DRYWALL PAINTED | Exterior Wall/Cover: | WOOD SIDING | | Floor Covering: | VINYL 100% | Floor Structure: | SLAB ON GRADE | | Foundation: | SLAB | Heating: | BASEBOARD ELECTRIC | | Interior Finish: | DRYWALL PAINT | Plumbing Fixture Cnt: | 12 | | Roof Slope: | 4" IN 12" | Roof Structure/Cover: | CJ ASPHALT |
|
| | Type | Description | Class CD | Sub Class CD | Year Built | Area |
| | BAS | BASE/MAIN FLOOR | 3 | 0 | 1960 | 1488.0 |
| | OCP | OPEN CARPORT | 3 | 0 | 1960 | 294.0 |
| | OCP | OPEN CARPORT | 3 | 0 | 1960 | 294.0 |
| | UTY | STORAGE/UTILITY | 3 | 0 | 1960 | 42.0 |
| | UTY | STORAGE/UTILITY | 3 | 0 | 1960 | 42.0 |
| | oPV1 | PV/ASPH 2" | 3 | 0 | 1960 | 4900.0 |
| Improvement #2: | RESIDENTIAL/COMMERCIAL | State Code: | A1 | 1488.0 sqft | Value: | $108,169 |
| Bathrooms: | 2 | Bedrooms: | 4 | | Ceiling: | DRYWALL PAINTED | Exterior Wall/Cover: | WOOD SIDING | | Floor Covering: | VINYL 100% | Floor Structure: | SLAB ON GRADE | | Foundation: | SLAB | Heating: | BASEBOARD ELECTRIC | | Interior Finish: | DRYWALL PAINT | Plumbing Fixture Cnt: | 12 | | Roof Slope: | 4" IN 12" | Roof Structure/Cover: | CJ ASPHALT |
|
| | Type | Description | Class CD | Sub Class CD | Year Built | Area |
| | BAS | BASE/MAIN FLOOR | 3 | 0 | 1960 | 1488.0 |
| | OCP | OPEN CARPORT | 3 | 0 | 1960 | 294.0 |
| | OCP | OPEN CARPORT | 3 | 0 | 1960 | 294.0 |
| | UTY | STORAGE/UTILITY | 3 | 0 | 1960 | 42.0 |
| | UTY | STORAGE/UTILITY | 3 | 0 | 1960 | 42.0 |
| | oPV1 | PV/ASPH 2" | 3 | 0 | 1960 | 4900.0 |
| Improvement #3: | RESIDENTIAL/COMMERCIAL | State Code: | A1 | 1488.0 sqft | Value: | $108,169 |
| Bathrooms: | 2 | Bedrooms: | 4 | | Ceiling: | DRYWALL PAINTED | Exterior Wall/Cover: | WOOD SIDING | | Floor Covering: | VINYL 100% | Floor Structure: | SLAB ON GRADE | | Foundation: | SLAB | Heating: | BASEBOARD ELECTRIC | | Interior Finish: | DRYWALL PAINT | Plumbing Fixture Cnt: | 12 | | Roof Slope: | 4" IN 12" | Roof Structure/Cover: | CJ ASPHALT |
|
| | Type | Description | Class CD | Sub Class CD | Year Built | Area |
| | BAS | BASE/MAIN FLOOR | 3 | 0 | 1960 | 1488.0 |
| | OCP | OPEN CARPORT | 3 | 0 | 1960 | 294.0 |
| | OCP | OPEN CARPORT | 3 | 0 | 1960 | 294.0 |
| | UTY | STORAGE/UTILITY | 3 | 0 | 1960 | 42.0 |
| | UTY | STORAGE/UTILITY | 3 | 0 | 1960 | 42.0 |
| | oPV1 | PV/ASPH 2" | 3 | 0 | 1960 | 4900.0 |
| Improvement #4: | RESIDENTIAL/COMMERCIAL | State Code: | A1 | 1608.0 sqft | Value: | $120,990 |
| Bathrooms: | 2 | Bedrooms: | 2 | | Ceiling: | DRY WALL SPRAYED | Exterior Wall/Cover: | WOOD SIDING | | Floor Covering: | CARPET/VINYL 60-40 | Floor Structure: | SLAB ON GRADE | | Foundation: | SLAB | Heating: | BASEBOARD ELECTRIC | | Interior Finish: | DRYWALL PAINT | Plumbing Fixture Cnt: | 9 | | Roof Slope: | 4" IN 12" | Roof Structure/Cover: | CJ ASPHALT |
|
| | Type | Description | Class CD | Sub Class CD | Year Built | Area |
| | BAS | BASE/MAIN FLOOR | 3 | 0 | 1960 | 1608.0 |
| | DGR | DETACHED GARAGE | 3 | 0 | 1960 | 520.0 |
| | OP1 | OPEN PORCH SLAB | 3 | 0 | 1960 | 128.0 |
| | oPV1 | PV/ASPH 2" | 3 | 0 | 1960 | 4900.0 |
| Improvement #5: | RESIDENTIAL/COMMERCIAL | State Code: | A1 | 1488.0 sqft | Value: | $108,169 |
| Bathrooms: | 2 | Bedrooms: | 4 | | Ceiling: | DRYWALL PAINTED | Exterior Wall/Cover: | WOOD SIDING | | Floor Covering: | VINYL 100% | Floor Structure: | SLAB ON GRADE | | Foundation: | SLAB | Heating: | BASEBOARD ELECTRIC | | Interior Finish: | DRYWALL PAINT | Plumbing Fixture Cnt: | 12 | | Roof Slope: | 4" IN 12" | Roof Structure/Cover: | CJ ASPHALT |
|
| | Type | Description | Class CD | Sub Class CD | Year Built | Area |
| | BAS | BASE/MAIN FLOOR | 3 | 0 | 1960 | 1488.0 |
| | OCP | OPEN CARPORT | 3 | 0 | 1960 | 294.0 |
| | OCP | OPEN CARPORT | 3 | 0 | 1960 | 294.0 |
| | UTY | STORAGE/UTILITY | 3 | 0 | 1960 | 42.0 |
| | UTY | STORAGE/UTILITY | 3 | 0 | 1960 | 42.0 |
| | oPV1 | PV/ASPH 2" | 3 | 0 | 1960 | 4900.0 |
| Improvement #6: | RESIDENTIAL/COMMERCIAL | State Code: | A1 | 1488.0 sqft | Value: | $108,169 |
| Bathrooms: | 2 | Bedrooms: | 4 | | Ceiling: | DRYWALL PAINTED | Exterior Wall/Cover: | WOOD SIDING | | Floor Covering: | VINYL 100% | Floor Structure: | SLAB ON GRADE | | Foundation: | SLAB | Heating: | BASEBOARD ELECTRIC | | Interior Finish: | DRYWALL PAINT | Plumbing Fixture Cnt: | 12 | | Roof Slope: | 4" IN 12" | Roof Structure/Cover: | CJ ASPHALT |
|
| | Type | Description | Class CD | Sub Class CD | Year Built | Area |
| | BAS | BASE/MAIN FLOOR | 3 | 0 | 1960 | 1488.0 |
| | OCP | OPEN CARPORT | 3 | 0 | 1960 | 294.0 |
| | OCP | OPEN CARPORT | 3 | 0 | 1960 | 294.0 |
| | UTY | STORAGE/UTILITY | 3 | 0 | 1960 | 42.0 |
| | UTY | STORAGE/UTILITY | 3 | 0 | 1960 | 42.0 |
| | oPV1 | PV/ASPH 2" | 3 | 0 | 1960 | 4900.0 |
| Improvement #7: | RESIDENTIAL/COMMERCIAL | State Code: | A1 | 1488.0 sqft | Value: | $108,169 |
| Bathrooms: | 2 | Bedrooms: | 4 | | Ceiling: | DRYWALL PAINTED | Exterior Wall/Cover: | WOOD SIDING | | Floor Covering: | VINYL 100% | Floor Structure: | SLAB ON GRADE | | Foundation: | SLAB | Heating: | BASEBOARD ELECTRIC | | Interior Finish: | DRYWALL PAINT | Plumbing Fixture Cnt: | 12 | | Roof Slope: | 4" IN 12" | Roof Structure/Cover: | CJ ASPHALT |
|
| | Type | Description | Class CD | Sub Class CD | Year Built | Area |
| | BAS | BASE/MAIN FLOOR | 3 | 0 | 1960 | 1488.0 |
| | OCP | OPEN CARPORT | 3 | 0 | 1960 | 294.0 |
| | OCP | OPEN CARPORT | 3 | 0 | 1960 | 294.0 |
| | UTY | STORAGE/UTILITY | 3 | 0 | 1960 | 42.0 |
| | UTY | STORAGE/UTILITY | 3 | 0 | 1960 | 42.0 |
| | oPV1 | PV/ASPH 2" | 3 | 0 | 1960 | 4900.0 |
| Improvement #8: | RESIDENTIAL/COMMERCIAL | State Code: | A1 | 1488.0 sqft | Value: | $108,169 |
| Bathrooms: | 2 | Bedrooms: | 4 | | Ceiling: | DRYWALL PAINTED | Exterior Wall/Cover: | WOOD SIDING | | Floor Covering: | VINYL 100% | Floor Structure: | SLAB ON GRADE | | Foundation: | SLAB | Heating: | BASEBOARD ELECTRIC | | Interior Finish: | DRYWALL PAINT | Plumbing Fixture Cnt: | 12 | | Roof Slope: | 4" IN 12" | Roof Structure/Cover: | CJ ASPHALT |
|
| | Type | Description | Class CD | Sub Class CD | Year Built | Area |
| | BAS | BASE/MAIN FLOOR | 3 | 0 | 1960 | 1488.0 |
| | OCP | OPEN CARPORT | 3 | 0 | 1960 | 294.0 |
| | OCP | OPEN CARPORT | 3 | 0 | 1960 | 294.0 |
| | UTY | STORAGE/UTILITY | 3 | 0 | 1960 | 42.0 |
| | UTY | STORAGE/UTILITY | 3 | 0 | 1960 | 42.0 |
| | oPV1 | PV/ASPH 2" | 3 | 0 | 1960 | 4900.0 |
| Improvement #9: | RESIDENTIAL/COMMERCIAL | State Code: | A1 | 1488.0 sqft | Value: | $117,919 |
| Bathrooms: | 2 | Bedrooms: | 4 | | Ceiling: | DRYWALL PAINTED | Exterior Wall/Cover: | WOOD SIDING | | Floor Covering: | VINYL 100% | Floor Structure: | SLAB ON GRADE | | Foundation: | SLAB | Heating: | BASEBOARD ELECTRIC | | Interior Finish: | DRYWALL PAINT | Plumbing Fixture Cnt: | 12 | | Roof Slope: | 4" IN 12" | Roof Structure/Cover: | CJ ASPHALT |
|
| | Type | Description | Class CD | Sub Class CD | Year Built | Area |
| | BAS | BASE/MAIN FLOOR | 3 | 0 | 1960 | 1488.0 |
| | OCP | OPEN CARPORT | 3 | 0 | 1960 | 294.0 |
| | OCP | OPEN CARPORT | 3 | 0 | 1960 | 294.0 |
| | UTY | STORAGE/UTILITY | 3 | 0 | 1960 | 42.0 |
| | UTY | STORAGE/UTILITY | 3 | 0 | 1960 | 42.0 |
| | oPV1 | PV/ASPH 2" | 3 | 0 | 1960 | 4900.0 |
| Improvement #10: | RESIDENTIAL/COMMERCIAL | State Code: | A1 | 1488.0 sqft | Value: | $108,169 |
| Bathrooms: | 2 | Bedrooms: | 4 | | Ceiling: | DRYWALL PAINTED | Exterior Wall/Cover: | WOOD SIDING | | Floor Covering: | VINYL 100% | Floor Structure: | SLAB ON GRADE | | Foundation: | SLAB | Heating: | BASEBOARD ELECTRIC | | Interior Finish: | DRYWALL PAINT | Plumbing Fixture Cnt: | 12 | | Roof Slope: | 4" IN 12" | Roof Structure/Cover: | CJ ASPHALT |
|
| | Type | Description | Class CD | Sub Class CD | Year Built | Area |
| | BAS | BASE/MAIN FLOOR | 3 | 0 | 1960 | 1488.0 |
| | OCP | OPEN CARPORT | 3 | 0 | 1960 | 294.0 |
| | OCP | OPEN CARPORT | 3 | 0 | 1960 | 294.0 |
| | UTY | STORAGE/UTILITY | 3 | 0 | 1960 | 42.0 |
| | UTY | STORAGE/UTILITY | 3 | 0 | 1960 | 42.0 |
| | oPV1 | PV/ASPH 2" | 3 | 0 | 1960 | 4900.0 |
| Improvement #11: | RESIDENTIAL/COMMERCIAL | State Code: | A1 | 1488.0 sqft | Value: | $108,169 |
| Bathrooms: | 2 | Bedrooms: | 4 | | Ceiling: | DRYWALL PAINTED | Exterior Wall/Cover: | WOOD SIDING | | Floor Covering: | VINYL 100% | Floor Structure: | SLAB ON GRADE | | Foundation: | SLAB | Heating: | BASEBOARD ELECTRIC | | Interior Finish: | DRYWALL PAINT | Plumbing Fixture Cnt: | 12 | | Roof Slope: | 4" IN 12" | Roof Structure/Cover: | CJ ASPHALT |
|
| | Type | Description | Class CD | Sub Class CD | Year Built | Area |
| | BAS | BASE/MAIN FLOOR | 3 | 0 | 1960 | 1488.0 |
| | OCP | OPEN CARPORT | 3 | 0 | 1960 | 294.0 |
| | OCP | OPEN CARPORT | 3 | 0 | 1960 | 294.0 |
| | UTY | STORAGE/UTILITY | 3 | 0 | 1960 | 42.0 |
| | UTY | STORAGE/UTILITY | 3 | 0 | 1960 | 42.0 |
| | oPV1 | PV/ASPH 2" | 3 | 0 | 1960 | 4900.0 |
| Improvement #12: | RESIDENTIAL/COMMERCIAL | State Code: | A1 | 1488.0 sqft | Value: | $108,169 |
| Bathrooms: | 2 | Bedrooms: | 4 | | Ceiling: | DRYWALL PAINTED | Exterior Wall/Cover: | WOOD SIDING | | Floor Covering: | VINYL 100% | Floor Structure: | SLAB ON GRADE | | Foundation: | SLAB | Heating: | BASEBOARD ELECTRIC | | Interior Finish: | DRYWALL PAINT | Plumbing Fixture Cnt: | 12 | | Roof Slope: | 4" IN 12" | Roof Structure/Cover: | CJ ASPHALT |
|
| | Type | Description | Class CD | Sub Class CD | Year Built | Area |
| | BAS | BASE/MAIN FLOOR | 3 | 0 | 1960 | 1488.0 |
| | OCP | OPEN CARPORT | 3 | 0 | 1960 | 294.0 |
| | OCP | OPEN CARPORT | 3 | 0 | 1960 | 294.0 |
| | UTY | STORAGE/UTILITY | 3 | 0 | 1960 | 42.0 |
| | UTY | STORAGE/UTILITY | 3 | 0 | 1960 | 42.0 |
| | oPV1 | PV/ASPH 2" | 3 | 0 | 1960 | 4900.0 |
Sketch
Property Image
Land
| 1 | 61 | MULTIPLE RESIDENCES | 6.8900 | 300128.40 | 0.00 | 0.00 | 1.00 | $1,500,642 | $0 |
Roll Value History
| 2026 | N/A | N/A | N/A | N/A | N/A |
| 2025 | $1,320,599 | $1,500,642 | $0 | $2,821,241 | $2,821,241 |
| 2024 | $1,370,352 | $1,500,642 | $0 | $2,870,994 | $2,870,994 |
| 2023 | $1,398,447 | $1,440,000 | $0 | $2,838,447 | $2,838,447 |
| 2022 | $1,179,939 | $1,440,000 | $0 | $2,619,939 | $2,619,939 |
| 2021 | $1,165,566 | $1,440,000 | $0 | $2,605,566 | $2,605,566 |
| 2020 | $1,162,630 | $1,440,000 | $0 | $2,602,630 | $2,602,630 |
| 2019 | $781,687 | $1,350,578 | $0 | $2,132,265 | $2,132,265 |
| 2018 | $781,732 | $1,200,514 | $0 | $1,982,246 | $1,982,246 |
| 2017 | $794,720 | $750,321 | $0 | $1,545,041 | $1,545,041 |
| 2016 | $810,911 | $750,321 | $0 | $1,561,232 | $1,561,232 |
| 2015 | $827,128 | $798,346 | $0 | $1,625,474 | $1,625,474 |
| 2014 | $843,335 | $798,346 | $0 | $1,641,681 | $1,641,681 |
| 2013 | $875,177 | $798,346 | $0 | $1,673,523 | $1,673,523 |
| 2012 | $875,177 | $798,346 | $0 | $1,673,523 | $1,673,523 |
| 2011 | $875,177 | $798,346 | $0 | $1,673,523 | $1,673,523 |
| 2010 | $1,053,895 | $798,346 | $0 | $1,852,241 | $1,852,241 |
| 2009 | $1,101,705 | $1,218,528 | $0 | $2,320,233 | $2,320,233 |
| 2008 | $1,118,877 | $1,218,528 | $0 | $2,337,405 | $2,337,405 |
| 2007 | $1,116,176 | $1,218,528 | $0 | $2,334,704 | $2,334,704 |
Deed and Sales History
| 1 | 12/26/2025 | WD | Warranty Deed | MCTHREE, LLC | MAPLE HK LLC | | | $4,450,000.00 | 65820 | 4595157 |
| 2 | 02/03/2010 | QCD | Quit Claim Deed | MCCABE, BERT M | MCTHREE, LLC | | | | 256 | 4268224 |
| 3 | 06/03/1998 | WD | Warranty Deed | MYERS, CAROLE A | MCCABE, BERT M | | | $900,000.00 | 82165 | 98011191 |
| 4 | 09/01/1992 | DECREE | Divorce Decree/Legal Separation | MYERS, KENT & | MYERS, CAROLE A | | | $0.00 | 23820 | 92018554 |
| 5 | 04/01/1982 | REC | Real Estate Contract | MASSEY, WILLIAM L | MYERS, KENT & | | | $585,000.00 | 21014 | 395785 |
| 6 | 10/01/1978 | OTHER | Other - Misc. Documents | MCCABE, BERT M | MASSEY, WILLIAM L | | | $450,000.00 | 84913 | 340812 |
| 7 | 01/01/1900 | OTHER | Other - Misc. Documents | Unknown | MCCABE, BERT M | | | $0.00 | 82165 | 98011191 |
Payout Agreement
| No payout information available.. |