Property
Account |
| Property ID: | 130600 | Abbreviated Legal Description: | 3.8500 Acres ins Section 15s Township 29s Range R3s LOT B BLA 388-17 AF# 4435449 TL 31 - IN NE NE SE;s |
| Geographic ID: | R32915-240-5520 | Agent Code: | |
| Type: | Real | | |
| Tax Area: | 712 - APPRAISER-S Whid Schl Dist, outside Langley, improved, greater than 1 acre | Land Use Code | 11 |
| Open Space: | N | DFL | N |
| Historic Property: | N | Remodel Property: | N |
| Multi-Family Redevelopment: | N | | |
| Township: | 29 | Section: | 15 |
| Range: | R3 |
Location |
| Address: | 5816 LANGLEY RD LANGLEY, WA 98260 | Mapsco: | |
| Neighborhood: | Cycle 4 | Map ID: | 771 |
| Neighborhood CD: | 4 |
Owner |
| Name: | KELLEY, BRIAN | Owner ID: | 306620 |
| Mailing Address: | ANDREA KELLY 5816 LANGLEY RD LANGLEY, WA 98260 | % Ownership: | 100.0000000000% |
| | | Exemptions: | |
Taxes and Assessment Details
Values
| (+) Improvement Homesite Value: | + | $0 | |
| (+) Improvement Non-Homesite Value: | + | $156,217 | |
| (+) Land Homesite Value: | + | $0 | |
| (+) Land Non-Homesite Value: | + | $370,000 | |
| (+) Curr Use (HS): | + | $0 | $0 |
| (+) Curr Use (NHS): | + | $0 | $0 |
| | | -------------------------- | |
| (=) Market Value: | = | $526,217 | |
| (–) Productivity Loss: | – | $0 | |
| | | -------------------------- | |
| (=) Subtotal: | = | $526,217 | |
| (+) Senior Appraised Value: | + | $0 | |
| (+) Non-Senior Appraised Value: | + | $526,217 | |
| | | -------------------------- | |
| (=) Total Appraised Value: | = | $526,217 | |
| (–) Senior Exemption Loss: | – | $0 | |
| (–) Exemption Loss: | – | $0 | |
| | | -------------------------- | |
| (=) Taxable Value: | = | $526,217 | |
Taxing Jurisdiction
| Owner: | KELLEY, BRIAN | | |
| % Ownership: | 100.0000000000% | | |
| Total Value: | $526,217 | | |
| Tax Area: | 712 - APPRAISER-S Whid Schl Dist, outside Langley, improved, greater than 1 acre |
| CF | Conservation Futures | 0.0313996660 | $526,217 | $526,217 | $16.52 | | |
| FIRE3 | Fire & Rescue Dist #3 S Whidbey GEN | 1.2130821753 | $526,217 | $526,217 | $638.34 | | |
| HOBOND | Hospital BOND | 0.1893405597 | $526,217 | $526,217 | $99.63 | | |
| HOGEN | Hospital GEN | 0.3848777722 | $526,217 | $526,217 | $202.53 | | |
| CE | County Current Expense | 0.3674210519 | $526,217 | $526,217 | $193.34 | | |
| CR | County Roads | 0.4614296361 | $526,217 | $526,217 | $242.81 | | |
| ISLANDEMS | Hospital GEN (EMS) | 0.4952018576 | $526,217 | $526,217 | $260.58 | | |
| LIB | Library Sno-Isle GEN | 0.3039084203 | $526,217 | $526,217 | $159.92 | | |
| PORTWHID | Port of S Whidbey GEN | 0.1086004714 | $526,217 | $526,217 | $57.15 | | |
| SCH206BOND | School 206 BOND | 0.5960237832 | $526,217 | $526,217 | $313.64 | | |
| SCH206CAP | School 206 CP | 0.3066144020 | $526,217 | $526,217 | $161.35 | | |
| SCH206MO | School 206 Enrichment | 0.4808755445 | $526,217 | $526,217 | $253.04 | | |
| ST | State School | 1.4761226122 | $526,217 | $526,217 | $776.76 | | |
| ST2 | State School Part 2 | 0.7953803475 | $526,217 | $526,217 | $418.54 | | |
| SWHIDPRBD | P & R S Whidbey BOND | 0.0144185398 | $526,217 | $526,217 | $7.59 | | |
| SWHIDPRBD3 | P & R S Whidbey BOND3 | 0.1483535547 | $526,217 | $526,217 | $78.07 | | |
| SWHIDPRMT | P & R S Whidbey GEN | 0.4600000000 | $526,217 | $526,217 | $242.06 | | |
| | Total Tax Rate: | 7.8330503944 | | | | | |
| | | | | Taxes w/Current Exemptions: | $4,121.87 | | |
| | | | | Taxes w/o Exemptions: | $4,121.87 | | |
Improvement / Building
| Improvement #1: | RESIDENTIAL | State Code: | Y | 1184.0 sqft | Value: | $156,217 |
| Bathrooms: | 1 | Bedrooms: | 2 | | Ceiling: | PLYWOOD PAINTED | Exterior Wall/Cover: | VINYL | | Floor Covering: | VINYL 100% | Floor Structure: | WOOD W/SUBFLOOR | | Foundation: | CONCRETE | Heating: | BASEBOARD ELECTRIC | | Interior Finish: | DRYWALL PAINT | Plumbing Fixture Cnt: | 6 | | Roof Slope: | 8" IN 12" | Roof Structure/Cover: | CJ ASPHALT |
|
| | Type | Description | Class CD | Sub Class CD | Year Built | Area |
| | BAS | BASE/MAIN FLOOR | 3 | 0 | 1939 | 1184.0 |
| | OWP | OPEN WOOD PORCH W/STEPS | 3 | 0 | 1939 | 390.0 |
| | OWC | OPEN WOOD PORCH W/STEPS/ROOF/C | 3 | 0 | 1939 | 32.0 |
Sketch
Property Image
Land
| 1 | 32 | AC (03.01-09.99) | 0.0000 | 0.00 | 0.00 | 0.00 | 1.00 | $370,000 | $0 |
Roll Value History
| 2026 | N/A | N/A | N/A | N/A | N/A |
| 2025 | $156,217 | $370,000 | $0 | $526,217 | $526,217 |
| 2024 | $161,942 | $350,000 | $0 | $511,942 | $511,942 |
| 2023 | $164,462 | $330,000 | $0 | $494,462 | $494,462 |
| 2022 | $151,204 | $280,000 | $0 | $431,204 | $431,204 |
| 2021 | $133,471 | $230,000 | $0 | $363,471 | $363,471 |
| 2020 | $124,117 | $190,000 | $0 | $314,117 | $314,117 |
| 2019 | $89,340 | $250,000 | $0 | $339,340 | $339,340 |
| 2018 | $89,678 | $150,000 | $0 | $239,678 | $239,678 |
| 2017 | $90,352 | $140,000 | $0 | $230,352 | $230,352 |
| 2016 | $91,700 | $100,000 | $0 | $191,700 | $191,700 |
| 2015 | $93,049 | $100,000 | $0 | $193,049 | $193,049 |
| 2014 | $37,001 | $100,000 | $0 | $137,001 | $137,001 |
| 2013 | $37,001 | $114,750 | $0 | $151,751 | $151,751 |
| 2012 | $37,001 | $114,750 | $0 | $151,751 | $151,751 |
| 2011 | $37,001 | $135,000 | $0 | $172,001 | $172,001 |
| 2010 | $44,841 | $135,000 | $0 | $179,841 | $179,841 |
| 2009 | $47,278 | $160,000 | $0 | $207,278 | $207,278 |
| 2008 | $49,586 | $145,000 | $0 | $194,586 | $194,586 |
| 2007 | $50,801 | $145,000 | $0 | $195,801 | $195,801 |
Deed and Sales History
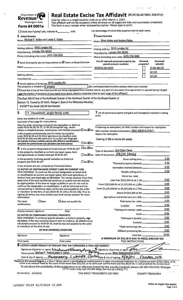
| 1 | 02/01/2024 | QCD | Quit Claim Deed | KELLEY, MICHAEL F | KELLEY, BRIAN | | | $0.00 | 59189 | 4569327 |
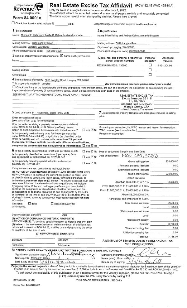
| 2 | 11/09/2022 | BARGSLD | Bargain And Sale Deed | KELLEY, MICHAEL F | KELLEY, BRIAN | | | $235,000.00 | 55118 | 4553644 |
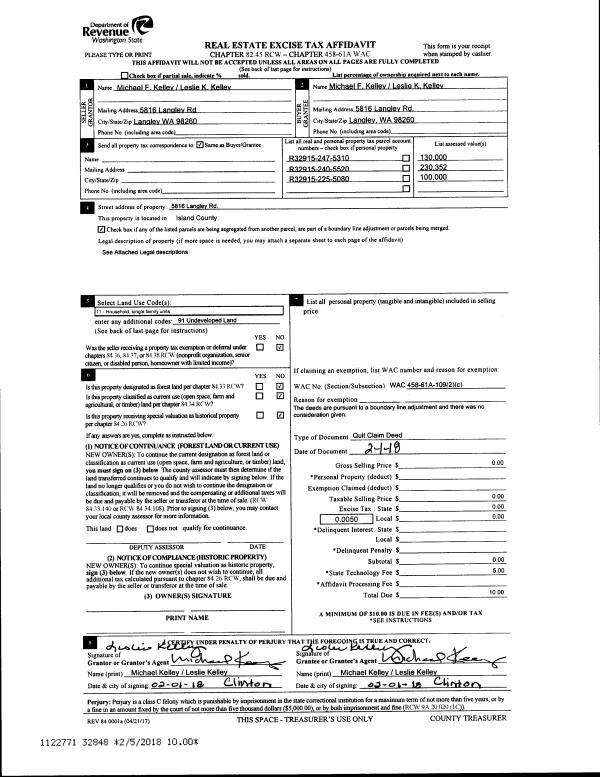
| 3 | 02/01/2018 | QCD | Quit Claim Deed | KELLEY, MICHAEL F | KELLEY, MICHAEL F | | | $0.00 | 32853 | 4438637 |
| 4 | 02/01/2018 | QCD | Quit Claim Deed | KELLEY, MICHAEL F | KELLEY, MICHAEL F | | | $0.00 | 32848 | 4438633 |
| 5 | 02/01/2018 | QCD | Quit Claim Deed | KELLEY, MICHAEL F | KELLEY, MICHAEL F | | | $0.00 | 32850 | 4438634 |
| 6 | 07/01/1981 | TRUSTEED | Trustee's Deed | BARTHOLOMEW, ILIFF C | KELLEY, MICHAEL F | | | $1.00 | 12493 | 386682 |
| 7 | 01/01/1900 | OTHER | Other - Misc. Documents | Unknown | BARTHOLOMEW, ILIFF C | | | $0.00 | 0 | 0 |
Payout Agreement
| No payout information available.. |