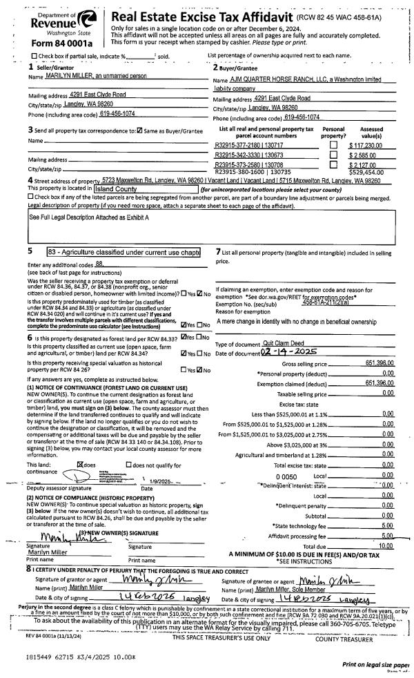
Property
Account |
| Property ID: | 130717 | Abbreviated Legal Description: | 36 - E500' OF W1000' OF SE NW LYG N OF ST HWY MEAS PAR W/WLN SE NW TGW EZ & WATER RTS |
| Geographic ID: | R32915-377-2180 | Agent Code: | |
| Type: | Real | | |
| Tax Area: | 712 - APPRAISER-S Whid Schl Dist, outside Langley, improved, greater than 1 acre | Land Use Code | 83 |
| Open Space: | Y | DFL | N |
| Historic Property: | N | Remodel Property: | N |
| Multi-Family Redevelopment: | N | | |
| Township: | 29 | Section: | 15 |
| Range: | R3 |
Location |
| Address: | 5723 MAXWELTON RD LANGLEY, WA 98260 | Mapsco: | |
| Neighborhood: | Cycle 4 | Map ID: | 772 |
| Neighborhood CD: | 4 |
Owner |
| Name: | AJM QUARTER HORSE RANCH, LLC | Owner ID: | 315664 |
| Mailing Address: | 4291 EAST CLYDE RD LANGLEY, WA 98260 | % Ownership: | 100.0000000000% |
| | | Exemptions: | |
Taxes and Assessment Details
Values
| (+) Improvement Homesite Value: | + | $0 | |
| (+) Improvement Non-Homesite Value: | + | $110,610 | |
| (+) Land Homesite Value: | + | $0 | |
| (+) Land Non-Homesite Value: | + | $0 | |
| (+) Curr Use (HS): | + | $0 | $0 |
| (+) Curr Use (NHS): | + | $370,000 | $2,282 |
| | | -------------------------- | |
| (=) Market Value: | = | $480,610 | |
| (–) Productivity Loss: | – | $367,718 | |
| | | -------------------------- | |
| (=) Subtotal: | = | $112,892 | |
| (+) Senior Appraised Value: | + | $0 | |
| (+) Non-Senior Appraised Value: | + | $112,892 | |
| | | -------------------------- | |
| (=) Total Appraised Value: | = | $112,892 | |
| (–) Senior Exemption Loss: | – | $0 | |
| (–) Exemption Loss: | – | $0 | |
| | | -------------------------- | |
| (=) Taxable Value: | = | $112,892 | |
Taxing Jurisdiction
| Owner: | AJM QUARTER HORSE RANCH, LLC | | |
| % Ownership: | 100.0000000000% | | |
| Total Value: | $480,610 | | |
| Tax Area: | 712 - APPRAISER-S Whid Schl Dist, outside Langley, improved, greater than 1 acre |
| CF | Conservation Futures | 0.0313996660 | $112,892 | $112,892 | $3.54 | | |
| FIRE3 | Fire & Rescue Dist #3 S Whidbey GEN | 1.2130821753 | $112,892 | $112,892 | $136.95 | | |
| HOBOND | Hospital BOND | 0.1893405597 | $112,892 | $112,892 | $21.38 | | |
| HOGEN | Hospital GEN | 0.3848777722 | $112,892 | $112,892 | $43.45 | | |
| CE | County Current Expense | 0.3674210519 | $112,892 | $112,892 | $41.48 | | |
| CR | County Roads | 0.4614296361 | $112,892 | $112,892 | $52.09 | | |
| ISLANDEMS | Hospital GEN (EMS) | 0.4952018576 | $112,892 | $112,892 | $55.90 | | |
| LIB | Library Sno-Isle GEN | 0.3039084203 | $112,892 | $112,892 | $34.31 | | |
| PORTWHID | Port of S Whidbey GEN | 0.1086004714 | $112,892 | $112,892 | $12.26 | | |
| SCH206BOND | School 206 BOND | 0.5960237832 | $112,892 | $112,892 | $67.29 | | |
| SCH206CAP | School 206 CP | 0.3066144020 | $112,892 | $112,892 | $34.61 | | |
| SCH206MO | School 206 Enrichment | 0.4808755445 | $112,892 | $112,892 | $54.29 | | |
| ST | State School | 1.4761226122 | $112,892 | $112,892 | $166.64 | | |
| ST2 | State School Part 2 | 0.7953803475 | $112,892 | $112,892 | $89.79 | | |
| SWHIDPRBD | P & R S Whidbey BOND | 0.0144185398 | $112,892 | $112,892 | $1.63 | | |
| SWHIDPRBD3 | P & R S Whidbey BOND3 | 0.1483535547 | $112,892 | $112,892 | $16.75 | | |
| SWHIDPRMT | P & R S Whidbey GEN | 0.4600000000 | $112,892 | $112,892 | $51.93 | | |
| | Total Tax Rate: | 7.8330503944 | | | | | |
| | | | | Taxes w/Current Exemptions: | $884.29 | | |
| | | | | Taxes w/o Exemptions: | $884.29 | | |
Improvement / Building
| Improvement #1: | RESIDENTIAL | State Code: | Y | 1065.0 sqft | Value: | $110,610 |
| Bathrooms: | 1 | Bedrooms: | 2 | | Ceiling: | DRYWALL PAINTED | Exterior Wall/Cover: | WOOD SIDING | | Floor Covering: | CARPET/VINYL 60-40 | Floor Structure: | SLAB ON GRADE | | Foundation: | CONCRETE | Heating: | BASEBOARD ELECTRIC | | Interior Finish: | DRYWALL PAINT | Plumbing Fixture Cnt: | 6 | | Roof Slope: | 6" IN 12" | Roof Structure/Cover: | CJ ASPHALT |
|
| | Type | Description | Class CD | Sub Class CD | Year Built | Area |
| | BAS | BASE/MAIN FLOOR | 3 | 0 | 1937 | 1065.0 |
| | oBAR | BARN | 3 | 0 | 1937 | 1848.0 |
Sketch
Property Image
Land
| 1 | 32 | AC (03.01-09.99) | 9.4300 | 410770.80 | 0.00 | 0.00 | 1.00 | $370,000 | $2,282 |
Roll Value History
| 2026 | N/A | N/A | N/A | N/A | N/A |
| 2025 | $110,610 | $370,000 | $2,282 | $112,892 | $112,892 |
| 2024 | $114,948 | $350,000 | $2,282 | $117,230 | $117,230 |
| 2023 | $117,010 | $330,000 | $2,282 | $119,292 | $119,292 |
| 2022 | $108,694 | $280,000 | $2,282 | $110,976 | $110,976 |
| 2021 | $97,349 | $230,000 | $2,282 | $99,631 | $99,631 |
| 2020 | $78,357 | $190,000 | $2,282 | $80,639 | $80,639 |
| 2019 | $58,689 | $250,000 | $2,282 | $60,971 | $60,971 |
| 2018 | $58,909 | $210,000 | $2,282 | $61,191 | $61,191 |
| 2017 | $59,348 | $190,000 | $2,282 | $61,630 | $61,630 |
| 2016 | $60,228 | $165,000 | $2,282 | $62,510 | $62,510 |
| 2015 | $61,107 | $165,000 | $2,282 | $63,389 | $63,389 |
| 2014 | $37,074 | $120,233 | $2,282 | $39,356 | $39,356 |
| 2013 | $37,074 | $120,233 | $2,282 | $39,356 | $39,356 |
| 2012 | $37,074 | $120,233 | $2,282 | $39,356 | $39,356 |
| 2011 | $37,074 | $141,450 | $2,422 | $39,496 | $39,496 |
| 2010 | $38,882 | $141,450 | $2,422 | $41,304 | $41,304 |
| 2009 | $6,727 | $37,738 | $2,422 | $42,043 | $42,043 |
| 2008 | $6,596 | $34,627 | $2,422 | $38,801 | $38,801 |
| 2007 | $6,596 | $34,627 | $2,422 | $38,801 | $38,801 |
Deed and Sales History
| 1 | 02/14/2025 | QCD | Quit Claim Deed | MILLER, MARILYN | AJM QUARTER HORSE RANCH, LLC | | | $0.00 | 62715 | 4582858 |
| 2 | 05/24/2024 | WD | Warranty Deed | KIRSHNER, KAREN B | MILLER, MARILYN | | | $0.00 | 60667 | 4574688 |
| 3 | 05/24/2024 | WD | Warranty Deed | KIRSHNER, KAREN B. | MILLER, MARILYN | | | $1,450,000.00 | 60085 | 4572741 |
|   | |
| 4 | 02/21/2013 | SPWARDEED | Special Warranty Deed | KIRSHNER, MICHAEL A | KIRSHNER, KAREN B | | | $0.00 | 19966 | 4380817 |
| 5 | 01/01/1996 | QCD | Quit Claim Deed | KIRSHNER, CORINNE, K | KIRSHNER, MICHAEL E | | | $0.00 | 61650 | 96008294 |
| 6 | 01/01/1978 | TRUSTEED | Trustee's Deed | SCRIVEN, JAMES R | KIRSHNER, CORINNE, K | | | $30,000.00 | 81175 | 0 |
| 7 | 01/01/1900 | OTHER | Other - Misc. Documents | Unknown | SCRIVEN, JAMES R | | | $0.00 | 0 | 0 |
Payout Agreement
| No payout information available.. |