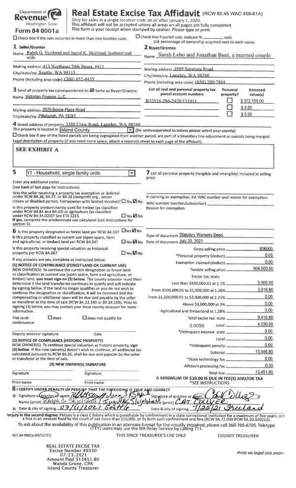
Property
Account |
| Property ID: | 131011 | Abbreviated Legal Description: | 17 - IN SE NW: BG SECR OF SE NW W230' N447' M/L TO CRAW RD SELY ALG SD RD TO ELN SE NW S331' M/L TPB EZ AF#88004916 |
| Geographic ID: | R32916-286-2420 | Agent Code: | |
| Type: | Real | | |
| Tax Area: | 712 - APPRAISER-S Whid Schl Dist, outside Langley, improved, greater than 1 acre | Land Use Code | 11 |
| Open Space: | N | DFL | N |
| Historic Property: | N | Remodel Property: | N |
| Multi-Family Redevelopment: | N | | |
| Township: | 29 | Section: | 16 |
| Range: | R3 |
Location |
| Address: | 3380 CRAW RD LANGLEY, WA 98260 | Mapsco: | |
| Neighborhood: | Cycle 4 | Map ID: | 776 |
| Neighborhood CD: | 4 |
Owner |
| Name: | LEBO, SARAH | Owner ID: | 300356 |
| Mailing Address: | JONATHAN BENT 3989 SARATOGA RD LANGLEY, WA 98260 | % Ownership: | 100.0000000000% |
| | | Exemptions: | |
Taxes and Assessment Details
Values
| (+) Improvement Homesite Value: | + | $0 | |
| (+) Improvement Non-Homesite Value: | + | $304,554 | |
| (+) Land Homesite Value: | + | $0 | |
| (+) Land Non-Homesite Value: | + | $290,000 | |
| (+) Curr Use (HS): | + | $0 | $0 |
| (+) Curr Use (NHS): | + | $0 | $0 |
| | | -------------------------- | |
| (=) Market Value: | = | $594,554 | |
| (–) Productivity Loss: | – | $0 | |
| | | -------------------------- | |
| (=) Subtotal: | = | $594,554 | |
| (+) Senior Appraised Value: | + | $0 | |
| (+) Non-Senior Appraised Value: | + | $594,554 | |
| | | -------------------------- | |
| (=) Total Appraised Value: | = | $594,554 | |
| (–) Senior Exemption Loss: | – | $0 | |
| (–) Exemption Loss: | – | $0 | |
| | | -------------------------- | |
| (=) Taxable Value: | = | $594,554 | |
Taxing Jurisdiction
| Owner: | LEBO, SARAH | | |
| % Ownership: | 100.0000000000% | | |
| Total Value: | $594,554 | | |
| Tax Area: | 712 - APPRAISER-S Whid Schl Dist, outside Langley, improved, greater than 1 acre |
| CF | Conservation Futures | 0.0313996660 | $594,554 | $594,554 | $18.67 | | |
| FIRE3 | Fire & Rescue Dist #3 S Whidbey GEN | 1.2130821753 | $594,554 | $594,554 | $721.24 | | |
| HOBOND | Hospital BOND | 0.1893405597 | $594,554 | $594,554 | $112.57 | | |
| HOGEN | Hospital GEN | 0.3848777722 | $594,554 | $594,554 | $228.83 | | |
| CE | County Current Expense | 0.3674210519 | $594,554 | $594,554 | $218.45 | | |
| CR | County Roads | 0.4614296361 | $594,554 | $594,554 | $274.34 | | |
| ISLANDEMS | Hospital GEN (EMS) | 0.4952018576 | $594,554 | $594,554 | $294.42 | | |
| LIB | Library Sno-Isle GEN | 0.3039084203 | $594,554 | $594,554 | $180.69 | | |
| PORTWHID | Port of S Whidbey GEN | 0.1086004714 | $594,554 | $594,554 | $64.57 | | |
| SCH206BOND | School 206 BOND | 0.5960237832 | $594,554 | $594,554 | $354.37 | | |
| SCH206CAP | School 206 CP | 0.3066144020 | $594,554 | $594,554 | $182.30 | | |
| SCH206MO | School 206 Enrichment | 0.4808755445 | $594,554 | $594,554 | $285.91 | | |
| ST | State School | 1.4761226122 | $594,554 | $594,554 | $877.63 | | |
| ST2 | State School Part 2 | 0.7953803475 | $594,554 | $594,554 | $472.90 | | |
| SWHIDPRBD | P & R S Whidbey BOND | 0.0144185398 | $594,554 | $594,554 | $8.57 | | |
| SWHIDPRBD3 | P & R S Whidbey BOND3 | 0.1483535547 | $594,554 | $594,554 | $88.20 | | |
| SWHIDPRMT | P & R S Whidbey GEN | 0.4600000000 | $594,554 | $594,554 | $273.49 | | |
| | Total Tax Rate: | 7.8330503944 | | | | | |
| | | | | Taxes w/Current Exemptions: | $4,657.15 | | |
| | | | | Taxes w/o Exemptions: | $4,657.15 | | |
Improvement / Building
| Improvement #1: | RESIDENTIAL | State Code: | Y | 1839.0 sqft | Value: | $304,554 |
| Bathrooms: | 1 | Bedrooms: | 2 | | Ceiling: | DRYWALL PAINTED | Cooling: | HEAT PUMP/CONV/V | | Exterior Wall/Cover: | PLY/HARDBOARD T-111 | Floor Covering: | SOFTWOOD/VINYL 60-40 | | Floor Structure: | WOOD W/SUBFLOOR | Foundation: | CONCRETE | | Interior Finish: | DRYWALL PAINT | Plumbing Fixture Cnt: | 9 | | Roof Slope: | 6" IN 12" | Roof Structure/Cover: | CJ ASPHALT |
|
| | Type | Description | Class CD | Sub Class CD | Year Built | Area |
| | BAS | BASE/MAIN FLOOR | 3 | 0 | 1950 | 1583.0 |
| | UPH | HALF STORY | 3 | 0 | 1950 | 256.0 |
| | OWC | OPEN WOOD PORCH W/STEPS/ROOF/C | 3 | 0 | 1950 | 60.0 |
| | OWP | OPEN WOOD PORCH W/STEPS | 3 | 0 | 1950 | 72.0 |
| | UTY | STORAGE/UTILITY | 3 | 0 | 1950 | 200.0 |
Sketch
Property Image
Land
| 1 | 17 | AC (01.01-02.00) | 0.0000 | 0.00 | 0.00 | 0.00 | 1.00 | $290,000 | $0 |
Roll Value History
| 2026 | N/A | N/A | N/A | N/A | N/A |
| 2025 | $304,554 | $290,000 | $0 | $594,554 | $594,554 |
| 2024 | $308,349 | $280,000 | $0 | $588,349 | $588,349 |
| 2023 | $312,143 | $260,000 | $0 | $572,143 | $572,143 |
| 2022 | $286,086 | $250,000 | $0 | $536,086 | $536,086 |
| 2021 | $217,105 | $155,000 | $0 | $372,105 | $372,105 |
| 2020 | $176,120 | $165,000 | $0 | $341,120 | $341,120 |
| 2019 | $131,238 | $200,000 | $0 | $331,238 | $331,238 |
| 2018 | $131,698 | $170,000 | $0 | $301,698 | $301,698 |
| 2017 | $132,620 | $150,000 | $0 | $282,620 | $282,620 |
| 2016 | $110,241 | $115,000 | $0 | $225,241 | $225,241 |
| 2015 | $95,655 | $100,000 | $0 | $195,655 | $195,655 |
| 2014 | $68,614 | $85,000 | $0 | $153,614 | $153,614 |
| 2013 | $70,179 | $85,000 | $0 | $155,179 | $155,179 |
| 2012 | $71,744 | $114,750 | $0 | $186,494 | $186,494 |
| 2011 | $73,308 | $135,000 | $0 | $208,308 | $208,308 |
| 2010 | $83,694 | $135,000 | $0 | $218,694 | $218,694 |
| 2009 | $87,741 | $155,000 | $0 | $242,741 | $242,741 |
| 2008 | $90,409 | $160,000 | $0 | $250,409 | $250,409 |
| 2007 | $92,011 | $160,000 | $0 | $252,011 | $252,011 |
Deed and Sales History
| 1 | 07/20/2021 | WD | Warranty Deed | SKJELSTAD, RALPH G | LEBO, SARAH | | | $806,000.00 | 49330 | 4525298 |
| 2 | 01/15/2004 | WD | Warranty Deed | DEMUTH, HARLAN V | SKJELSTAD, RALPH G | | | $135,000.00 | 40220 | 4088890 |
| 3 | 06/01/1994 | WD | Warranty Deed | LANNING, BILL J | DEMUTH, HARLAN V | | | $80,000.00 | 42440 | 94013623 |
| 4 | 03/01/1988 | QCD | Quit Claim Deed | LANNING, BILL J | LANNING, BILL J | | | $0.00 | 80866 | 88003386 |
| 5 | 02/01/1959 | WD | Warranty Deed | LANNING, BILL | LANNING, BILL J | | | $1,248.00 | 92412 | 89008252 |
| 6 | 01/01/1900 | OTHER | Other - Misc. Documents | Unknown | LANNING, BILL | | | $0.00 | 0 | 0 |
Payout Agreement
| No payout information available.. |