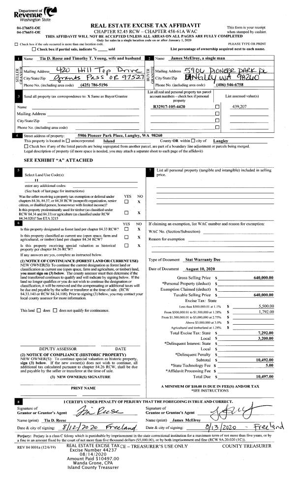
Property
Account |
| Property ID: | 131306 | Abbreviated Legal Description: | 44 - N/2 NW SE SE INCL N20' VAC RD AF#391284 |
| Geographic ID: | R32917-105-4420 | Agent Code: | |
| Type: | Real | | |
| Tax Area: | 712 - APPRAISER-S Whid Schl Dist, outside Langley, improved, greater than 1 acre | Land Use Code | 11 |
| Open Space: | N | DFL | N |
| Historic Property: | N | Remodel Property: | N |
| Multi-Family Redevelopment: | N | | |
| Township: | 29 | Section: | 17 |
| Range: | R3 |
Location |
| Address: | 5906 PIONEER PARK PLACE LANGLEY, WA 98260 | Mapsco: | |
| Neighborhood: | Cycle 4 | Map ID: | 779 |
| Neighborhood CD: | 4 |
Owner |
| Name: | MCELROY, JAMES | Owner ID: | 295635 |
| Mailing Address: | 5906 PIONEER PARK DR LANGLEY, WA 98260 | % Ownership: | 100.0000000000% |
| | | Exemptions: | |
Taxes and Assessment Details
Values
| (+) Improvement Homesite Value: | + | $0 | |
| (+) Improvement Non-Homesite Value: | + | $337,000 | |
| (+) Land Homesite Value: | + | $0 | |
| (+) Land Non-Homesite Value: | + | $380,000 | |
| (+) Curr Use (HS): | + | $0 | $0 |
| (+) Curr Use (NHS): | + | $0 | $0 |
| | | -------------------------- | |
| (=) Market Value: | = | $717,000 | |
| (–) Productivity Loss: | – | $0 | |
| | | -------------------------- | |
| (=) Subtotal: | = | $717,000 | |
| (+) Senior Appraised Value: | + | $0 | |
| (+) Non-Senior Appraised Value: | + | $717,000 | |
| | | -------------------------- | |
| (=) Total Appraised Value: | = | $717,000 | |
| (–) Senior Exemption Loss: | – | $0 | |
| (–) Exemption Loss: | – | $0 | |
| | | -------------------------- | |
| (=) Taxable Value: | = | $717,000 | |
Taxing Jurisdiction
| Owner: | MCELROY, JAMES | | |
| % Ownership: | 100.0000000000% | | |
| Total Value: | $717,000 | | |
| Tax Area: | 712 - APPRAISER-S Whid Schl Dist, outside Langley, improved, greater than 1 acre |
| CF | Conservation Futures | 0.0313996660 | $717,000 | $717,000 | $22.51 | | |
| FIRE3 | Fire & Rescue Dist #3 S Whidbey GEN | 1.2130821753 | $717,000 | $717,000 | $869.78 | | |
| HOBOND | Hospital BOND | 0.1893405597 | $717,000 | $717,000 | $135.76 | | |
| HOGEN | Hospital GEN | 0.3848777722 | $717,000 | $717,000 | $275.96 | | |
| CE | County Current Expense | 0.3674210519 | $717,000 | $717,000 | $263.44 | | |
| CR | County Roads | 0.4614296361 | $717,000 | $717,000 | $330.85 | | |
| ISLANDEMS | Hospital GEN (EMS) | 0.4952018576 | $717,000 | $717,000 | $355.06 | | |
| LIB | Library Sno-Isle GEN | 0.3039084203 | $717,000 | $717,000 | $217.90 | | |
| PORTWHID | Port of S Whidbey GEN | 0.1086004714 | $717,000 | $717,000 | $77.87 | | |
| SCH206BOND | School 206 BOND | 0.5960237832 | $717,000 | $717,000 | $427.35 | | |
| SCH206CAP | School 206 CP | 0.3066144020 | $717,000 | $717,000 | $219.84 | | |
| SCH206MO | School 206 Enrichment | 0.4808755445 | $717,000 | $717,000 | $344.79 | | |
| ST | State School | 1.4761226122 | $717,000 | $717,000 | $1,058.38 | | |
| ST2 | State School Part 2 | 0.7953803475 | $717,000 | $717,000 | $570.29 | | |
| SWHIDPRBD | P & R S Whidbey BOND | 0.0144185398 | $717,000 | $717,000 | $10.34 | | |
| SWHIDPRBD3 | P & R S Whidbey BOND3 | 0.1483535547 | $717,000 | $717,000 | $106.37 | | |
| SWHIDPRMT | P & R S Whidbey GEN | 0.4600000000 | $717,000 | $717,000 | $329.82 | | |
| | Total Tax Rate: | 7.8330503944 | | | | | |
| | | | | Taxes w/Current Exemptions: | $5,616.31 | | |
| | | | | Taxes w/o Exemptions: | $5,616.31 | | |
Improvement / Building
| Improvement #1: | RESIDENTIAL | State Code: | Y | 1521.2 sqft | Value: | $337,000 |
| Bathrooms: | 2 | Bedrooms: | 3 | | Ceiling: | DRYWALL PAINTED | Exterior Wall/Cover: | PLY/HARDBOARD T-111 | | Floor Covering: | CARPET/VINYL 80-20 | Floor Structure: | WOOD W/SUBFLOOR | | Foundation: | CONCRETE | Heating: | WALL HEAT ELECTRIC | | Interior Finish: | DRYWALL PAINT | Plumbing Fixture Cnt: | 10 | | Roof Slope: | 6" IN 12" | Roof Structure/Cover: | CJ ASPHALT |
|
| | Type | Description | Class CD | Sub Class CD | Year Built | Area |
| | BAS | BASE/MAIN FLOOR | 4 | 0 | 1988 | 773.2 |
| | UPS | UPPER STORY | 4 | 0 | 1988 | 748.0 |
| | OWP | OPEN WOOD PORCH W/STEPS | 4 | 0 | 1988 | 30.1 |
| | OWP | OPEN WOOD PORCH W/STEPS | 4 | 0 | 1988 | 473.5 |
| | OWC | OPEN WOOD PORCH W/STEPS/ROOF/C | 4 | 0 | 1988 | 265.2 |
| | DGR | DETACHED GARAGE | 4 | 0 | 1988 | 800.0 |
| | CPD | OPEN CARPORT DIRT FLOOR | 4 | 0 | 1988 | 270.0 |
Sketch
Property Image
Land
| 1 | 32 | AC (03.01-09.99) | 5.0000 | 0.00 | 0.00 | 0.00 | 1.00 | $380,000 | $0 |
Roll Value History
| 2026 | N/A | N/A | N/A | N/A | N/A |
| 2025 | $337,000 | $380,000 | $0 | $717,000 | $717,000 |
| 2024 | $341,099 | $350,000 | $0 | $691,099 | $691,099 |
| 2023 | $345,195 | $330,000 | $0 | $675,195 | $675,195 |
| 2022 | $316,288 | $290,000 | $0 | $606,288 | $606,288 |
| 2021 | $278,261 | $230,000 | $0 | $508,261 | $508,261 |
| 2020 | $249,207 | $190,000 | $0 | $439,207 | $439,207 |
| 2019 | $180,687 | $250,000 | $0 | $430,687 | $430,687 |
| 2018 | $181,242 | $210,000 | $0 | $391,242 | $391,242 |
| 2017 | $182,301 | $190,000 | $0 | $372,301 | $372,301 |
| 2016 | $184,525 | $150,000 | $0 | $334,525 | $334,525 |
| 2015 | $186,748 | $135,000 | $0 | $321,748 | $321,748 |
| 2014 | $167,325 | $125,000 | $0 | $292,325 | $292,325 |
| 2013 | $169,066 | $135,000 | $0 | $304,066 | $304,066 |
| 2012 | $170,807 | $170,000 | $0 | $340,807 | $340,807 |
| 2011 | $172,547 | $170,000 | $0 | $342,547 | $342,547 |
| 2010 | $182,429 | $170,000 | $0 | $352,429 | $352,429 |
| 2009 | $189,859 | $220,000 | $0 | $409,859 | $409,859 |
| 2008 | $187,782 | $250,000 | $0 | $437,782 | $437,782 |
| 2007 | $190,751 | $192,500 | $0 | $383,251 | $383,251 |
Deed and Sales History
| 1 | 08/10/2020 | WD | Warranty Deed | YOUNG, TIMOTHY T | MCELROY, JAMES | | | $640,000.00 | 44237 | 4493869 |
| 2 | 05/20/2008 | WD | Warranty Deed | CARNEGIE TRUSTEE, JOHN W | REESE, TIA D | | | $495,200.00 | 81553 | 4230961 |
| 3 | 04/25/2002 | WD | Warranty Deed | JACOBSON, ERIC K | CARNEGIE TRUSTEE, JOHN W | | | $260,000.00 | 21558 | 4018126 |
| 4 | 03/01/1998 | QCD | Quit Claim Deed | JACOBSON, DAVID B | JACOBSON, ERIC K | | | $90,000.00 | 80963 | 98005408 |
| 5 | 06/01/1996 | DECREE | Divorce Decree/Legal Separation | JACOBSON, DAVID B | JACOBSON, DAVID B | | | $0.00 | 62050 | 0 |
| 6 | 09/01/1992 | DECREE | Divorce Decree/Legal Separation | JACOBSON, DAVID B | JACOBSON, DAVID B | | | $0.00 | 65062 | 92017388 |
| 7 | 02/01/1989 | QCD | Quit Claim Deed | JACOBSON, DAVID B | JACOBSON, DAVID B | | | $0.00 | 90581 | 89002042 |
| 8 | 06/01/1984 | REC | Real Estate Contract | CASPER, ROBERT G | JACOBSON, DAVID B | | | $25,000.00 | 41803 | 426239 |
| 9 | 01/01/1900 | OTHER | Other - Misc. Documents | Unknown | CASPER, ROBERT G | | | $0.00 | 0 | 0 |
Payout Agreement
| No payout information available.. |