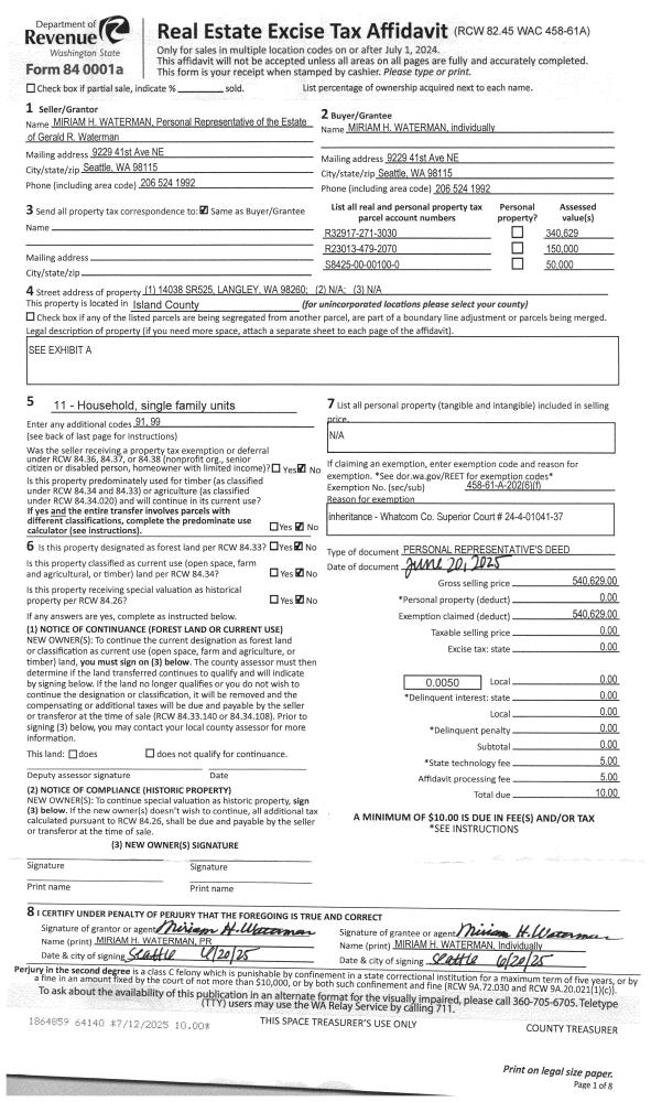
Property
Account |
| Property ID: | 131663 | Abbreviated Legal Description: | 3 - IN S/2 NE: BG INT NLN ST HWY 525 W/WLN NE NELY ALG NLN 700' N22*W TO SLN TR AF#195215 WLY ALG SD SLN TO WLN NE SLY ALG SD WLN TPB DRAINFIELD LOC PT 298-3050 AF#91002927 |
| Geographic ID: | R32917-271-3030 | Agent Code: | |
| Type: | Real | | |
| Tax Area: | 712 - APPRAISER-S Whid Schl Dist, outside Langley, improved, greater than 1 acre | Land Use Code | 11 |
| Open Space: | N | DFL | N |
| Historic Property: | N | Remodel Property: | N |
| Multi-Family Redevelopment: | N | | |
| Township: | 29 | Section: | 17 |
| Range: | R3 |
Location |
| Address: | 14038 SR525 LANGLEY, WA 98260 | Mapsco: | |
| Neighborhood: | Cycle 4 | Map ID: | 781 |
| Neighborhood CD: | 4 |
Owner |
| Name: | WATERMAN, GERALD R | Owner ID: | 188452 |
| Mailing Address: | MIRIAM H WATERMAN 9229 41ST AVE NE SEATTLE, WA 98115-3801 | % Ownership: | 100.0000000000% |
| | | Exemptions: | |
Taxes and Assessment Details
Values
| (+) Improvement Homesite Value: | + | $0 | |
| (+) Improvement Non-Homesite Value: | + | $57,598 | |
| (+) Land Homesite Value: | + | $0 | |
| (+) Land Non-Homesite Value: | + | $290,000 | |
| (+) Curr Use (HS): | + | $0 | $0 |
| (+) Curr Use (NHS): | + | $0 | $0 |
| | | -------------------------- | |
| (=) Market Value: | = | $347,598 | |
| (–) Productivity Loss: | – | $0 | |
| | | -------------------------- | |
| (=) Subtotal: | = | $347,598 | |
| (+) Senior Appraised Value: | + | $0 | |
| (+) Non-Senior Appraised Value: | + | $347,598 | |
| | | -------------------------- | |
| (=) Total Appraised Value: | = | $347,598 | |
| (–) Senior Exemption Loss: | – | $0 | |
| (–) Exemption Loss: | – | $0 | |
| | | -------------------------- | |
| (=) Taxable Value: | = | $347,598 | |
Taxing Jurisdiction
| Owner: | WATERMAN, GERALD R | | |
| % Ownership: | 100.0000000000% | | |
| Total Value: | $347,598 | | |
| Tax Area: | 712 - APPRAISER-S Whid Schl Dist, outside Langley, improved, greater than 1 acre |
| CF | Conservation Futures | 0.0313996660 | $347,598 | $347,598 | $10.91 | | |
| FIRE3 | Fire & Rescue Dist #3 S Whidbey GEN | 1.2130821753 | $347,598 | $347,598 | $421.66 | | |
| HOBOND | Hospital BOND | 0.1893405597 | $347,598 | $347,598 | $65.81 | | |
| HOGEN | Hospital GEN | 0.3848777722 | $347,598 | $347,598 | $133.78 | | |
| CE | County Current Expense | 0.3674210519 | $347,598 | $347,598 | $127.71 | | |
| CR | County Roads | 0.4614296361 | $347,598 | $347,598 | $160.39 | | |
| ISLANDEMS | Hospital GEN (EMS) | 0.4952018576 | $347,598 | $347,598 | $172.13 | | |
| LIB | Library Sno-Isle GEN | 0.3039084203 | $347,598 | $347,598 | $105.64 | | |
| PORTWHID | Port of S Whidbey GEN | 0.1086004714 | $347,598 | $347,598 | $37.75 | | |
| SCH206BOND | School 206 BOND | 0.5960237832 | $347,598 | $347,598 | $207.18 | | |
| SCH206CAP | School 206 CP | 0.3066144020 | $347,598 | $347,598 | $106.58 | | |
| SCH206MO | School 206 Enrichment | 0.4808755445 | $347,598 | $347,598 | $167.15 | | |
| ST | State School | 1.4761226122 | $347,598 | $347,598 | $513.10 | | |
| ST2 | State School Part 2 | 0.7953803475 | $347,598 | $347,598 | $276.47 | | |
| SWHIDPRBD | P & R S Whidbey BOND | 0.0144185398 | $347,598 | $347,598 | $5.01 | | |
| SWHIDPRBD3 | P & R S Whidbey BOND3 | 0.1483535547 | $347,598 | $347,598 | $51.57 | | |
| SWHIDPRMT | P & R S Whidbey GEN | 0.4600000000 | $347,598 | $347,598 | $159.90 | | |
| | Total Tax Rate: | 7.8330503944 | | | | | |
| | | | | Taxes w/Current Exemptions: | $2,722.74 | | |
| | | | | Taxes w/o Exemptions: | $2,722.74 | | |
Improvement / Building
| Improvement #1: | MANUFACTURED HOME | State Code: | Y | 1848.0 sqft | Value: | $57,598 |
| Bathrooms: | 0 | Bedrooms: | 0 | | Ceiling: | PLASTER PAINTED | Cooling: | EVAP NO DUCT | | Exterior Wall/Cover: | VINYL | Floor Covering: | CARPET 100% | | Floor Structure: | SLAB ON GRADE | Foundation: | SLAB | | Heating: | FHA ELECTRIC | Interior Finish: | PLASTER | | Plumbing Fixture Cnt: | 1 | Roof Slope: | FLAT | | Roof Structure/Cover: | CJ ALUMINIUM HEAVY |   |   |
|
| | Type | Description | Class CD | Sub Class CD | Year Built | Area |
| | BAS | BASE/MAIN FLOOR | 3 | 0 | 1978 | 1848.0 |
| | DGR | DETACHED GARAGE | 3 | 0 | 1978 | 600.0 |
| | OWP | OPEN WOOD PORCH W/STEPS | 3 | 0 | 1978 | 30.0 |
| | OWP | OPEN WOOD PORCH W/STEPS | 3 | 0 | 1978 | 72.0 |
Sketch
Property Image
Land
| 1 | 17 | AC (01.01-02.00) | 0.0000 | 0.00 | 0.00 | 0.00 | 1.00 | $290,000 | $0 |
Roll Value History
| 2026 | N/A | N/A | N/A | N/A | N/A |
| 2025 | $57,598 | $290,000 | $0 | $347,598 | $347,598 |
| 2024 | $60,629 | $280,000 | $0 | $340,629 | $340,629 |
| 2023 | $63,660 | $260,000 | $0 | $323,660 | $323,660 |
| 2022 | $60,391 | $250,000 | $0 | $310,391 | $310,391 |
| 2021 | $54,899 | $155,000 | $0 | $209,899 | $209,899 |
| 2020 | $44,032 | $165,000 | $0 | $209,032 | $209,032 |
| 2019 | $36,509 | $200,000 | $0 | $236,509 | $236,509 |
| 2018 | $38,336 | $170,000 | $0 | $208,336 | $208,336 |
| 2017 | $40,161 | $150,000 | $0 | $190,161 | $190,161 |
| 2016 | $41,986 | $135,000 | $0 | $176,986 | $176,986 |
| 2015 | $43,812 | $135,000 | $0 | $178,812 | $178,812 |
| 2014 | $45,414 | $110,500 | $0 | $155,914 | $155,914 |
| 2013 | $47,902 | $110,500 | $0 | $158,402 | $158,402 |
| 2012 | $49,560 | $110,500 | $0 | $160,060 | $160,060 |
| 2011 | $51,218 | $130,000 | $0 | $181,218 | $181,218 |
| 2010 | $51,833 | $130,000 | $0 | $181,833 | $181,833 |
| 2009 | $55,204 | $155,000 | $0 | $210,204 | $210,204 |
| 2008 | $57,510 | $170,000 | $0 | $227,510 | $227,510 |
| 2007 | $59,806 | $135,000 | $0 | $194,806 | $194,806 |
Deed and Sales History
| 1 | 03/16/2005 | WD | Warranty Deed | COLE TRUSTEE, DANIEL S | WATERMAN, GERALD | | | $135,000.00 | 51129 | 4128975 |
| 2 | 08/25/2004 | 5 | DNU - Marriage License/Name Change | COLE, DANIEL S | COLE TRUSTEE, DANIEL S | | | $0.00 | 45137 | 4116952 |
| 3 | 08/20/2002 | WD | Warranty Deed | ARNOLD, MARK & | COLE, DANIEL S | | | $145,000.00 | 23317 | 4029121 |
| 4 | 02/01/1991 | WD | Warranty Deed | O'FARRELL, DOUGLAS D | ARNOLD, MARK & | | | $60,000.00 | 10647 | 91002923 |
| 5 | 05/01/1985 | EXECUTORD | Executor Deed | O'FARRELL, DOUGLAS D | O'FARRELL, DOUGLAS D | | | $0.00 | 51515 | 85006115 |
| 6 | 03/01/1985 | WD | Warranty Deed | MATHENY, JEAN P | O'FARRELL, DOUGLAS D | | | $10,900.00 | 50748 | 85003152 |
| 7 | 01/01/1985 | QCD | Quit Claim Deed | MATHENY, JEAN P | MATHENY, JEAN P | | | $0.00 | 50248 | 85001135 |
| 8 | 07/01/1984 | OTHER | Other - Misc. Documents | PORTER, JEAN P | MATHENY, JEAN P | | | $0.00 | 60710 | 0 |
| 9 | 05/01/1982 | F | Deed In Fulfillment Of Contract | PORTER, RONALD L | PORTER, JEAN P | | | $1.00 | 59480 | 0 |
| 10 | 01/01/1900 | OTHER | Other - Misc. Documents | Unknown | PORTER, RONALD L | | | $0.00 | 0 | 0 |
Payout Agreement
| No payout information available.. |