Property
Account |
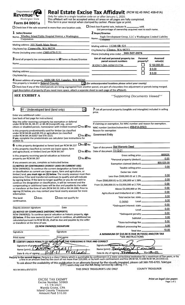
| Property ID: | 131734 | Abbreviated Legal Description: | 57 - S/2 SW NW LY NELY ST HWY 525 CONVEYED TO ST OF WASH BY DEED AF#112484 EX E30' FOR RD EX E185' EX ANY PT LY SLY OF LN BG PT ELN 35' N1*E OF NLN HWY 525 & PT ON WLN OF SD 185' 5' N1* E OF HWY LN TGW:BG NLN HWY 525 & ELN SW NW NWLY CUR/R 586.3' TPB TH R |
| Geographic ID: | R32917-289-1030 | Agent Code: | |
| Type: | Real | | |
| Tax Area: | 719 - APPRAISER-S Whid Schl Dist, outside Langley, vacant & 50 acres or less | Land Use Code | 91 |
| Open Space: | N | DFL | N |
| Historic Property: | N | Remodel Property: | N |
| Multi-Family Redevelopment: | N | | |
| Township: | 29 | Section: | 17 |
| Range: | R3 |
Location |
| Address: | | Mapsco: | |
| Neighborhood: | 41cRR-highway 525 | Map ID: | 780 |
| Neighborhood CD: | 41cRRhw525 |
Owner |
| Name: | EAGLE DEVELOPMENT GROUP, LLC | Owner ID: | 270976 |
| Mailing Address: | 11248 STATE ROUTE 525 CLINTON, WA 98236 | % Ownership: | 100.0000000000% |
| | | Exemptions: | |
Taxes and Assessment Details
Values
| (+) Improvement Homesite Value: | + | $0 | |
| (+) Improvement Non-Homesite Value: | + | $0 | |
| (+) Land Homesite Value: | + | $0 | |
| (+) Land Non-Homesite Value: | + | $240,000 | |
| (+) Curr Use (HS): | + | $0 | $0 |
| (+) Curr Use (NHS): | + | $0 | $0 |
| | | -------------------------- | |
| (=) Market Value: | = | $240,000 | |
| (–) Productivity Loss: | – | $0 | |
| | | -------------------------- | |
| (=) Subtotal: | = | $240,000 | |
| (+) Senior Appraised Value: | + | $0 | |
| (+) Non-Senior Appraised Value: | + | $240,000 | |
| | | -------------------------- | |
| (=) Total Appraised Value: | = | $240,000 | |
| (–) Senior Exemption Loss: | – | $0 | |
| (–) Exemption Loss: | – | $0 | |
| | | -------------------------- | |
| (=) Taxable Value: | = | $240,000 | |
Taxing Jurisdiction
| Owner: | EAGLE DEVELOPMENT GROUP, LLC | | |
| % Ownership: | 100.0000000000% | | |
| Total Value: | $240,000 | | |
| Tax Area: | 719 - APPRAISER-S Whid Schl Dist, outside Langley, vacant & 50 acres or less |
| CF | Conservation Futures | 0.0313996660 | $240,000 | $240,000 | $7.54 | | |
| HOBOND | Hospital BOND | 0.1893405597 | $240,000 | $240,000 | $45.44 | | |
| HOGEN | Hospital GEN | 0.3848777722 | $240,000 | $240,000 | $92.37 | | |
| CE | County Current Expense | 0.3674210519 | $240,000 | $240,000 | $88.18 | | |
| CR | County Roads | 0.4614296361 | $240,000 | $240,000 | $110.74 | | |
| ISLANDEMS | Hospital GEN (EMS) | 0.4952018576 | $240,000 | $240,000 | $118.85 | | |
| LIB | Library Sno-Isle GEN | 0.3039084203 | $240,000 | $240,000 | $72.94 | | |
| PORTWHID | Port of S Whidbey GEN | 0.1086004714 | $240,000 | $240,000 | $26.06 | | |
| SCH206BOND | School 206 BOND | 0.5960237832 | $240,000 | $240,000 | $143.05 | | |
| SCH206CAP | School 206 CP | 0.3066144020 | $240,000 | $240,000 | $73.59 | | |
| SCH206MO | School 206 Enrichment | 0.4808755445 | $240,000 | $240,000 | $115.41 | | |
| ST | State School | 1.4761226122 | $240,000 | $240,000 | $354.27 | | |
| ST2 | State School Part 2 | 0.7953803475 | $240,000 | $240,000 | $190.89 | | |
| SWHIDPRBD | P & R S Whidbey BOND | 0.0144185398 | $240,000 | $240,000 | $3.46 | | |
| SWHIDPRBD3 | P & R S Whidbey BOND3 | 0.1483535547 | $240,000 | $240,000 | $35.60 | | |
| SWHIDPRMT | P & R S Whidbey GEN | 0.4600000000 | $240,000 | $240,000 | $110.40 | | |
| | Total Tax Rate: | 6.6199682191 | | | | | |
| | | | | Taxes w/Current Exemptions: | $1,588.79 | | |
| | | | | Taxes w/o Exemptions: | $1,588.79 | | |
Improvement / Building
Sketch
| No sketches available for this property. |
Property Image
Land
| 1 | 32 | AC (03.01-09.99) | 4.5600 | 198633.60 | 0.00 | 0.00 | 1.00 | $240,000 | $0 |
Roll Value History
| 2026 | N/A | N/A | N/A | N/A | N/A |
| 2025 | $0 | $240,000 | $0 | $240,000 | $240,000 |
| 2024 | $0 | $230,000 | $0 | $230,000 | $230,000 |
| 2023 | $0 | $200,000 | $0 | $200,000 | $200,000 |
| 2022 | $0 | $170,000 | $0 | $170,000 | $170,000 |
| 2021 | $0 | $150,000 | $0 | $150,000 | $150,000 |
| 2020 | $0 | $150,000 | $0 | $150,000 | $0 |
| 2019 | $0 | $135,000 | $0 | $135,000 | $0 |
| 2018 | $0 | $130,000 | $0 | $130,000 | $0 |
| 2017 | $0 | $500,000 | $0 | $500,000 | $0 |
| 2016 | $0 | $500,000 | $0 | $500,000 | $0 |
| 2015 | $0 | $595,901 | $0 | $595,901 | $0 |
| 2014 | $0 | $595,890 | $0 | $595,890 | $0 |
| 2013 | $0 | $595,890 | $0 | $595,890 | $0 |
| 2012 | $0 | $617,739 | $0 | $617,739 | $0 |
| 2011 | $0 | $617,739 | $0 | $617,739 | $0 |
| 2010 | $0 | $617,739 | $0 | $617,739 | $0 |
| 2009 | $0 | $617,739 | $0 | $617,739 | $0 |
| 2008 | $0 | $617,739 | $0 | $617,739 | $0 |
| 2007 | $0 | $617,739 | $0 | $617,739 | $0 |
Deed and Sales History
| 1 | 11/12/2021 | WD | Warranty Deed | WHIDBEY ISLAND PUBLIC HOSPITAL | EAGLE DEVELOPMENT GROUP, LLC | | | $800,525.00 | 50969 | 4534145 |
| 2 | 01/17/2008 | WD | Warranty Deed | GABELEIN, VERLANE A | WHIDBEY ISL PUB HOSPITAL, | | | $1,980,000.00 | 80185 | 4220400 |
| 3 | 09/19/1998 | QCD | Quit Claim Deed | GABELEIN, V., R | GABELEIN, VERLANE A | | | $0.00 | 84134 | 98022424 |
| 4 | 09/01/1995 | WD | Warranty Deed | GABELEIN, VERLANE A | GABELEIN, VERLANE A | | | $138,000.00 | 53244 | 95014907 |
| 5 | 02/01/1995 | QCD | Quit Claim Deed | GABELEIN, VERLANE A | GABELEIN, VERLANE A | | | $0.00 | 50816 | 95004047 |
| 6 | 01/01/1995 | QCD | Quit Claim Deed | GABELEIN, VERLANE A | GABELEIN, VERLANE A | | | $0.00 | 50817 | 95004046 |
| 7 | 06/01/1992 | DECREE | Divorce Decree/Legal Separation | GABELEIN, VERLANE A | GABELEIN, VERLANE A | | | $0.00 | 23991 | 92019422 |
| 8 | 05/01/1986 | QCD | Quit Claim Deed | GABELEIN, VERLANE A | GABELEIN, VERLANE A | | | $0.00 | 61604 | 86007585 |
| 9 | 08/01/1982 | QCD | Quit Claim Deed | GABELEIN, VERLANE A | GABELEIN, VERLANE A | | | $0.00 | 22863 | 403151 |
| 10 | 04/01/1981 | REC | Real Estate Contract | GABELEIN, VERLANE A | GABELEIN, VERLANE A | | | $100,000.00 | 11109 | 381779 |
| 11 | 04/01/1978 | OTHER | Other - Misc. Documents | Unknown | GABELEIN, V., R | | | $34,401.00 | 81542 | 3254980 |
Payout Agreement
| No payout information available.. |