Property
Account |
| Property ID: | 135963 | Abbreviated Legal Description: | 51 - IN N/2 SE NW: BG SWCR N/2 SE NW N75' TPB N75' E580' S75' W580' TPB |
| Geographic ID: | R32923-337-1620 | Agent Code: | |
| Type: | Real | | |
| Tax Area: | 710 - APPRAISER-S Whid Schl Dist, outside Langley, improved & 1 acre or less | Land Use Code | 11 |
| Open Space: | N | DFL | N |
| Historic Property: | N | Remodel Property: | N |
| Multi-Family Redevelopment: | N | | |
| Township: | 29 | Section: | 23 |
| Range: | R3 |
Location |
| Address: | 6147 HARLEY AVE CLINTON, WA 98236 | Mapsco: | |
| Neighborhood: | Cycle 4 | Map ID: | 805 |
| Neighborhood CD: | 4 |
Owner |
| Name: | KIDWELL, DAVID L | Owner ID: | 315900 |
| Mailing Address: | JUSTINA F MACKIE 6147 S HARLEY AVE CLINTON, WA 98236 | % Ownership: | 100.0000000000% |
| | | Exemptions: | |
Taxes and Assessment Details
Values
| (+) Improvement Homesite Value: | + | $0 | |
| (+) Improvement Non-Homesite Value: | + | $283,660 | |
| (+) Land Homesite Value: | + | $0 | |
| (+) Land Non-Homesite Value: | + | $260,000 | |
| (+) Curr Use (HS): | + | $0 | $0 |
| (+) Curr Use (NHS): | + | $0 | $0 |
| | | -------------------------- | |
| (=) Market Value: | = | $543,660 | |
| (–) Productivity Loss: | – | $0 | |
| | | -------------------------- | |
| (=) Subtotal: | = | $543,660 | |
| (+) Senior Appraised Value: | + | $0 | |
| (+) Non-Senior Appraised Value: | + | $543,660 | |
| | | -------------------------- | |
| (=) Total Appraised Value: | = | $543,660 | |
| (–) Senior Exemption Loss: | – | $0 | |
| (–) Exemption Loss: | – | $0 | |
| | | -------------------------- | |
| (=) Taxable Value: | = | $543,660 | |
Taxing Jurisdiction
| Owner: | KIDWELL, DAVID L | | |
| % Ownership: | 100.0000000000% | | |
| Total Value: | $543,660 | | |
| Tax Area: | 710 - APPRAISER-S Whid Schl Dist, outside Langley, improved & 1 acre or less |
| CF | Conservation Futures | 0.0313996660 | $543,660 | $543,660 | $17.07 | | |
| FIRE3 | Fire & Rescue Dist #3 S Whidbey GEN | 1.2130821753 | $543,660 | $543,660 | $659.50 | | |
| HOBOND | Hospital BOND | 0.1893405597 | $543,660 | $543,660 | $102.94 | | |
| HOGEN | Hospital GEN | 0.3848777722 | $543,660 | $543,660 | $209.24 | | |
| CE | County Current Expense | 0.3674210519 | $543,660 | $543,660 | $199.75 | | |
| CR | County Roads | 0.4614296361 | $543,660 | $543,660 | $250.86 | | |
| ISLANDEMS | Hospital GEN (EMS) | 0.4952018576 | $543,660 | $543,660 | $269.22 | | |
| LIB | Library Sno-Isle GEN | 0.3039084203 | $543,660 | $543,660 | $165.22 | | |
| PORTWHID | Port of S Whidbey GEN | 0.1086004714 | $543,660 | $543,660 | $59.04 | | |
| SCH206BOND | School 206 BOND | 0.5960237832 | $543,660 | $543,660 | $324.03 | | |
| SCH206CAP | School 206 CP | 0.3066144020 | $543,660 | $543,660 | $166.69 | | |
| SCH206MO | School 206 Enrichment | 0.4808755445 | $543,660 | $543,660 | $261.43 | | |
| ST | State School | 1.4761226122 | $543,660 | $543,660 | $802.51 | | |
| ST2 | State School Part 2 | 0.7953803475 | $543,660 | $543,660 | $432.42 | | |
| SWHIDPRBD | P & R S Whidbey BOND | 0.0144185398 | $543,660 | $543,660 | $7.84 | | |
| SWHIDPRBD3 | P & R S Whidbey BOND3 | 0.1483535547 | $543,660 | $543,660 | $80.65 | | |
| SWHIDPRMT | P & R S Whidbey GEN | 0.4600000000 | $543,660 | $543,660 | $250.08 | | |
| | Total Tax Rate: | 7.8330503944 | | | | | |
| | | | | Taxes w/Current Exemptions: | $4,258.49 | | |
| | | | | Taxes w/o Exemptions: | $4,258.49 | | |
Improvement / Building
| Improvement #1: | RESIDENTIAL | State Code: | Y | 1306.0 sqft | Value: | $283,660 |
| Bathrooms: | 2 | Bedrooms: | 3 | | Ceiling: | DRYWALL PAINTED | Cooling: | HEAT PUMP/CONV/V | | Exterior Wall/Cover: | CEMENT FIBER | Floor Covering: | SOFTWOOD/VINYL 80-20 | | Floor Structure: | WOOD W/SUBFLOOR | Foundation: | CONCRETE | | Interior Finish: | DRYWALL PAINT | Plumbing Fixture Cnt: | 9 | | Roof Slope: | 5" IN 12" | Roof Structure/Cover: | CJ ASPHALT |
|
| | Type | Description | Class CD | Sub Class CD | Year Built | Area |
| | BAS | BASE/MAIN FLOOR | 3 | 0 | 2014 | 1306.0 |
| | AGR | ATTACHED GARAGE | 3 | 0 | 2014 | 550.0 |
| | OWP | OPEN WOOD PORCH W/STEPS | 3 | 0 | 2014 | 288.0 |
Sketch
Property Image
Land
| 1 | 16 | AC (00.51-01.00) | 0.0000 | 0.00 | 0.00 | 0.00 | 1.00 | $260,000 | $0 |
Roll Value History
| 2026 | N/A | N/A | N/A | N/A | N/A |
| 2025 | $283,660 | $260,000 | $0 | $543,660 | $543,660 |
| 2024 | $286,043 | $250,000 | $0 | $536,043 | $536,043 |
| 2023 | $288,586 | $240,000 | $0 | $528,586 | $528,586 |
| 2022 | $263,327 | $240,000 | $0 | $503,327 | $503,327 |
| 2021 | $230,860 | $160,000 | $0 | $390,860 | $390,860 |
| 2020 | $221,226 | $135,000 | $0 | $356,226 | $356,226 |
| 2019 | $160,597 | $180,000 | $0 | $340,597 | $340,597 |
| 2018 | $161,018 | $150,000 | $0 | $311,018 | $311,018 |
| 2017 | $161,861 | $140,000 | $0 | $301,861 | $301,861 |
| 2016 | $163,549 | $115,000 | $0 | $278,549 | $278,549 |
| 2015 | $165,234 | $100,000 | $0 | $265,234 | $265,234 |
| 2014 | $0 | $65,000 | $0 | $65,000 | $65,000 |
| 2013 | $0 | $65,000 | $0 | $65,000 | $65,000 |
| 2012 | $0 | $65,000 | $0 | $65,000 | $65,000 |
| 2011 | $0 | $65,000 | $0 | $65,000 | $65,000 |
| 2010 | $0 | $65,000 | $0 | $65,000 | $65,000 |
| 2009 | $0 | $80,000 | $0 | $80,000 | $80,000 |
| 2008 | $0 | $92,800 | $0 | $92,800 | $92,800 |
| 2007 | $0 | $92,800 | $0 | $92,800 | $92,800 |
Deed and Sales History
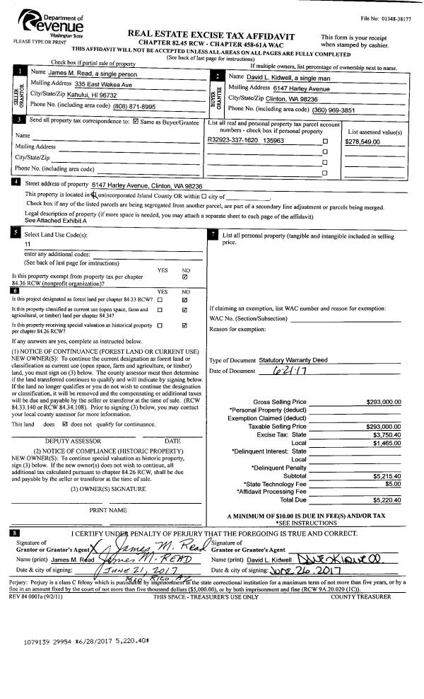
| 1 | 03/20/2025 | QCD | Quit Claim Deed | KIDWELL, DAVID L | KIDWELL, DAVID L | | | $123,599.00 | 62907 | 4583589 |
| 2 | 06/21/2017 | WD | Warranty Deed | READ, JAMES | KIDWELL, DAVID L | | | $293,000.00 | 29954 | 4425163 |
| 3 | 07/16/2015 | QCD | Quit Claim Deed | READ, JAMES | READ, JAMES | | | $0.00 | 29953 | 4425162 |
| 4 | 07/16/2015 | QCD | Quit Claim Deed | STREITLER, JEAN | READ, JAMES | | | $45,000.00 | 21733 | 438714 |
| 5 | 01/21/2010 | TRUSTEED | Trustee's Deed | KLOPFENSTEIN, KEVIN J | STREITLER, JEAN | | | $0.00 | 233 | 4267978 |
| 6 | 03/01/1998 | QCD | Quit Claim Deed | KLOPFENSTEIN, KEVIN J | KLOPFENSTEIN, KEVIN J | | | $0.00 | 80936 | 98005233 |
| 7 | 02/01/1992 | QCD | Quit Claim Deed | CAPES, SHERRY K | KLOPFENSTEIN, KEVIN J | | | $0.00 | 20535 | 92002598 |
| 8 | 06/01/1990 | WD | Warranty Deed | CHURCHILL, JAMES H | CAPES, SHERRY K | | | $13,500.00 | 3562 | 90011535 |
| 9 | 01/01/1900 | OTHER | Other - Misc. Documents | Unknown | CHURCHILL, JAMES H | | | $0.00 | 0 | 0 |
Payout Agreement
| No payout information available.. |