Property
Account |
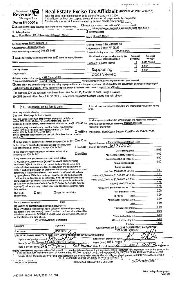
| Property ID: | 136061 | Abbreviated Legal Description: | 30 - SE NE NW EX E10' EX RD |
| Geographic ID: | R32923-419-2280 | Agent Code: | |
| Type: | Real | | |
| Tax Area: | 712 - APPRAISER-S Whid Schl Dist, outside Langley, improved, greater than 1 acre | Land Use Code | 11 |
| Open Space: | N | DFL | N |
| Historic Property: | N | Remodel Property: | N |
| Multi-Family Redevelopment: | N | | |
| Township: | 29 | Section: | 23 |
| Range: | R3 |
Location |
| Address: | 4397 CAMPBELL RD CLINTON, WA 98236 | Mapsco: | |
| Neighborhood: | Cycle 4 | Map ID: | 805 |
| Neighborhood CD: | 4 |
Owner |
| Name: | NELSON, RONN S | Owner ID: | 299703 |
| Mailing Address: | 4397 CAMPBELL RD CLINTON, WA 98236 | % Ownership: | 100.0000000000% |
| | | Exemptions: | |
Taxes and Assessment Details
Values
| (+) Improvement Homesite Value: | + | $0 | |
| (+) Improvement Non-Homesite Value: | + | $294,375 | |
| (+) Land Homesite Value: | + | $0 | |
| (+) Land Non-Homesite Value: | + | $400,000 | |
| (+) Curr Use (HS): | + | $0 | $0 |
| (+) Curr Use (NHS): | + | $0 | $0 |
| | | -------------------------- | |
| (=) Market Value: | = | $694,375 | |
| (–) Productivity Loss: | – | $0 | |
| | | -------------------------- | |
| (=) Subtotal: | = | $694,375 | |
| (+) Senior Appraised Value: | + | $0 | |
| (+) Non-Senior Appraised Value: | + | $694,375 | |
| | | -------------------------- | |
| (=) Total Appraised Value: | = | $694,375 | |
| (–) Senior Exemption Loss: | – | $0 | |
| (–) Exemption Loss: | – | $0 | |
| | | -------------------------- | |
| (=) Taxable Value: | = | $694,375 | |
Taxing Jurisdiction
| Owner: | NELSON, RONN S | | |
| % Ownership: | 100.0000000000% | | |
| Total Value: | $694,375 | | |
| Tax Area: | 712 - APPRAISER-S Whid Schl Dist, outside Langley, improved, greater than 1 acre |
| CF | Conservation Futures | 0.0313996660 | $694,375 | $694,375 | $21.80 | | |
| FIRE3 | Fire & Rescue Dist #3 S Whidbey GEN | 1.2130821753 | $694,375 | $694,375 | $842.33 | | |
| HOBOND | Hospital BOND | 0.1893405597 | $694,375 | $694,375 | $131.47 | | |
| HOGEN | Hospital GEN | 0.3848777722 | $694,375 | $694,375 | $267.25 | | |
| CE | County Current Expense | 0.3674210519 | $694,375 | $694,375 | $255.13 | | |
| CR | County Roads | 0.4614296361 | $694,375 | $694,375 | $320.41 | | |
| ISLANDEMS | Hospital GEN (EMS) | 0.4952018576 | $694,375 | $694,375 | $343.86 | | |
| LIB | Library Sno-Isle GEN | 0.3039084203 | $694,375 | $694,375 | $211.03 | | |
| PORTWHID | Port of S Whidbey GEN | 0.1086004714 | $694,375 | $694,375 | $75.41 | | |
| SCH206BOND | School 206 BOND | 0.5960237832 | $694,375 | $694,375 | $413.86 | | |
| SCH206CAP | School 206 CP | 0.3066144020 | $694,375 | $694,375 | $212.91 | | |
| SCH206MO | School 206 Enrichment | 0.4808755445 | $694,375 | $694,375 | $333.91 | | |
| ST | State School | 1.4761226122 | $694,375 | $694,375 | $1,024.98 | | |
| ST2 | State School Part 2 | 0.7953803475 | $694,375 | $694,375 | $552.29 | | |
| SWHIDPRBD | P & R S Whidbey BOND | 0.0144185398 | $694,375 | $694,375 | $10.01 | | |
| SWHIDPRBD3 | P & R S Whidbey BOND3 | 0.1483535547 | $694,375 | $694,375 | $103.01 | | |
| SWHIDPRMT | P & R S Whidbey GEN | 0.4600000000 | $694,375 | $694,375 | $319.41 | | |
| | Total Tax Rate: | 7.8330503944 | | | | | |
| | | | | Taxes w/Current Exemptions: | $5,439.07 | | |
| | | | | Taxes w/o Exemptions: | $5,439.07 | | |
Improvement / Building
| Improvement #1: | RESIDENTIAL | State Code: | Y | 2030.0 sqft | Value: | $294,375 |
| Bathrooms: | 2 | Bedrooms: | 3 | | Ceiling: | DRYWALL PAINTED | Exterior Wall/Cover: | WOOD SIDING | | Floor Covering: | VINYL TILE/CARP 20-80 | Floor Structure: | WOOD W/SUBFLOOR | | Foundation: | CONCRETE | Heating: | FHA GAS | | Interior Finish: | DRYWALL PAINT | Plumbing Fixture Cnt: | 9 | | Roof Slope: | 5" IN 12" | Roof Structure/Cover: | CJ ASPHALT |
|
| | Type | Description | Class CD | Sub Class CD | Year Built | Area |
| | BAS | BASE/MAIN FLOOR | 3 | 0 | 1994 | 2030.0 |
| | OP1 | OPEN PORCH SLAB | 3 | 0 | 1994 | 510.0 |
| | OP3 | OPEN PORCH W/ROOF | 3 | 0 | 1994 | 114.0 |
| | oPOL | POLE BARN | 3 | 0 | 1994 | 0.0 |
Sketch
Property Image
Land
| 1 | 35 | AC (10.00-30.99) | 0.0000 | 0.00 | 0.00 | 0.00 | 1.00 | $400,000 | $0 |
Roll Value History
| 2026 | N/A | N/A | N/A | N/A | N/A |
| 2025 | $294,375 | $400,000 | $0 | $694,375 | $694,375 |
| 2024 | $297,961 | $360,000 | $0 | $657,961 | $657,961 |
| 2023 | $301,549 | $360,000 | $0 | $661,549 | $661,549 |
| 2022 | $278,288 | $350,000 | $0 | $628,288 | $628,288 |
| 2021 | $247,531 | $250,000 | $0 | $497,531 | $497,531 |
| 2020 | $240,056 | $250,000 | $0 | $490,056 | $490,056 |
| 2019 | $190,238 | $300,000 | $0 | $490,238 | $490,238 |
| 2018 | $190,755 | $245,000 | $0 | $435,755 | $435,755 |
| 2017 | $191,790 | $200,000 | $0 | $391,790 | $391,790 |
| 2016 | $193,861 | $165,000 | $0 | $358,861 | $358,861 |
| 2015 | $195,930 | $165,000 | $0 | $360,930 | $360,930 |
| 2014 | $198,001 | $155,000 | $0 | $353,001 | $353,001 |
| 2013 | $200,714 | $125,000 | $0 | $325,714 | $325,714 |
| 2012 | $202,783 | $150,000 | $0 | $352,783 | $352,783 |
| 2011 | $204,853 | $150,000 | $0 | $354,853 | $354,853 |
| 2010 | $209,882 | $150,000 | $0 | $359,882 | $359,882 |
| 2009 | $218,850 | $180,000 | $0 | $398,850 | $398,850 |
| 2008 | $214,986 | $203,000 | $0 | $417,986 | $417,986 |
| 2007 | $218,519 | $203,000 | $0 | $421,519 | $421,519 |
Deed and Sales History
| 1 | 06/07/2021 | PRD | Personal Representatives Deed | NELSON, RONN S & PEGGY L | NELSON, RONN S | | | $0.00 | 48591 | 4521343 |
| 2 | 03/01/1992 | WD | Warranty Deed | RICE, WILLIAM | NELSON, RONN S | | | $68,000.00 | 20907 | 92004633 |
| 3 | 12/01/1980 | EXECUTORD | Executor Deed | LYNETTE, ROBERT & | RICE, WILLIAM | | | $40,000.00 | 10020 | 377957 |
| 4 | 01/01/1900 | OTHER | Other - Misc. Documents | Unknown | LYNETTE, ROBERT & | | | $0.00 | 0 | 0 |
Payout Agreement
| No payout information available.. |