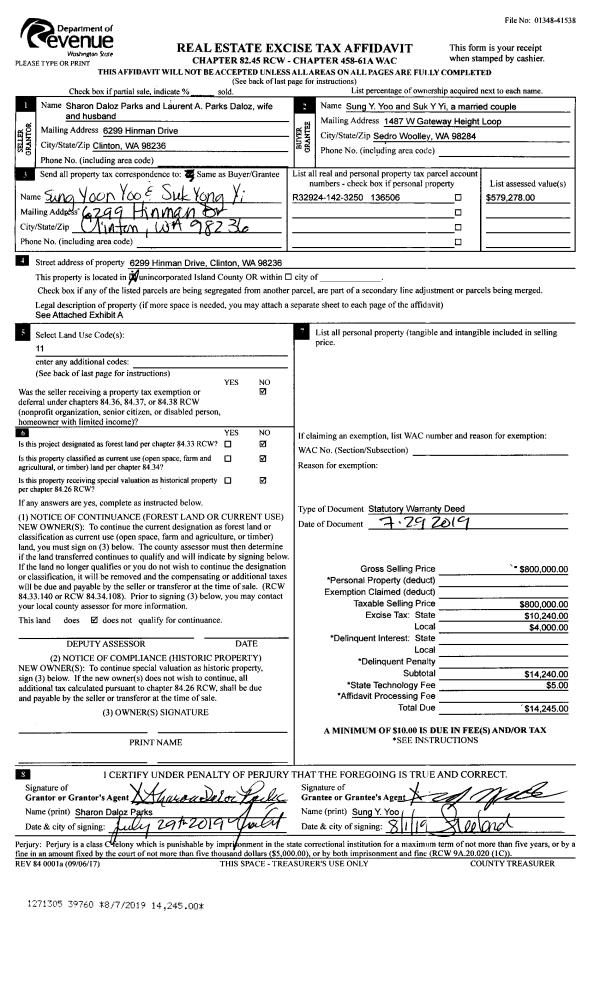
Property
Account |
| Property ID: | 136506 | Abbreviated Legal Description: | 50 - IN SE: BG NWCR LOT 11 CLINTON HGTS #1 S69*W290' S20*E184.49' N88*E163.36' N2*W130.74' N81*E97.99' N20*W135.64' TPB TGW EZ LOT A SP 75-79 |
| Geographic ID: | R32924-142-3250 | Agent Code: | |
| Type: | Real | | |
| Tax Area: | 722 - APPRAISER-S Whid Schl Dist, Special District, improved, greater than 1 acre | Land Use Code | 11 |
| Open Space: | N | DFL | N |
| Historic Property: | N | Remodel Property: | N |
| Multi-Family Redevelopment: | N | | |
| Township: | 29 | Section: | 24 |
| Range: | R3 |
Location |
| Address: | 6299 HINMAN DR CLINTON, WA 98236 | Mapsco: | |
| Neighborhood: | Cycle 4 | Map ID: | 808 |
| Neighborhood CD: | 4 |
Owner |
| Name: | MATTOON, CARL VINCENT | Owner ID: | 308958 |
| Mailing Address: | RENE ANNE MATTOON 6299 HINMAN DR CLINTON, WA 98236 | % Ownership: | 100.0000000000% |
| | | Exemptions: | |
Taxes and Assessment Details
Values
| (+) Improvement Homesite Value: | + | $0 | |
| (+) Improvement Non-Homesite Value: | + | $580,609 | |
| (+) Land Homesite Value: | + | $0 | |
| (+) Land Non-Homesite Value: | + | $370,000 | |
| (+) Curr Use (HS): | + | $0 | $0 |
| (+) Curr Use (NHS): | + | $0 | $0 |
| | | -------------------------- | |
| (=) Market Value: | = | $950,609 | |
| (–) Productivity Loss: | – | $0 | |
| | | -------------------------- | |
| (=) Subtotal: | = | $950,609 | |
| (+) Senior Appraised Value: | + | $0 | |
| (+) Non-Senior Appraised Value: | + | $950,609 | |
| | | -------------------------- | |
| (=) Total Appraised Value: | = | $950,609 | |
| (–) Senior Exemption Loss: | – | $0 | |
| (–) Exemption Loss: | – | $0 | |
| | | -------------------------- | |
| (=) Taxable Value: | = | $950,609 | |
Taxing Jurisdiction
| Owner: | MATTOON, CARL VINCENT | | |
| % Ownership: | 100.0000000000% | | |
| Total Value: | $950,609 | | |
| Tax Area: | 722 - APPRAISER-S Whid Schl Dist, Special District, improved, greater than 1 acre |
| CF | Conservation Futures | 0.0313996660 | $950,609 | $950,609 | $29.85 | | |
| FIRE3 | Fire & Rescue Dist #3 S Whidbey GEN | 1.2130821753 | $950,609 | $950,609 | $1,153.17 | | |
| HOBOND | Hospital BOND | 0.1893405597 | $950,609 | $950,609 | $179.99 | | |
| HOGEN | Hospital GEN | 0.3848777722 | $950,609 | $950,609 | $365.87 | | |
| CE | County Current Expense | 0.3674210519 | $950,609 | $950,609 | $349.27 | | |
| CR | County Roads | 0.4614296361 | $950,609 | $950,609 | $438.64 | | |
| ISLANDEMS | Hospital GEN (EMS) | 0.4952018576 | $950,609 | $950,609 | $470.74 | | |
| LIB | Library Sno-Isle GEN | 0.3039084203 | $950,609 | $950,609 | $288.90 | | |
| PORTWHID | Port of S Whidbey GEN | 0.1086004714 | $950,609 | $950,609 | $103.24 | | |
| SCH206BOND | School 206 BOND | 0.5960237832 | $950,609 | $950,609 | $566.59 | | |
| SCH206CAP | School 206 CP | 0.3066144020 | $950,609 | $950,609 | $291.47 | | |
| SCH206MO | School 206 Enrichment | 0.4808755445 | $950,609 | $950,609 | $457.12 | | |
| ST | State School | 1.4761226122 | $950,609 | $950,609 | $1,403.22 | | |
| ST2 | State School Part 2 | 0.7953803475 | $950,609 | $950,609 | $756.10 | | |
| SWHIDPRBD | P & R S Whidbey BOND | 0.0144185398 | $950,609 | $950,609 | $13.71 | | |
| SWHIDPRBD3 | P & R S Whidbey BOND3 | 0.1483535547 | $950,609 | $950,609 | $141.03 | | |
| SWHIDPRMT | P & R S Whidbey GEN | 0.4600000000 | $950,609 | $950,609 | $437.28 | | |
| | Total Tax Rate: | 7.8330503944 | | | | | |
| | | | | Taxes w/Current Exemptions: | $7,446.19 | | |
| | | | | Taxes w/o Exemptions: | $7,446.19 | | |
Improvement / Building
| Improvement #1: | RESIDENTIAL | State Code: | Y | 3114.0 sqft | Value: | $580,609 |
| Bathrooms: | 2.5 | Bedrooms: | 4 | | Ceiling: | DRYWALL PAINTED | Cooling: | HEAT PUMP/CONV/V | | Exterior Wall/Cover: | WOOD SIDING | Floor Covering: | VINYL/HARDWOOD 20-80 | | Floor Structure: | WOOD W/SUBFLOOR | Foundation: | CONCRETE | | Interior Finish: | DRYWALL PAINT | Plumbing Fixture Cnt: | 12 | | Roof Slope: | 12" IN 12" | Roof Structure/Cover: | CJ ASPHALT |
|
| | Type | Description | Class CD | Sub Class CD | Year Built | Area |
| | BAS | BASE/MAIN FLOOR | 4 | 0 | 1976 | 1878.0 |
| | OP2 | OPEN PORCH W/STEPS | 4 | 0 | 1976 | 78.0 |
| | OP4 | OPEN PORCH W/CEILING-ROOF | 4 | 0 | 1976 | 88.0 |
| | OP4 | OPEN PORCH W/CEILING-ROOF | 4 | 0 | 1976 | 56.0 |
| | DGR | DETACHED GARAGE | 4 | 0 | 1976 | 552.0 |
| | UPS | UPPER STORY | 4 | 0 | 1976 | 1236.0 |
| | OWP | OPEN WOOD PORCH W/STEPS | 4 | 0 | 1976 | 344.2 |
| | ENP | ENCLOSED PORCH | 4 | 0 | 1976 | 290.0 |
Sketch
Property Image
Land
| 1 | 17 | AC (01.01-02.00) | 1.1900 | 51836.40 | 0.00 | 0.00 | 1.00 | $370,000 | $0 |
Roll Value History
| 2026 | N/A | N/A | N/A | N/A | N/A |
| 2025 | $580,609 | $370,000 | $0 | $950,609 | $950,609 |
| 2024 | $587,754 | $350,000 | $0 | $937,754 | $937,754 |
| 2023 | $594,901 | $310,000 | $0 | $904,901 | $904,901 |
| 2022 | $545,164 | $280,000 | $0 | $825,164 | $825,164 |
| 2021 | $479,679 | $260,000 | $0 | $739,679 | $739,679 |
| 2020 | $436,328 | $230,000 | $0 | $666,328 | $666,328 |
| 2019 | $328,269 | $300,000 | $0 | $628,269 | $628,269 |
| 2018 | $329,278 | $250,000 | $0 | $579,278 | $579,278 |
| 2017 | $331,295 | $250,000 | $0 | $581,295 | $581,295 |
| 2016 | $335,336 | $150,000 | $0 | $485,336 | $485,336 |
| 2015 | $339,375 | $150,000 | $0 | $489,375 | $489,375 |
| 2014 | $342,394 | $150,000 | $0 | $492,394 | $492,394 |
| 2013 | $346,919 | $150,000 | $0 | $496,919 | $496,919 |
| 2012 | $351,447 | $165,000 | $0 | $516,447 | $516,447 |
| 2011 | $355,974 | $175,000 | $0 | $530,974 | $530,974 |
| 2010 | $369,686 | $175,000 | $0 | $544,686 | $544,686 |
| 2009 | $385,611 | $200,000 | $0 | $585,611 | $585,611 |
| 2008 | $381,219 | $200,000 | $0 | $581,219 | $581,219 |
| 2007 | $354,780 | $200,000 | $0 | $554,780 | $554,780 |
Deed and Sales History
| 1 | 05/24/2023 | WD | Warranty Deed | YOO, SUNG YOON | MATTOON, CARL VINCENT | | | $805,000.00 | 56994 | 4561019 |
| 2 | 07/29/2019 | WD | Warranty Deed | PARKS, SHARON D | YOO, SUNG YOON | | | $800,000.00 | 39760 | 4468866 |
| 3 | 09/01/1996 | WD | Warranty Deed | THOMPSON, FRANK J | PARKS, SHARON D | | | $290,000.00 | 63220 | 96015705 |
| 4 | 11/01/1989 | WD | Warranty Deed | HEBERT, HEWITT A | THOMPSON, FRANK J | | | $295,500.00 | 95530 | 89017704 |
| 5 | 11/01/1977 | TRUSTEED | Trustee's Deed | NICHELIN, WARREN B | HEBERT, HEWITT A | | | $0.00 | 74773 | 0 |
| 6 | 01/01/1900 | OTHER | Other - Misc. Documents | Unknown | NICHELIN, WARREN B | | | $0.00 | 0 | 0 |
Payout Agreement
| No payout information available.. |