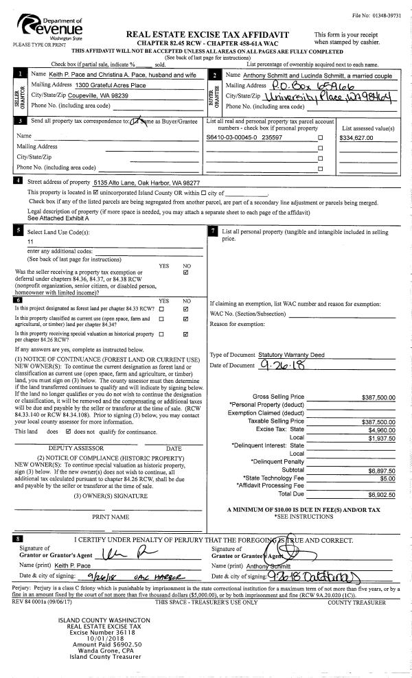
Property
Account |
| Property ID: | 137220 | Abbreviated Legal Description: | 57 - IN GL4: BG MC SEC 19 & 24 N42*W1024' TPB N42*W100' S47*W TO CO RD S38*E100' N47*E TPB TGW TIDES |
| Geographic ID: | R32924-346-4320 | Agent Code: | |
| Type: | Real | | |
| Tax Area: | 720 - APPRAISER-S Whid Schl Dist, Special District, improved & less than 1 acre | Land Use Code | 11 |
| Open Space: | N | DFL | N |
| Historic Property: | N | Remodel Property: | N |
| Multi-Family Redevelopment: | N | | |
| Township: | 29 | Section: | 24 |
| Range: | R3 |
Location |
| Address: | 6160 BRIGHTON BEACH RD CLINTON, WA 98236 | Mapsco: | |
| Neighborhood: | Cycle 4 | Map ID: | 810 |
| Neighborhood CD: | 4 |
Owner |
| Name: | ROETHLISBERGER JR TTEE, JOHN R | Owner ID: | 287973 |
| Mailing Address: | PATRICIA G ROETHLISBERGER, TTEE PO BOX 585 CLINTON, WA 98236 | % Ownership: | 100.0000000000% |
| | | Exemptions: | |
Taxes and Assessment Details
Values
| (+) Improvement Homesite Value: | + | $0 | |
| (+) Improvement Non-Homesite Value: | + | $487,241 | |
| (+) Land Homesite Value: | + | $0 | |
| (+) Land Non-Homesite Value: | + | $801,000 | |
| (+) Curr Use (HS): | + | $0 | $0 |
| (+) Curr Use (NHS): | + | $0 | $0 |
| | | -------------------------- | |
| (=) Market Value: | = | $1,288,241 | |
| (–) Productivity Loss: | – | $0 | |
| | | -------------------------- | |
| (=) Subtotal: | = | $1,288,241 | |
| (+) Senior Appraised Value: | + | $0 | |
| (+) Non-Senior Appraised Value: | + | $1,288,241 | |
| | | -------------------------- | |
| (=) Total Appraised Value: | = | $1,288,241 | |
| (–) Senior Exemption Loss: | – | $0 | |
| (–) Exemption Loss: | – | $0 | |
| | | -------------------------- | |
| (=) Taxable Value: | = | $1,288,241 | |
Taxing Jurisdiction
| Owner: | ROETHLISBERGER JR TTEE, JOHN R | | |
| % Ownership: | 100.0000000000% | | |
| Total Value: | $1,288,241 | | |
| Tax Area: | 720 - APPRAISER-S Whid Schl Dist, Special District, improved & less than 1 acre |
| CF | Conservation Futures | 0.0313996660 | $1,288,241 | $1,288,241 | $40.45 | | |
| FIRE3 | Fire & Rescue Dist #3 S Whidbey GEN | 1.2130821753 | $1,288,241 | $1,288,241 | $1,562.74 | | |
| HOBOND | Hospital BOND | 0.1893405597 | $1,288,241 | $1,288,241 | $243.92 | | |
| HOGEN | Hospital GEN | 0.3848777722 | $1,288,241 | $1,288,241 | $495.82 | | |
| CE | County Current Expense | 0.3674210519 | $1,288,241 | $1,288,241 | $473.33 | | |
| CR | County Roads | 0.4614296361 | $1,288,241 | $1,288,241 | $594.43 | | |
| ISLANDEMS | Hospital GEN (EMS) | 0.4952018576 | $1,288,241 | $1,288,241 | $637.94 | | |
| LIB | Library Sno-Isle GEN | 0.3039084203 | $1,288,241 | $1,288,241 | $391.51 | | |
| PORTWHID | Port of S Whidbey GEN | 0.1086004714 | $1,288,241 | $1,288,241 | $139.90 | | |
| SCH206BOND | School 206 BOND | 0.5960237832 | $1,288,241 | $1,288,241 | $767.82 | | |
| SCH206CAP | School 206 CP | 0.3066144020 | $1,288,241 | $1,288,241 | $394.99 | | |
| SCH206MO | School 206 Enrichment | 0.4808755445 | $1,288,241 | $1,288,241 | $619.48 | | |
| ST | State School | 1.4761226122 | $1,288,241 | $1,288,241 | $1,901.60 | | |
| ST2 | State School Part 2 | 0.7953803475 | $1,288,241 | $1,288,241 | $1,024.64 | | |
| SWHIDPRBD | P & R S Whidbey BOND | 0.0144185398 | $1,288,241 | $1,288,241 | $18.57 | | |
| SWHIDPRBD3 | P & R S Whidbey BOND3 | 0.1483535547 | $1,288,241 | $1,288,241 | $191.12 | | |
| SWHIDPRMT | P & R S Whidbey GEN | 0.4600000000 | $1,288,241 | $1,288,241 | $592.59 | | |
| | Total Tax Rate: | 7.8330503944 | | | | | |
| | | | | Taxes w/Current Exemptions: | $10,090.85 | | |
| | | | | Taxes w/o Exemptions: | $10,090.85 | | |
Improvement / Building
| Improvement #1: | RESIDENTIAL | State Code: | Y | 606.0 sqft | Value: | $109,228 |
| Bathrooms: | 1 | Bedrooms: | 1 | | Ceiling: | TONGUE & GROOVE | Exterior Wall/Cover: | WOOD SIDING | | Floor Covering: | CARPET/VINYL 60-40 | Floor Structure: | WOOD W/SUBFLOOR | | Foundation: | CONCRETE | Heating: | BASEBOARD ELECTRIC | | Interior Finish: | DRYWALL PAINT | Plumbing Fixture Cnt: | 6 | | Roof Slope: | 8" IN 12" | Roof Structure/Cover: | CJ ASPHALT |
|
| | Type | Description | Class CD | Sub Class CD | Year Built | Area |
| | BAS | BASE/MAIN FLOOR | 3 | 0 | 1947 | 606.0 |
| | BGR | BASEMENT GARAGE | 3 | 0 | 1947 | 462.0 |
| | OWP | OPEN WOOD PORCH W/STEPS | 3 | 0 | 1947 | 238.0 |
| Improvement #2: | RESIDENTIAL | State Code: | Y | 2228.0 sqft | Value: | $378,013 |
| Bathrooms: | 2 | Bedrooms: | 2 | | Ceiling: | TONGUE & GROOVE | Exterior Wall/Cover: | WOOD SIDING | | Floor Covering: | HARDWOOD/CARP 80-20 | Floor Structure: | WOOD W/SUBFLOOR | | Foundation: | CONCRETE | Heating: | BASEBOARD ELECTRIC | | Interior Finish: | DRYWALL PAINT | Plumbing Fixture Cnt: | 10 | | Roof Slope: | 5" IN 12" | Roof Structure/Cover: | CJ ASPHALT |
|
| | Type | Description | Class CD | Sub Class CD | Year Built | Area |
| | BAS | BASE/MAIN FLOOR | 4 | 0 | 1968 | 1724.0 |
| | OWP | OPEN WOOD PORCH W/STEPS | 4 | 0 | 1968 | 296.0 |
| | OWP | OPEN WOOD PORCH W/STEPS | 4 | 0 | 1968 | 1210.6 |
| | OWP | OPEN WOOD PORCH W/STEPS | 4 | 0 | 1968 | 24.0 |
| | OWR | OPEN WOOD PORCH W/STEPS/ROOF | 4 | 0 | 1968 | 50.0 |
| | UPH | HALF STORY | 4 | 0 | 1968 | 504.0 |
Sketch
Property Image
Land
| 1 | LB | LOW BANK | 0.7800 | 33976.80 | 100.00 | 0.00 | 1.00 | $800,000 | $0 |
| 2 | 55 | TIDES | 0.0000 | 0.00 | 100.00 | 0.00 | 1.00 | $1,000 | $0 |
Roll Value History
| 2026 | N/A | N/A | N/A | N/A | N/A |
| 2025 | $487,241 | $801,000 | $0 | $1,288,241 | $1,288,241 |
| 2024 | $503,690 | $776,000 | $0 | $1,279,690 | $1,279,690 |
| 2023 | $510,797 | $776,000 | $0 | $1,286,797 | $1,286,797 |
| 2022 | $468,974 | $726,000 | $0 | $1,194,974 | $1,194,974 |
| 2021 | $413,395 | $521,000 | $0 | $934,395 | $934,395 |
| 2020 | $358,720 | $521,000 | $0 | $879,720 | $879,720 |
| 2019 | $268,123 | $481,000 | $0 | $749,123 | $749,123 |
| 2018 | $269,171 | $401,000 | $0 | $670,171 | $670,171 |
| 2017 | $271,274 | $401,000 | $0 | $672,274 | $672,274 |
| 2016 | $275,477 | $401,000 | $0 | $676,477 | $676,477 |
| 2015 | $279,678 | $401,000 | $0 | $680,678 | $680,678 |
| 2014 | $262,636 | $401,000 | $0 | $663,636 | $663,636 |
| 2013 | $266,788 | $435,948 | $0 | $702,736 | $702,736 |
| 2012 | $270,936 | $435,948 | $0 | $706,884 | $706,884 |
| 2011 | $275,086 | $512,704 | $0 | $787,790 | $787,790 |
| 2010 | $293,877 | $512,704 | $0 | $806,581 | $806,581 |
| 2009 | $306,696 | $640,630 | $0 | $947,326 | $947,326 |
| 2008 | $260,659 | $696,250 | $0 | $956,909 | $956,909 |
| 2007 | $264,538 | $695,550 | $0 | $960,088 | $960,088 |
Deed and Sales History
| 1 | 11/13/2018 | QCD | Quit Claim Deed | ROETHLISBERGER JR, JOHN | ROETHLISBERGER JR TTEE, JOHN R | | | $0.00 | 36721 | 4455308 |
| 2 | 06/17/2004 | WD | Warranty Deed | MYKUT, MARGARET C | ROETHLISBERGER JR, JOHN | | | $727,000.00 | 42680 | 4104364 |
| 3 | 08/01/1973 | TRUSTEED | Trustee's Deed | MYKUT, MARGARET C | MYKUT, MARGARET C | | | $0.00 | 48613 | 0 |
| 4 | 05/01/1973 | WD | Warranty Deed | Unknown | MYKUT, MARGARET C | | | $0.00 | 48614 | 0 |
Payout Agreement
| No payout information available.. |