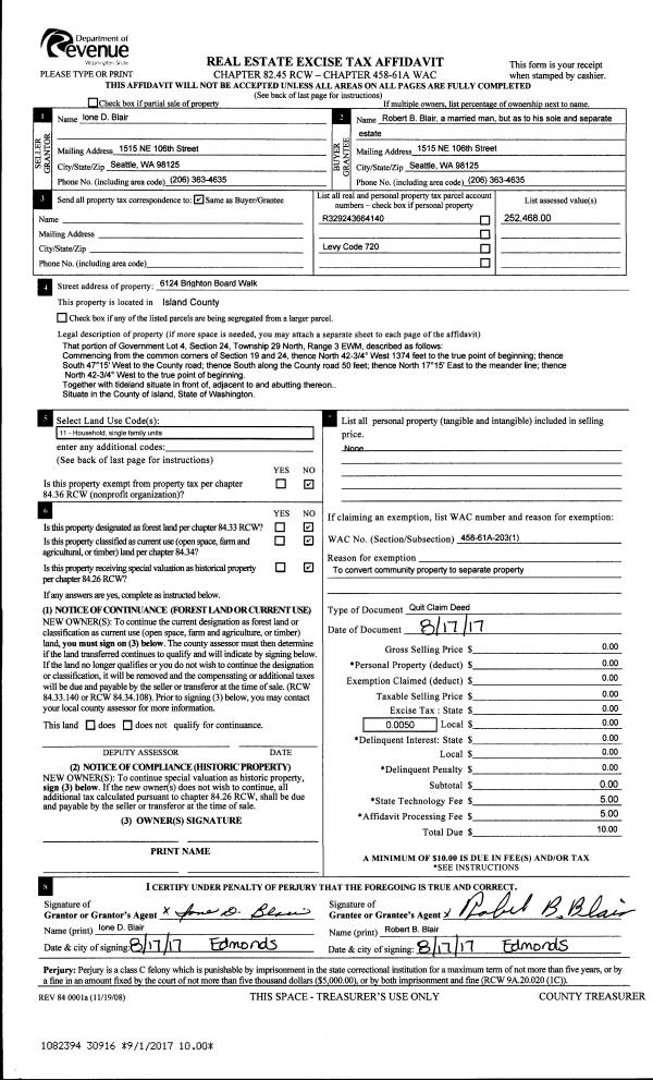
Property
Account |
| Property ID: | 137300 | Abbreviated Legal Description: | 48 - BG MC SEC 19-29-4E & SEC 24-29-3E N42-3/4*W1374' TPB S47*W TO RD S ALG RD 50' N47*E TO ML N42-3/4*W TPB INCL ADJ TIDES |
| Geographic ID: | R32924-366-4140 | Agent Code: | |
| Type: | Real | | |
| Tax Area: | 720 - APPRAISER-S Whid Schl Dist, Special District, improved & less than 1 acre | Land Use Code | 11 |
| Open Space: | N | DFL | N |
| Historic Property: | N | Remodel Property: | N |
| Multi-Family Redevelopment: | N | | |
| Township: | 29 | Section: | 24 |
| Range: | R3 |
Location |
| Address: | 6124 BRIGHTON BOARD WALK CLINTON, WA 98236 | Mapsco: | |
| Neighborhood: | Cycle 4 | Map ID: | 810 |
| Neighborhood CD: | 4 |
Owner |
| Name: | BLAIR, ROBERT B | Owner ID: | 281745 |
| Mailing Address: | 732 RUCKER AVE EVERETT, WA 98201 | % Ownership: | 100.0000000000% |
| | | Exemptions: | |
Taxes and Assessment Details
Values
| (+) Improvement Homesite Value: | + | $0 | |
| (+) Improvement Non-Homesite Value: | + | $82,153 | |
| (+) Land Homesite Value: | + | $0 | |
| (+) Land Non-Homesite Value: | + | $550,500 | |
| (+) Curr Use (HS): | + | $0 | $0 |
| (+) Curr Use (NHS): | + | $0 | $0 |
| | | -------------------------- | |
| (=) Market Value: | = | $632,653 | |
| (–) Productivity Loss: | – | $0 | |
| | | -------------------------- | |
| (=) Subtotal: | = | $632,653 | |
| (+) Senior Appraised Value: | + | $0 | |
| (+) Non-Senior Appraised Value: | + | $632,653 | |
| | | -------------------------- | |
| (=) Total Appraised Value: | = | $632,653 | |
| (–) Senior Exemption Loss: | – | $0 | |
| (–) Exemption Loss: | – | $0 | |
| | | -------------------------- | |
| (=) Taxable Value: | = | $632,653 | |
Taxing Jurisdiction
| Owner: | BLAIR, ROBERT B | | |
| % Ownership: | 100.0000000000% | | |
| Total Value: | $632,653 | | |
| Tax Area: | 720 - APPRAISER-S Whid Schl Dist, Special District, improved & less than 1 acre |
| CF | Conservation Futures | 0.0313996660 | $632,653 | $632,653 | $19.87 | | |
| FIRE3 | Fire & Rescue Dist #3 S Whidbey GEN | 1.2130821753 | $632,653 | $632,653 | $767.46 | | |
| HOBOND | Hospital BOND | 0.1893405597 | $632,653 | $632,653 | $119.79 | | |
| HOGEN | Hospital GEN | 0.3848777722 | $632,653 | $632,653 | $243.49 | | |
| CE | County Current Expense | 0.3674210519 | $632,653 | $632,653 | $232.45 | | |
| CR | County Roads | 0.4614296361 | $632,653 | $632,653 | $291.92 | | |
| ISLANDEMS | Hospital GEN (EMS) | 0.4952018576 | $632,653 | $632,653 | $313.29 | | |
| LIB | Library Sno-Isle GEN | 0.3039084203 | $632,653 | $632,653 | $192.27 | | |
| PORTWHID | Port of S Whidbey GEN | 0.1086004714 | $632,653 | $632,653 | $68.71 | | |
| SCH206BOND | School 206 BOND | 0.5960237832 | $632,653 | $632,653 | $377.08 | | |
| SCH206CAP | School 206 CP | 0.3066144020 | $632,653 | $632,653 | $193.98 | | |
| SCH206MO | School 206 Enrichment | 0.4808755445 | $632,653 | $632,653 | $304.23 | | |
| ST | State School | 1.4761226122 | $632,653 | $632,653 | $933.87 | | |
| ST2 | State School Part 2 | 0.7953803475 | $632,653 | $632,653 | $503.20 | | |
| SWHIDPRBD | P & R S Whidbey BOND | 0.0144185398 | $632,653 | $632,653 | $9.12 | | |
| SWHIDPRBD3 | P & R S Whidbey BOND3 | 0.1483535547 | $632,653 | $632,653 | $93.86 | | |
| SWHIDPRMT | P & R S Whidbey GEN | 0.4600000000 | $632,653 | $632,653 | $291.02 | | |
| | Total Tax Rate: | 7.8330503944 | | | | | |
| | | | | Taxes w/Current Exemptions: | $4,955.61 | | |
| | | | | Taxes w/o Exemptions: | $4,955.61 | | |
Improvement / Building
| Improvement #1: | RESIDENTIAL | State Code: | Y | 883.0 sqft | Value: | $82,153 |
| Bathrooms: | 1 | Bedrooms: | 2 | | Ceiling: | DRYWALL PAINTED | Exterior Wall/Cover: | WOOD SIDING | | Floor Covering: | HARDWOOD/CARP 20-80 | Floor Structure: | WOOD W/SUBFLOOR | | Foundation: | PEIRS | Heating: | BASEBOARD ELECTRIC | | Interior Finish: | DRYWALL PAINT | Plumbing Fixture Cnt: | 5 | | Roof Slope: | 8" IN 12" | Roof Structure/Cover: | CJ WOOD SHINGLE |
|
| | Type | Description | Class CD | Sub Class CD | Year Built | Area |
| | BAS | BASE/MAIN FLOOR | 3 | 0 | 1912 | 883.0 |
| | OWR | OPEN WOOD PORCH W/STEPS/ROOF | 3 | 0 | 1912 | 84.0 |
| | OWC | OPEN WOOD PORCH W/STEPS/ROOF/C | 3 | 0 | 1912 | 119.0 |
| | oGAR | GARAGE | 3 | 0 | 1912 | 240.0 |
| | oEQU | EQUIP SHED | 3 | 0 | 1912 | 192.0 |
Sketch
Property Image
Land
| 1 | LB | LOW BANK | 0.0000 | 0.00 | 50.00 | 0.00 | 1.00 | $550,000 | $0 |
| 2 | 55 | TIDES | 0.0000 | 0.00 | 50.00 | 0.00 | 1.00 | $500 | $0 |
Roll Value History
| 2026 | N/A | N/A | N/A | N/A | N/A |
| 2025 | $82,153 | $550,500 | $0 | $632,653 | $632,653 |
| 2024 | $85,767 | $500,000 | $0 | $585,767 | $585,767 |
| 2023 | $87,576 | $500,000 | $0 | $587,576 | $587,576 |
| 2022 | $81,137 | $500,000 | $0 | $581,137 | $581,137 |
| 2021 | $72,246 | $380,500 | $0 | $452,746 | $452,746 |
| 2020 | $71,002 | $380,500 | $0 | $451,502 | $451,502 |
| 2019 | $51,248 | $350,500 | $0 | $401,748 | $401,748 |
| 2018 | $51,488 | $250,500 | $0 | $301,988 | $301,988 |
| 2017 | $51,968 | $200,500 | $0 | $252,468 | $252,468 |
| 2016 | $52,927 | $200,500 | $0 | $253,427 | $253,427 |
| 2015 | $53,887 | $200,500 | $0 | $254,387 | $254,387 |
| 2014 | $48,568 | $200,500 | $0 | $249,068 | $249,068 |
| 2013 | $49,604 | $183,107 | $0 | $232,711 | $232,711 |
| 2012 | $50,640 | $183,107 | $0 | $233,747 | $233,747 |
| 2011 | $51,678 | $215,332 | $0 | $267,010 | $267,010 |
| 2010 | $58,753 | $215,332 | $0 | $274,085 | $274,085 |
| 2009 | $61,598 | $239,202 | $0 | $300,800 | $300,800 |
| 2008 | $46,906 | $239,202 | $0 | $286,108 | $286,108 |
| 2007 | $47,816 | $238,852 | $0 | $286,668 | $286,668 |
Deed and Sales History
| 1 | 08/17/2017 | QCD | Quit Claim Deed | BLAIR, ROBERT B | BLAIR, ROBERT B | | | $0.00 | 30916 | 4429375 |
| 2 | 08/17/2017 | QCD | Quit Claim Deed | BLAIR, ROBERT B | BLAIR, ROBERT B | | | $0.00 | 30915 | 4429374 |
| 3 | 05/01/1995 | QCD | Quit Claim Deed | BLAIR, ROBERT B | BLAIR, ROBERT B | | | $0.00 | 51732 | 95008139 |
| 4 | 05/01/1979 | CD | DNU - Correction Deed | BLAIR, JOHN C | BLAIR, ROBERT B | | | $0.00 | 92025 | 351710 |
| 5 | 01/01/1900 | OTHER | Other - Misc. Documents | Unknown | BLAIR, JOHN C | | | $0.00 | 0 | 0 |
Payout Agreement
| No payout information available.. |