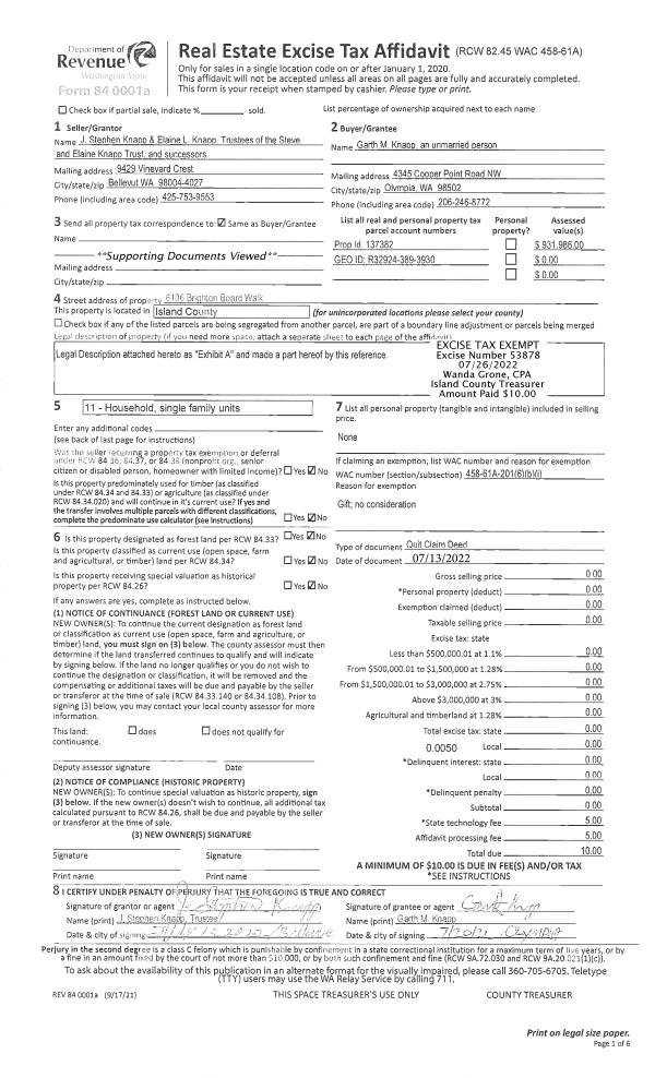
Property
Account |
| Property ID: | 137382 | Abbreviated Legal Description: | 127 - GL3 & 4:TGW ADJ TIDES BG N42*W1624' FR CR ON ELN SEC N42*W52' S47*W354' S42* E52' N47*E354' TPB EX RDS |
| Geographic ID: | R32924-389-3930 | Agent Code: | |
| Type: | Real | | |
| Tax Area: | 720 - APPRAISER-S Whid Schl Dist, Special District, improved & less than 1 acre | Land Use Code | 11 |
| Open Space: | N | DFL | N |
| Historic Property: | N | Remodel Property: | N |
| Multi-Family Redevelopment: | N | | |
| Township: | 29 | Section: | 24 |
| Range: | R3 |
Location |
| Address: | 6106 BRIGHTON BOARD WALK CLINTON, WA 98236 | Mapsco: | |
| Neighborhood: | Cycle 4 | Map ID: | 810 |
| Neighborhood CD: | 4 |
Owner |
| Name: | KNAPP, GARTH M | Owner ID: | 305106 |
| Mailing Address: | 4345 COOPER POINT ROAD NW OLYMPIA, WA 98502 | % Ownership: | 100.0000000000% |
| | | Exemptions: | |
Taxes and Assessment Details
Values
| (+) Improvement Homesite Value: | + | $0 | |
| (+) Improvement Non-Homesite Value: | + | $273,135 | |
| (+) Land Homesite Value: | + | $0 | |
| (+) Land Non-Homesite Value: | + | $575,520 | |
| (+) Curr Use (HS): | + | $0 | $0 |
| (+) Curr Use (NHS): | + | $0 | $0 |
| | | -------------------------- | |
| (=) Market Value: | = | $848,655 | |
| (–) Productivity Loss: | – | $0 | |
| | | -------------------------- | |
| (=) Subtotal: | = | $848,655 | |
| (+) Senior Appraised Value: | + | $0 | |
| (+) Non-Senior Appraised Value: | + | $848,655 | |
| | | -------------------------- | |
| (=) Total Appraised Value: | = | $848,655 | |
| (–) Senior Exemption Loss: | – | $0 | |
| (–) Exemption Loss: | – | $0 | |
| | | -------------------------- | |
| (=) Taxable Value: | = | $848,655 | |
Taxing Jurisdiction
| Owner: | KNAPP, GARTH M | | |
| % Ownership: | 100.0000000000% | | |
| Total Value: | $848,655 | | |
| Tax Area: | 720 - APPRAISER-S Whid Schl Dist, Special District, improved & less than 1 acre |
| CF | Conservation Futures | 0.0313996660 | $848,655 | $848,655 | $26.65 | | |
| FIRE3 | Fire & Rescue Dist #3 S Whidbey GEN | 1.2130821753 | $848,655 | $848,655 | $1,029.49 | | |
| HOBOND | Hospital BOND | 0.1893405597 | $848,655 | $848,655 | $160.68 | | |
| HOGEN | Hospital GEN | 0.3848777722 | $848,655 | $848,655 | $326.63 | | |
| CE | County Current Expense | 0.3674210519 | $848,655 | $848,655 | $311.81 | | |
| CR | County Roads | 0.4614296361 | $848,655 | $848,655 | $391.59 | | |
| ISLANDEMS | Hospital GEN (EMS) | 0.4952018576 | $848,655 | $848,655 | $420.26 | | |
| LIB | Library Sno-Isle GEN | 0.3039084203 | $848,655 | $848,655 | $257.91 | | |
| PORTWHID | Port of S Whidbey GEN | 0.1086004714 | $848,655 | $848,655 | $92.16 | | |
| SCH206BOND | School 206 BOND | 0.5960237832 | $848,655 | $848,655 | $505.82 | | |
| SCH206CAP | School 206 CP | 0.3066144020 | $848,655 | $848,655 | $260.21 | | |
| SCH206MO | School 206 Enrichment | 0.4808755445 | $848,655 | $848,655 | $408.10 | | |
| ST | State School | 1.4761226122 | $848,655 | $848,655 | $1,252.72 | | |
| ST2 | State School Part 2 | 0.7953803475 | $848,655 | $848,655 | $675.00 | | |
| SWHIDPRBD | P & R S Whidbey BOND | 0.0144185398 | $848,655 | $848,655 | $12.24 | | |
| SWHIDPRBD3 | P & R S Whidbey BOND3 | 0.1483535547 | $848,655 | $848,655 | $125.90 | | |
| SWHIDPRMT | P & R S Whidbey GEN | 0.4600000000 | $848,655 | $848,655 | $390.38 | | |
| | Total Tax Rate: | 7.8330503944 | | | | | |
| | | | | Taxes w/Current Exemptions: | $6,647.55 | | |
| | | | | Taxes w/o Exemptions: | $6,647.55 | | |
Improvement / Building
| Improvement #1: | RESIDENTIAL | State Code: | Y | 1352.0 sqft | Value: | $273,135 |
| Bathrooms: | 1 | Bedrooms: | 3 | | Ceiling: | TONGUE & GROOVE | Exterior Wall/Cover: | PLY/HARDBOARD T-111 | | Floor Covering: | CARPET/VINYL 80-20 | Floor Structure: | WOOD W/SUBFLOOR | | Foundation: | CONCRETE | Heating: | WALL HEAT ELECTRIC | | Interior Finish: | DRYWALL PAINT | Plumbing Fixture Cnt: | 10 | | Roof Slope: | 4" IN 12" | Roof Structure/Cover: | BEAM WOOD SHAKES |
|
| | Type | Description | Class CD | Sub Class CD | Year Built | Area |
| | BAS | BASE/MAIN FLOOR | 3 | 0 | 1904 | 1352.0 |
| | OWP | OPEN WOOD PORCH W/STEPS | 3 | 0 | 1904 | 48.0 |
| | OWP | OPEN WOOD PORCH W/STEPS | 3 | 0 | 1904 | 1036.0 |
| | OWR | OPEN WOOD PORCH W/STEPS/ROOF | 3 | 0 | 1904 | 272.0 |
| | OWC | OPEN WOOD PORCH W/STEPS/ROOF/C | 3 | 0 | 1904 | 112.0 |
Sketch
Property Image
Land
| 1 | LB | LOW BANK | 0.0000 | 0.00 | 52.00 | 0.00 | 1.00 | $575,000 | $0 |
| 2 | 55 | TIDES | 0.0000 | 0.00 | 52.00 | 0.00 | 1.00 | $520 | $0 |
Roll Value History
| 2026 | N/A | N/A | N/A | N/A | N/A |
| 2025 | $273,135 | $575,520 | $0 | $848,655 | $848,655 |
| 2024 | $276,498 | $550,520 | $0 | $827,018 | $827,018 |
| 2023 | $279,859 | $550,520 | $0 | $830,379 | $830,379 |
| 2022 | $256,466 | $500,520 | $0 | $756,986 | $756,986 |
| 2021 | $225,660 | $380,520 | $0 | $606,180 | $606,180 |
| 2020 | $204,178 | $380,520 | $0 | $584,698 | $584,698 |
| 2019 | $146,180 | $350,520 | $0 | $496,700 | $496,700 |
| 2018 | $146,629 | $250,520 | $0 | $397,149 | $397,149 |
| 2017 | $147,529 | $200,520 | $0 | $348,049 | $348,049 |
| 2016 | $149,329 | $200,520 | $0 | $349,849 | $349,849 |
| 2015 | $151,128 | $200,520 | $0 | $351,648 | $351,648 |
| 2014 | $149,298 | $200,520 | $0 | $349,818 | $349,818 |
| 2013 | $151,230 | $190,431 | $0 | $341,661 | $341,661 |
| 2012 | $153,160 | $190,431 | $0 | $343,591 | $343,591 |
| 2011 | $155,093 | $223,945 | $0 | $379,038 | $379,038 |
| 2010 | $162,312 | $223,945 | $0 | $386,257 | $386,257 |
| 2009 | $169,233 | $248,771 | $0 | $418,004 | $418,004 |
| 2008 | $168,248 | $248,771 | $0 | $417,019 | $417,019 |
| 2007 | $170,270 | $248,407 | $0 | $418,677 | $418,677 |
Deed and Sales History
| 1 | 07/13/2022 | QCD | Quit Claim Deed | KNAPP TRUSTEE, J STEPHEN | KNAPP, GARTH M | | | $0.00 | 53878 | 4548642 |
| 2 | 01/28/2004 | QCD | Quit Claim Deed | KNAPP, STEPHEN J | KNAPP TRUSTEE, J STEPHEN | | | $0.00 | 6 | 4266354 |
| 3 | 01/01/1900 | OTHER | Other - Misc. Documents | Unknown | KNAPP, STEPHEN J | | | $0.00 | 0 | 0 |
Payout Agreement
| No payout information available.. |