Property
Account |
| Property ID: | 138130 | Abbreviated Legal Description: | 89 - IN NESW:BG NWCR SW N87*E1766.21'TPB S1*W427' S87*W TO WLN NE SW N TO NW CR NESW N87*E TPB SUB EZ AF#408783 TERM EZ AF#88015194, 88015405 |
| Geographic ID: | R32925-241-1490 | Agent Code: | |
| Type: | Real | | |
| Tax Area: | 722 - APPRAISER-S Whid Schl Dist, Special District, improved, greater than 1 acre | Land Use Code | 11 |
| Open Space: | N | DFL | N |
| Historic Property: | N | Remodel Property: | N |
| Multi-Family Redevelopment: | N | | |
| Township: | 29 | Section: | 25 |
| Range: | R3 |
Location |
| Address: | 6606 HEGGENES RD CLINTON, WA 98236 | Mapsco: | |
| Neighborhood: | Cycle 4 | Map ID: | 812 |
| Neighborhood CD: | 4 |
Owner |
| Name: | WILSON, BRIAN | Owner ID: | 317154 |
| Mailing Address: | LAURA LOGAN 6606 HEGGENES RD CLINTON, WA 98236 | % Ownership: | 100.0000000000% |
| | | Exemptions: | |
Taxes and Assessment Details
Values
| (+) Improvement Homesite Value: | + | $0 | |
| (+) Improvement Non-Homesite Value: | + | $470,054 | |
| (+) Land Homesite Value: | + | $0 | |
| (+) Land Non-Homesite Value: | + | $360,000 | |
| (+) Curr Use (HS): | + | $0 | $0 |
| (+) Curr Use (NHS): | + | $0 | $0 |
| | | -------------------------- | |
| (=) Market Value: | = | $830,054 | |
| (–) Productivity Loss: | – | $0 | |
| | | -------------------------- | |
| (=) Subtotal: | = | $830,054 | |
| (+) Senior Appraised Value: | + | $0 | |
| (+) Non-Senior Appraised Value: | + | $830,054 | |
| | | -------------------------- | |
| (=) Total Appraised Value: | = | $830,054 | |
| (–) Senior Exemption Loss: | – | $0 | |
| (–) Exemption Loss: | – | $0 | |
| | | -------------------------- | |
| (=) Taxable Value: | = | $830,054 | |
Taxing Jurisdiction
| Owner: | WILSON, BRIAN | | |
| % Ownership: | 100.0000000000% | | |
| Total Value: | $830,054 | | |
| Tax Area: | 722 - APPRAISER-S Whid Schl Dist, Special District, improved, greater than 1 acre |
| CF | Conservation Futures | 0.0313996660 | $830,054 | $830,054 | $26.06 | | |
| FIRE3 | Fire & Rescue Dist #3 S Whidbey GEN | 1.2130821753 | $830,054 | $830,054 | $1,006.92 | | |
| HOBOND | Hospital BOND | 0.1893405597 | $830,054 | $830,054 | $157.16 | | |
| HOGEN | Hospital GEN | 0.3848777722 | $830,054 | $830,054 | $319.47 | | |
| CE | County Current Expense | 0.3674210519 | $830,054 | $830,054 | $304.98 | | |
| CR | County Roads | 0.4614296361 | $830,054 | $830,054 | $383.01 | | |
| ISLANDEMS | Hospital GEN (EMS) | 0.4952018576 | $830,054 | $830,054 | $411.04 | | |
| LIB | Library Sno-Isle GEN | 0.3039084203 | $830,054 | $830,054 | $252.26 | | |
| PORTWHID | Port of S Whidbey GEN | 0.1086004714 | $830,054 | $830,054 | $90.14 | | |
| SCH206BOND | School 206 BOND | 0.5960237832 | $830,054 | $830,054 | $494.73 | | |
| SCH206CAP | School 206 CP | 0.3066144020 | $830,054 | $830,054 | $254.51 | | |
| SCH206MO | School 206 Enrichment | 0.4808755445 | $830,054 | $830,054 | $399.15 | | |
| ST | State School | 1.4761226122 | $830,054 | $830,054 | $1,225.26 | | |
| ST2 | State School Part 2 | 0.7953803475 | $830,054 | $830,054 | $660.21 | | |
| SWHIDPRBD | P & R S Whidbey BOND | 0.0144185398 | $830,054 | $830,054 | $11.97 | | |
| SWHIDPRBD3 | P & R S Whidbey BOND3 | 0.1483535547 | $830,054 | $830,054 | $123.14 | | |
| SWHIDPRMT | P & R S Whidbey GEN | 0.4600000000 | $830,054 | $830,054 | $381.82 | | |
| | Total Tax Rate: | 7.8330503944 | | | | | |
| | | | | Taxes w/Current Exemptions: | $6,501.83 | | |
| | | | | Taxes w/o Exemptions: | $6,501.83 | | |
Improvement / Building
| Improvement #1: | RESIDENTIAL | State Code: | Y | 2178.0 sqft | Value: | $470,054 |
| Bathrooms: | 2 | Bedrooms: | 3 | | Ceiling: | DRYWALL PAINTED | Exterior Wall/Cover: | CEMENT FIBER | | Floor Covering: | LAMINATE/LVP | Floor Structure: | WOOD W/SUBFLOOR | | Foundation: | CONCRETE | Heating: | HEAT PUMP | | Interior Finish: | DRYWALL PAINT | Plumbing Fixture Cnt: | 10 | | Roof Slope: | 6" IN 12" | Roof Structure/Cover: | CJ ASPHALT |
|
| | Type | Description | Class CD | Sub Class CD | Year Built | Area |
| | BAS | BASE/MAIN FLOOR | 3 | 0 | 2025 | 2178.0 |
| | AGR | ATTACHED GARAGE | 3 | 0 | 2025 | 648.0 |
| | OWC | OPEN WOOD PORCH W/STEPS/ROOF/C | 3 | 0 | 2025 | 99.0 |
| | OWC | OPEN WOOD PORCH W/STEPS/ROOF/C | 3 | 0 | 2025 | 400.0 |
| | oPOL | POLE BARN | 3 | 0 | 1989 | 1440.0 |
Sketch
Property Image
Land
| 1 | 32 | AC (03.01-09.99) | 5.0000 | 0.00 | 0.00 | 0.00 | 1.00 | $360,000 | $0 |
Roll Value History
| 2026 | N/A | N/A | N/A | N/A | N/A |
| 2025 | $470,054 | $360,000 | $0 | $830,054 | $830,054 |
| 2024 | $138,226 | $220,000 | $0 | $358,226 | $358,226 |
| 2023 | $28,800 | $200,000 | $0 | $228,800 | $228,800 |
| 2022 | $102,254 | $280,000 | $0 | $382,254 | $382,254 |
| 2021 | $92,787 | $230,000 | $0 | $322,787 | $76,767 |
| 2020 | $57,480 | $190,000 | $0 | $247,480 | $76,767 |
| 2019 | $50,399 | $220,000 | $0 | $270,399 | $76,767 |
| 2018 | $52,441 | $210,000 | $0 | $262,441 | $76,767 |
| 2017 | $53,802 | $165,000 | $0 | $218,802 | $76,767 |
| 2016 | $55,164 | $165,000 | $0 | $220,164 | $76,767 |
| 2015 | $56,525 | $150,000 | $0 | $206,525 | $76,767 |
| 2014 | $55,488 | $150,196 | $0 | $205,684 | $76,767 |
| 2013 | $61,487 | $200,196 | $0 | $261,683 | $76,767 |
| 2012 | $62,848 | $170,196 | $0 | $233,044 | $76,767 |
| 2011 | $64,210 | $170,196 | $0 | $234,406 | $76,767 |
| 2010 | $58,957 | $170,196 | $0 | $229,153 | $76,767 |
| 2009 | $61,939 | $219,603 | $0 | $281,542 | $76,767 |
| 2008 | $63,089 | $211,212 | $0 | $274,301 | $76,767 |
| 2007 | $66,708 | $211,240 | $0 | $277,948 | $76,767 |
Deed and Sales History
| 1 | 06/24/2025 | WD | Warranty Deed | WENZEK, AARON | WILSON, BRIAN | | | $990,000.00 | 63976 | 4587556 |
| 2 | 11/21/2022 | WD | Warranty Deed | RAINEY, PHYLLIS L | WENZEK, AARON | | | $0.00 | 63975 | 4587556 |
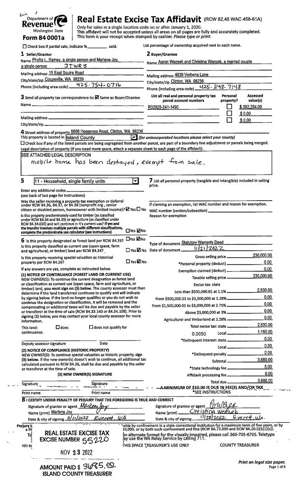
| 3 | 11/21/2022 | WD | Warranty Deed | RAINEY, PHYLLIS L | WENZEK, AARON | | | $230,000.00 | 55220 | 4554224 |
| 4 | 06/21/2004 | QCD | Quit Claim Deed | RAINEY, PHYLLIS L | RAINEY, PHYLLIS L | | | $0.00 | 43580 | 4109013 |
| 5 | 10/01/1992 | OTHER | Other - Misc. Documents | RAINEY, PHYLLIS L | RAINEY, PHYLLIS L | | | $0.00 | 24197 | 0 |
| 6 | 10/01/1992 | OTHER | Other - Misc. Documents | RAINY, ROBERT L | RAINEY, PHYLLIS L | | | $0.00 | 65104 | 202433 |
| 7 | 12/01/1988 | OTHER | Other - Misc. Documents | RAINEY, ROBERT L | RAINY, ROBERT L | | | $34,320.00 | 11111111 | 0 |
| 8 | 10/01/1987 | EZ | Easement | RAINEY, ROBERT L | RAINEY, ROBERT L | | | $0.00 | 62402 | 85000962 |
| 9 | 01/01/1900 | OTHER | Other - Misc. Documents | Unknown | RAINEY, ROBERT L | | | $0.00 | 0 | 0 |
Payout Agreement
| No payout information available.. |