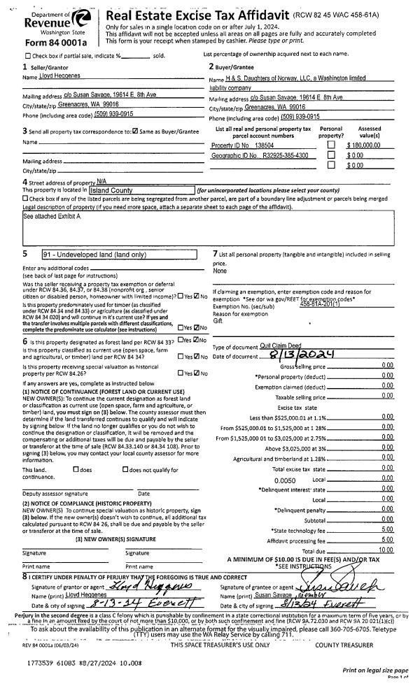
Property
Account |
| Property ID: | 138504 | Abbreviated Legal Description: | 77 - BG NE CR SE NE W959' S60' TPB E318' S254' W318' N254' TPB EX TL 97 |
| Geographic ID: | R32925-385-4300 | Agent Code: | |
| Type: | Real | | |
| Tax Area: | 729 - APPRAISER-S Whid Schl Dist, Special District, vacant & 50 acres or less | Land Use Code | 91 |
| Open Space: | N | DFL | N |
| Historic Property: | N | Remodel Property: | N |
| Multi-Family Redevelopment: | N | | |
| Township: | 29 | Section: | 25 |
| Range: | R3 |
Location |
| Address: | | Mapsco: | |
| Neighborhood: | Cycle 4 | Map ID: | 815 |
| Neighborhood CD: | 4 |
Owner |
| Name: | H & S, DAUGHTERS OF NORWAY, LLC | Owner ID: | 313669 |
| Mailing Address: | C/O SUSAN SAVAGE 19614 E 8TH AVE GREENACRES, WA 99016 | % Ownership: | 100.0000000000% |
| | | Exemptions: | |
Taxes and Assessment Details
Values
| (+) Improvement Homesite Value: | + | $0 | |
| (+) Improvement Non-Homesite Value: | + | $0 | |
| (+) Land Homesite Value: | + | $0 | |
| (+) Land Non-Homesite Value: | + | $180,000 | |
| (+) Curr Use (HS): | + | $0 | $0 |
| (+) Curr Use (NHS): | + | $0 | $0 |
| | | -------------------------- | |
| (=) Market Value: | = | $180,000 | |
| (–) Productivity Loss: | – | $0 | |
| | | -------------------------- | |
| (=) Subtotal: | = | $180,000 | |
| (+) Senior Appraised Value: | + | $0 | |
| (+) Non-Senior Appraised Value: | + | $180,000 | |
| | | -------------------------- | |
| (=) Total Appraised Value: | = | $180,000 | |
| (–) Senior Exemption Loss: | – | $0 | |
| (–) Exemption Loss: | – | $0 | |
| | | -------------------------- | |
| (=) Taxable Value: | = | $180,000 | |
Taxing Jurisdiction
| Owner: | H & S, DAUGHTERS OF NORWAY, LLC | | |
| % Ownership: | 100.0000000000% | | |
| Total Value: | $180,000 | | |
| Tax Area: | 729 - APPRAISER-S Whid Schl Dist, Special District, vacant & 50 acres or less |
| CF | Conservation Futures | 0.0313996660 | $180,000 | $180,000 | $5.65 | | |
| HOBOND | Hospital BOND | 0.1893405597 | $180,000 | $180,000 | $34.08 | | |
| HOGEN | Hospital GEN | 0.3848777722 | $180,000 | $180,000 | $69.28 | | |
| CE | County Current Expense | 0.3674210519 | $180,000 | $180,000 | $66.14 | | |
| CR | County Roads | 0.4614296361 | $180,000 | $180,000 | $83.06 | | |
| ISLANDEMS | Hospital GEN (EMS) | 0.4952018576 | $180,000 | $180,000 | $89.14 | | |
| LIB | Library Sno-Isle GEN | 0.3039084203 | $180,000 | $180,000 | $54.70 | | |
| PORTWHID | Port of S Whidbey GEN | 0.1086004714 | $180,000 | $180,000 | $19.55 | | |
| SCH206BOND | School 206 BOND | 0.5960237832 | $180,000 | $180,000 | $107.28 | | |
| SCH206CAP | School 206 CP | 0.3066144020 | $180,000 | $180,000 | $55.19 | | |
| SCH206MO | School 206 Enrichment | 0.4808755445 | $180,000 | $180,000 | $86.56 | | |
| ST | State School | 1.4761226122 | $180,000 | $180,000 | $265.70 | | |
| ST2 | State School Part 2 | 0.7953803475 | $180,000 | $180,000 | $143.17 | | |
| SWHIDPRBD | P & R S Whidbey BOND | 0.0144185398 | $180,000 | $180,000 | $2.60 | | |
| SWHIDPRBD3 | P & R S Whidbey BOND3 | 0.1483535547 | $180,000 | $180,000 | $26.70 | | |
| SWHIDPRMT | P & R S Whidbey GEN | 0.4600000000 | $180,000 | $180,000 | $82.80 | | |
| | Total Tax Rate: | 6.6199682191 | | | | | |
| | | | | Taxes w/Current Exemptions: | $1,191.60 | | |
| | | | | Taxes w/o Exemptions: | $1,191.60 | | |
Improvement / Building
Sketch
| No sketches available for this property. |
Property Image
Land
| 1 | 17 | AC (01.01-02.00) | 0.0000 | 0.00 | 0.00 | 0.00 | 1.00 | $180,000 | $0 |
Roll Value History
| 2026 | N/A | N/A | N/A | N/A | N/A |
| 2025 | $0 | $180,000 | $0 | $180,000 | $180,000 |
| 2024 | $0 | $180,000 | $0 | $180,000 | $180,000 |
| 2023 | $0 | $170,000 | $0 | $170,000 | $170,000 |
| 2022 | $0 | $170,000 | $0 | $170,000 | $170,000 |
| 2021 | $0 | $170,000 | $0 | $170,000 | $170,000 |
| 2020 | $0 | $150,000 | $0 | $150,000 | $150,000 |
| 2019 | $0 | $25,000 | $0 | $25,000 | $25,000 |
| 2018 | $0 | $25,000 | $0 | $25,000 | $25,000 |
| 2017 | $0 | $25,000 | $0 | $25,000 | $25,000 |
| 2016 | $0 | $25,000 | $0 | $25,000 | $25,000 |
| 2015 | $0 | $25,000 | $0 | $25,000 | $25,000 |
| 2014 | $0 | $25,000 | $0 | $25,000 | $25,000 |
| 2013 | $0 | $26,250 | $0 | $26,250 | $26,250 |
| 2012 | $0 | $26,250 | $0 | $26,250 | $26,250 |
| 2011 | $0 | $26,250 | $0 | $26,250 | $26,250 |
| 2010 | $0 | $26,250 | $0 | $26,250 | $26,250 |
| 2009 | $0 | $30,000 | $0 | $30,000 | $30,000 |
| 2008 | $0 | $30,000 | $0 | $30,000 | $30,000 |
| 2007 | $0 | $25,000 | $0 | $25,000 | $25,000 |
Deed and Sales History
| 1 | 08/13/2024 | QCD | Quit Claim Deed | HEGGENES, LLOYD H | H & S, DAUGHTERS OF NORWAY, LLC | | | $0.00 | 61083 | 4576337 |
| 2 | 04/05/2024 | PRD | Personal Representatives Deed | ESTATE OF VIVIAN HEGGENES | HEGGENES, LLOYD H | | | $0.00 | 60237 | 4573220 |
| 3 | 01/01/1900 | OTHER | Other - Misc. Documents | Unknown | HEGGENES, LLOYD H | | | $0.00 | 0 | 0 |
Payout Agreement
| No payout information available.. |