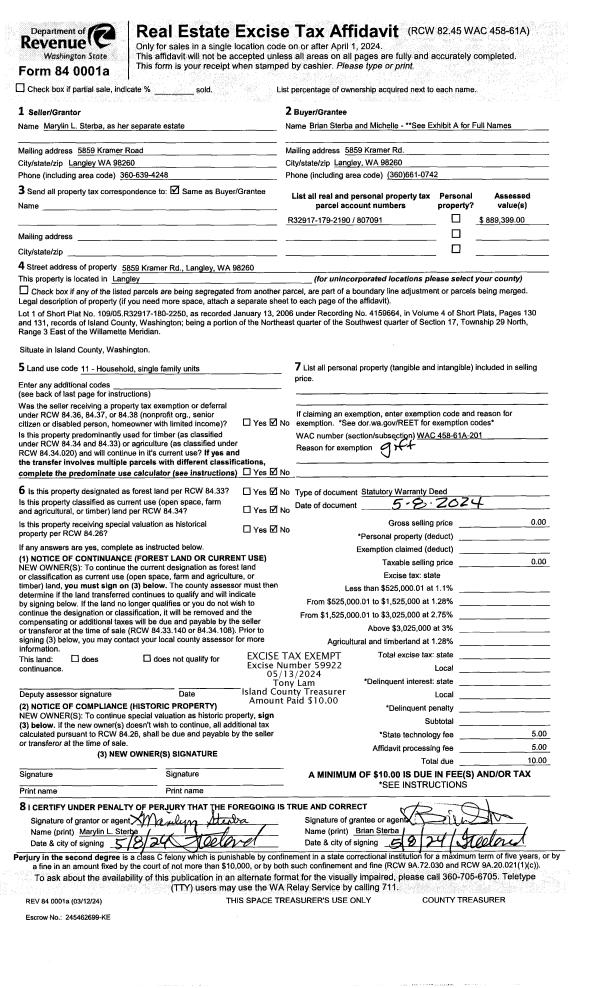
Property
Account |
| Property ID: | 138513 | Abbreviated Legal Description: | 86 - N200' OF:BG NW CR SE NE E330' R/A S660' W330' N660' TPB EX RD |
| Geographic ID: | R32925-388-3950 | Agent Code: | |
| Type: | Real | | |
| Tax Area: | 722 - APPRAISER-S Whid Schl Dist, Special District, improved, greater than 1 acre | Land Use Code | 11 |
| Open Space: | N | DFL | N |
| Historic Property: | N | Remodel Property: | N |
| Multi-Family Redevelopment: | N | | |
| Township: | 29 | Section: | 25 |
| Range: | R3 |
Location |
| Address: | 6503 ANDERSON RD CLINTON, WA 98236 | Mapsco: | |
| Neighborhood: | Cycle 4 | Map ID: | 815 |
| Neighborhood CD: | 4 |
Owner |
| Name: | SAVAGE TTEE, SUSAN DIANE | Owner ID: | 312709 |
| Mailing Address: | HEIDI ANN RUTHER TTEE LLOYD HEGGENES 19614 E 8TH AVE GREENACRES, WA 99016 | % Ownership: | 100.0000000000% |
| | | Exemptions: | |
Taxes and Assessment Details
Values
| (+) Improvement Homesite Value: | + | $0 | |
| (+) Improvement Non-Homesite Value: | + | $404,928 | |
| (+) Land Homesite Value: | + | $0 | |
| (+) Land Non-Homesite Value: | + | $370,000 | |
| (+) Curr Use (HS): | + | $0 | $0 |
| (+) Curr Use (NHS): | + | $0 | $0 |
| | | -------------------------- | |
| (=) Market Value: | = | $774,928 | |
| (–) Productivity Loss: | – | $0 | |
| | | -------------------------- | |
| (=) Subtotal: | = | $774,928 | |
| (+) Senior Appraised Value: | + | $0 | |
| (+) Non-Senior Appraised Value: | + | $774,928 | |
| | | -------------------------- | |
| (=) Total Appraised Value: | = | $774,928 | |
| (–) Senior Exemption Loss: | – | $0 | |
| (–) Exemption Loss: | – | $0 | |
| | | -------------------------- | |
| (=) Taxable Value: | = | $774,928 | |
Taxing Jurisdiction
| Owner: | SAVAGE TTEE, SUSAN DIANE | | |
| % Ownership: | 100.0000000000% | | |
| Total Value: | $774,928 | | |
| Tax Area: | 722 - APPRAISER-S Whid Schl Dist, Special District, improved, greater than 1 acre |
| CF | Conservation Futures | 0.0313996660 | $774,928 | $774,928 | $24.33 | | |
| FIRE3 | Fire & Rescue Dist #3 S Whidbey GEN | 1.2130821753 | $774,928 | $774,928 | $940.05 | | |
| HOBOND | Hospital BOND | 0.1893405597 | $774,928 | $774,928 | $146.73 | | |
| HOGEN | Hospital GEN | 0.3848777722 | $774,928 | $774,928 | $298.25 | | |
| CE | County Current Expense | 0.3674210519 | $774,928 | $774,928 | $284.72 | | |
| CR | County Roads | 0.4614296361 | $774,928 | $774,928 | $357.57 | | |
| ISLANDEMS | Hospital GEN (EMS) | 0.4952018576 | $774,928 | $774,928 | $383.75 | | |
| LIB | Library Sno-Isle GEN | 0.3039084203 | $774,928 | $774,928 | $235.51 | | |
| PORTWHID | Port of S Whidbey GEN | 0.1086004714 | $774,928 | $774,928 | $84.16 | | |
| SCH206BOND | School 206 BOND | 0.5960237832 | $774,928 | $774,928 | $461.88 | | |
| SCH206CAP | School 206 CP | 0.3066144020 | $774,928 | $774,928 | $237.60 | | |
| SCH206MO | School 206 Enrichment | 0.4808755445 | $774,928 | $774,928 | $372.64 | | |
| ST | State School | 1.4761226122 | $774,928 | $774,928 | $1,143.89 | | |
| ST2 | State School Part 2 | 0.7953803475 | $774,928 | $774,928 | $616.36 | | |
| SWHIDPRBD | P & R S Whidbey BOND | 0.0144185398 | $774,928 | $774,928 | $11.17 | | |
| SWHIDPRBD3 | P & R S Whidbey BOND3 | 0.1483535547 | $774,928 | $774,928 | $114.96 | | |
| SWHIDPRMT | P & R S Whidbey GEN | 0.4600000000 | $774,928 | $774,928 | $356.47 | | |
| | Total Tax Rate: | 7.8330503944 | | | | | |
| | | | | Taxes w/Current Exemptions: | $6,070.04 | | |
| | | | | Taxes w/o Exemptions: | $6,070.04 | | |
Improvement / Building
| Improvement #1: | RESIDENTIAL | State Code: | Y | 1824.0 sqft | Value: | $404,928 |
| Bathrooms: | 2 | Bedrooms: | 3 | | Ceiling: | DRYWALL PAINTED | Exterior Wall/Cover: | WOOD SIDING | | Floor Covering: | CERAMIC TILE/CPT 40-60 | Floor Structure: | WOOD W/SUBFLOOR | | Foundation: | CONCRETE | Heating: | FHA GAS | | Interior Finish: | DRYWALL PAINT | Plumbing Fixture Cnt: | 10 | | Roof Slope: | 4" IN 12" | Roof Structure/Cover: | CJ ALUMINIUM HEAVY |
|
| | Type | Description | Class CD | Sub Class CD | Year Built | Area |
| | BAS | BASE/MAIN FLOOR | 3 | 0 | 1966 | 1824.0 |
| | UB6 | BASEMENT UNFINISHED 6" | 3 | 0 | 1966 | 750.0 |
| | OWP | OPEN WOOD PORCH W/STEPS | 3 | 0 | 1966 | 896.0 |
| | OP4 | OPEN PORCH W/CEILING-ROOF | 3 | 0 | 1966 | 64.0 |
| | AGR | ATTACHED GARAGE | 3 | 0 | 1966 | 624.0 |
| | UTY | STORAGE/UTILITY | 3 | 0 | 1966 | 80.0 |
| | oOBD | Out Buildings | 3 | 0 | 1966 | 0.0 |
| | BGR | BASEMENT GARAGE | 3 | 0 | 1966 | 868.0 |
Sketch
Property Image
Land
| 1 | 17 | AC (01.01-02.00) | 0.0000 | 0.00 | 0.00 | 0.00 | 1.00 | $370,000 | $0 |
Roll Value History
| 2026 | N/A | N/A | N/A | N/A | N/A |
| 2025 | $404,928 | $370,000 | $0 | $774,928 | $774,928 |
| 2024 | $409,977 | $350,000 | $0 | $759,977 | $759,977 |
| 2023 | $417,560 | $310,000 | $0 | $727,560 | $727,560 |
| 2022 | $386,012 | $280,000 | $0 | $666,012 | $666,012 |
| 2021 | $344,248 | $260,000 | $0 | $604,248 | $604,248 |
| 2020 | $325,381 | $230,000 | $0 | $555,381 | $555,381 |
| 2019 | $252,646 | $260,000 | $0 | $512,646 | $512,646 |
| 2018 | $253,360 | $230,000 | $0 | $483,360 | $483,360 |
| 2017 | $254,789 | $200,000 | $0 | $454,789 | $454,789 |
| 2016 | $257,644 | $150,000 | $0 | $407,644 | $407,644 |
| 2015 | $260,498 | $150,000 | $0 | $410,498 | $410,498 |
| 2014 | $247,851 | $150,000 | $0 | $397,851 | $397,851 |
| 2013 | $250,832 | $150,000 | $0 | $400,832 | $400,832 |
| 2012 | $253,814 | $150,000 | $0 | $403,814 | $403,814 |
| 2011 | $256,796 | $150,000 | $0 | $406,796 | $406,796 |
| 2010 | $267,356 | $150,000 | $0 | $417,356 | $417,356 |
| 2009 | $278,757 | $175,000 | $0 | $453,757 | $453,757 |
| 2008 | $195,911 | $200,000 | $0 | $395,911 | $395,911 |
| 2007 | $198,822 | $200,000 | $0 | $398,822 | $398,822 |
Deed and Sales History
| 1 | 04/10/2024 | PRD | Personal Representatives Deed | ESTATE OF VIVIAN HEGGENES | SAVAGE TTEE, SUSAN DIANE | | | $0.00 | 60235 | 4573219 |
Payout Agreement
| No payout information available.. |