Property
Account |
| Property ID: | 139031 | Abbreviated Legal Description: | 117 - PT SW 1/4 DESC: BG SWCR SEC 26 S89*E ALG SLN SD SEC 26 1486.74' N1*E944.46' TPB N1*E286.52' S89*E110.01' S1*W39.76' S89*E22' S1*W246.95' N89*W132.01' TPB TGW EZS TGW & SUB EZ AF#91019357 |
| Geographic ID: | R32926-124-1560 | Agent Code: | |
| Type: | Real | | |
| Tax Area: | 710 - APPRAISER-S Whid Schl Dist, outside Langley, improved & 1 acre or less | Land Use Code | 11 |
| Open Space: | N | DFL | N |
| Historic Property: | N | Remodel Property: | N |
| Multi-Family Redevelopment: | N | | |
| Township: | 29 | Section: | 26 |
| Range: | R3 |
Location |
| Address: | 6700 CLIFFORDSVILLE RD CLINTON, WA 98236 | Mapsco: | |
| Neighborhood: | Cycle 4 | Map ID: | 816 |
| Neighborhood CD: | 4 |
Owner |
| Name: | SCHNOBRICH, CHRISTOFF HOWARD | Owner ID: | 299812 |
| Mailing Address: | TRACY ANN SCHNOBRICH 6700 CLIFFORDSVILLE RD CLINTON, WA 98236 | % Ownership: | 100.0000000000% |
| | | Exemptions: | |
Taxes and Assessment Details
Values
| (+) Improvement Homesite Value: | + | $0 | |
| (+) Improvement Non-Homesite Value: | + | $221,819 | |
| (+) Land Homesite Value: | + | $0 | |
| (+) Land Non-Homesite Value: | + | $260,000 | |
| (+) Curr Use (HS): | + | $0 | $0 |
| (+) Curr Use (NHS): | + | $0 | $0 |
| | | -------------------------- | |
| (=) Market Value: | = | $481,819 | |
| (–) Productivity Loss: | – | $0 | |
| | | -------------------------- | |
| (=) Subtotal: | = | $481,819 | |
| (+) Senior Appraised Value: | + | $0 | |
| (+) Non-Senior Appraised Value: | + | $481,819 | |
| | | -------------------------- | |
| (=) Total Appraised Value: | = | $481,819 | |
| (–) Senior Exemption Loss: | – | $0 | |
| (–) Exemption Loss: | – | $0 | |
| | | -------------------------- | |
| (=) Taxable Value: | = | $481,819 | |
Taxing Jurisdiction
| Owner: | SCHNOBRICH, CHRISTOFF HOWARD | | |
| % Ownership: | 100.0000000000% | | |
| Total Value: | $481,819 | | |
| Tax Area: | 710 - APPRAISER-S Whid Schl Dist, outside Langley, improved & 1 acre or less |
| CF | Conservation Futures | 0.0313996660 | $481,819 | $481,819 | $15.13 | | |
| FIRE3 | Fire & Rescue Dist #3 S Whidbey GEN | 1.2130821753 | $481,819 | $481,819 | $584.49 | | |
| HOBOND | Hospital BOND | 0.1893405597 | $481,819 | $481,819 | $91.23 | | |
| HOGEN | Hospital GEN | 0.3848777722 | $481,819 | $481,819 | $185.44 | | |
| CE | County Current Expense | 0.3674210519 | $481,819 | $481,819 | $177.03 | | |
| CR | County Roads | 0.4614296361 | $481,819 | $481,819 | $222.33 | | |
| ISLANDEMS | Hospital GEN (EMS) | 0.4952018576 | $481,819 | $481,819 | $238.60 | | |
| LIB | Library Sno-Isle GEN | 0.3039084203 | $481,819 | $481,819 | $146.43 | | |
| PORTWHID | Port of S Whidbey GEN | 0.1086004714 | $481,819 | $481,819 | $52.33 | | |
| SCH206BOND | School 206 BOND | 0.5960237832 | $481,819 | $481,819 | $287.18 | | |
| SCH206CAP | School 206 CP | 0.3066144020 | $481,819 | $481,819 | $147.73 | | |
| SCH206MO | School 206 Enrichment | 0.4808755445 | $481,819 | $481,819 | $231.69 | | |
| ST | State School | 1.4761226122 | $481,819 | $481,819 | $711.22 | | |
| ST2 | State School Part 2 | 0.7953803475 | $481,819 | $481,819 | $383.23 | | |
| SWHIDPRBD | P & R S Whidbey BOND | 0.0144185398 | $481,819 | $481,819 | $6.95 | | |
| SWHIDPRBD3 | P & R S Whidbey BOND3 | 0.1483535547 | $481,819 | $481,819 | $71.48 | | |
| SWHIDPRMT | P & R S Whidbey GEN | 0.4600000000 | $481,819 | $481,819 | $221.64 | | |
| | Total Tax Rate: | 7.8330503944 | | | | | |
| | | | | Taxes w/Current Exemptions: | $3,774.13 | | |
| | | | | Taxes w/o Exemptions: | $3,774.13 | | |
Improvement / Building
| Improvement #1: | RESIDENTIAL | State Code: | Y | 1074.0 sqft | Value: | $221,819 |
| Bathrooms: | 1 | Bedrooms: | 2 | | Ceiling: | DRYWALL PAINTED | Exterior Wall/Cover: | WOOD SIDING | | Floor Covering: | HARDWOOD/CARP 60-40 | Floor Structure: | WOOD W/SUBFLOOR | | Foundation: | CONCRETE | Heating: | BASEBOARD ELECTRIC | | Interior Finish: | DRYWALL PAINT | Plumbing Fixture Cnt: | 6 | | Roof Slope: | 4" IN 12" | Roof Structure/Cover: | CJ ASPHALT |
|
| | Type | Description | Class CD | Sub Class CD | Year Built | Area |
| | BAS | BASE/MAIN FLOOR | 3 | 0 | 1982 | 1074.0 |
| | OWP | OPEN WOOD PORCH W/STEPS | 3 | 0 | 1982 | 126.2 |
| | OWP | OPEN WOOD PORCH W/STEPS | 3 | 0 | 1982 | 86.0 |
| | DGR | DETACHED GARAGE | 3 | 0 | 1982 | 840.0 |
| | ATF | ATTIC FINISHED | 3 | 0 | 1982 | 336.0 |
| | CPD | OPEN CARPORT DIRT FLOOR | 3 | 0 | 1982 | 200.0 |
Sketch
Property Image
Land
| 1 | 16 | AC (00.51-01.00) | 0.8600 | 37461.60 | 0.00 | 0.00 | 1.00 | $260,000 | $0 |
Roll Value History
| 2026 | N/A | N/A | N/A | N/A | N/A |
| 2025 | $221,819 | $260,000 | $0 | $481,819 | $481,819 |
| 2024 | $229,417 | $250,000 | $0 | $479,417 | $479,417 |
| 2023 | $232,465 | $240,000 | $0 | $472,465 | $472,465 |
| 2022 | $213,257 | $240,000 | $0 | $453,257 | $453,257 |
| 2021 | $187,845 | $160,000 | $0 | $347,845 | $347,845 |
| 2020 | $179,837 | $135,000 | $0 | $314,837 | $314,837 |
| 2019 | $130,015 | $180,000 | $0 | $310,015 | $310,015 |
| 2018 | $130,430 | $170,000 | $0 | $300,430 | $300,430 |
| 2017 | $131,260 | $115,000 | $0 | $246,260 | $246,260 |
| 2016 | $132,922 | $115,000 | $0 | $247,922 | $247,922 |
| 2015 | $134,583 | $100,000 | $0 | $234,583 | $234,583 |
| 2014 | $135,026 | $100,000 | $0 | $235,026 | $235,026 |
| 2013 | $136,421 | $79,688 | $0 | $216,109 | $216,109 |
| 2012 | $137,817 | $79,688 | $0 | $217,505 | $217,505 |
| 2011 | $139,212 | $93,750 | $0 | $232,962 | $232,962 |
| 2010 | $142,090 | $93,750 | $0 | $235,840 | $235,840 |
| 2009 | $147,490 | $120,000 | $0 | $267,490 | $267,490 |
| 2008 | $140,588 | $100,000 | $0 | $240,588 | $240,588 |
| 2007 | $142,370 | $100,000 | $0 | $242,370 | $242,370 |
Deed and Sales History
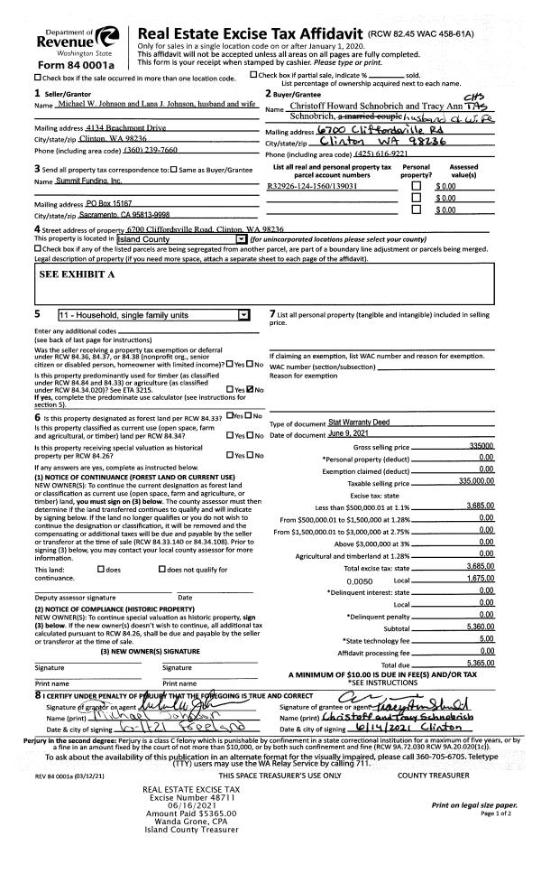
| 1 | 06/09/2021 | WD | Warranty Deed | JOHNSON, MICHAEL W | SCHNOBRICH, CHRISTOFF HOWARD | | | $335,000.00 | 48711 | 4522009 |
| 2 | 09/09/2004 | WD | Warranty Deed | PRESCOTT, ROY H | MICHAEL W JOHNSON | | | $140,000.00 | 44446 | 4113509 |
| 3 | 08/09/2004 | QCD | Quit Claim Deed | PRESCOTT, ROY H | | | | | 50944 | 4127894 |
| 4 | 08/09/2004 | ESTSEPPROP | Establish Separate Property | PRESCOTT, ROY H | | | | | 43947 | 4111046 |
| 5 | 08/09/2004 | QCD | Quit Claim Deed | PRESCOTT, ROY H | PRESCOTT, ROY H | | | $0.00 | 64397 | 4183977 |
| 6 | 01/05/2000 | QCD | Quit Claim Deed | PRESCOTT, PAULINE V | PRESCOTT, ROY H | | | $0.00 | 207 | 20001115 |
| 7 | 01/01/1992 | DECREE | Divorce Decree/Legal Separation | PRESCOTT, ROY H | PRESCOTT, PAULINE V | | | $0.00 | 20731 | 92003677 |
| 8 | 09/01/1989 | WD | Warranty Deed | JOHNSON, DAVID K | PRESCOTT, ROY H | | | $62,000.00 | 93907 | 89013028 |
| 9 | 09/01/1979 | EXECUTORD | Executor Deed | BROWN, RON & | JOHNSON, DAVID K | | | $2,737.00 | 94721 | 0 |
| 10 | 02/01/1979 | OTHER | Other - Misc. Documents | Unknown | BROWN, RON & | | | $3,000.00 | 91043 | 348747 |
Payout Agreement
| No payout information available.. |