Property
Account |
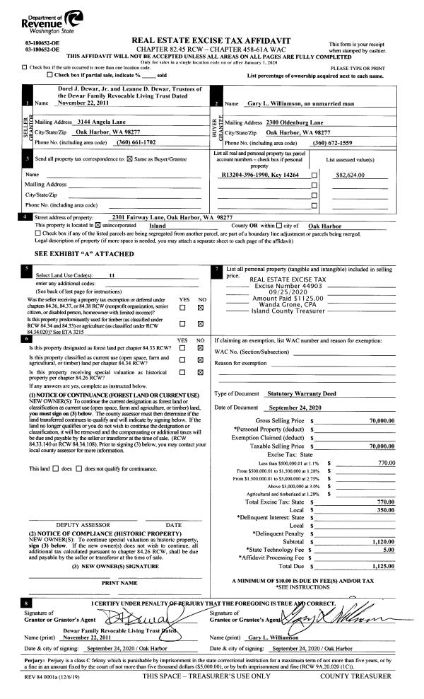
| Property ID: | 14264 | Abbreviated Legal Description: | 46 - IN SE NW:BG NLY CR LOT 32 WHIDBEY COUNTRY CLUB #1 N89*W150' N TO NLN SE NW S89*E TO NW CR LOT 34 S25* W191.95' TPB |
| Geographic ID: | R13204-396-1990 | Agent Code: | |
| Type: | Real | | |
| Tax Area: | 160 - APPRAISER-OH Schl Dist, Special Dist, improved & 1 acre or less | Land Use Code | 11 |
| Open Space: | N | DFL | N |
| Historic Property: | N | Remodel Property: | N |
| Multi-Family Redevelopment: | N | | |
| Township: | 32 | Section: | 04 |
| Range: | R1 |
Location |
| Address: | 2301 FAIRWAY LN OAK HARBOR, WA 98277 | Mapsco: | |
| Neighborhood: | Cycle 1 | Map ID: | 96 |
| Neighborhood CD: | 1 |
Owner |
| Name: | WILLIAMSON, GARY L | Owner ID: | 296246 |
| Mailing Address: | 2301 FAIRWAY LN OAK HARBOR, WA 98277 | % Ownership: | 100.0000000000% |
| | | Exemptions: | |
Taxes and Assessment Details
Values
| (+) Improvement Homesite Value: | + | $0 | |
| (+) Improvement Non-Homesite Value: | + | $178,256 | |
| (+) Land Homesite Value: | + | $0 | |
| (+) Land Non-Homesite Value: | + | $220,000 | |
| (+) Curr Use (HS): | + | $0 | $0 |
| (+) Curr Use (NHS): | + | $0 | $0 |
| | | -------------------------- | |
| (=) Market Value: | = | $398,256 | |
| (–) Productivity Loss: | – | $0 | |
| | | -------------------------- | |
| (=) Subtotal: | = | $398,256 | |
| (+) Senior Appraised Value: | + | $0 | |
| (+) Non-Senior Appraised Value: | + | $398,256 | |
| | | -------------------------- | |
| (=) Total Appraised Value: | = | $398,256 | |
| (–) Senior Exemption Loss: | – | $0 | |
| (–) Exemption Loss: | – | $0 | |
| | | -------------------------- | |
| (=) Taxable Value: | = | $398,256 | |
Taxing Jurisdiction
| Owner: | WILLIAMSON, GARY L | | |
| % Ownership: | 100.0000000000% | | |
| Total Value: | $398,256 | | |
| Tax Area: | 160 - APPRAISER-OH Schl Dist, Special Dist, improved & 1 acre or less |
| CF | Conservation Futures | 0.0313996660 | $398,256 | $398,256 | $12.51 | | |
| CEM1 | Cemetery #1 | 0.0040018856 | $398,256 | $398,256 | $1.59 | | |
| FIRE2 | Fire & Rescue Dist #2 N Whidbey GEN | 0.5381486274 | $398,256 | $398,256 | $214.32 | | |
| HOBOND | Hospital BOND | 0.1893405597 | $398,256 | $398,256 | $75.41 | | |
| HOGEN | Hospital GEN | 0.3848777722 | $398,256 | $398,256 | $153.28 | | |
| CE | County Current Expense | 0.3674210519 | $398,256 | $398,256 | $146.33 | | |
| CR | County Roads | 0.4614296361 | $398,256 | $398,256 | $183.77 | | |
| ISLANDEMS | Hospital GEN (EMS) | 0.4952018576 | $398,256 | $398,256 | $197.22 | | |
| LIB | Library Sno-Isle GEN | 0.3039084203 | $398,256 | $398,256 | $121.03 | | |
| NWHIDPRMT | P & R N Whidbey GEN | 0.1990272349 | $398,256 | $398,256 | $79.26 | | |
| SCH201MO | School 201 Enrichment | 2.3851112745 | $398,256 | $398,256 | $949.88 | | |
| ST | State School | 1.4761226122 | $398,256 | $398,256 | $587.87 | | |
| ST2 | State School Part 2 | 0.7953803475 | $398,256 | $398,256 | $316.76 | | |
| | Total Tax Rate: | 7.6313709459 | | | | | |
| | | | | Taxes w/Current Exemptions: | $3,039.23 | | |
| | | | | Taxes w/o Exemptions: | $3,039.23 | | |
Improvement / Building
| Improvement #1: | RESIDENTIAL | State Code: | Y | 1584.0 sqft | Value: | $178,256 |
| Bathrooms: | 2 | Bedrooms: | 2 | | Ceiling: | PLYWOOD PAINTED | Cooling: | HEAT PUMP/CONV/V | | Exterior Wall/Cover: | WOOD SIDING | Floor Covering: | VINYL 100% | | Floor Structure: | WOOD W/SUBFLOOR | Foundation: | CONCRETE BLOCKS | | Interior Finish: | DRYWALL PAINT | Plumbing Fixture Cnt: | 9 | | Roof Slope: | 4" IN 12" | Roof Structure/Cover: | CJ ASPHALT |
|
Sketch
Property Image
Land
| 1 | 16 | AC (00.51-01.00) | 0.8700 | 37897.20 | 0.00 | 0.00 | 1.00 | $220,000 | $0 |
Roll Value History
| 2026 | N/A | N/A | N/A | N/A | N/A |
| 2025 | $178,256 | $220,000 | $0 | $398,256 | $398,256 |
| 2024 | $181,214 | $200,000 | $0 | $381,214 | $381,214 |
| 2023 | $47,420 | $80,000 | $0 | $127,420 | $127,420 |
| 2022 | $43,869 | $80,000 | $0 | $123,869 | $123,869 |
| 2021 | $35,644 | $70,000 | $0 | $105,644 | $105,644 |
| 2020 | $22,625 | $60,000 | $0 | $82,625 | $82,625 |
| 2019 | $16,843 | $100,000 | $0 | $116,843 | $116,843 |
| 2018 | $16,927 | $5,000 | $0 | $21,927 | $21,927 |
| 2017 | $17,094 | $5,000 | $0 | $22,094 | $22,094 |
| 2016 | $17,429 | $5,000 | $0 | $22,429 | $22,429 |
| 2015 | $26,884 | $65,000 | $0 | $91,884 | $91,884 |
| 2014 | $27,392 | $63,750 | $0 | $91,142 | $91,142 |
| 2013 | $27,899 | $63,750 | $0 | $91,649 | $91,649 |
| 2012 | $28,406 | $63,750 | $0 | $92,156 | $92,156 |
| 2011 | $28,913 | $75,000 | $0 | $103,913 | $103,913 |
| 2010 | $31,466 | $75,000 | $0 | $106,466 | $106,466 |
| 2009 | $32,955 | $90,000 | $0 | $122,955 | $122,955 |
| 2008 | $33,470 | $95,500 | $0 | $128,970 | $128,970 |
| 2007 | $33,985 | $95,500 | $0 | $129,485 | $129,485 |
Deed and Sales History
| 1 | 09/24/2020 | WD | Warranty Deed | DEWAR JR TRUSTEE, DOREL J | WILLIAMSON, GARY L | | | $70,000.00 | 44903 | 4497559 |
| 2 | 10/24/2012 | TRUSTEED | Trustee's Deed | DEWAR, DOREL J & LEANNE | DEWAR JR TRUSTEE, DOREL J | | | $0.00 | 9772 | 4329265 |
| 3 | 07/01/1980 | CD | DNU - Correction Deed | DEWAR, DOREL J | DEWAR, LEANNE D | | | $15,000.00 | 2338 | 371061 |
| 4 | 07/01/1980 | CD | DNU - Correction Deed | DEWAR, DOREL J | DEWAR, DOREL J | | | $0.00 | 2660 | 372210 |
| 5 | 07/01/1980 | QCD | Quit Claim Deed | PEASE, D L | DEWAR, DOREL J | | | $0.00 | 61150 | 96005910 |
| 6 | 01/01/1900 | OTHER | Other - Misc. Documents | Unknown | PEASE, D L | | | $0.00 | 0 | 0 |
Payout Agreement
| No payout information available.. |