Property
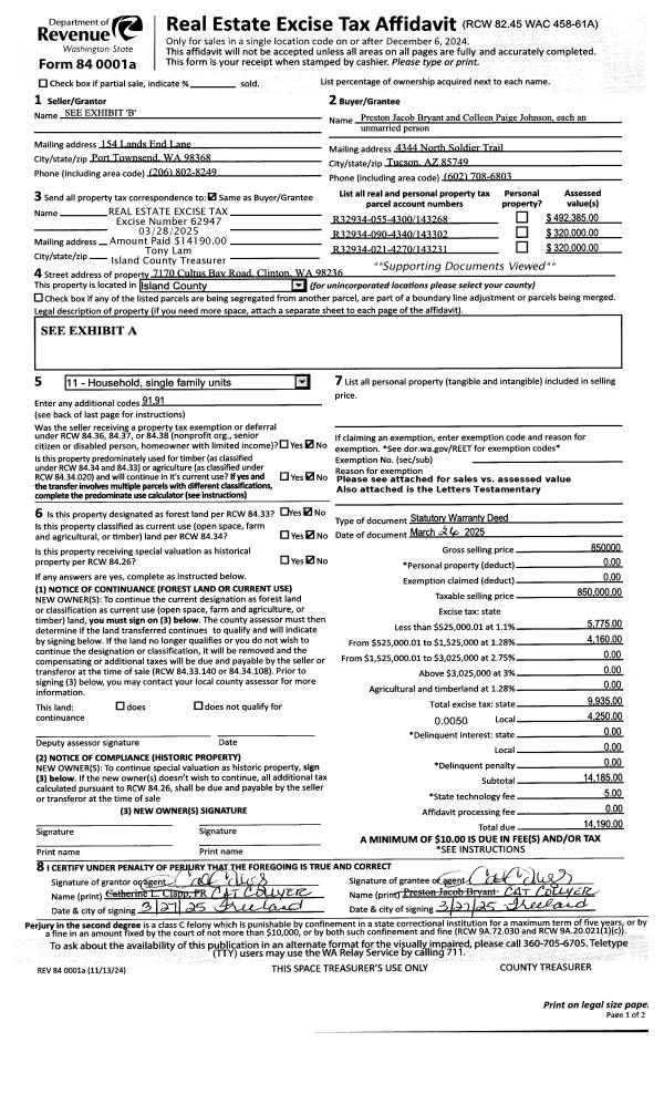
Account |
| Property ID: | 143268 | Abbreviated Legal Description: | 17 - N/2 S/2 SE SE & PT N/2 S/2 SW SW LY W OF CULTUS BAY RD IN SEC 35-29-3E COMB/W PT 078 0110 12/81 |
| Geographic ID: | R32934-055-4300 | Agent Code: | |
| Type: | Real | | |
| Tax Area: | 712 - APPRAISER-S Whid Schl Dist, outside Langley, improved, greater than 1 acre | Land Use Code | 11 |
| Open Space: | N | DFL | N |
| Historic Property: | N | Remodel Property: | N |
| Multi-Family Redevelopment: | N | | |
| Township: | 29 | Section: | 34 |
| Range: | R3 |
Location |
| Address: | 7170 CULTUS BAY RD CLINTON, WA 98236 | Mapsco: | |
| Neighborhood: | Cycle 4 | Map ID: | 839 |
| Neighborhood CD: | 4 |
Owner |
| Name: | BRYANT, PRESTON JACOB | Owner ID: | 315972 |
| Mailing Address: | COLLEEN PAIGE JOHNSON 4344 N SOLDIER TRAIL TUCSON, AZ 85749 | % Ownership: | 100.0000000000% |
| | | Exemptions: | |
Taxes and Assessment Details
Values
| (+) Improvement Homesite Value: | + | $0 | |
| (+) Improvement Non-Homesite Value: | + | $25,375 | |
| (+) Land Homesite Value: | + | $0 | |
| (+) Land Non-Homesite Value: | + | $400,000 | |
| (+) Curr Use (HS): | + | $0 | $0 |
| (+) Curr Use (NHS): | + | $0 | $0 |
| | | -------------------------- | |
| (=) Market Value: | = | $425,375 | |
| (–) Productivity Loss: | – | $0 | |
| | | -------------------------- | |
| (=) Subtotal: | = | $425,375 | |
| (+) Senior Appraised Value: | + | $0 | |
| (+) Non-Senior Appraised Value: | + | $425,375 | |
| | | -------------------------- | |
| (=) Total Appraised Value: | = | $425,375 | |
| (–) Senior Exemption Loss: | – | $0 | |
| (–) Exemption Loss: | – | $0 | |
| | | -------------------------- | |
| (=) Taxable Value: | = | $425,375 | |
Taxing Jurisdiction
| Owner: | BRYANT, PRESTON JACOB | | |
| % Ownership: | 100.0000000000% | | |
| Total Value: | $425,375 | | |
| Tax Area: | 712 - APPRAISER-S Whid Schl Dist, outside Langley, improved, greater than 1 acre |
| CF | Conservation Futures | 0.0313996660 | $425,375 | $425,375 | $13.36 | | |
| FIRE3 | Fire & Rescue Dist #3 S Whidbey GEN | 1.2130821753 | $425,375 | $425,375 | $516.01 | | |
| HOBOND | Hospital BOND | 0.1893405597 | $425,375 | $425,375 | $80.54 | | |
| HOGEN | Hospital GEN | 0.3848777722 | $425,375 | $425,375 | $163.72 | | |
| CE | County Current Expense | 0.3674210519 | $425,375 | $425,375 | $156.29 | | |
| CR | County Roads | 0.4614296361 | $425,375 | $425,375 | $196.28 | | |
| ISLANDEMS | Hospital GEN (EMS) | 0.4952018576 | $425,375 | $425,375 | $210.65 | | |
| LIB | Library Sno-Isle GEN | 0.3039084203 | $425,375 | $425,375 | $129.28 | | |
| PORTWHID | Port of S Whidbey GEN | 0.1086004714 | $425,375 | $425,375 | $46.20 | | |
| SCH206BOND | School 206 BOND | 0.5960237832 | $425,375 | $425,375 | $253.53 | | |
| SCH206CAP | School 206 CP | 0.3066144020 | $425,375 | $425,375 | $130.43 | | |
| SCH206MO | School 206 Enrichment | 0.4808755445 | $425,375 | $425,375 | $204.55 | | |
| ST | State School | 1.4761226122 | $425,375 | $425,375 | $627.91 | | |
| ST2 | State School Part 2 | 0.7953803475 | $425,375 | $425,375 | $338.33 | | |
| SWHIDPRBD | P & R S Whidbey BOND | 0.0144185398 | $425,375 | $425,375 | $6.13 | | |
| SWHIDPRBD3 | P & R S Whidbey BOND3 | 0.1483535547 | $425,375 | $425,375 | $63.11 | | |
| SWHIDPRMT | P & R S Whidbey GEN | 0.4600000000 | $425,375 | $425,375 | $195.67 | | |
| | Total Tax Rate: | 7.8330503944 | | | | | |
| | | | | Taxes w/Current Exemptions: | $3,331.99 | | |
| | | | | Taxes w/o Exemptions: | $3,331.99 | | |
Improvement / Building
| Improvement #1: | RESIDENTIAL | State Code: | Y | 1728.0 sqft | Value: | $25,375 |
| Bathrooms: | 1 | Bedrooms: | 2 | | Ceiling: | DRYWALL PAINTED | Exterior Wall/Cover: | WOOD SIDING | | Floor Covering: | CARPET/VINYL 80-20 | Floor Structure: | WOOD W/SUBFLOOR | | Foundation: | CONCRETE | Heating: | BASEBOARD ELECTRIC | | Interior Finish: | DRYWALL PAINT | Plumbing Fixture Cnt: | 7 | | Roof Slope: | 5" IN 12" | Roof Structure/Cover: | CJ ASPHALT |
|
| | Type | Description | Class CD | Sub Class CD | Year Built | Area |
| | BAS | BASE/MAIN FLOOR | 3 | 0 | 1935 | 864.0 |
| | DWN | DOWNSTAIRS LIVING AREA | 3 | 0 | 1935 | 864.0 |
| | OP1 | OPEN PORCH SLAB | 3 | 0 | 1935 | 72.0 |
| | OP2 | OPEN PORCH W/STEPS | 3 | 0 | 1935 | 60.0 |
| | OP4 | OPEN PORCH W/CEILING-ROOF | 3 | 0 | 1935 | 30.0 |
| | OP4 | OPEN PORCH W/CEILING-ROOF | 3 | 0 | 1935 | 30.0 |
Sketch
Property Image
Land
| 1 | 35 | AC (10.00-30.99) | 10.5000 | 457380.00 | 0.00 | 0.00 | 1.00 | $400,000 | $0 |
Roll Value History
| 2026 | N/A | N/A | N/A | N/A | N/A |
| 2025 | $25,375 | $400,000 | $0 | $425,375 | $425,375 |
| 2024 | $132,385 | $360,000 | $0 | $492,385 | $492,385 |
| 2023 | $135,072 | $360,000 | $0 | $495,072 | $495,072 |
| 2022 | $124,747 | $350,000 | $0 | $474,747 | $474,747 |
| 2021 | $115,092 | $250,000 | $0 | $365,092 | $365,092 |
| 2020 | $106,311 | $250,000 | $0 | $356,311 | $356,311 |
| 2019 | $74,585 | $300,000 | $0 | $374,585 | $374,585 |
| 2018 | $74,948 | $245,000 | $0 | $319,948 | $319,948 |
| 2017 | $75,677 | $200,000 | $0 | $275,677 | $275,677 |
| 2016 | $77,132 | $200,000 | $0 | $277,132 | $277,132 |
| 2015 | $78,588 | $200,000 | $0 | $278,588 | $278,588 |
| 2014 | $66,808 | $160,800 | $0 | $227,608 | $227,608 |
| 2013 | $68,017 | $160,800 | $0 | $228,817 | $228,817 |
| 2012 | $69,229 | $160,800 | $0 | $230,029 | $230,029 |
| 2011 | $70,442 | $160,800 | $0 | $231,242 | $231,242 |
| 2010 | $69,869 | $160,800 | $0 | $230,669 | $230,669 |
| 2009 | $73,197 | $176,800 | $0 | $249,997 | $249,997 |
| 2008 | $80,413 | $152,800 | $0 | $233,213 | $233,213 |
| 2007 | $81,615 | $152,800 | $0 | $234,415 | $234,415 |
Deed and Sales History
| 1 | 03/26/2025 | WD | Warranty Deed | CATHERINE L CLAPP, PR | BRYANT, PRESTON JACOB | | | $850,000.00 | 62947 | 4583778 |
|   | |
| 2 | 12/01/1981 | OTHER | Other - Misc. Documents | Unknown | KEYES, DENIS & | | | $0.00 | 59304 | 0 |
Payout Agreement
| No payout information available.. |