Property
Account |
| Property ID: | 143302 | Abbreviated Legal Description: | 8 - S330' OF N/2 SE SE & PT S330' N/2 SW SW LY W OF CULTUS BAY RD IN SEC 35-29- 3E COMB/W 078 0110 12/81 |
| Geographic ID: | R32934-090-4340 | Agent Code: | |
| Type: | Real | | |
| Tax Area: | 719 - APPRAISER-S Whid Schl Dist, outside Langley, vacant & 50 acres or less | Land Use Code | 91 |
| Open Space: | N | DFL | N |
| Historic Property: | N | Remodel Property: | N |
| Multi-Family Redevelopment: | N | | |
| Township: | 29 | Section: | 34 |
| Range: | R3 |
Location |
| Address: | | Mapsco: | |
| Neighborhood: | Cycle 4 | Map ID: | 839 |
| Neighborhood CD: | 4 |
Owner |
| Name: | BRYANT, PRESTON JACOB | Owner ID: | 315972 |
| Mailing Address: | COLLEEN PAIGE JOHNSON 4344 N SOLDIER TRAIL TUCSON, AZ 85749 | % Ownership: | 100.0000000000% |
| | | Exemptions: | |
Taxes and Assessment Details
Values
| (+) Improvement Homesite Value: | + | $0 | |
| (+) Improvement Non-Homesite Value: | + | $0 | |
| (+) Land Homesite Value: | + | $0 | |
| (+) Land Non-Homesite Value: | + | $330,000 | |
| (+) Curr Use (HS): | + | $0 | $0 |
| (+) Curr Use (NHS): | + | $0 | $0 |
| | | -------------------------- | |
| (=) Market Value: | = | $330,000 | |
| (–) Productivity Loss: | – | $0 | |
| | | -------------------------- | |
| (=) Subtotal: | = | $330,000 | |
| (+) Senior Appraised Value: | + | $0 | |
| (+) Non-Senior Appraised Value: | + | $330,000 | |
| | | -------------------------- | |
| (=) Total Appraised Value: | = | $330,000 | |
| (–) Senior Exemption Loss: | – | $0 | |
| (–) Exemption Loss: | – | $0 | |
| | | -------------------------- | |
| (=) Taxable Value: | = | $330,000 | |
Taxing Jurisdiction
| Owner: | BRYANT, PRESTON JACOB | | |
| % Ownership: | 100.0000000000% | | |
| Total Value: | $330,000 | | |
| Tax Area: | 719 - APPRAISER-S Whid Schl Dist, outside Langley, vacant & 50 acres or less |
| CF | Conservation Futures | 0.0313996660 | $330,000 | $330,000 | $10.36 | | |
| HOBOND | Hospital BOND | 0.1893405597 | $330,000 | $330,000 | $62.48 | | |
| HOGEN | Hospital GEN | 0.3848777722 | $330,000 | $330,000 | $127.01 | | |
| CE | County Current Expense | 0.3674210519 | $330,000 | $330,000 | $121.25 | | |
| CR | County Roads | 0.4614296361 | $330,000 | $330,000 | $152.27 | | |
| ISLANDEMS | Hospital GEN (EMS) | 0.4952018576 | $330,000 | $330,000 | $163.42 | | |
| LIB | Library Sno-Isle GEN | 0.3039084203 | $330,000 | $330,000 | $100.29 | | |
| PORTWHID | Port of S Whidbey GEN | 0.1086004714 | $330,000 | $330,000 | $35.84 | | |
| SCH206BOND | School 206 BOND | 0.5960237832 | $330,000 | $330,000 | $196.69 | | |
| SCH206CAP | School 206 CP | 0.3066144020 | $330,000 | $330,000 | $101.18 | | |
| SCH206MO | School 206 Enrichment | 0.4808755445 | $330,000 | $330,000 | $158.69 | | |
| ST | State School | 1.4761226122 | $330,000 | $330,000 | $487.12 | | |
| ST2 | State School Part 2 | 0.7953803475 | $330,000 | $330,000 | $262.48 | | |
| SWHIDPRBD | P & R S Whidbey BOND | 0.0144185398 | $330,000 | $330,000 | $4.76 | | |
| SWHIDPRBD3 | P & R S Whidbey BOND3 | 0.1483535547 | $330,000 | $330,000 | $48.96 | | |
| SWHIDPRMT | P & R S Whidbey GEN | 0.4600000000 | $330,000 | $330,000 | $151.80 | | |
| | Total Tax Rate: | 6.6199682191 | | | | | |
| | | | | Taxes w/Current Exemptions: | $2,184.60 | | |
| | | | | Taxes w/o Exemptions: | $2,184.60 | | |
Improvement / Building
Sketch
| No sketches available for this property. |
Property Image
Land
| 1 | 35 | AC (10.00-30.99) | 10.8700 | 473497.20 | 0.00 | 0.00 | 1.00 | $330,000 | $0 |
Roll Value History
| 2026 | N/A | N/A | N/A | N/A | N/A |
| 2025 | $0 | $330,000 | $0 | $330,000 | $330,000 |
| 2024 | $0 | $320,000 | $0 | $320,000 | $320,000 |
| 2023 | $0 | $280,000 | $0 | $280,000 | $280,000 |
| 2022 | $0 | $250,000 | $0 | $250,000 | $250,000 |
| 2021 | $0 | $190,000 | $0 | $190,000 | $190,000 |
| 2020 | $0 | $160,000 | $0 | $160,000 | $160,000 |
| 2019 | $0 | $160,000 | $0 | $160,000 | $160,000 |
| 2018 | $0 | $150,000 | $0 | $150,000 | $150,000 |
| 2017 | $0 | $150,000 | $0 | $150,000 | $150,000 |
| 2016 | $0 | $130,000 | $0 | $130,000 | $130,000 |
| 2015 | $0 | $130,000 | $0 | $130,000 | $130,000 |
| 2014 | $0 | $121,148 | $0 | $121,148 | $121,148 |
| 2013 | $0 | $121,148 | $0 | $121,148 | $121,148 |
| 2012 | $0 | $121,148 | $0 | $121,148 | $121,148 |
| 2011 | $0 | $121,148 | $0 | $121,148 | $121,148 |
| 2010 | $0 | $121,148 | $0 | $121,148 | $121,148 |
| 2009 | $0 | $161,148 | $0 | $161,148 | $161,148 |
| 2008 | $0 | $161,148 | $0 | $161,148 | $161,148 |
| 2007 | $0 | $113,148 | $0 | $113,148 | $113,148 |
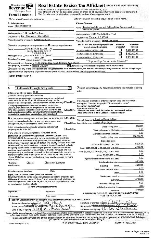
Deed and Sales History
| 1 | 03/26/2025 | WD | Warranty Deed | CATHERINE L CLAPP, PR | BRYANT, PRESTON JACOB | | | $850,000.00 | 62947 | 4583778 |
|   | |
| 2 | 12/01/1981 | OTHER | Other - Misc. Documents | Unknown | KEYES, DENIS & | | | $0.00 | 59304 | 0 |
Payout Agreement
| No payout information available.. |