Property
Account |
| Property ID: | 143419 | Abbreviated Legal Description: | 36 - W/2 W/2 NW SE EX RD |
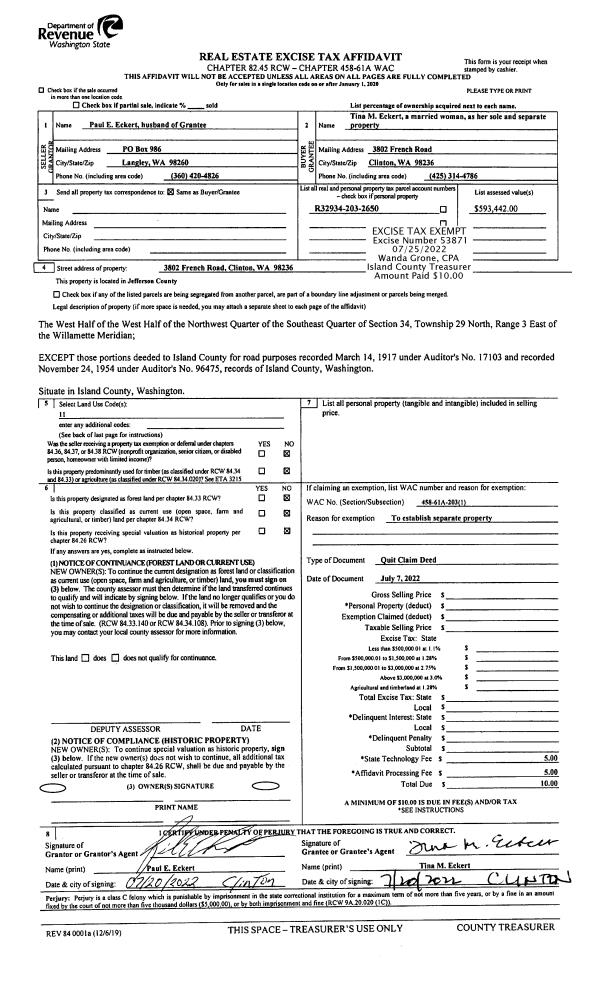
| Geographic ID: | R32934-203-2650 | Agent Code: | |
| Type: | Real | | |
| Tax Area: | 712 - APPRAISER-S Whid Schl Dist, outside Langley, improved, greater than 1 acre | Land Use Code | 11 |
| Open Space: | N | DFL | N |
| Historic Property: | N | Remodel Property: | N |
| Multi-Family Redevelopment: | N | | |
| Township: | 29 | Section: | 34 |
| Range: | R3 |
Location |
| Address: | 3802 FRENCH RD CLINTON, WA 98236 | Mapsco: | |
| Neighborhood: | Cycle 4 | Map ID: | 839 |
| Neighborhood CD: | 4 |
Owner |
| Name: | ECKERT, TINA M | Owner ID: | 305151 |
| Mailing Address: | 3802 FRENCH RD CLINTON, WA 98236 | % Ownership: | 100.0000000000% |
| | | Exemptions: | |
Taxes and Assessment Details
Values
| (+) Improvement Homesite Value: | + | $0 | |
| (+) Improvement Non-Homesite Value: | + | $496,044 | |
| (+) Land Homesite Value: | + | $0 | |
| (+) Land Non-Homesite Value: | + | $370,000 | |
| (+) Curr Use (HS): | + | $0 | $0 |
| (+) Curr Use (NHS): | + | $0 | $0 |
| | | -------------------------- | |
| (=) Market Value: | = | $866,044 | |
| (–) Productivity Loss: | – | $0 | |
| | | -------------------------- | |
| (=) Subtotal: | = | $866,044 | |
| (+) Senior Appraised Value: | + | $0 | |
| (+) Non-Senior Appraised Value: | + | $866,044 | |
| | | -------------------------- | |
| (=) Total Appraised Value: | = | $866,044 | |
| (–) Senior Exemption Loss: | – | $0 | |
| (–) Exemption Loss: | – | $0 | |
| | | -------------------------- | |
| (=) Taxable Value: | = | $866,044 | |
Taxing Jurisdiction
| Owner: | ECKERT, TINA M | | |
| % Ownership: | 100.0000000000% | | |
| Total Value: | $866,044 | | |
| Tax Area: | 712 - APPRAISER-S Whid Schl Dist, outside Langley, improved, greater than 1 acre |
| CF | Conservation Futures | 0.0313996660 | $866,044 | $866,044 | $27.19 | | |
| FIRE3 | Fire & Rescue Dist #3 S Whidbey GEN | 1.2130821753 | $866,044 | $866,044 | $1,050.58 | | |
| HOBOND | Hospital BOND | 0.1893405597 | $866,044 | $866,044 | $163.98 | | |
| HOGEN | Hospital GEN | 0.3848777722 | $866,044 | $866,044 | $333.32 | | |
| CE | County Current Expense | 0.3674210519 | $866,044 | $866,044 | $318.20 | | |
| CR | County Roads | 0.4614296361 | $866,044 | $866,044 | $399.62 | | |
| ISLANDEMS | Hospital GEN (EMS) | 0.4952018576 | $866,044 | $866,044 | $428.87 | | |
| LIB | Library Sno-Isle GEN | 0.3039084203 | $866,044 | $866,044 | $263.20 | | |
| PORTWHID | Port of S Whidbey GEN | 0.1086004714 | $866,044 | $866,044 | $94.05 | | |
| SCH206BOND | School 206 BOND | 0.5960237832 | $866,044 | $866,044 | $516.18 | | |
| SCH206CAP | School 206 CP | 0.3066144020 | $866,044 | $866,044 | $265.54 | | |
| SCH206MO | School 206 Enrichment | 0.4808755445 | $866,044 | $866,044 | $416.46 | | |
| ST | State School | 1.4761226122 | $866,044 | $866,044 | $1,278.39 | | |
| ST2 | State School Part 2 | 0.7953803475 | $866,044 | $866,044 | $688.83 | | |
| SWHIDPRBD | P & R S Whidbey BOND | 0.0144185398 | $866,044 | $866,044 | $12.49 | | |
| SWHIDPRBD3 | P & R S Whidbey BOND3 | 0.1483535547 | $866,044 | $866,044 | $128.48 | | |
| SWHIDPRMT | P & R S Whidbey GEN | 0.4600000000 | $866,044 | $866,044 | $398.38 | | |
| | Total Tax Rate: | 7.8330503944 | | | | | |
| | | | | Taxes w/Current Exemptions: | $6,783.76 | | |
| | | | | Taxes w/o Exemptions: | $6,783.76 | | |
Improvement / Building
| Improvement #1: | RESIDENTIAL | State Code: | Y | 2802.0 sqft | Value: | $496,044 |
| Bathrooms: | 2 | Bedrooms: | 3 | | Ceiling: | DRYWALL PAINTED | Exterior Wall/Cover: | WOOD SIDING | | Floor Covering: | CERAMIC TILE/HWD 40/60 | Floor Structure: | WOOD W/SUBFLOOR | | Foundation: | CONCRETE | Heating: | FHA GAS | | Interior Finish: | DRYWALL PAINT | Plumbing Fixture Cnt: | 15 | | Roof Slope: | 4" IN 12" | Roof Structure/Cover: | CJ ASPHALT |
|
| | Type | Description | Class CD | Sub Class CD | Year Built | Area |
| | BAS | BASE/MAIN FLOOR | 3 | 0 | 1992 | 1690.0 |
| | AGR | ATTACHED GARAGE | 3 | 0 | 1992 | 528.0 |
| | UPS | UPPER STORY | 3 | 0 | 1992 | 992.0 |
| | OWP | OPEN WOOD PORCH W/STEPS | 3 | 0 | 1992 | 60.0 |
| | OWP | OPEN WOOD PORCH W/STEPS | 3 | 0 | 1992 | 752.0 |
| | ENP | ENCLOSED PORCH | 3 | 0 | 1992 | 300.0 |
| | LOF | LOFT | 3 | 0 | 1992 | 120.0 |
| | oGAR | GARAGE | 4 | 0 | 2024 | 1703.8 |
| | oLOF | STORAGE LOFT | 4 | 0 | 2024 | 780.0 |
| | OWP | OPEN WOOD PORCH W/STEPS | 3 | 0 | 1992 | 71.5 |
Sketch
Property Image
Land
| 1 | 32 | AC (03.01-09.99) | 0.0000 | 0.00 | 0.00 | 0.00 | 1.00 | $370,000 | $0 |
Roll Value History
| 2026 | N/A | N/A | N/A | N/A | N/A |
| 2025 | $496,044 | $370,000 | $0 | $866,044 | $866,044 |
| 2024 | $490,803 | $350,000 | $0 | $840,803 | $840,803 |
| 2023 | $450,198 | $330,000 | $0 | $780,198 | $780,198 |
| 2022 | $412,818 | $280,000 | $0 | $692,818 | $692,818 |
| 2021 | $363,442 | $230,000 | $0 | $593,442 | $593,442 |
| 2020 | $350,360 | $190,000 | $0 | $540,360 | $540,360 |
| 2019 | $279,186 | $250,000 | $0 | $529,186 | $529,186 |
| 2018 | $279,970 | $210,000 | $0 | $489,970 | $489,970 |
| 2017 | $281,540 | $190,000 | $0 | $471,540 | $471,540 |
| 2016 | $284,677 | $165,000 | $0 | $449,677 | $449,677 |
| 2015 | $270,438 | $165,000 | $0 | $435,438 | $435,438 |
| 2014 | $241,714 | $146,550 | $0 | $388,264 | $388,264 |
| 2013 | $244,638 | $146,550 | $0 | $391,188 | $391,188 |
| 2012 | $247,561 | $146,550 | $0 | $394,111 | $394,111 |
| 2011 | $250,485 | $146,550 | $0 | $397,035 | $397,035 |
| 2010 | $259,647 | $146,550 | $0 | $406,197 | $406,197 |
| 2009 | $271,472 | $214,940 | $0 | $486,412 | $486,412 |
| 2008 | $270,158 | $185,630 | $0 | $455,788 | $455,788 |
| 2007 | $274,335 | $185,630 | $0 | $459,965 | $459,965 |
Deed and Sales History
| 1 | 07/21/2022 | QCD | Quit Claim Deed | ECKERT, PAUL E | ECKERT, TINA M | | | $0.00 | 54094 | 4549417 |
| 2 | 07/07/2022 | QCD | Quit Claim Deed | ECKERT, PAUL E | ECKERT, TINA M | | | $0.00 | 53871 | 4548609 |
| 3 | 10/01/1989 | WD | Warranty Deed | WATERMAN, FAMILY L | ECKERT, PAUL E | | | $29,500.00 | 95221 | 89016814 |
| 4 | 08/01/1989 | QCD | Quit Claim Deed | WATERMAN, MARGARET E | WATERMAN, FAMILY L | | | $0.00 | 93522 | 89011849 |
| 5 | 12/01/1986 | WD | Warranty Deed | WATERMAN, LOGGING C | WATERMAN, MARGARET E | | | $0.00 | 63686 | 86016502 |
| 6 | 05/01/1977 | TRUSTEED | Trustee's Deed | GRAHAM, LOUISE M | WATERMAN, LOGGING C | | | $0.00 | 71780 | 0 |
| 7 | 01/01/1900 | OTHER | Other - Misc. Documents | Unknown | GRAHAM, LOUISE M | | | $0.00 | 0 | 0 |
Payout Agreement
| No payout information available.. |