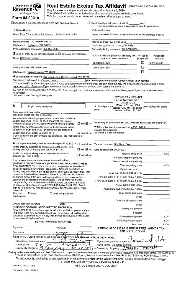
Property
Account |
| Property ID: | 144034 | Abbreviated Legal Description: | 3 - W/2 N/2 N/2 NW SE TGW W/2 S/2 S/2 SW NE EX S20' V35 D P88 |
| Geographic ID: | R32935-283-2990 | Agent Code: | |
| Type: | Real | | |
| Tax Area: | 719 - APPRAISER-S Whid Schl Dist, outside Langley, vacant & 50 acres or less | Land Use Code | 91 |
| Open Space: | N | DFL | N |
| Historic Property: | N | Remodel Property: | N |
| Multi-Family Redevelopment: | N | | |
| Township: | 29 | Section: | 35 |
| Range: | R3 |
Location |
| Address: | | Mapsco: | |
| Neighborhood: | Cycle 4 | Map ID: | 845 |
| Neighborhood CD: | 4 |
Owner |
| Name: | MADSEN, JUSTIN T | Owner ID: | 190812 |
| Mailing Address: | STACY G MADSEN PO BOX 438 CLINTON, WA 98236-0438 | % Ownership: | 100.0000000000% |
| | | Exemptions: | |
Taxes and Assessment Details
Values
| (+) Improvement Homesite Value: | + | $0 | |
| (+) Improvement Non-Homesite Value: | + | $0 | |
| (+) Land Homesite Value: | + | $0 | |
| (+) Land Non-Homesite Value: | + | $240,000 | |
| (+) Curr Use (HS): | + | $0 | $0 |
| (+) Curr Use (NHS): | + | $0 | $0 |
| | | -------------------------- | |
| (=) Market Value: | = | $240,000 | |
| (–) Productivity Loss: | – | $0 | |
| | | -------------------------- | |
| (=) Subtotal: | = | $240,000 | |
| (+) Senior Appraised Value: | + | $0 | |
| (+) Non-Senior Appraised Value: | + | $240,000 | |
| | | -------------------------- | |
| (=) Total Appraised Value: | = | $240,000 | |
| (–) Senior Exemption Loss: | – | $0 | |
| (–) Exemption Loss: | – | $0 | |
| | | -------------------------- | |
| (=) Taxable Value: | = | $240,000 | |
Taxing Jurisdiction
| Owner: | MADSEN, JUSTIN T | | |
| % Ownership: | 100.0000000000% | | |
| Total Value: | $240,000 | | |
| Tax Area: | 719 - APPRAISER-S Whid Schl Dist, outside Langley, vacant & 50 acres or less |
| CF | Conservation Futures | 0.0313996660 | $240,000 | $240,000 | $7.54 | | |
| HOBOND | Hospital BOND | 0.1893405597 | $240,000 | $240,000 | $45.44 | | |
| HOGEN | Hospital GEN | 0.3848777722 | $240,000 | $240,000 | $92.37 | | |
| CE | County Current Expense | 0.3674210519 | $240,000 | $240,000 | $88.18 | | |
| CR | County Roads | 0.4614296361 | $240,000 | $240,000 | $110.74 | | |
| ISLANDEMS | Hospital GEN (EMS) | 0.4952018576 | $240,000 | $240,000 | $118.85 | | |
| LIB | Library Sno-Isle GEN | 0.3039084203 | $240,000 | $240,000 | $72.94 | | |
| PORTWHID | Port of S Whidbey GEN | 0.1086004714 | $240,000 | $240,000 | $26.06 | | |
| SCH206BOND | School 206 BOND | 0.5960237832 | $240,000 | $240,000 | $143.05 | | |
| SCH206CAP | School 206 CP | 0.3066144020 | $240,000 | $240,000 | $73.59 | | |
| SCH206MO | School 206 Enrichment | 0.4808755445 | $240,000 | $240,000 | $115.41 | | |
| ST | State School | 1.4761226122 | $240,000 | $240,000 | $354.27 | | |
| ST2 | State School Part 2 | 0.7953803475 | $240,000 | $240,000 | $190.89 | | |
| SWHIDPRBD | P & R S Whidbey BOND | 0.0144185398 | $240,000 | $240,000 | $3.46 | | |
| SWHIDPRBD3 | P & R S Whidbey BOND3 | 0.1483535547 | $240,000 | $240,000 | $35.60 | | |
| SWHIDPRMT | P & R S Whidbey GEN | 0.4600000000 | $240,000 | $240,000 | $110.40 | | |
| | Total Tax Rate: | 6.6199682191 | | | | | |
| | | | | Taxes w/Current Exemptions: | $1,588.79 | | |
| | | | | Taxes w/o Exemptions: | $1,588.79 | | |
Improvement / Building
Sketch
| No sketches available for this property. |
Property Image
Land
| 1 | 32 | AC (03.01-09.99) | 9.7000 | 422532.00 | 0.00 | 0.00 | 1.00 | $240,000 | $0 |
Roll Value History
| 2026 | N/A | N/A | N/A | N/A | N/A |
| 2025 | $0 | $240,000 | $0 | $240,000 | $240,000 |
| 2024 | $0 | $220,000 | $0 | $220,000 | $220,000 |
| 2023 | $0 | $200,000 | $0 | $200,000 | $200,000 |
| 2022 | $0 | $170,000 | $0 | $170,000 | $170,000 |
| 2021 | $0 | $150,000 | $0 | $150,000 | $150,000 |
| 2020 | $0 | $150,000 | $0 | $150,000 | $150,000 |
| 2019 | $0 | $135,000 | $0 | $135,000 | $135,000 |
| 2018 | $0 | $120,000 | $0 | $120,000 | $120,000 |
| 2017 | $0 | $120,000 | $0 | $120,000 | $120,000 |
| 2016 | $0 | $130,000 | $0 | $130,000 | $130,000 |
| 2015 | $0 | $130,000 | $0 | $130,000 | $130,000 |
| 2014 | $0 | $126,100 | $0 | $126,100 | $126,100 |
| 2013 | $0 | $126,100 | $0 | $126,100 | $126,100 |
| 2012 | $0 | $126,100 | $0 | $126,100 | $126,100 |
| 2011 | $0 | $126,100 | $0 | $126,100 | $126,100 |
| 2010 | $0 | $126,100 | $0 | $126,100 | $126,100 |
| 2009 | $0 | $168,780 | $0 | $168,780 | $168,780 |
| 2008 | $0 | $168,780 | $0 | $168,780 | $168,780 |
| 2007 | $0 | $168,780 | $0 | $168,780 | $168,780 |
Deed and Sales History
| 1 | 06/30/2021 | WD | Warranty Deed | BRADLEY, RANDALL E | MADSEN, JUSTIN T | | | $445,000.00 | 48982 | 4523326 |
|   | |
| 2 | 05/01/1976 | EXECUTORD | Executor Deed | SANDBERG, VERNAL G | BRADLEY, RANDALL E | | | $18,000.00 | 61633 | 0 |
| 3 | 01/01/1900 | OTHER | Other - Misc. Documents | Unknown | SANDBERG, VERNAL G | | | $0.00 | 0 | 0 |
Payout Agreement
| No payout information available.. |