Property
Account |
| Property ID: | 144043 | Abbreviated Legal Description: | 36 - E/2 S/2 S/2 SW NE EX RDS |
| Geographic ID: | R32935-283-3630 | Agent Code: | |
| Type: | Real | | |
| Tax Area: | 712 - APPRAISER-S Whid Schl Dist, outside Langley, improved, greater than 1 acre | Land Use Code | 11 |
| Open Space: | N | DFL | N |
| Historic Property: | N | Remodel Property: | N |
| Multi-Family Redevelopment: | N | | |
| Township: | 29 | Section: | 35 |
| Range: | R3 |
Location |
| Address: | 6992 HOLST RD CLINTON, WA 98236 | Mapsco: | |
| Neighborhood: | Cycle 4 | Map ID: | 845 |
| Neighborhood CD: | 4 |
Owner |
| Name: | MADSEN, JUSTIN T | Owner ID: | 190812 |
| Mailing Address: | STACY G MADSEN PO BOX 438 CLINTON, WA 98236-0438 | % Ownership: | 100.0000000000% |
| | | Exemptions: | |
Taxes and Assessment Details
Values
| (+) Improvement Homesite Value: | + | N/A | |
| (+) Improvement Non-Homesite Value: | + | N/A | |
| (+) Land Homesite Value: | + | N/A | |
| (+) Land Non-Homesite Value: | + | N/A | Ag / Timber Use Value |
| (+) Curr Use (HS): | + | N/A | N/A |
| (+) Curr Use (NHS): | + | N/A | N/A |
| | | -------------------------- | |
| (=) Market Value: | = | N/A | |
| (–) Productivity Loss: | – | N/A | |
| | | -------------------------- | |
| (=) Subtotal: | = | N/A | |
| (+) Senior Appraised Value: | + | N/A | |
| (+) Non-Senior Appraised Value: | + | N/A | |
| | | -------------------------- | |
| (=) Total Appraised Value: | = | N/A | |
| (–) Senior Exemption Loss: | – | N/A | |
| (–) Exemption Loss: | – | N/A | |
| | | -------------------------- | |
| (=) Taxable Value: | = | N/A | |
Taxing Jurisdiction
| Owner: | MADSEN, JUSTIN T | | |
| % Ownership: | 100.0000000000% | | |
| Total Value: | N/A | | |
| Tax Area: | 712 - APPRAISER-S Whid Schl Dist, outside Langley, improved, greater than 1 acre |
| CF | Conservation Futures | N/A | N/A | N/A | N/A | | |
| WCD | Whidbey Conservation District | N/A | N/A | N/A | N/A | | |
| FIRE3 | Fire & Rescue Dist #3 S Whidbey GEN | N/A | N/A | N/A | N/A | | |
| HOBOND | Hospital BOND | N/A | N/A | N/A | N/A | | |
| HOGEN | Hospital GEN | N/A | N/A | N/A | N/A | | |
| CE | County Current Expense | N/A | N/A | N/A | N/A | | |
| CR | County Roads | N/A | N/A | N/A | N/A | | |
| ISLANDEMS | Hospital GEN (EMS) | N/A | N/A | N/A | N/A | | |
| LIB | Library Sno-Isle GEN | N/A | N/A | N/A | N/A | | |
| PORTWHID | Port of S Whidbey GEN | N/A | N/A | N/A | N/A | | |
| SCH206CAP | School 206 CP | N/A | N/A | N/A | N/A | | |
| SCH206MO | School 206 Enrichment | N/A | N/A | N/A | N/A | | |
| ST | State School | N/A | N/A | N/A | N/A | | |
| ST2 | State School Part 2 | N/A | N/A | N/A | N/A | | |
| SWHIDPRBD | P & R S Whidbey BOND | N/A | N/A | N/A | N/A | | |
| SWHIDPRBD2 | P & R S Whidbey BOND2 | N/A | N/A | N/A | N/A | | |
| SWHIDPRMT | P & R S Whidbey GEN | N/A | N/A | N/A | N/A | | |
| | Total Tax Rate: | N/A | | | | | |
| | | | | Taxes w/Current Exemptions: | N/A | | |
| | | | | Taxes w/o Exemptions: | N/A | | |
Improvement / Building
| Improvement #1: | RESIDENTIAL | State Code: | Y | 1720.0 sqft | Value: | N/A |
| Bathrooms: | 1 | Bedrooms: | 3 | | Ceiling: | PLYWOOD PAINTED | Exterior Wall/Cover: | WOOD SIDING | | Floor Covering: | CARPET/VINYL 20-80 | Floor Structure: | WOOD W/SUBFLOOR | | Foundation: | CONCRETE | Heating: | FHA GAS | | Interior Finish: | DRYWALL PAINT | Plumbing Fixture Cnt: | 6 | | Roof Slope: | 5" IN 12" | Roof Structure/Cover: | CJ ALUMINIUM HEAVY |
|
| | Type | Description | Class CD | Sub Class CD | Year Built | Area |
| | BAS | BASE/MAIN FLOOR | 3 | 0 | 1963 | 1244.0 |
| | UB6 | BASEMENT UNFINISHED 6" | 3 | 0 | 1963 | 768.0 |
| | UPS | UPPER STORY | 3 | 0 | 1963 | 476.0 |
| | OWP | OPEN WOOD PORCH W/STEPS | 3 | 0 | 1963 | 416.0 |
| | UTY | STORAGE/UTILITY | 3 | 0 | 1963 | 1260.0 |
Sketch
Property Image
Land
| 1 | HS | HOMESITE | 1.0000 | 43560.00 | 0.00 | 0.00 | 1.00 | N/A | N/A |
| 2 | 91 | UNDEVELOPED LAND-METES AND BOUNDS | 4.0000 | 174240.00 | 0.00 | 0.00 | 1.00 | N/A | N/A |
Roll Value History
| 2026 | N/A | N/A | N/A | N/A | N/A |
| 2025 | $211,755 | $360,000 | $0 | $571,755 | $571,755 |
| 2024 | $215,886 | $340,000 | $0 | $555,886 | $555,886 |
| 2023 | $220,018 | $330,000 | $0 | $550,018 | $550,018 |
| 2022 | $202,981 | $280,000 | $0 | $482,981 | $482,981 |
| 2021 | $179,756 | $230,000 | $0 | $409,756 | $409,756 |
| 2020 | $141,046 | $190,000 | $0 | $331,046 | $331,046 |
| 2019 | $107,992 | $220,000 | $0 | $327,992 | $327,992 |
| 2018 | $108,453 | $210,000 | $0 | $318,453 | $318,453 |
| 2017 | $109,375 | $165,000 | $0 | $274,375 | $274,375 |
| 2016 | $111,220 | $165,000 | $0 | $276,220 | $276,220 |
| 2015 | $113,065 | $150,000 | $0 | $263,065 | $263,065 |
| 2014 | $98,901 | $150,000 | $0 | $248,901 | $248,901 |
| 2013 | $101,367 | $165,000 | $0 | $266,367 | $266,367 |
| 2012 | $103,126 | $170,000 | $0 | $273,126 | $273,126 |
| 2011 | $104,884 | $170,000 | $0 | $274,884 | $274,884 |
| 2010 | $90,722 | $170,000 | $0 | $260,722 | $260,722 |
| 2009 | $93,253 | $220,000 | $0 | $313,253 | $313,253 |
| 2008 | $123,242 | $209,844 | $0 | $333,086 | $333,086 |
| 2007 | $123,938 | $211,029 | $0 | $334,967 | $334,967 |
Deed and Sales History
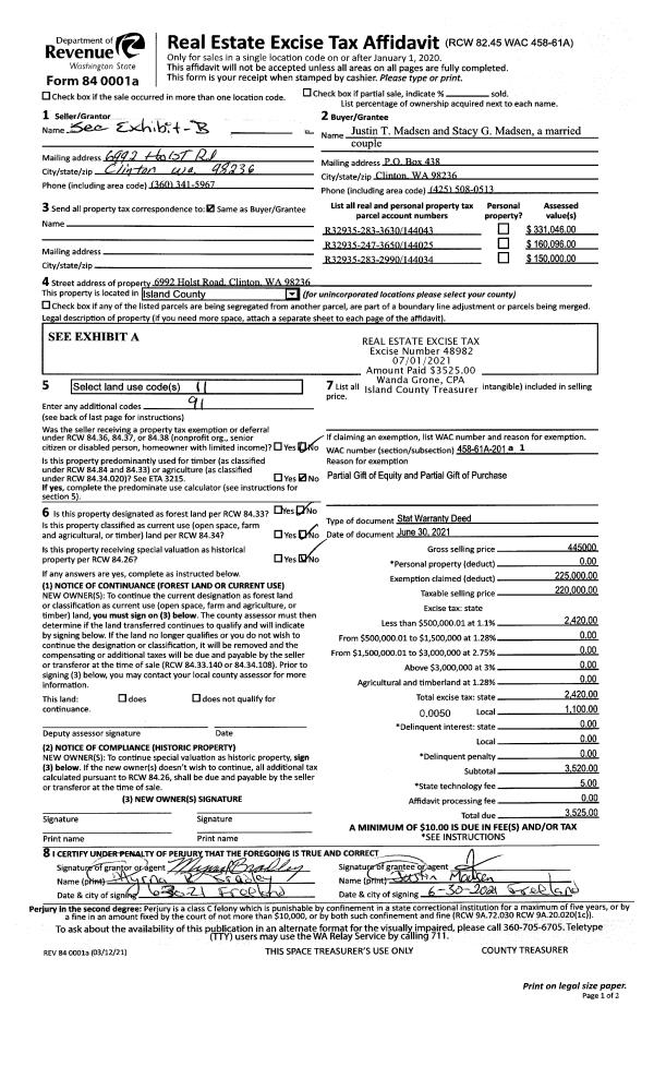
| 1 | 06/30/2021 | WD | Warranty Deed | BRADLEY, RANDALL E | MADSEN, JUSTIN T | | | $445,000.00 | 48982 | 4523326 |
|   | |
| 2 | 10/16/2019 | EZ | Easement | BRADLEY, RANDALL E | PUGET SOUND ENERGY | | | $1,500.00 | 40878 | 4474333 |
Payout Agreement
| No payout information available.. |