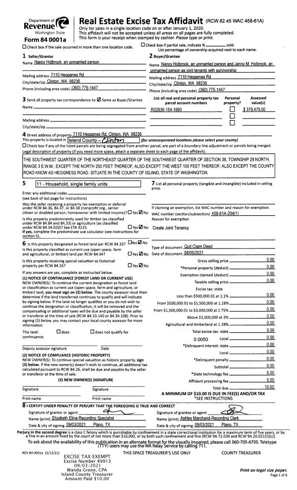
Property
Account |
| Property ID: | 144542 | Abbreviated Legal Description: | 13 - SW NE SW EX N250' EX W100' |
| Geographic ID: | R32936-154-1680 | Agent Code: | |
| Type: | Real | | |
| Tax Area: | 712 - APPRAISER-S Whid Schl Dist, outside Langley, improved, greater than 1 acre | Land Use Code | 11 |
| Open Space: | N | DFL | N |
| Historic Property: | N | Remodel Property: | N |
| Multi-Family Redevelopment: | N | | |
| Township: | 29 | Section: | 36 |
| Range: | R3 |
Location |
| Address: | 7110 HEGGENES RD CLINTON, WA 98236 | Mapsco: | |
| Neighborhood: | Cycle 4 | Map ID: | 846 |
| Neighborhood CD: | 4 |
Owner |
| Name: | HOLBROOK JTWROS, NANCY J | Owner ID: | 301021 |
| Mailing Address: | JENNY M HOLBROOK JTWROS 7110 HEGGENES RD CLINTON, WA 98236 | % Ownership: | 100.0000000000% |
| | | Exemptions: | |
Taxes and Assessment Details
Values
| (+) Improvement Homesite Value: | + | $0 | |
| (+) Improvement Non-Homesite Value: | + | $260,406 | |
| (+) Land Homesite Value: | + | $0 | |
| (+) Land Non-Homesite Value: | + | $360,000 | |
| (+) Curr Use (HS): | + | $0 | $0 |
| (+) Curr Use (NHS): | + | $0 | $0 |
| | | -------------------------- | |
| (=) Market Value: | = | $620,406 | |
| (–) Productivity Loss: | – | $0 | |
| | | -------------------------- | |
| (=) Subtotal: | = | $620,406 | |
| (+) Senior Appraised Value: | + | $0 | |
| (+) Non-Senior Appraised Value: | + | $620,406 | |
| | | -------------------------- | |
| (=) Total Appraised Value: | = | $620,406 | |
| (–) Senior Exemption Loss: | – | $0 | |
| (–) Exemption Loss: | – | $0 | |
| | | -------------------------- | |
| (=) Taxable Value: | = | $620,406 | |
Taxing Jurisdiction
| Owner: | HOLBROOK JTWROS, NANCY J | | |
| % Ownership: | 100.0000000000% | | |
| Total Value: | $620,406 | | |
| Tax Area: | 712 - APPRAISER-S Whid Schl Dist, outside Langley, improved, greater than 1 acre |
| CF | Conservation Futures | 0.0313996660 | $620,406 | $620,406 | $19.48 | | |
| FIRE3 | Fire & Rescue Dist #3 S Whidbey GEN | 1.2130821753 | $620,406 | $620,406 | $752.60 | | |
| HOBOND | Hospital BOND | 0.1893405597 | $620,406 | $620,406 | $117.47 | | |
| HOGEN | Hospital GEN | 0.3848777722 | $620,406 | $620,406 | $238.78 | | |
| CE | County Current Expense | 0.3674210519 | $620,406 | $620,406 | $227.95 | | |
| CR | County Roads | 0.4614296361 | $620,406 | $620,406 | $286.27 | | |
| ISLANDEMS | Hospital GEN (EMS) | 0.4952018576 | $620,406 | $620,406 | $307.23 | | |
| LIB | Library Sno-Isle GEN | 0.3039084203 | $620,406 | $620,406 | $188.55 | | |
| PORTWHID | Port of S Whidbey GEN | 0.1086004714 | $620,406 | $620,406 | $67.38 | | |
| SCH206BOND | School 206 BOND | 0.5960237832 | $620,406 | $620,406 | $369.78 | | |
| SCH206CAP | School 206 CP | 0.3066144020 | $620,406 | $620,406 | $190.23 | | |
| SCH206MO | School 206 Enrichment | 0.4808755445 | $620,406 | $620,406 | $298.34 | | |
| ST | State School | 1.4761226122 | $620,406 | $620,406 | $915.80 | | |
| ST2 | State School Part 2 | 0.7953803475 | $620,406 | $620,406 | $493.46 | | |
| SWHIDPRBD | P & R S Whidbey BOND | 0.0144185398 | $620,406 | $620,406 | $8.95 | | |
| SWHIDPRBD3 | P & R S Whidbey BOND3 | 0.1483535547 | $620,406 | $620,406 | $92.04 | | |
| SWHIDPRMT | P & R S Whidbey GEN | 0.4600000000 | $620,406 | $620,406 | $285.39 | | |
| | Total Tax Rate: | 7.8330503944 | | | | | |
| | | | | Taxes w/Current Exemptions: | $4,859.70 | | |
| | | | | Taxes w/o Exemptions: | $4,859.70 | | |
Improvement / Building
| Improvement #1: | RESIDENTIAL | State Code: | Y | 720.0 sqft | Value: | $260,406 |
| Bathrooms: | 1 | Bedrooms: | 2 | | Ceiling: | BEAM PAINTED | Exterior Wall/Cover: | VINYL | | Floor Covering: | HARDWOOD/CARP 20-80 | Floor Structure: | WOOD W/SUBFLOOR | | Foundation: | CONCRETE BLOCKS | Heating: | BASEBOARD ELECTRIC | | Interior Finish: | DRYWALL PAINT | Plumbing Fixture Cnt: | 6 | | Roof Slope: | 4" IN 12" | Roof Structure/Cover: | BEAM ALUMINUM HEAVY |
|
| | Type | Description | Class CD | Sub Class CD | Year Built | Area |
| | BAS | BASE/MAIN FLOOR | 3 | 0 | 1961 | 720.0 |
| | UB6 | BASEMENT UNFINISHED 6" | 3 | 0 | 1961 | 720.0 |
| | ENP | ENCLOSED PORCH | 3 | 0 | 1961 | 176.0 |
| | OWP | OPEN WOOD PORCH W/STEPS | 3 | 0 | 1961 | 320.0 |
| | OWR | OPEN WOOD PORCH W/STEPS/ROOF | 3 | 0 | 1961 | 132.0 |
| | DGR | DETACHED GARAGE | 3 | 0 | 1961 | 721.2 |
| | ENP | ENCLOSED PORCH | 3 | 0 | 1961 | 240.0 |
| | ATF | ATTIC FINISHED | 3 | 0 | 1961 | 120.0 |
| | OWR | OPEN WOOD PORCH W/STEPS/ROOF | 3 | 0 | 1961 | 32.0 |
Sketch
| No sketches available for this property. |
Property Image
Land
| 1 | 32 | AC (03.01-09.99) | 5.2600 | 0.00 | 0.00 | 0.00 | 1.00 | $360,000 | $0 |
Roll Value History
| 2026 | N/A | N/A | N/A | N/A | N/A |
| 2025 | $260,406 | $360,000 | $0 | $620,406 | $620,406 |
| 2024 | $264,327 | $340,000 | $0 | $604,327 | $604,327 |
| 2023 | $267,620 | $330,000 | $0 | $597,620 | $597,620 |
| 2022 | $245,319 | $280,000 | $0 | $525,319 | $525,319 |
| 2021 | $215,922 | $230,000 | $0 | $445,922 | $445,922 |
| 2020 | $189,479 | $190,000 | $0 | $379,479 | $379,479 |
| 2019 | $135,870 | $250,000 | $0 | $385,870 | $385,870 |
| 2018 | $136,265 | $230,000 | $0 | $366,265 | $366,265 |
| 2017 | $135,273 | $165,000 | $0 | $300,273 | $300,273 |
| 2016 | $136,833 | $165,000 | $0 | $301,833 | $301,833 |
| 2015 | $138,392 | $150,000 | $0 | $288,392 | $288,392 |
| 2014 | $106,012 | $178,840 | $0 | $284,852 | $284,852 |
| 2013 | $108,512 | $178,840 | $0 | $287,352 | $287,352 |
| 2012 | $109,908 | $178,840 | $0 | $288,748 | $288,748 |
| 2011 | $111,303 | $178,840 | $0 | $290,143 | $290,143 |
| 2010 | $116,530 | $178,840 | $0 | $295,370 | $295,370 |
| 2009 | $121,576 | $231,440 | $0 | $353,016 | $353,016 |
| 2008 | $76,675 | $263,000 | $0 | $339,675 | $339,675 |
| 2007 | $78,140 | $220,920 | $0 | $299,060 | $299,060 |
Deed and Sales History
| 1 | 08/05/2021 | QCD | Quit Claim Deed | HOLBROOK, NANCY J | HOLBROOK JTWROS, NANCY J | | | $0.00 | 49913 | 4528377 |
| 2 | 09/17/2002 | EZ | Easement | HOLBROOK, NANCY J | HOLBROOK, NANCY J | | | $2,000.00 | 23723 | 4031604 |
| 3 | 09/01/1997 | WD | Warranty Deed | JOHNSON, MURRAY W | HOLBROOK, NANCY J | | | $145,000.00 | 73221 | 97015150 |
| 4 | 07/01/1994 | WD | Warranty Deed | HEGGENES, MARGARET | JOHNSON, MURRAY W | | | $116,000.00 | 42665 | 94014665 |
| 5 | 08/01/1987 | OTHER | Other - Misc. Documents | HEGGENES, S | HEGGENES, MARGARET | | | $0.00 | 62302 | 0 |
| 6 | 01/01/1900 | OTHER | Other - Misc. Documents | Unknown | HEGGENES, S | | | $0.00 | 0 | 0 |
Payout Agreement
| No payout information available.. |