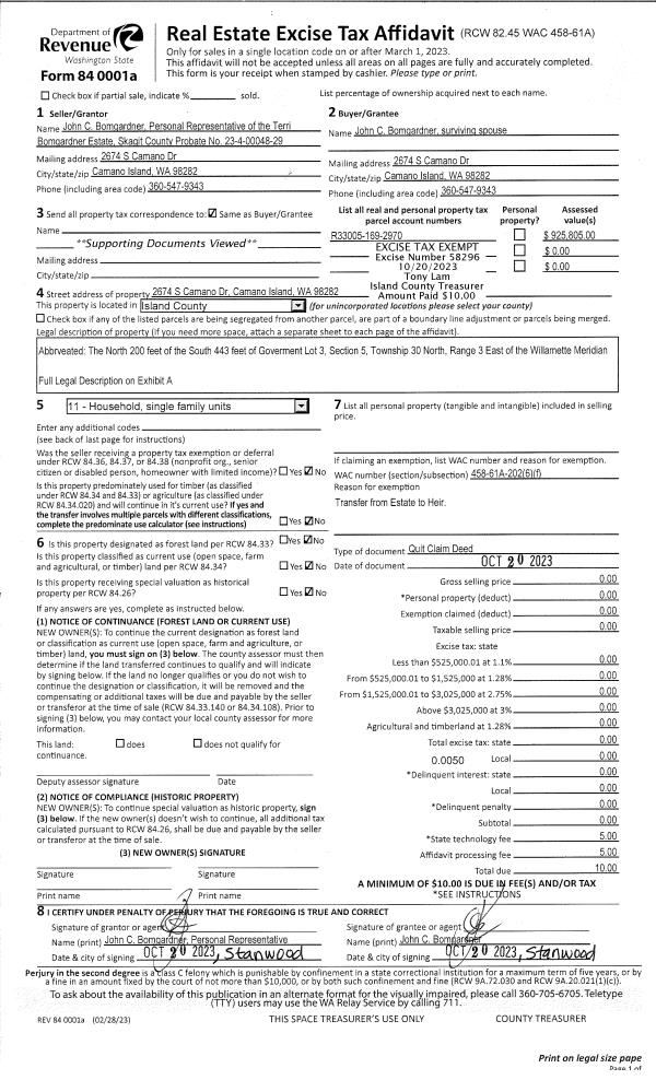
Property
Account |
| Property ID: | 146274 | Abbreviated Legal Description: | TR 3&4 - N200' OF S443' OF GL3 INCL ADJ TIDES SUBJ TO EZ |
| Geographic ID: | R33005-169-2970 | Agent Code: | |
| Type: | Real | | |
| Tax Area: | 542 - APPRAISER-Stan/Cam Schl Dist, Special Dist, improved, greater than 1 acre | Land Use Code | 11 |
| Open Space: | N | DFL | N |
| Historic Property: | N | Remodel Property: | N |
| Multi-Family Redevelopment: | N | | |
| Township: | 30 | Section: | 05 |
| Range: | R3 |
Location |
| Address: | 2674 SOUTH CAMANO DR CAMANO ISLAND, WA 98282 | Mapsco: | |
| Neighborhood: | Cycle 5 | Map ID: | 855 |
| Neighborhood CD: | 5 |
Owner |
| Name: | BOMGARDNER, JOHN C | Owner ID: | 310435 |
| Mailing Address: | 2674 S CAMANO DR CAMANO ISLAND, WA 98282 | % Ownership: | 100.0000000000% |
| | | Exemptions: | |
Taxes and Assessment Details
Values
| (+) Improvement Homesite Value: | + | $0 | |
| (+) Improvement Non-Homesite Value: | + | $284,519 | |
| (+) Land Homesite Value: | + | $0 | |
| (+) Land Non-Homesite Value: | + | $701,800 | |
| (+) Curr Use (HS): | + | $0 | $0 |
| (+) Curr Use (NHS): | + | $0 | $0 |
| | | -------------------------- | |
| (=) Market Value: | = | $986,319 | |
| (–) Productivity Loss: | – | $0 | |
| | | -------------------------- | |
| (=) Subtotal: | = | $986,319 | |
| (+) Senior Appraised Value: | + | $0 | |
| (+) Non-Senior Appraised Value: | + | $986,319 | |
| | | -------------------------- | |
| (=) Total Appraised Value: | = | $986,319 | |
| (–) Senior Exemption Loss: | – | $0 | |
| (–) Exemption Loss: | – | $0 | |
| | | -------------------------- | |
| (=) Taxable Value: | = | $986,319 | |
Taxing Jurisdiction
| Owner: | BOMGARDNER, JOHN C | | |
| % Ownership: | 100.0000000000% | | |
| Total Value: | $986,319 | | |
| Tax Area: | 542 - APPRAISER-Stan/Cam Schl Dist, Special Dist, improved, greater than 1 acre |
| CF | Conservation Futures | 0.0313996660 | $986,319 | $986,319 | $30.97 | | |
| EMS1 | Fire & Rescue Dist #1 Camano GEN (EMS) | 0.4998471806 | $986,319 | $986,319 | $493.01 | | |
| FIRE1 | Fire & Rescue Dist #1 Camano GEN | 1.2496603404 | $986,319 | $986,319 | $1,232.56 | | |
| FIRE1BOND | Fire & Rescue Dist #1 Camano BOND | 0.1630371212 | $986,319 | $986,319 | $160.81 | | |
| CE | County Current Expense | 0.3674210519 | $986,319 | $986,319 | $362.39 | | |
| CR | County Roads | 0.4614296361 | $986,319 | $986,319 | $455.12 | | |
| LIB | Library Sno-Isle GEN | 0.3039084203 | $986,319 | $986,319 | $299.75 | | |
| SCH205_401 | School 205-401 Enrichment | 1.3697998934 | $986,319 | $986,319 | $1,351.06 | | |
| SCH205BOND | School 205-401 BOND | 0.9354199323 | $986,319 | $986,319 | $922.62 | | |
| ST | State School | 1.4761226122 | $986,319 | $986,319 | $1,455.93 | | |
| ST2 | State School Part 2 | 0.7953803475 | $986,319 | $986,319 | $784.50 | | |
| | Total Tax Rate: | 7.6534262019 | | | | | |
| | | | | Taxes w/Current Exemptions: | $7,548.72 | | |
| | | | | Taxes w/o Exemptions: | $7,548.72 | | |
Improvement / Building
| Improvement #1: | RESIDENTIAL | State Code: | Y | 1143.1 sqft | Value: | $284,519 |
| Bathrooms: | 3 | Bedrooms: | 2 | | Ceiling: | ACOUSTIC FURRED | Cooling: | HEAT PUMP/CONV/V | | Exterior Wall/Cover: | WOOD SIDING | Floor Covering: | HARDWOOD 100% | | Floor Structure: | WOOD W/SUBFLOOR | Foundation: | CONCRETE BLOCKS | | Interior Finish: | PLASTER | Plumbing Fixture Cnt: | 12 | | Roof Slope: | 3" IN 12" | Roof Structure/Cover: | CJ ASPHALT |
|
| | Type | Description | Class CD | Sub Class CD | Year Built | Area |
| | BAS | BASE/MAIN FLOOR | 2 | 0 | 1963 | 517.1 |
| | ENP | ENCLOSED PORCH | 2 | 0 | 1963 | 160.0 |
| | ENP | ENCLOSED PORCH | 2 | 0 | 1963 | 168.0 |
| | BIG | BUILT IN GARAGE | 2 | 0 | 1963 | 384.0 |
| | UPH | HALF STORY | 2 | 0 | 1963 | 386.0 |
| | OWP | OPEN WOOD PORCH W/STEPS | 2 | 0 | 1963 | 54.0 |
| | BAW | BALCONY WOOD RAIL | 2 | 0 | 1963 | 40.0 |
| | DWN | DOWNSTAIRS LIVING AREA | 2 | 0 | 1963 | 240.0 |
| | oTRM | HILLSIDE TRAM | 2 | 0 | 1963 | 48.0 |
| | UTY | STORAGE/UTILITY | 2 | 0 | 1963 | 200.0 |
Sketch
Property Image
Land
| 1 | HB | HIGH BLUFF | 3.3700 | 146797.20 | 193.40 | 0.00 | 1.00 | $700,000 | $0 |
| 2 | 55 | TIDES | 0.0000 | 0.00 | 180.00 | 0.00 | 1.00 | $1,800 | $0 |
Roll Value History
| 2026 | N/A | N/A | N/A | N/A | N/A |
| 2025 | $284,519 | $701,800 | $0 | $986,319 | $986,319 |
| 2024 | $287,137 | $701,800 | $0 | $988,937 | $988,937 |
| 2023 | $289,755 | $701,800 | $0 | $991,555 | $991,555 |
| 2022 | $274,005 | $651,800 | $0 | $925,805 | $925,805 |
| 2021 | $218,431 | $501,800 | $0 | $720,231 | $720,231 |
| 2020 | $215,437 | $436,800 | $0 | $652,237 | $652,237 |
| 2019 | $158,408 | $451,800 | $0 | $610,208 | $610,208 |
| 2018 | $158,586 | $350,000 | $0 | $508,586 | $508,586 |
| 2017 | $158,906 | $301,800 | $0 | $460,706 | $460,706 |
| 2016 | $159,616 | $301,800 | $0 | $461,416 | $461,416 |
| 2015 | $156,925 | $301,800 | $0 | $458,725 | $458,725 |
| 2014 | $157,669 | $301,800 | $0 | $459,469 | $459,469 |
| 2013 | $158,987 | $215,243 | $0 | $374,230 | $374,230 |
| 2012 | $159,736 | $215,243 | $0 | $374,979 | $374,979 |
| 2011 | $160,487 | $268,604 | $0 | $429,091 | $429,091 |
| 2010 | $165,100 | $268,604 | $0 | $433,704 | $433,704 |
| 2009 | $54,356 | $326,168 | $0 | $380,524 | $380,524 |
| 2008 | $55,036 | $193,435 | $0 | $248,471 | $248,471 |
| 2007 | $55,899 | $192,175 | $0 | $248,074 | $248,074 |
Deed and Sales History
| 1 | 10/20/2023 | QCD | Quit Claim Deed | BOMGARDNER, TERRI | BOMGARDNER, JOHN C | | | $0.00 | 58296 | 4565926 |
| 2 | 09/13/2019 | WD | Warranty Deed | KNUTSON, JENNIFER | BOMGARDNER, TERRI | | | $635,000.00 | 40261 | 4471398 |
| 3 | 08/19/2009 | QCD | Quit Claim Deed | KNUTSON, JENNIFER | KNUTSON, JENNIFER | | | $0.00 | 91990 | 4259102 |
| 4 | 03/01/1998 | WD | Warranty Deed | ARSENAULT, ROBERT D | KNUTSON, JENNIFER | | | $135,000.00 | 80867 | 98004938 |
| 5 | 03/01/1990 | WD | Warranty Deed | PAULSON, E O | ARSENAULT, ROBERT D | | | $142,000.00 | 1342 | 90004328 |
| 6 | 01/01/1900 | OTHER | Other - Misc. Documents | Unknown | PAULSON, E O | | | $0.00 | 0 | 0 |
Payout Agreement
| No payout information available.. |