Property
Account |
| Property ID: | 146407 | Abbreviated Legal Description: | 55 - S/2 SE SE NE EX E30' FOR RD |
| Geographic ID: | R33005-288-4370 | Agent Code: | |
| Type: | Real | | |
| Tax Area: | 542 - APPRAISER-Stan/Cam Schl Dist, Special Dist, improved, greater than 1 acre | Land Use Code | 11 |
| Open Space: | N | DFL | N |
| Historic Property: | N | Remodel Property: | N |
| Multi-Family Redevelopment: | N | | |
| Township: | 30 | Section: | 05 |
| Range: | R3 |
Location |
| Address: | 2586 JESSICA DR CAMANO ISLAND, WA 98282 | Mapsco: | |
| Neighborhood: | Cycle 5 | Map ID: | 857 |
| Neighborhood CD: | 5 |
Owner |
| Name: | MADIX, DAVID ERIC | Owner ID: | 312155 |
| Mailing Address: | 2586 S JESSICA DR CAMANO ISLAND, WA 98282 | % Ownership: | 100.0000000000% |
| | | Exemptions: | |
Taxes and Assessment Details
Values
| (+) Improvement Homesite Value: | + | $0 | |
| (+) Improvement Non-Homesite Value: | + | $320,613 | |
| (+) Land Homesite Value: | + | $0 | |
| (+) Land Non-Homesite Value: | + | $330,000 | |
| (+) Curr Use (HS): | + | $0 | $0 |
| (+) Curr Use (NHS): | + | $0 | $0 |
| | | -------------------------- | |
| (=) Market Value: | = | $650,613 | |
| (–) Productivity Loss: | – | $0 | |
| | | -------------------------- | |
| (=) Subtotal: | = | $650,613 | |
| (+) Senior Appraised Value: | + | $0 | |
| (+) Non-Senior Appraised Value: | + | $650,613 | |
| | | -------------------------- | |
| (=) Total Appraised Value: | = | $650,613 | |
| (–) Senior Exemption Loss: | – | $0 | |
| (–) Exemption Loss: | – | $0 | |
| | | -------------------------- | |
| (=) Taxable Value: | = | $650,613 | |
Taxing Jurisdiction
| Owner: | MADIX, DAVID ERIC | | |
| % Ownership: | 100.0000000000% | | |
| Total Value: | $650,613 | | |
| Tax Area: | 542 - APPRAISER-Stan/Cam Schl Dist, Special Dist, improved, greater than 1 acre |
| CF | Conservation Futures | 0.0313996660 | $650,613 | $650,613 | $20.43 | | |
| EMS1 | Fire & Rescue Dist #1 Camano GEN (EMS) | 0.4998471806 | $650,613 | $650,613 | $325.21 | | |
| FIRE1 | Fire & Rescue Dist #1 Camano GEN | 1.2496603404 | $650,613 | $650,613 | $813.05 | | |
| FIRE1BOND | Fire & Rescue Dist #1 Camano BOND | 0.1630371212 | $650,613 | $650,613 | $106.07 | | |
| CE | County Current Expense | 0.3674210519 | $650,613 | $650,613 | $239.05 | | |
| CR | County Roads | 0.4614296361 | $650,613 | $650,613 | $300.21 | | |
| LIB | Library Sno-Isle GEN | 0.3039084203 | $650,613 | $650,613 | $197.73 | | |
| SCH205_401 | School 205-401 Enrichment | 1.3697998934 | $650,613 | $650,613 | $891.21 | | |
| SCH205BOND | School 205-401 BOND | 0.9354199323 | $650,613 | $650,613 | $608.60 | | |
| ST | State School | 1.4761226122 | $650,613 | $650,613 | $960.38 | | |
| ST2 | State School Part 2 | 0.7953803475 | $650,613 | $650,613 | $517.48 | | |
| | Total Tax Rate: | 7.6534262019 | | | | | |
| | | | | Taxes w/Current Exemptions: | $4,979.42 | | |
| | | | | Taxes w/o Exemptions: | $4,979.42 | | |
Improvement / Building
| Improvement #1: | RESIDENTIAL | State Code: | Y | 2029.0 sqft | Value: | $320,613 |
| Bathrooms: | 2.5 | Bedrooms: | 3 | | Ceiling: | DRYWALL PAINTED | Exterior Wall/Cover: | PLY/HARDBOARD T-111 | | Floor Covering: | VINYL/HARDWOOD 20-80 | Floor Structure: | WOOD W/SUBFLOOR | | Foundation: | CONCRETE | Heating: | WALL HEAT ELECTRIC | | Interior Finish: | DRYWALL PAINT | Plumbing Fixture Cnt: | 11 | | Roof Slope: | 8" IN 12" | Roof Structure/Cover: | CJ ASPHALT |
|
| | Type | Description | Class CD | Sub Class CD | Year Built | Area |
| | BAS | BASE/MAIN FLOOR | 3 | 0 | 1993 | 1319.0 |
| | AGR | ATTACHED GARAGE | 3 | 0 | 1993 | 529.0 |
| | UPS | UPPER STORY | 3 | 0 | 1993 | 608.0 |
| | OWP | OPEN WOOD PORCH W/STEPS | 3 | 0 | 1993 | 398.0 |
| | OWC | OPEN WOOD PORCH W/STEPS/ROOF/C | 3 | 0 | 1993 | 155.0 |
| | LOF | LOFT | 3 | 0 | 1993 | 102.0 |
Sketch
Property Image
Land
| 1 | 32 | AC (03.01-09.99) | 4.7800 | 0.00 | 0.00 | 0.00 | 1.00 | $330,000 | $0 |
Roll Value History
| 2026 | N/A | N/A | N/A | N/A | N/A |
| 2025 | $320,613 | $330,000 | $0 | $650,613 | $650,613 |
| 2024 | $324,875 | $300,000 | $0 | $624,875 | $624,875 |
| 2023 | $329,137 | $240,000 | $0 | $569,137 | $569,137 |
| 2022 | $301,887 | $210,000 | $0 | $511,887 | $511,887 |
| 2021 | $235,868 | $190,000 | $0 | $425,868 | $425,868 |
| 2020 | $230,343 | $160,000 | $0 | $390,343 | $390,343 |
| 2019 | $176,001 | $230,000 | $0 | $406,001 | $406,001 |
| 2018 | $176,577 | $175,000 | $0 | $351,577 | $351,577 |
| 2017 | $177,734 | $150,000 | $0 | $327,734 | $327,734 |
| 2016 | $180,040 | $130,000 | $0 | $310,040 | $310,040 |
| 2015 | $180,542 | $103,248 | $0 | $283,790 | $283,790 |
| 2014 | $182,885 | $103,248 | $0 | $286,133 | $286,133 |
| 2013 | $185,653 | $103,248 | $0 | $288,901 | $288,901 |
| 2012 | $188,003 | $103,248 | $0 | $291,251 | $291,251 |
| 2011 | $190,352 | $129,060 | $0 | $319,412 | $319,412 |
| 2010 | $198,540 | $129,060 | $0 | $327,600 | $327,600 |
| 2009 | $197,472 | $152,960 | $0 | $350,432 | $350,432 |
| 2008 | $200,042 | $160,608 | $0 | $360,650 | $360,650 |
| 2007 | $202,794 | $160,608 | $0 | $363,402 | $363,402 |
Deed and Sales History
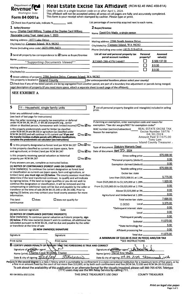
| 1 | 04/25/2024 | WD | Warranty Deed | WILFONG TTEE, CHARLES CECIL | MADIX, DAVID ERIC | | | $675,000.00 | 59776 | 4571769 |
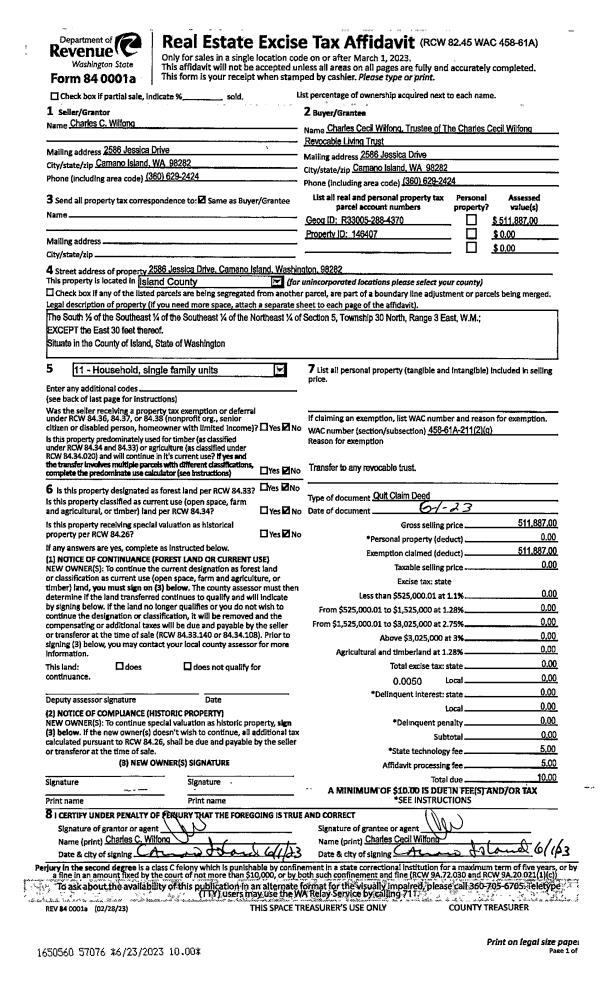
| 2 | 06/01/2023 | QCD | Quit Claim Deed | WILFONG, CHARLES C | WILFONG TTEE, CHARLES CECIL | | | $0.00 | 57076 | 4561399 |
| 3 | 11/11/2014 | DECREE | Divorce Decree/Legal Separation | WILFONG, CHARLES C | WILFONG, CHARLES C | | | $0.00 | 27924 | 4416213 |
| 4 | 11/05/1999 | QCD | Quit Claim Deed | Unknown | WILFONG, CHARLES C | | | $0.00 | 94639 | 99025867 |
| 5 | 08/20/1999 | QCD | Quit Claim Deed | WILFONG, NONA F | WILFONG, NONA F | | | $0.00 | 93841 | 99021490 |
| 6 | 10/01/1992 | WD | Warranty Deed | WILFONG, NONA F | WILFONG, NONA F | | | $0.00 | 24227 | 92020688 |
| 7 | 08/01/1990 | WD | Warranty Deed | WEISENBURGER, ALBERT J | WILFONG, NONA F | | | $22,000.00 | 4618 | 90015319 |
| 8 | 04/01/1982 | EXECUTORD | Executor Deed | DOCKEN, ROGER D | WEISENBURGER, ALBERT J | | | $22,250.00 | 20782 | 394918 |
| 9 | 01/01/1980 | EXECUTORD | Executor Deed | PARSONS, LYLE W | DOCKEN, ROGER D | | | $11,500.00 | 421 | 364849 |
Payout Agreement
| No payout information available.. |