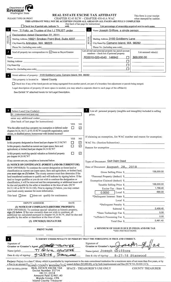
Property
Account |
| Property ID: | 146942 | Abbreviated Legal Description: | 9 - IN SE SE: BG SWCR SE SE S89*E495 N30 TPB N325 S89*E165 S325 N89*W165 TPB SUB TGW EZS |
| Geographic ID: | R33010-020-4540 | Agent Code: | |
| Type: | Real | | |
| Tax Area: | 562 - APPRAISER-Stan/Cam Schl Dist, Special Dist, improved, greater than 1 acre | Land Use Code | 11 |
| Open Space: | N | DFL | N |
| Historic Property: | N | Remodel Property: | N |
| Multi-Family Redevelopment: | N | | |
| Township: | 30 | Section: | 10 |
| Range: | R3 |
Location |
| Address: | 3193 GOLDBERRY LN CAMANO ISLAND, WA 98282 | Mapsco: | |
| Neighborhood: | 58NofTamarackS | Map ID: | 864 |
| Neighborhood CD: | 58RntamS |
Owner |
| Name: | GRIFFORE, JOSEPH | Owner ID: | 286711 |
| Mailing Address: | 3193 GOLDBERRY LN CAMANO ISLAND, WA 98282 | % Ownership: | 100.0000000000% |
| | | Exemptions: | SNR/DSBL |
Taxes and Assessment Details
Values
| (+) Improvement Homesite Value: | + | $54,859 | |
| (+) Improvement Non-Homesite Value: | + | $0 | |
| (+) Land Homesite Value: | + | $250,000 | |
| (+) Land Non-Homesite Value: | + | $0 | |
| (+) Curr Use (HS): | + | $0 | $0 |
| (+) Curr Use (NHS): | + | $0 | $0 |
| | | -------------------------- | |
| (=) Market Value: | = | $304,859 | |
| (–) Productivity Loss: | – | $0 | |
| | | -------------------------- | |
| (=) Subtotal: | = | $304,859 | |
| (+) Senior Appraised Value: | + | $191,140 | |
| (+) Non-Senior Appraised Value: | + | $0 | |
| | | -------------------------- | |
| (=) Total Appraised Value: | = | $191,140 | |
| (–) Senior Exemption Loss: | – | $114,684 | |
| (–) Exemption Loss: | – | $0 | |
| | | -------------------------- | |
| (=) Taxable Value: | = | $76,456 | |
Taxing Jurisdiction
| Owner: | GRIFFORE, JOSEPH | | |
| % Ownership: | 100.0000000000% | | |
| Total Value: | $304,859 | | |
| Tax Area: | 562 - APPRAISER-Stan/Cam Schl Dist, Special Dist, improved, greater than 1 acre |
| CF | Conservation Futures | 0.0313996660 | $304,859 | $76,456 | $2.40 | | |
| EMS1 | Fire & Rescue Dist #1 Camano GEN (EMS) | 0.4998471806 | $304,859 | $76,456 | $38.22 | | |
| FIRE1 | Fire & Rescue Dist #1 Camano GEN | 1.2496603404 | $304,859 | $76,456 | $95.54 | | |
| FIRE1BOND | Fire & Rescue Dist #1 Camano BOND | 0.0000000000 | $304,859 | $0 | $0.00 | | |
| CE | County Current Expense | 0.3674210519 | $304,859 | $76,456 | $28.09 | | |
| CR | County Roads | 0.4614296361 | $304,859 | $76,456 | $35.28 | | |
| LIB | Library Sno-Isle GEN | 0.3039084203 | $304,859 | $76,456 | $23.24 | | |
| SCH205_401 | School 205-401 Enrichment | 0.0000000000 | $304,859 | $0 | $0.00 | | |
| SCH205BOND | School 205-401 BOND | 0.0000000000 | $304,859 | $0 | $0.00 | | |
| ST | State School | 1.4761226122 | $304,859 | $76,456 | $112.86 | | |
| ST2 | State School Part 2 | 0.0000000000 | $304,859 | $0 | $0.00 | | |
| | Total Tax Rate: | 4.3897889075 | | | | | |
| | | | | Taxes w/Current Exemptions: | $335.63 | | |
| | | | | Taxes w/o Exemptions: | $2,333.21 | | |
Improvement / Building
| Improvement #1: | MANUFACTURED HOME | State Code: | Y | 1093.6 sqft | Value: | $54,859 |
| Bathrooms: | 2 | Bedrooms: | 3 | | Ceiling: | PLASTER PAINTED | Cooling: | EVAP NO DUCT | | Exterior Wall/Cover: | VINYL | Floor Covering: | CARPET 100% | | Floor Structure: | SLAB ON GRADE | Foundation: | SLAB | | Heating: | FHA ELECTRIC | Interior Finish: | PLASTER | | Roof Slope: | FLAT | Roof Structure/Cover: | CJ ALUMINIUM HEAVY |
|
| | Type | Description | Class CD | Sub Class CD | Year Built | Area |
| | BAS | BASE/MAIN FLOOR | 4 | 0 | 1986 | 1093.6 |
| | OWP | OPEN WOOD PORCH W/STEPS | 4 | 0 | 1986 | 132.0 |
| | OWP | OPEN WOOD PORCH W/STEPS | 4 | 0 | 1986 | 73.0 |
Sketch
| No sketches available for this property. |
Property Image
Land
| 1 | 17 | AC (01.01-02.00) | 1.2300 | 53578.80 | 0.00 | 0.00 | 1.00 | $250,000 | $0 |
Roll Value History
| 2026 | N/A | N/A | N/A | N/A | N/A |
| 2025 | $54,859 | $250,000 | $0 | $304,859 | $76,456 |
| 2024 | $59,050 | $220,000 | $0 | $279,050 | $76,456 |
| 2023 | $53,685 | $220,000 | $0 | $273,685 | $76,456 |
| 2022 | $50,725 | $200,000 | $0 | $250,725 | $76,456 |
| 2021 | $15,189 | $150,000 | $0 | $165,189 | $66,076 |
| 2020 | $15,517 | $140,000 | $0 | $155,517 | $62,207 |
| 2019 | $12,843 | $170,000 | $0 | $182,843 | $73,137 |
| 2018 | $4,000 | $65,000 | $0 | $69,000 | $69,000 |
| 2017 | $4,000 | $65,000 | $0 | $69,000 | $69,000 |
| 2016 | $4,000 | $25,000 | $0 | $29,000 | $29,000 |
| 2015 | $4,000 | $23,000 | $0 | $27,000 | $27,000 |
| 2014 | $4,000 | $23,000 | $0 | $27,000 | $27,000 |
| 2013 | $4,000 | $23,000 | $0 | $27,000 | $27,000 |
| 2012 | $4,000 | $23,000 | $0 | $27,000 | $27,000 |
| 2011 | $0 | $23,000 | $0 | $23,000 | $23,000 |
| 2010 | $0 | $55,800 | $0 | $55,800 | $55,800 |
| 2009 | $0 | $74,250 | $0 | $74,250 | $74,250 |
| 2008 | $0 | $15,840 | $0 | $15,840 | $15,840 |
| 2007 | $0 | $11,000 | $0 | $11,000 | $11,000 |
Deed and Sales History
| 1 | 08/28/2018 | QCD | Quit Claim Deed | I J TRUST | GRIFFORE, JOSEPH | | | $138,000.00 | 35714 | 4450951 |
| 2 | 12/22/2011 | QCD | Quit Claim Deed | ACTIONS UNLIMITED | I J TRUST | | | $0.00 | 6493 | 4307213 |
| 3 | 01/15/2010 | TRUSTEED | Trustee's Deed | FRINCHABOY, JACQUES A | ACTIONS UNLIMITED, | | | $0.00 | 156 | 4267435 |
| 4 | 08/28/2008 | WD | Warranty Deed | COLE, ROBERT R | FRINCHABOY, JACQUES A | | | $138,900.00 | 82290 | 4235879 |
| 5 | 04/30/1999 | WD | Warranty Deed | WALTER, DEBRA E | COLE, ROBERT R | | | $20,000.00 | 91692 | 99010723 |
| 6 | 04/01/1990 | WD | Warranty Deed | AMBSDORF, AGNES C | WALTER, DEBRA E | | | $16,950.00 | 2512 | 90008078 |
| 7 | 11/01/1984 | QCD | Quit Claim Deed | AMBSDORF, FREDERICK L | AMBSDORF, AGNES C | | | $0.00 | 43513 | 84006373 |
| 8 | 06/01/1978 | OTHER | Other - Misc. Documents | Unknown | AMBSDORF, FREDERICK L | | | $6,000.00 | 82435 | 333556 |
Payout Agreement
| No payout information available.. |