Property
Account |
| Property ID: | 147264 | Abbreviated Legal Description: | 30 - IN SE SW: BG SECR SE SW S88*W599.15' TO WLN CO RD N31*W45' N30*W1081.64' TPB S72*W163.61' TO 1/16TH LN N313' TO WLN CO RD S30*E TPB TGW EZ |
| Geographic ID: | R33010-102-1400 | Agent Code: | |
| Type: | Real | | |
| Tax Area: | 540 - APPRAISER-Stan/Cam Schl Dist, Special Dist, improved & less than 1 acre | Land Use Code | 11 |
| Open Space: | N | DFL | N |
| Historic Property: | N | Remodel Property: | N |
| Multi-Family Redevelopment: | N | | |
| Township: | 30 | Section: | 10 |
| Range: | R3 |
Location |
| Address: | 3123 REDWING RD CAMANO ISLAND, WA 98282 | Mapsco: | |
| Neighborhood: | 58RscamS-South Cam | Map ID: | 863 |
| Neighborhood CD: | 58RscamS |
Owner |
| Name: | ANDERSON, STEPHEN M | Owner ID: | 279505 |
| Mailing Address: | THERESA J ANDERSON 3123 REDWING RD CAMANO ISLAND, WA 98282 | % Ownership: | 100.0000000000% |
| | | Exemptions: | |
Taxes and Assessment Details
Values
| (+) Improvement Homesite Value: | + | $0 | |
| (+) Improvement Non-Homesite Value: | + | $388,199 | |
| (+) Land Homesite Value: | + | $0 | |
| (+) Land Non-Homesite Value: | + | $240,000 | |
| (+) Curr Use (HS): | + | $0 | $0 |
| (+) Curr Use (NHS): | + | $0 | $0 |
| | | -------------------------- | |
| (=) Market Value: | = | $628,199 | |
| (–) Productivity Loss: | – | $0 | |
| | | -------------------------- | |
| (=) Subtotal: | = | $628,199 | |
| (+) Senior Appraised Value: | + | $0 | |
| (+) Non-Senior Appraised Value: | + | $628,199 | |
| | | -------------------------- | |
| (=) Total Appraised Value: | = | $628,199 | |
| (–) Senior Exemption Loss: | – | $0 | |
| (–) Exemption Loss: | – | $0 | |
| | | -------------------------- | |
| (=) Taxable Value: | = | $628,199 | |
Taxing Jurisdiction
| Owner: | ANDERSON, STEPHEN M | | |
| % Ownership: | 100.0000000000% | | |
| Total Value: | $628,199 | | |
| Tax Area: | 540 - APPRAISER-Stan/Cam Schl Dist, Special Dist, improved & less than 1 acre |
| CF | Conservation Futures | 0.0313996660 | $628,199 | $628,199 | $19.73 | | |
| EMS1 | Fire & Rescue Dist #1 Camano GEN (EMS) | 0.4998471806 | $628,199 | $628,199 | $314.00 | | |
| FIRE1 | Fire & Rescue Dist #1 Camano GEN | 1.2496603404 | $628,199 | $628,199 | $785.04 | | |
| FIRE1BOND | Fire & Rescue Dist #1 Camano BOND | 0.1630371212 | $628,199 | $628,199 | $102.42 | | |
| CE | County Current Expense | 0.3674210519 | $628,199 | $628,199 | $230.81 | | |
| CR | County Roads | 0.4614296361 | $628,199 | $628,199 | $289.87 | | |
| LIB | Library Sno-Isle GEN | 0.3039084203 | $628,199 | $628,199 | $190.91 | | |
| SCH205_401 | School 205-401 Enrichment | 1.3697998934 | $628,199 | $628,199 | $860.51 | | |
| SCH205BOND | School 205-401 BOND | 0.9354199323 | $628,199 | $628,199 | $587.63 | | |
| ST | State School | 1.4761226122 | $628,199 | $628,199 | $927.30 | | |
| ST2 | State School Part 2 | 0.7953803475 | $628,199 | $628,199 | $499.66 | | |
| | Total Tax Rate: | 7.6534262019 | | | | | |
| | | | | Taxes w/Current Exemptions: | $4,807.88 | | |
| | | | | Taxes w/o Exemptions: | $4,807.88 | | |
Improvement / Building
| Improvement #1: | RESIDENTIAL | State Code: | Y | 1622.0 sqft | Value: | $388,199 |
| Bathrooms: | 2 | Bedrooms: | 3 | | Ceiling: | DRYWALL PAINTED | Cooling: | HEAT PUMP/CONV/V | | Exterior Wall/Cover: | CEMENT FIBER | Floor Covering: | CARPET/VINYL 60-40 | | Floor Structure: | WOOD W/SUBFLOOR | Foundation: | CONCRETE | | Interior Finish: | DRYWALL PAINT | Plumbing Fixture Cnt: | 11 | | Roof Slope: | 6" IN 12" | Roof Structure/Cover: | CJ ASPHALT |
|
| | Type | Description | Class CD | Sub Class CD | Year Built | Area |
| | BAS | BASE/MAIN FLOOR | 3 | 0 | 2006 | 1622.0 |
| | OP4 | OPEN PORCH W/CEILING-ROOF | 3 | 0 | 2006 | 94.5 |
| | AGR | ATTACHED GARAGE | 3 | 0 | 2006 | 528.0 |
| | OWC | OPEN WOOD PORCH W/STEPS/ROOF/C | 3 | 0 | 2006 | 138.0 |
| | DGR | DETACHED GARAGE | 3 | 0 | 2019 | 800.0 |
| | OCP | OPEN CARPORT | 3 | 0 | 2019 | 160.0 |
Sketch
| No sketches available for this property. |
Property Image
Land
| 1 | 16 | AC (00.51-01.00) | 0.7100 | 30927.60 | 0.00 | 0.00 | 1.00 | $240,000 | $0 |
Roll Value History
| 2026 | N/A | N/A | N/A | N/A | N/A |
| 2025 | $388,199 | $240,000 | $0 | $628,199 | $628,199 |
| 2024 | $396,896 | $220,000 | $0 | $616,896 | $616,896 |
| 2023 | $400,425 | $220,000 | $0 | $620,425 | $620,425 |
| 2022 | $365,372 | $200,000 | $0 | $565,372 | $565,372 |
| 2021 | $320,341 | $140,000 | $0 | $460,341 | $460,341 |
| 2020 | $310,633 | $100,000 | $0 | $410,633 | $410,633 |
| 2019 | $228,375 | $130,000 | $0 | $358,375 | $358,375 |
| 2018 | $201,461 | $100,000 | $0 | $301,461 | $301,461 |
| 2017 | $187,547 | $100,000 | $0 | $287,547 | $287,547 |
| 2016 | $189,553 | $75,000 | $0 | $264,553 | $264,553 |
| 2015 | $206,161 | $50,000 | $0 | $256,161 | $256,161 |
| 2014 | $208,341 | $50,000 | $0 | $258,341 | $258,341 |
| 2013 | $210,524 | $59,760 | $0 | $270,284 | $270,284 |
| 2012 | $212,705 | $59,760 | $0 | $272,465 | $272,465 |
| 2011 | $214,887 | $74,700 | $0 | $289,587 | $289,587 |
| 2010 | $219,351 | $74,700 | $0 | $294,051 | $294,051 |
| 2009 | $225,582 | $80,000 | $0 | $305,582 | $305,582 |
| 2008 | $227,978 | $99,000 | $0 | $326,978 | $326,978 |
| 2007 | $228,123 | $125,000 | $0 | $353,123 | $353,123 |
Deed and Sales History
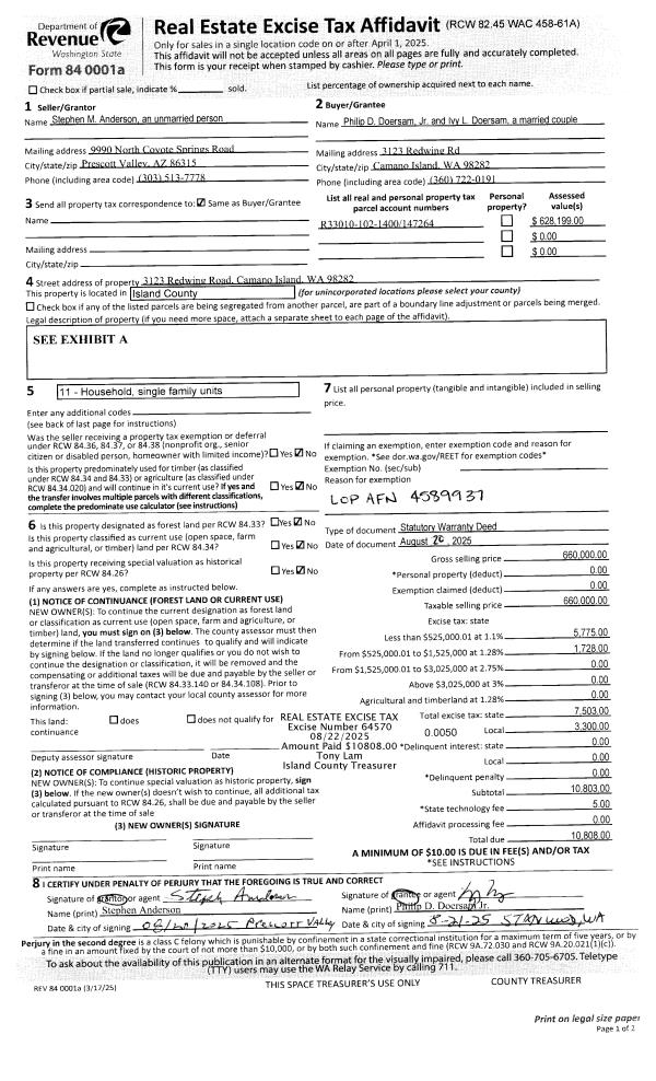
| 1 | 08/20/2025 | WD | Warranty Deed | ANDERSON, STEPHEN M | DOERSAM JR, PHILIP D | | | $660,000.00 | 64570 | 4589960 |
| 2 | 08/01/2025 | LACPROBATE | Lack of Probate | ANDERSON, STEPHEN M | ANDERSON, STEPHEN M | | | $0.00 | 64561 | 4589937 |
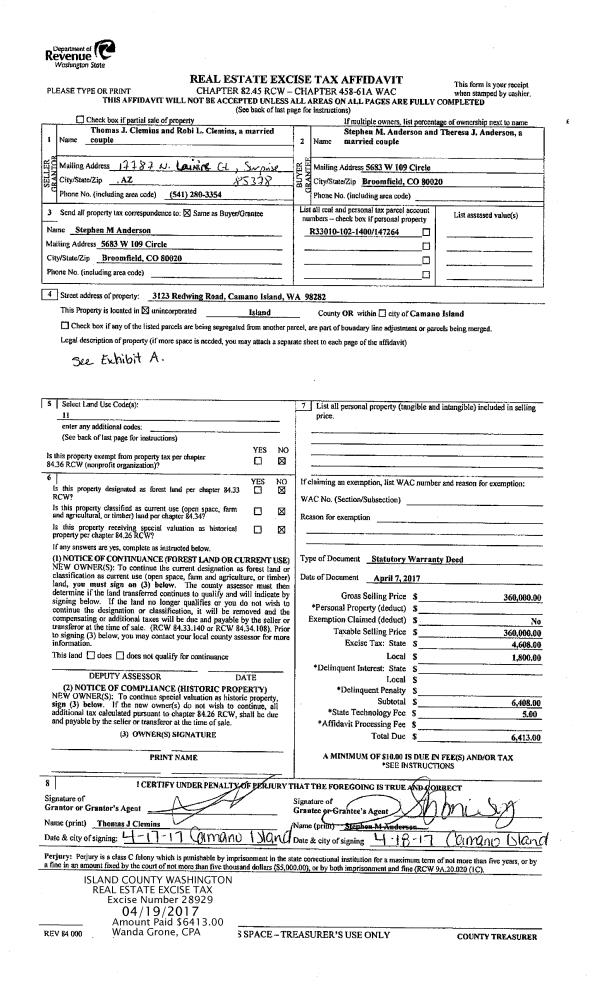
| 3 | 04/07/2017 | WD | Warranty Deed | CLEMINS, THOMAS J | ANDERSON, STEPHEN M | | | $360,000.00 | 28929 | 4420944 |
| 4 | 11/04/2014 | WD | Warranty Deed | RICH, ROSEMARY A | CLEMINS, THOMAS J | | | $265,000.00 | 17486 | 4368172 |
| 5 | 04/07/2014 | DECREE | Divorce Decree/Legal Separation | RICH, ROSEMARY A | RICH, ROSEMARY A | | | $0.00 | 14873 | 4357767 |
| 6 | 03/25/2008 | WD | Warranty Deed | WICKSTROM CONSTRUCTION, | RICH, ROSEMARY A | | | $310,000.00 | 80745 | 4224979 |
| 7 | 06/18/2004 | WD | Warranty Deed | MASON, RICHARD O | WICKSTROM CONSTRUCTION, | | | $50,000.00 | 42824 | 4105009 |
| 8 | 06/01/1992 | WD | Warranty Deed | OLSON, ESTHER M | MASON, RICHARD O | | | $0.00 | 22342 | 92011355 |
| 9 | 10/01/1987 | WD | Warranty Deed | OLSON, ESTHER M | OLSON, ESTHER M | | | $0.00 | 73088 | 87013667 |
| 10 | 07/01/1987 | QCD | Quit Claim Deed | SHUMWAY, E H | OLSON, ESTHER M | | | $0.00 | 72051 | 87009330 |
| 11 | 06/01/1982 | REC | Real Estate Contract | SHUMWAY, E H | SHUMWAY, E H | | | $1.00 | 59518 | 5718 |
| 12 | 01/01/1900 | OTHER | Other - Misc. Documents | Unknown | SHUMWAY, E H | | | $0.00 | 0 | 0 |
Payout Agreement
| No payout information available.. |