Property
Account |
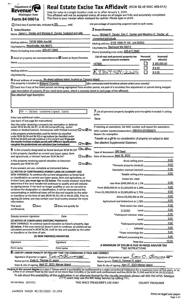
| Property ID: | 147889 | Abbreviated Legal Description: | 81 - IN SE SW PARCEL A,B & C AS DESC A34760 194D24 |
| Geographic ID: | R33014-034-2220 | Agent Code: | |
| Type: | Real | | |
| Tax Area: | 549 - APPRAISER-Stan/Cam Schl Dist, Special Dist, vacant & 50 acres or less | Land Use Code | 91 |
| Open Space: | N | DFL | N |
| Historic Property: | N | Remodel Property: | N |
| Multi-Family Redevelopment: | N | | |
| Township: | 30 | Section: | 14 |
| Range: | R3 |
Location |
| Address: | | Mapsco: | |
| Neighborhood: | 58SofTamarackAC | Map ID: | 869 |
| Neighborhood CD: | 58RstamAC |
Owner |
| Name: | ZANDER ET AL, JASON | Owner ID: | 311438 |
| Mailing Address: | 9022 NE 40TH PL YARROW POINT, WA 98004 | % Ownership: | 100.0000000000% |
| | | Exemptions: | |
Taxes and Assessment Details
Values
| (+) Improvement Homesite Value: | + | $0 | |
| (+) Improvement Non-Homesite Value: | + | $0 | |
| (+) Land Homesite Value: | + | $0 | |
| (+) Land Non-Homesite Value: | + | $310,000 | |
| (+) Curr Use (HS): | + | $0 | $0 |
| (+) Curr Use (NHS): | + | $0 | $0 |
| | | -------------------------- | |
| (=) Market Value: | = | $310,000 | |
| (–) Productivity Loss: | – | $0 | |
| | | -------------------------- | |
| (=) Subtotal: | = | $310,000 | |
| (+) Senior Appraised Value: | + | $0 | |
| (+) Non-Senior Appraised Value: | + | $310,000 | |
| | | -------------------------- | |
| (=) Total Appraised Value: | = | $310,000 | |
| (–) Senior Exemption Loss: | – | $0 | |
| (–) Exemption Loss: | – | $0 | |
| | | -------------------------- | |
| (=) Taxable Value: | = | $310,000 | |
Taxing Jurisdiction
| Owner: | ZANDER ET AL, JASON | | |
| % Ownership: | 100.0000000000% | | |
| Total Value: | $310,000 | | |
| Tax Area: | 549 - APPRAISER-Stan/Cam Schl Dist, Special Dist, vacant & 50 acres or less |
| CF | Conservation Futures | 0.0313996660 | $310,000 | $310,000 | $9.73 | | |
| EMS1 | Fire & Rescue Dist #1 Camano GEN (EMS) | 0.4998471806 | $310,000 | $310,000 | $154.95 | | |
| CE | County Current Expense | 0.3674210519 | $310,000 | $310,000 | $113.90 | | |
| CR | County Roads | 0.4614296361 | $310,000 | $310,000 | $143.04 | | |
| LIB | Library Sno-Isle GEN | 0.3039084203 | $310,000 | $310,000 | $94.21 | | |
| SCH205_401 | School 205-401 Enrichment | 1.3697998934 | $310,000 | $310,000 | $424.64 | | |
| SCH205BOND | School 205-401 BOND | 0.9354199323 | $310,000 | $310,000 | $289.98 | | |
| ST | State School | 1.4761226122 | $310,000 | $310,000 | $457.60 | | |
| ST2 | State School Part 2 | 0.7953803475 | $310,000 | $310,000 | $246.57 | | |
| | Total Tax Rate: | 6.2407287403 | | | | | |
| | | | | Taxes w/Current Exemptions: | $1,934.62 | | |
| | | | | Taxes w/o Exemptions: | $1,934.62 | | |
Improvement / Building
Sketch
| No sketches available for this property. |
Property Image
Land
| 1 | 35 | AC (10.00-30.99) | 13.7800 | 600256.80 | 0.00 | 0.00 | 1.00 | $310,000 | $0 |
Roll Value History
| 2026 | N/A | N/A | N/A | N/A | N/A |
| 2025 | $0 | $310,000 | $0 | $310,000 | $310,000 |
| 2024 | $0 | $300,000 | $0 | $300,000 | $300,000 |
| 2023 | $0 | $300,000 | $0 | $300,000 | $300,000 |
| 2022 | $0 | $300,000 | $0 | $300,000 | $300,000 |
| 2021 | $0 | $240,000 | $0 | $240,000 | $240,000 |
| 2020 | $0 | $225,000 | $0 | $225,000 | $225,000 |
| 2019 | $0 | $225,000 | $0 | $225,000 | $225,000 |
| 2018 | $0 | $200,000 | $0 | $200,000 | $200,000 |
| 2017 | $0 | $200,000 | $0 | $200,000 | $200,000 |
| 2016 | $0 | $200,000 | $0 | $200,000 | $200,000 |
| 2015 | $0 | $200,000 | $0 | $200,000 | $200,000 |
| 2014 | $0 | $200,000 | $0 | $200,000 | $200,000 |
| 2013 | $0 | $234,260 | $0 | $234,260 | $234,260 |
| 2012 | $0 | $234,260 | $0 | $234,260 | $234,260 |
| 2011 | $0 | $234,260 | $0 | $234,260 | $234,260 |
| 2010 | $0 | $234,260 | $0 | $234,260 | $234,260 |
| 2009 | $0 | $303,160 | $0 | $303,160 | $303,160 |
| 2008 | $0 | $300,000 | $0 | $300,000 | $300,000 |
| 2007 | $0 | $298,000 | $0 | $298,000 | $298,000 |
Deed and Sales History
| 1 | 04/18/2023 | OTHER | Other - Misc. Documents | ZANDER, JASON L | ZANDER, MICHAEL E | | | $0.00 | 56828 | 4560409 |
| 2 | 05/13/2022 | BARGSLD | Bargain And Sale Deed | JMZ GROUP LLC | ZANDER, JASON L | | | $0.00 | 53244 | 4545817 |
| 3 | 06/22/2021 | WD | Warranty Deed | HEUSCHER, OTHMAR B | JMZ GROUP LLC | | | $635,000.00 | 48822 | 4522608 |
| 4 | 06/18/2012 | WD | Warranty Deed | JONES, ERVIN E | HEUSCHER, OTHMAR B | | | $237,941.00 | 8023 | 4317771 |
| 5 | 04/30/2007 | WD | Warranty Deed | HEUSCHER, OTHMAR B | JONES, ERVIN E | | | $340,000.00 | 71414 | 4200822 |
| 6 | 01/01/1900 | OTHER | Other - Misc. Documents | Unknown | HEUSCHER, OTHMAR B | | | $0.00 | 0 | 0 |
Payout Agreement
| No payout information available.. |