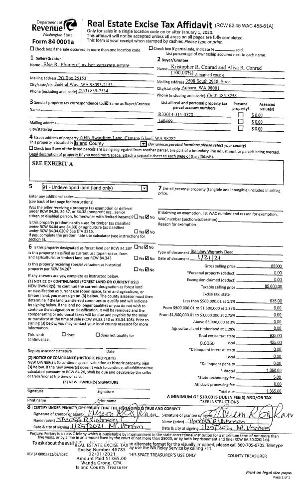
Property
Account |
| Property ID: | 148469 | Abbreviated Legal Description: | 8 - SW SW NW EX PT LY W OF E212.83' EX W522.3' OF S417' EX S15' SUBJ TO EZ N30' |
| Geographic ID: | R33014-311-0570 | Agent Code: | |
| Type: | Real | | |
| Tax Area: | 542 - APPRAISER-Stan/Cam Schl Dist, Special Dist, improved, greater than 1 acre | Land Use Code | 11 |
| Open Space: | N | DFL | N |
| Historic Property: | N | Remodel Property: | N |
| Multi-Family Redevelopment: | N | | |
| Township: | 30 | Section: | 14 |
| Range: | R3 |
Location |
| Address: | 1636 SWORDFERN LN CAMANO ISLAND, WA 98282 | Mapsco: | |
| Neighborhood: | 58NofTamarackS | Map ID: | 871 |
| Neighborhood CD: | 58RntamS |
Owner |
| Name: | CONRAD, KRISTOPHER R | Owner ID: | 297934 |
| Mailing Address: | ALIYA R CONRAD 1605 SWORDFERN LN CAMANO ISLAND, WA 98282-8234 | % Ownership: | 100.0000000000% |
| | | Exemptions: | |
Taxes and Assessment Details
Values
| (+) Improvement Homesite Value: | + | $0 | |
| (+) Improvement Non-Homesite Value: | + | $470,050 | |
| (+) Land Homesite Value: | + | $0 | |
| (+) Land Non-Homesite Value: | + | $270,000 | |
| (+) Curr Use (HS): | + | $0 | $0 |
| (+) Curr Use (NHS): | + | $0 | $0 |
| | | -------------------------- | |
| (=) Market Value: | = | $740,050 | |
| (–) Productivity Loss: | – | $0 | |
| | | -------------------------- | |
| (=) Subtotal: | = | $740,050 | |
| (+) Senior Appraised Value: | + | $0 | |
| (+) Non-Senior Appraised Value: | + | $740,050 | |
| | | -------------------------- | |
| (=) Total Appraised Value: | = | $740,050 | |
| (–) Senior Exemption Loss: | – | $0 | |
| (–) Exemption Loss: | – | $0 | |
| | | -------------------------- | |
| (=) Taxable Value: | = | $740,050 | |
Taxing Jurisdiction
| Owner: | CONRAD, KRISTOPHER R | | |
| % Ownership: | 100.0000000000% | | |
| Total Value: | $740,050 | | |
| Tax Area: | 542 - APPRAISER-Stan/Cam Schl Dist, Special Dist, improved, greater than 1 acre |
| CF | Conservation Futures | 0.0313996660 | $740,050 | $740,050 | $23.24 | | |
| EMS1 | Fire & Rescue Dist #1 Camano GEN (EMS) | 0.4998471806 | $740,050 | $740,050 | $369.91 | | |
| FIRE1 | Fire & Rescue Dist #1 Camano GEN | 1.2496603404 | $740,050 | $740,050 | $924.81 | | |
| FIRE1BOND | Fire & Rescue Dist #1 Camano BOND | 0.1630371212 | $740,050 | $740,050 | $120.66 | | |
| CE | County Current Expense | 0.3674210519 | $740,050 | $740,050 | $271.91 | | |
| CR | County Roads | 0.4614296361 | $740,050 | $740,050 | $341.48 | | |
| LIB | Library Sno-Isle GEN | 0.3039084203 | $740,050 | $740,050 | $224.91 | | |
| SCH205_401 | School 205-401 Enrichment | 1.3697998934 | $740,050 | $740,050 | $1,013.72 | | |
| SCH205BOND | School 205-401 BOND | 0.9354199323 | $740,050 | $740,050 | $692.26 | | |
| ST | State School | 1.4761226122 | $740,050 | $740,050 | $1,092.40 | | |
| ST2 | State School Part 2 | 0.7953803475 | $740,050 | $740,050 | $588.62 | | |
| | Total Tax Rate: | 7.6534262019 | | | | | |
| | | | | Taxes w/Current Exemptions: | $5,663.92 | | |
| | | | | Taxes w/o Exemptions: | $5,663.92 | | |
Improvement / Building
| Improvement #1: | RESIDENTIAL | State Code: | Y | 2915.5 sqft | Value: | $470,050 |
| Bathrooms: | 2.5 | Bedrooms: | 4 | | Ceiling: | DRYWALL PAINTED | Exterior Wall/Cover: | WOOD SIDING | | Floor Covering: | LAMINATE/LVP | Floor Structure: | WOOD W/SUBFLOOR | | Foundation: | SLAB | Heating: | RADIANT FLOOR | | Interior Finish: | DRYWALL PAINT | Plumbing Fixture Cnt: | 15 | | Roof Slope: | 3" IN 12" | Roof Structure/Cover: | STEEL TERNE |
|
| | Type | Description | Class CD | Sub Class CD | Year Built | Area |
| | BAS | BASE/MAIN FLOOR | 3 | 0 | 2024 | 1536.0 |
| | UB8 | BASEMENT UNFINISHED 8" | 3 | 0 | 2024 | 156.5 |
| | DWN | DOWNSTAIRS LIVING AREA | 3 | 0 | 2024 | 1379.5 |
| | OWP | OPEN WOOD PORCH W/STEPS | 3 | 0 | 2024 | 576.0 |
Sketch
| No sketches available for this property. |
Property Image
Land
| 1 | 18 | AC (02.01-03.00) | 2.3000 | 100188.00 | 0.00 | 0.00 | 1.00 | $270,000 | $0 |
Roll Value History
| 2026 | N/A | N/A | N/A | N/A | N/A |
| 2025 | $470,050 | $270,000 | $0 | $740,050 | $740,050 |
| 2024 | $258,385 | $140,000 | $0 | $398,385 | $398,385 |
| 2023 | $139,363 | $130,000 | $0 | $269,363 | $269,363 |
| 2022 | $0 | $90,000 | $0 | $90,000 | $90,000 |
| 2021 | $0 | $80,000 | $0 | $80,000 | $80,000 |
| 2020 | $0 | $75,000 | $0 | $75,000 | $75,000 |
| 2019 | $0 | $70,000 | $0 | $70,000 | $70,000 |
| 2018 | $0 | $65,000 | $0 | $65,000 | $65,000 |
| 2017 | $0 | $50,000 | $0 | $50,000 | $50,000 |
| 2016 | $0 | $50,000 | $0 | $50,000 | $50,000 |
| 2015 | $0 | $40,000 | $0 | $40,000 | $40,000 |
| 2014 | $0 | $40,000 | $0 | $40,000 | $40,000 |
| 2013 | $0 | $40,000 | $0 | $40,000 | $40,000 |
| 2012 | $0 | $55,800 | $0 | $55,800 | $55,800 |
| 2011 | $0 | $55,800 | $0 | $55,800 | $55,800 |
| 2010 | $0 | $55,800 | $0 | $55,800 | $55,800 |
| 2009 | $0 | $98,400 | $0 | $98,400 | $98,400 |
| 2008 | $0 | $71,280 | $0 | $71,280 | $71,280 |
| 2007 | $0 | $75,000 | $0 | $75,000 | $75,000 |
Deed and Sales History
| 1 | 01/21/2021 | WD | Warranty Deed | PHANEUF, ELSA R | CONRAD, KRISTOPHER R | | | $85,000.00 | 46785 | 4509700 |
| 2 | 07/01/1991 | PRD | Personal Representatives Deed | PHANEUF, DAN C | PHANEUF, ELSA R | | | $0.00 | 12298 | 91009815 |
| 3 | 01/01/1900 | OTHER | Other - Misc. Documents | Unknown | PHANEUF, DAN C | | | $0.00 | 0 | 0 |
Payout Agreement
| No payout information available.. |