Property
Account |
| Property ID: | 149538 | Abbreviated Legal Description: | 45 - S/2 SE NE SW NE SUBJ EZ W30' |
| Geographic ID: | R33023-338-3770 | Agent Code: | |
| Type: | Real | | |
| Tax Area: | 549 - APPRAISER-Stan/Cam Schl Dist, Special Dist, vacant & 50 acres or less | Land Use Code | 91 |
| Open Space: | N | DFL | N |
| Historic Property: | N | Remodel Property: | N |
| Multi-Family Redevelopment: | N | | |
| Township: | 30 | Section: | 23 |
| Range: | R3 |
Location |
| Address: | 3749 OLD CREMONA WAY CAMANO ISLAND, WA 98282 | Mapsco: | |
| Neighborhood: | 58SofTamarackS | Map ID: | 885 |
| Neighborhood CD: | 58RstamS |
Owner |
| Name: | ENGLEBRIGHT, AARON L. | Owner ID: | 309937 |
| Mailing Address: | 4432 SOUTH CAMANO DR CAMANO ISLAND, WA 98282 | % Ownership: | 100.0000000000% |
| | | Exemptions: | |
Taxes and Assessment Details
Values
| (+) Improvement Homesite Value: | + | $0 | |
| (+) Improvement Non-Homesite Value: | + | $0 | |
| (+) Land Homesite Value: | + | $0 | |
| (+) Land Non-Homesite Value: | + | $130,000 | |
| (+) Curr Use (HS): | + | $0 | $0 |
| (+) Curr Use (NHS): | + | $0 | $0 |
| | | -------------------------- | |
| (=) Market Value: | = | $130,000 | |
| (–) Productivity Loss: | – | $0 | |
| | | -------------------------- | |
| (=) Subtotal: | = | $130,000 | |
| (+) Senior Appraised Value: | + | $0 | |
| (+) Non-Senior Appraised Value: | + | $130,000 | |
| | | -------------------------- | |
| (=) Total Appraised Value: | = | $130,000 | |
| (–) Senior Exemption Loss: | – | $0 | |
| (–) Exemption Loss: | – | $0 | |
| | | -------------------------- | |
| (=) Taxable Value: | = | $130,000 | |
Taxing Jurisdiction
| Owner: | ENGLEBRIGHT, AARON L. | | |
| % Ownership: | 100.0000000000% | | |
| Total Value: | $130,000 | | |
| Tax Area: | 549 - APPRAISER-Stan/Cam Schl Dist, Special Dist, vacant & 50 acres or less |
| CF | Conservation Futures | 0.0313996660 | $130,000 | $130,000 | $4.08 | | |
| EMS1 | Fire & Rescue Dist #1 Camano GEN (EMS) | 0.4998471806 | $130,000 | $130,000 | $64.98 | | |
| CE | County Current Expense | 0.3674210519 | $130,000 | $130,000 | $47.76 | | |
| CR | County Roads | 0.4614296361 | $130,000 | $130,000 | $59.99 | | |
| LIB | Library Sno-Isle GEN | 0.3039084203 | $130,000 | $130,000 | $39.51 | | |
| SCH205_401 | School 205-401 Enrichment | 1.3697998934 | $130,000 | $130,000 | $178.07 | | |
| SCH205BOND | School 205-401 BOND | 0.9354199323 | $130,000 | $130,000 | $121.60 | | |
| ST | State School | 1.4761226122 | $130,000 | $130,000 | $191.90 | | |
| ST2 | State School Part 2 | 0.7953803475 | $130,000 | $130,000 | $103.40 | | |
| | Total Tax Rate: | 6.2407287403 | | | | | |
| | | | | Taxes w/Current Exemptions: | $811.29 | | |
| | | | | Taxes w/o Exemptions: | $811.29 | | |
Improvement / Building
Sketch
| No sketches available for this property. |
Property Image
Land
| 1 | 17 | AC (01.01-02.00) | 1.2500 | 54450.00 | 0.00 | 0.00 | 1.00 | $130,000 | $0 |
Roll Value History
| 2026 | N/A | N/A | N/A | N/A | N/A |
| 2025 | $0 | $130,000 | $0 | $130,000 | $130,000 |
| 2024 | $0 | $100,000 | $0 | $100,000 | $100,000 |
| 2023 | $0 | $90,000 | $0 | $90,000 | $90,000 |
| 2022 | $0 | $80,000 | $0 | $80,000 | $80,000 |
| 2021 | $0 | $70,000 | $0 | $70,000 | $70,000 |
| 2020 | $0 | $65,000 | $0 | $65,000 | $65,000 |
| 2019 | $0 | $65,000 | $0 | $65,000 | $65,000 |
| 2018 | $0 | $65,000 | $0 | $65,000 | $65,000 |
| 2017 | $0 | $65,000 | $0 | $65,000 | $65,000 |
| 2016 | $0 | $50,000 | $0 | $50,000 | $50,000 |
| 2015 | $0 | $40,000 | $0 | $40,000 | $40,000 |
| 2014 | $0 | $40,000 | $0 | $40,000 | $40,000 |
| 2013 | $0 | $40,000 | $0 | $40,000 | $40,000 |
| 2012 | $0 | $55,800 | $0 | $55,800 | $55,800 |
| 2011 | $0 | $55,800 | $0 | $55,800 | $55,800 |
| 2010 | $0 | $55,800 | $0 | $55,800 | $55,800 |
| 2009 | $0 | $80,400 | $0 | $80,400 | $80,400 |
| 2008 | $0 | $71,280 | $0 | $71,280 | $71,280 |
| 2007 | $0 | $75,000 | $0 | $75,000 | $75,000 |
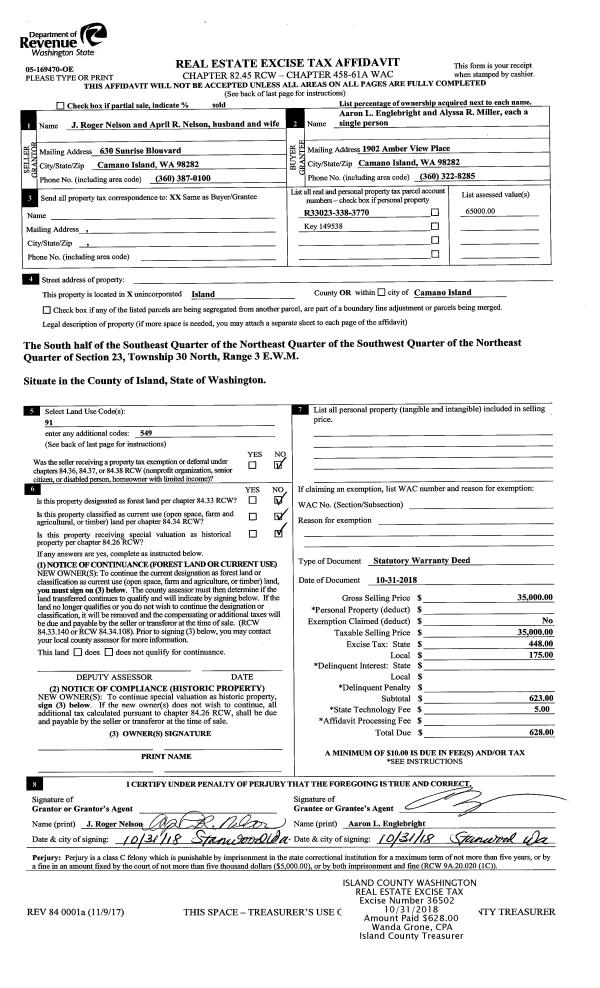
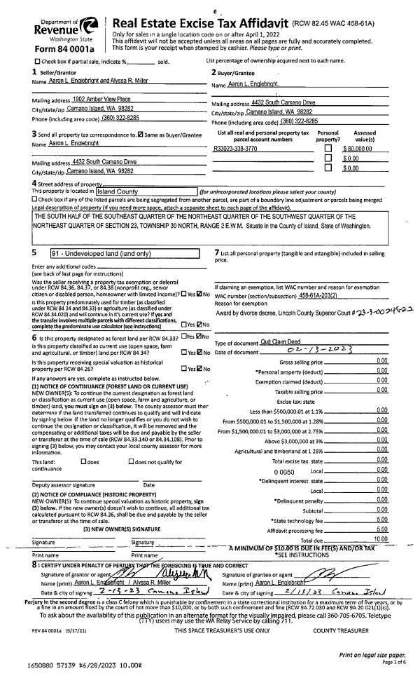
Deed and Sales History
| 1 | 02/13/2023 | QCD | Quit Claim Deed | ENGLEBRIGHT, AARON L | ENGLEBRIGHT, AARON L. | | | $0.00 | 57139 | 4561832 |
| 2 | 10/31/2018 | WD | Warranty Deed | NELSON, J ROGER & APRIL R | ENGLEBRIGHT, AARON L | | | $35,000.00 | 36502 | 4454348 |
| 3 | 05/01/1993 | WD | Warranty Deed | WICK, HERLOF G | NELSON, J R | | | $8,750.00 | 32018 | 93010513 |
| 4 | 01/01/1900 | OTHER | Other - Misc. Documents | Unknown | WICK, HERLOF G | | | $0.00 | 0 | 0 |
Payout Agreement
| No payout information available.. |