Property
Account |
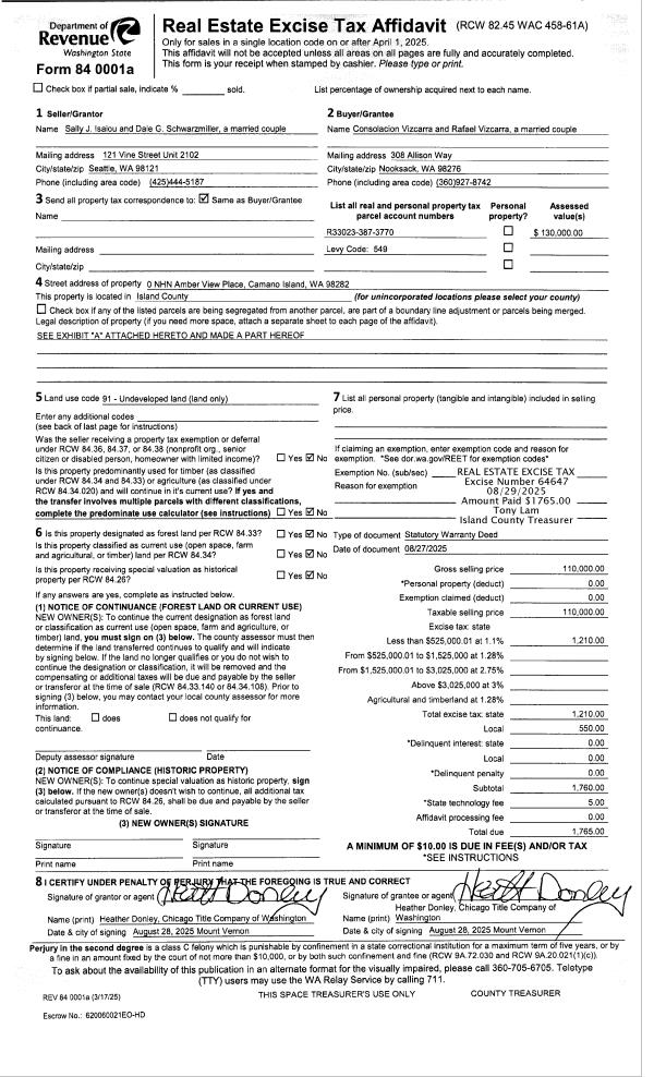
| Property ID: | 149725 | Abbreviated Legal Description: | 13 - N1/2 NE NE SW NE ERIC SCHWEIGER, RICHARD DARR REIMERS, MIKE STANWOOD UNDIV 1/3 INT EA |
| Geographic ID: | R33023-387-3770 | Agent Code: | |
| Type: | Real | | |
| Tax Area: | 549 - APPRAISER-Stan/Cam Schl Dist, Special Dist, vacant & 50 acres or less | Land Use Code | 91 |
| Open Space: | N | DFL | N |
| Historic Property: | N | Remodel Property: | N |
| Multi-Family Redevelopment: | N | | |
| Township: | 30 | Section: | 23 |
| Range: | R3 |
Location |
| Address: | CAMANO ISLAND, WA 98282 | Mapsco: | |
| Neighborhood: | 58SofTamarackS | Map ID: | 885 |
| Neighborhood CD: | 58RstamS |
Owner |
| Name: | ISAIOU, SALLY J | Owner ID: | 289826 |
| Mailing Address: | DALE G SCHWARZMILLER 121 VINE ST #2102 SEATTLE, WA 98121 | % Ownership: | 100.0000000000% |
| | | Exemptions: | |
Taxes and Assessment Details
Values
| (+) Improvement Homesite Value: | + | $0 | |
| (+) Improvement Non-Homesite Value: | + | $0 | |
| (+) Land Homesite Value: | + | $0 | |
| (+) Land Non-Homesite Value: | + | $130,000 | |
| (+) Curr Use (HS): | + | $0 | $0 |
| (+) Curr Use (NHS): | + | $0 | $0 |
| | | -------------------------- | |
| (=) Market Value: | = | $130,000 | |
| (–) Productivity Loss: | – | $0 | |
| | | -------------------------- | |
| (=) Subtotal: | = | $130,000 | |
| (+) Senior Appraised Value: | + | $0 | |
| (+) Non-Senior Appraised Value: | + | $130,000 | |
| | | -------------------------- | |
| (=) Total Appraised Value: | = | $130,000 | |
| (–) Senior Exemption Loss: | – | $0 | |
| (–) Exemption Loss: | – | $0 | |
| | | -------------------------- | |
| (=) Taxable Value: | = | $130,000 | |
Taxing Jurisdiction
| Owner: | ISAIOU, SALLY J | | |
| % Ownership: | 100.0000000000% | | |
| Total Value: | $130,000 | | |
| Tax Area: | 549 - APPRAISER-Stan/Cam Schl Dist, Special Dist, vacant & 50 acres or less |
| CF | Conservation Futures | 0.0313996660 | $130,000 | $130,000 | $4.08 | | |
| EMS1 | Fire & Rescue Dist #1 Camano GEN (EMS) | 0.4998471806 | $130,000 | $130,000 | $64.98 | | |
| CE | County Current Expense | 0.3674210519 | $130,000 | $130,000 | $47.76 | | |
| CR | County Roads | 0.4614296361 | $130,000 | $130,000 | $59.99 | | |
| LIB | Library Sno-Isle GEN | 0.3039084203 | $130,000 | $130,000 | $39.51 | | |
| SCH205_401 | School 205-401 Enrichment | 1.3697998934 | $130,000 | $130,000 | $178.07 | | |
| SCH205BOND | School 205-401 BOND | 0.9354199323 | $130,000 | $130,000 | $121.60 | | |
| ST | State School | 1.4761226122 | $130,000 | $130,000 | $191.90 | | |
| ST2 | State School Part 2 | 0.7953803475 | $130,000 | $130,000 | $103.40 | | |
| | Total Tax Rate: | 6.2407287403 | | | | | |
| | | | | Taxes w/Current Exemptions: | $811.29 | | |
| | | | | Taxes w/o Exemptions: | $811.29 | | |
Improvement / Building
Sketch
| No sketches available for this property. |
Property Image
Land
| 1 | 17 | AC (01.01-02.00) | 1.2500 | 54450.00 | 0.00 | 0.00 | 1.00 | $130,000 | $0 |
Roll Value History
| 2026 | N/A | N/A | N/A | N/A | N/A |
| 2025 | $0 | $130,000 | $0 | $130,000 | $130,000 |
| 2024 | $0 | $100,000 | $0 | $100,000 | $100,000 |
| 2023 | $0 | $90,000 | $0 | $90,000 | $90,000 |
| 2022 | $0 | $80,000 | $0 | $80,000 | $80,000 |
| 2021 | $0 | $70,000 | $0 | $70,000 | $70,000 |
| 2020 | $0 | $65,000 | $0 | $65,000 | $65,000 |
| 2019 | $0 | $65,000 | $0 | $65,000 | $65,000 |
| 2018 | $0 | $65,000 | $0 | $65,000 | $65,000 |
| 2017 | $0 | $65,000 | $0 | $65,000 | $65,000 |
| 2016 | $0 | $50,000 | $0 | $50,000 | $50,000 |
| 2015 | $0 | $40,000 | $0 | $40,000 | $40,000 |
| 2014 | $0 | $40,000 | $0 | $40,000 | $40,000 |
| 2013 | $0 | $40,000 | $0 | $40,000 | $40,000 |
| 2012 | $0 | $46,500 | $0 | $46,500 | $46,500 |
| 2011 | $0 | $46,500 | $0 | $46,500 | $46,500 |
| 2010 | $0 | $46,500 | $0 | $46,500 | $46,500 |
| 2009 | $0 | $54,000 | $0 | $54,000 | $54,000 |
| 2008 | $0 | $49,500 | $0 | $49,500 | $49,500 |
| 2007 | $0 | $50,000 | $0 | $50,000 | $50,000 |
Deed and Sales History
| 1 | 08/27/2025 | WD | Warranty Deed | ISAIOU, SALLY J | VIZCARRA, CONSOLACION | | | $110,000.00 | 64647 | 4590259 |
| 2 | 05/10/2019 | WD | Warranty Deed | SCHWEIGER ET AL, ERIC | ISAIOU, SALLY J | | | $38,000.00 | 38572 | 4463647 |
| 3 | 07/01/1997 | QCD | Quit Claim Deed | SCHWEIGER, ERIC E | SCHWEIGER, ERIC E | | | $0.00 | 72264 | 97010645 |
| 4 | 10/01/1996 | WD | Warranty Deed | HOUSLER, KATHRYN A | SCHWEIGER, ERIC E | | | $11,000.00 | 63806 | 96018434 |
| 5 | 01/01/1900 | OTHER | Other - Misc. Documents | Unknown | HOUSLER, KATHRYN A | | | $0.00 | 0 | 0 |
Payout Agreement
| No payout information available.. |