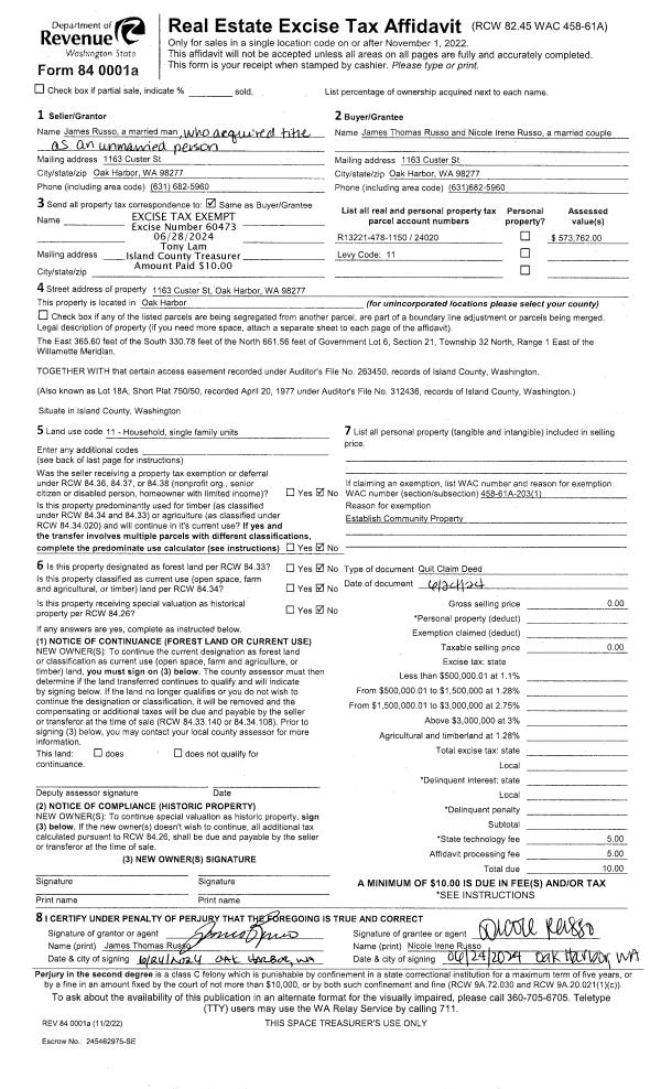
Property
Account |
| Property ID: | 150188 | Abbreviated Legal Description: | 5-3 - LOT 5 BLK 3 PORTERS ESTS #1 V4 SUR P17 AF#302904 SUBJ TO EZ |
| Geographic ID: | R33024-157-2380 | Agent Code: | |
| Type: | Real | | |
| Tax Area: | 549 - APPRAISER-Stan/Cam Schl Dist, Special Dist, vacant & 50 acres or less | Land Use Code | 91 |
| Open Space: | N | DFL | N |
| Historic Property: | N | Remodel Property: | N |
| Multi-Family Redevelopment: | N | | |
| Township: | 30 | Section: | 24 |
| Range: | R3 |
Location |
| Address: | | Mapsco: | |
| Neighborhood: | 58RecamWF-East Cam | Map ID: | 886 |
| Neighborhood CD: | 58RecamWF |
Owner |
| Name: | PARK, KATHLEEN | Owner ID: | 313105 |
| Mailing Address: | HENRY PARK 30654 N 120TH AVE PEORIA, AZ 85383 | % Ownership: | 100.0000000000% |
| | | Exemptions: | |
Taxes and Assessment Details
Values
| (+) Improvement Homesite Value: | + | $0 | |
| (+) Improvement Non-Homesite Value: | + | $0 | |
| (+) Land Homesite Value: | + | $0 | |
| (+) Land Non-Homesite Value: | + | $350,000 | |
| (+) Curr Use (HS): | + | $0 | $0 |
| (+) Curr Use (NHS): | + | $0 | $0 |
| | | -------------------------- | |
| (=) Market Value: | = | $350,000 | |
| (–) Productivity Loss: | – | $0 | |
| | | -------------------------- | |
| (=) Subtotal: | = | $350,000 | |
| (+) Senior Appraised Value: | + | $0 | |
| (+) Non-Senior Appraised Value: | + | $350,000 | |
| | | -------------------------- | |
| (=) Total Appraised Value: | = | $350,000 | |
| (–) Senior Exemption Loss: | – | $0 | |
| (–) Exemption Loss: | – | $0 | |
| | | -------------------------- | |
| (=) Taxable Value: | = | $350,000 | |
Taxing Jurisdiction
| Owner: | PARK, KATHLEEN | | |
| % Ownership: | 100.0000000000% | | |
| Total Value: | $350,000 | | |
| Tax Area: | 549 - APPRAISER-Stan/Cam Schl Dist, Special Dist, vacant & 50 acres or less |
| CF | Conservation Futures | 0.0313996660 | $350,000 | $350,000 | $10.99 | | |
| EMS1 | Fire & Rescue Dist #1 Camano GEN (EMS) | 0.4998471806 | $350,000 | $350,000 | $174.95 | | |
| CE | County Current Expense | 0.3674210519 | $350,000 | $350,000 | $128.60 | | |
| CR | County Roads | 0.4614296361 | $350,000 | $350,000 | $161.50 | | |
| LIB | Library Sno-Isle GEN | 0.3039084203 | $350,000 | $350,000 | $106.37 | | |
| SCH205_401 | School 205-401 Enrichment | 1.3697998934 | $350,000 | $350,000 | $479.43 | | |
| SCH205BOND | School 205-401 BOND | 0.9354199323 | $350,000 | $350,000 | $327.40 | | |
| ST | State School | 1.4761226122 | $350,000 | $350,000 | $516.64 | | |
| ST2 | State School Part 2 | 0.7953803475 | $350,000 | $350,000 | $278.38 | | |
| | Total Tax Rate: | 6.2407287403 | | | | | |
| | | | | Taxes w/Current Exemptions: | $2,184.26 | | |
| | | | | Taxes w/o Exemptions: | $2,184.26 | | |
Improvement / Building
Sketch
| No sketches available for this property. |
Property Image
Land
| 1 | HB | HIGH BLUFF | 5.1200 | 223027.20 | 290.00 | 0.00 | 1.00 | $350,000 | $0 |
Roll Value History
| 2026 | N/A | N/A | N/A | N/A | N/A |
| 2025 | $0 | $350,000 | $0 | $350,000 | $350,000 |
| 2024 | $0 | $325,000 | $0 | $325,000 | $325,000 |
| 2023 | $0 | $325,000 | $0 | $325,000 | $325,000 |
| 2022 | $0 | $300,000 | $0 | $300,000 | $300,000 |
| 2021 | $0 | $175,000 | $0 | $175,000 | $175,000 |
| 2020 | $0 | $150,000 | $0 | $150,000 | $150,000 |
| 2019 | $0 | $150,000 | $0 | $150,000 | $150,000 |
| 2018 | $0 | $150,000 | $0 | $150,000 | $150,000 |
| 2017 | $0 | $70,000 | $0 | $70,000 | $70,000 |
| 2016 | $0 | $70,000 | $0 | $70,000 | $70,000 |
| 2015 | $0 | $70,000 | $0 | $70,000 | $70,000 |
| 2014 | $0 | $70,000 | $0 | $70,000 | $70,000 |
| 2013 | $0 | $83,517 | $0 | $83,517 | $83,517 |
| 2012 | $0 | $83,517 | $0 | $83,517 | $83,517 |
| 2011 | $0 | $104,396 | $0 | $104,396 | $104,396 |
| 2010 | $0 | $104,396 | $0 | $104,396 | $104,396 |
| 2009 | $0 | $124,171 | $0 | $124,171 | $124,171 |
| 2008 | $0 | $114,556 | $0 | $114,556 | $114,556 |
| 2007 | $0 | $114,556 | $0 | $114,556 | $114,556 |
Deed and Sales History
| 1 | 07/08/2024 | WD | Warranty Deed | WILTERMOOD, MICHAEL | PARK, KATHLEEN | | | $369,500.00 | 60581 | 4574354 |
| 2 | 10/29/2007 | QCD | Quit Claim Deed | PETERSON, WARREN/DENECE | WILTERMOOD, MICHAEL | | | $57,000.00 | 73929 | 4217360 |
| 3 | 06/17/2004 | QCD | Quit Claim Deed | PETERSON, WARREN D | PETERSON, WARREN/DENECE | | | $0.00 | 43609 | 4109101 |
| 4 | 05/29/2002 | ESTSEPPROP | Establish Separate Property | R DEAN PETERSON, JOAN PETERSON | PETERSON, WARREN D | | | $9,069.00 | 22178 | 4023956 |
| 5 | 12/28/2001 | TRUSTEED | Trustee's Deed | CLASSIC, INVESTMENTS I | R DEAN PETERSON, JOAN PETERSON | | | $0.00 | 21071 | 4014797 |
| 6 | 11/01/1993 | WD | Warranty Deed | PETERSON, BROTHERS, I | CLASSIC, INVESTMENTS I | | | $150,000.00 | 34573 | 93023867 |
| 7 | 01/01/1900 | OTHER | Other - Misc. Documents | Unknown | PETERSON, BROTHERS, I | | | $0.00 | 0 | 0 |
Payout Agreement
| No payout information available.. |