Property
Account |
| Property ID: | 150222 | Abbreviated Legal Description: | 4-3 - IN GL 2 LOT 4 BLK 3 AS PER CURV VOL 4P17 TGW & SUB EZ |
| Geographic ID: | R33024-185-2260 | Agent Code: | |
| Type: | Real | | |
| Tax Area: | 549 - APPRAISER-Stan/Cam Schl Dist, Special Dist, vacant & 50 acres or less | Land Use Code | 91 |
| Open Space: | N | DFL | N |
| Historic Property: | N | Remodel Property: | N |
| Multi-Family Redevelopment: | N | | |
| Township: | 30 | Section: | 24 |
| Range: | R3 |
Location |
| Address: | CAMANO ISLAND, WA 98282 | Mapsco: | |
| Neighborhood: | 58RecamWF-East Cam | Map ID: | 886 |
| Neighborhood CD: | 58RecamWF |
Owner |
| Name: | BROCKWAY, RYAN S | Owner ID: | 316662 |
| Mailing Address: | 3875 SOUTHEAST CAMANO DR CAMANOISLAND, WA 98282 | % Ownership: | 100.0000000000% |
| | | Exemptions: | |
Taxes and Assessment Details
Values
| (+) Improvement Homesite Value: | + | $0 | |
| (+) Improvement Non-Homesite Value: | + | $0 | |
| (+) Land Homesite Value: | + | $0 | |
| (+) Land Non-Homesite Value: | + | $40,000 | |
| (+) Curr Use (HS): | + | $0 | $0 |
| (+) Curr Use (NHS): | + | $0 | $0 |
| | | -------------------------- | |
| (=) Market Value: | = | $40,000 | |
| (–) Productivity Loss: | – | $0 | |
| | | -------------------------- | |
| (=) Subtotal: | = | $40,000 | |
| (+) Senior Appraised Value: | + | $0 | |
| (+) Non-Senior Appraised Value: | + | $40,000 | |
| | | -------------------------- | |
| (=) Total Appraised Value: | = | $40,000 | |
| (–) Senior Exemption Loss: | – | $0 | |
| (–) Exemption Loss: | – | $0 | |
| | | -------------------------- | |
| (=) Taxable Value: | = | $40,000 | |
Taxing Jurisdiction
| Owner: | BROCKWAY, RYAN S | | |
| % Ownership: | 100.0000000000% | | |
| Total Value: | $40,000 | | |
| Tax Area: | 549 - APPRAISER-Stan/Cam Schl Dist, Special Dist, vacant & 50 acres or less |
| CF | Conservation Futures | 0.0313996660 | $40,000 | $40,000 | $1.26 | | |
| EMS1 | Fire & Rescue Dist #1 Camano GEN (EMS) | 0.4998471806 | $40,000 | $40,000 | $19.99 | | |
| CE | County Current Expense | 0.3674210519 | $40,000 | $40,000 | $14.70 | | |
| CR | County Roads | 0.4614296361 | $40,000 | $40,000 | $18.46 | | |
| LIB | Library Sno-Isle GEN | 0.3039084203 | $40,000 | $40,000 | $12.16 | | |
| SCH205_401 | School 205-401 Enrichment | 1.3697998934 | $40,000 | $40,000 | $54.79 | | |
| SCH205BOND | School 205-401 BOND | 0.9354199323 | $40,000 | $40,000 | $37.42 | | |
| ST | State School | 1.4761226122 | $40,000 | $40,000 | $59.04 | | |
| ST2 | State School Part 2 | 0.7953803475 | $40,000 | $40,000 | $31.82 | | |
| | Total Tax Rate: | 6.2407287403 | | | | | |
| | | | | Taxes w/Current Exemptions: | $249.64 | | |
| | | | | Taxes w/o Exemptions: | $249.64 | | |
Improvement / Building
Sketch
| No sketches available for this property. |
Property Image
Land
| 1 | HB | HIGH BLUFF | 5.1800 | 225640.80 | 290.00 | 0.00 | 1.00 | $40,000 | $0 |
Roll Value History
| 2026 | N/A | N/A | N/A | N/A | N/A |
| 2025 | $0 | $40,000 | $0 | $40,000 | $40,000 |
| 2024 | $0 | $40,000 | $0 | $40,000 | $40,000 |
| 2023 | $0 | $40,000 | $0 | $40,000 | $40,000 |
| 2022 | $0 | $40,000 | $0 | $40,000 | $40,000 |
| 2021 | $0 | $40,000 | $0 | $40,000 | $40,000 |
| 2020 | $0 | $40,000 | $0 | $40,000 | $40,000 |
| 2019 | $0 | $40,000 | $0 | $40,000 | $40,000 |
| 2018 | $0 | $40,000 | $0 | $40,000 | $40,000 |
| 2017 | $0 | $50,000 | $0 | $50,000 | $50,000 |
| 2016 | $0 | $50,000 | $0 | $50,000 | $50,000 |
| 2015 | $0 | $50,000 | $0 | $50,000 | $50,000 |
| 2014 | $0 | $50,000 | $0 | $50,000 | $50,000 |
| 2013 | $0 | $82,646 | $0 | $82,646 | $82,646 |
| 2012 | $0 | $82,646 | $0 | $82,646 | $82,646 |
| 2011 | $0 | $103,308 | $0 | $103,308 | $103,308 |
| 2010 | $0 | $103,308 | $0 | $103,308 | $103,308 |
| 2009 | $0 | $183,493 | $0 | $183,493 | $183,493 |
| 2008 | $0 | $314,556 | $0 | $314,556 | $314,556 |
| 2007 | $0 | $314,556 | $0 | $314,556 | $314,556 |
Deed and Sales History
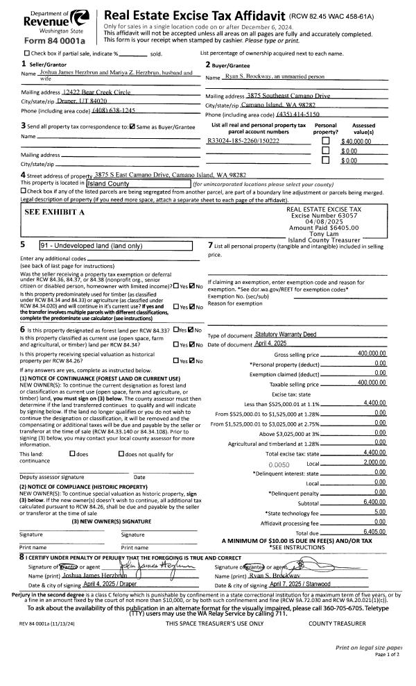
| 1 | 04/04/2025 | WD | Warranty Deed | HERZBRUN, JOSHUA JAMES | BROCKWAY, RYAN S | | | $400,000.00 | 63057 | 4584209 |
| 2 | 05/13/2024 | QCD | Quit Claim Deed | BROCKWAY, RYAN SCOTT | HERZBRUN, JOSHUA JAMES | | | $0.00 | 60218 | 4573174 |
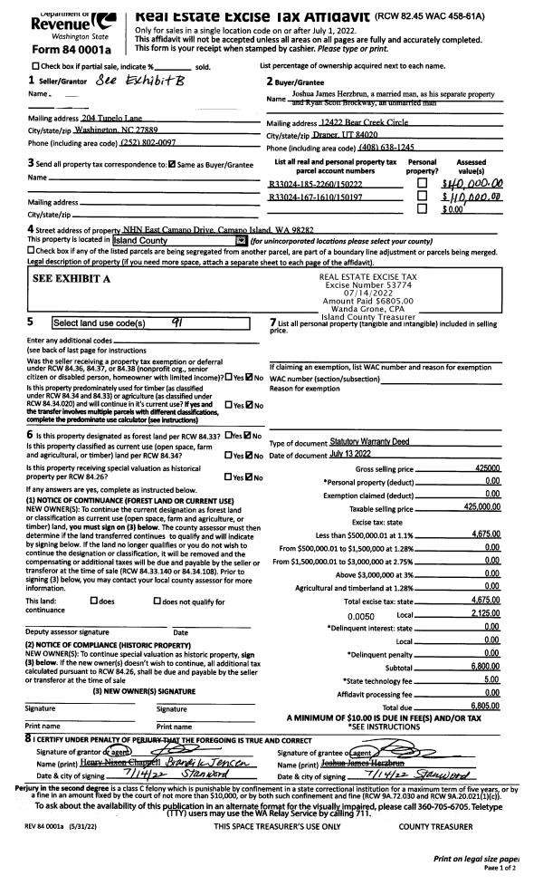
| 3 | 07/13/2022 | WD | Warranty Deed | CHAPPELL CO TRUSTEE, HENRY NIXON | HERZBRUN, JOSHUA J | | | $425,000.00 | 53774 | 4548164 |
|   | |
| 4 | 04/28/2009 | QCD | Quit Claim Deed | CHAPPELL, H. NIXON | CHAPPELL, HENRY NIXON | | | $0.00 | 91021 | 4250978 |
| 5 | 07/19/2002 | WD | Warranty Deed | Unknown | CHAPPELL, H. NIXON | | | $136,675.00 | 22896 | 4026596 |
Payout Agreement
| No payout information available.. |