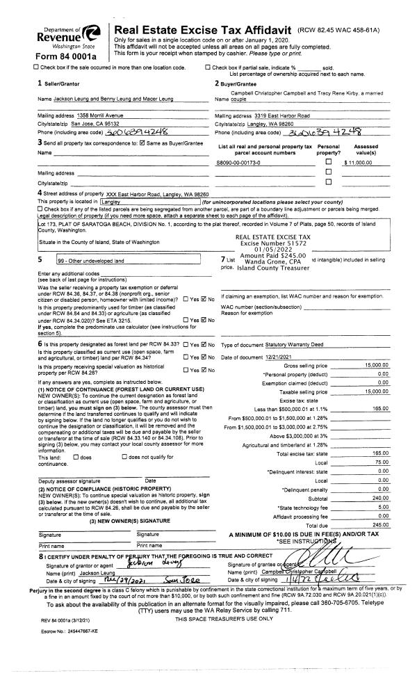
Property
Account |
| Property ID: | 150428 | Abbreviated Legal Description: | 11 - S331.46' OF GL4 LY WLY OF E CAMANO DR |
| Geographic ID: | R33024-416-0410 | Agent Code: | |
| Type: | Real | | |
| Tax Area: | 542 - APPRAISER-Stan/Cam Schl Dist, Special Dist, improved, greater than 1 acre | Land Use Code | 11 |
| Open Space: | N | DFL | N |
| Historic Property: | N | Remodel Property: | N |
| Multi-Family Redevelopment: | N | | |
| Township: | 30 | Section: | 24 |
| Range: | R3 |
Location |
| Address: | 3680 S EAST CAMANO DR CAMANO ISLAND, WA 98282 | Mapsco: | |
| Neighborhood: | 58SofTamarackAC | Map ID: | 887 |
| Neighborhood CD: | 58RstamAC |
Owner |
| Name: | CAMANO TYEE GROUP LLC | Owner ID: | 59903 |
| Mailing Address: | 3129 SHORELINE DR CAMANO ISLAND, WA 98282 | % Ownership: | 100.0000000000% |
| | | Exemptions: | |
Taxes and Assessment Details
Values
| (+) Improvement Homesite Value: | + | $0 | |
| (+) Improvement Non-Homesite Value: | + | $411,132 | |
| (+) Land Homesite Value: | + | $0 | |
| (+) Land Non-Homesite Value: | + | $320,000 | |
| (+) Curr Use (HS): | + | $0 | $0 |
| (+) Curr Use (NHS): | + | $0 | $0 |
| | | -------------------------- | |
| (=) Market Value: | = | $731,132 | |
| (–) Productivity Loss: | – | $0 | |
| | | -------------------------- | |
| (=) Subtotal: | = | $731,132 | |
| (+) Senior Appraised Value: | + | $0 | |
| (+) Non-Senior Appraised Value: | + | $731,132 | |
| | | -------------------------- | |
| (=) Total Appraised Value: | = | $731,132 | |
| (–) Senior Exemption Loss: | – | $0 | |
| (–) Exemption Loss: | – | $0 | |
| | | -------------------------- | |
| (=) Taxable Value: | = | $731,132 | |
Taxing Jurisdiction
| Owner: | CAMANO TYEE GROUP LLC | | |
| % Ownership: | 100.0000000000% | | |
| Total Value: | $731,132 | | |
| Tax Area: | 542 - APPRAISER-Stan/Cam Schl Dist, Special Dist, improved, greater than 1 acre |
| CF | Conservation Futures | 0.0313996660 | $731,132 | $731,132 | $22.96 | | |
| EMS1 | Fire & Rescue Dist #1 Camano GEN (EMS) | 0.4998471806 | $731,132 | $731,132 | $365.45 | | |
| FIRE1 | Fire & Rescue Dist #1 Camano GEN | 1.2496603404 | $731,132 | $731,132 | $913.67 | | |
| FIRE1BOND | Fire & Rescue Dist #1 Camano BOND | 0.1630371212 | $731,132 | $731,132 | $119.20 | | |
| CE | County Current Expense | 0.3674210519 | $731,132 | $731,132 | $268.63 | | |
| CR | County Roads | 0.4614296361 | $731,132 | $731,132 | $337.37 | | |
| LIB | Library Sno-Isle GEN | 0.3039084203 | $731,132 | $731,132 | $222.20 | | |
| SCH205_401 | School 205-401 Enrichment | 1.3697998934 | $731,132 | $731,132 | $1,001.50 | | |
| SCH205BOND | School 205-401 BOND | 0.9354199323 | $731,132 | $731,132 | $683.92 | | |
| ST | State School | 1.4761226122 | $731,132 | $731,132 | $1,079.24 | | |
| ST2 | State School Part 2 | 0.7953803475 | $731,132 | $731,132 | $581.53 | | |
| | Total Tax Rate: | 7.6534262019 | | | | | |
| | | | | Taxes w/Current Exemptions: | $5,595.67 | | |
| | | | | Taxes w/o Exemptions: | $5,595.67 | | |
Improvement / Building
| Improvement #1: | RESIDENTIAL | State Code: | Y | 1232.0 sqft | Value: | $411,132 |
| Bathrooms: | 1 | Bedrooms: | 2 | | Ceiling: | DRYWALL PAINTED | Exterior Wall/Cover: | PLY/HARDBOARD T-111 | | Floor Covering: | CARPET/VINYL 80-20 | Floor Structure: | SLAB ON GRADE | | Foundation: | SLAB | Heating: | WALL HEAT ELECTRIC | | Interior Finish: | DRYWALL PAINT | Plumbing Fixture Cnt: | 6 | | Roof Slope: | 4" IN 12" | Roof Structure/Cover: | CJ ALUMINIUM HEAVY |
|
| | Type | Description | Class CD | Sub Class CD | Year Built | Area |
| | BAS | BASE/MAIN FLOOR | 3 | 0 | 1998 | 1232.0 |
| | OP1 | OPEN PORCH SLAB | 3 | 0 | 1998 | 436.0 |
| | CPD | OPEN CARPORT DIRT FLOOR | 3 | 0 | 1998 | 240.0 |
| | DGR | DETACHED GARAGE | 3 | 0 | 1998 | 720.0 |
| | UTY | STORAGE/UTILITY | 3 | 0 | 1998 | 4320.0 |
| | UTY | STORAGE/UTILITY | 3 | 0 | 1998 | 2664.0 |
| | UTY | STORAGE/UTILITY | 3 | 0 | 1998 | 120.0 |
Sketch
Property Image
Land
| 1 | 32 | AC (03.01-09.99) | 4.3300 | 188614.80 | 0.00 | 0.00 | 1.00 | $320,000 | $0 |
Roll Value History
| 2026 | N/A | N/A | N/A | N/A | N/A |
| 2025 | $411,132 | $320,000 | $0 | $731,132 | $731,132 |
| 2024 | $416,319 | $280,000 | $0 | $696,319 | $696,319 |
| 2023 | $421,507 | $260,000 | $0 | $681,507 | $681,507 |
| 2022 | $386,383 | $210,000 | $0 | $596,383 | $596,383 |
| 2021 | $284,001 | $160,000 | $0 | $444,001 | $444,001 |
| 2020 | $277,041 | $150,000 | $0 | $427,041 | $427,041 |
| 2019 | $198,093 | $200,000 | $0 | $398,093 | $398,093 |
| 2018 | $198,702 | $165,000 | $0 | $363,702 | $363,702 |
| 2017 | $199,922 | $150,000 | $0 | $349,922 | $349,922 |
| 2016 | $202,360 | $130,000 | $0 | $332,360 | $332,360 |
| 2015 | $193,283 | $84,000 | $0 | $277,283 | $277,283 |
| 2014 | $194,475 | $84,000 | $0 | $278,475 | $278,475 |
| 2013 | $195,667 | $72,744 | $0 | $268,411 | $268,411 |
| 2012 | $196,860 | $72,744 | $0 | $269,604 | $269,604 |
| 2011 | $198,052 | $93,000 | $0 | $291,052 | $291,052 |
| 2010 | $200,164 | $93,000 | $0 | $293,164 | $293,164 |
| 2009 | $202,633 | $120,000 | $0 | $322,633 | $322,633 |
| 2008 | $206,668 | $110,000 | $0 | $316,668 | $316,668 |
| 2007 | $210,377 | $110,000 | $0 | $320,377 | $320,377 |
Deed and Sales History
| 1 | 04/09/2004 | QCD | Quit Claim Deed | LONG, ROBERT F | CAMANO TYEE GROUP LLC, | | | $0.00 | 41634 | 4098015 |
| 2 | 12/09/1998 | WD | Warranty Deed | MURPHY, WILLIAM/MICHELLE L | LONG, ROBERT F | | | $57,000.00 | 84903 | 98027018 |
| 3 | 08/01/1994 | PACD | Purchaser's Assignment | HUMPHREY, STEVEN | MURPHY, WILLIAM/MICHELLE L | | | $28,246.00 | 43407 | 94018170 |
| 4 | 10/01/1991 | WD | Warranty Deed | BOWRON, JOHN N | HUMPHREY, STEVEN | | | $33,000.00 | 13877 | 91016531 |
| 5 | 06/01/1990 | WD | Warranty Deed | JUMPER, J R | BOWRON, JOHN N | | | $28,000.00 | 3991 | 90013042 |
| 6 | 10/01/1984 | QCD | Quit Claim Deed | BEYERS, VICKI, J | JUMPER, J R | | | $4,900.00 | 50971 | 0 |
| 7 | 05/01/1978 | OTHER | Other - Misc. Documents | Unknown | BEYERS, VICKI, J | | | $11,000.00 | 81899 | 331942 |
Payout Agreement
| No payout information available.. |