Property
Account |
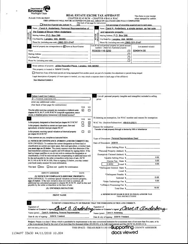
| Property ID: | 151560 | Abbreviated Legal Description: | 24 - N/2 NW SW SE |
| Geographic ID: | R33030-116-3250 | Agent Code: | |
| Type: | Real | | |
| Tax Area: | 712 - APPRAISER-S Whid Schl Dist, outside Langley, improved, greater than 1 acre | Land Use Code | 11 |
| Open Space: | N | DFL | N |
| Historic Property: | N | Remodel Property: | N |
| Multi-Family Redevelopment: | N | | |
| Township: | 30 | Section: | 30 |
| Range: | R3 |
Location |
| Address: | 4304 PEACEFUL PLACE LANGLEY, WA 98260 | Mapsco: | |
| Neighborhood: | Cycle 4 | Map ID: | 897 |
| Neighborhood CD: | 4 |
Owner |
| Name: | ANDERBERG, CAROL A | Owner ID: | 290237 |
| Mailing Address: | 4505 PEACEFUL PL LANGLEY, WA 98260 | % Ownership: | 100.0000000000% |
| | | Exemptions: | SNR/DSBL |
Taxes and Assessment Details
Values
| (+) Improvement Homesite Value: | + | $224,543 | |
| (+) Improvement Non-Homesite Value: | + | $0 | |
| (+) Land Homesite Value: | + | $370,000 | |
| (+) Land Non-Homesite Value: | + | $0 | |
| (+) Curr Use (HS): | + | $0 | $0 |
| (+) Curr Use (NHS): | + | $0 | $0 |
| | | -------------------------- | |
| (=) Market Value: | = | $594,543 | |
| (–) Productivity Loss: | – | $0 | |
| | | -------------------------- | |
| (=) Subtotal: | = | $594,543 | |
| (+) Senior Appraised Value: | + | $280,750 | |
| (+) Non-Senior Appraised Value: | + | $0 | |
| | | -------------------------- | |
| (=) Total Appraised Value: | = | $280,750 | |
| (–) Senior Exemption Loss: | – | $168,450 | |
| (–) Exemption Loss: | – | $0 | |
| | | -------------------------- | |
| (=) Taxable Value: | = | $112,300 | |
Taxing Jurisdiction
| Owner: | ANDERBERG, CAROL A | | |
| % Ownership: | 100.0000000000% | | |
| Total Value: | $594,543 | | |
| Tax Area: | 712 - APPRAISER-S Whid Schl Dist, outside Langley, improved, greater than 1 acre |
| CF | Conservation Futures | 0.0313996660 | $594,543 | $112,300 | $3.53 | | |
| FIRE3 | Fire & Rescue Dist #3 S Whidbey GEN | 1.2130821753 | $594,543 | $112,300 | $136.23 | | |
| HOBOND | Hospital BOND | 0.0000000000 | $594,543 | $0 | $0.00 | | |
| HOGEN | Hospital GEN | 0.3848777722 | $594,543 | $112,300 | $43.22 | | |
| CE | County Current Expense | 0.3674210519 | $594,543 | $112,300 | $41.26 | | |
| CR | County Roads | 0.4614296361 | $594,543 | $112,300 | $51.82 | | |
| ISLANDEMS | Hospital GEN (EMS) | 0.4952018576 | $594,543 | $112,300 | $55.61 | | |
| LIB | Library Sno-Isle GEN | 0.3039084203 | $594,543 | $112,300 | $34.13 | | |
| PORTWHID | Port of S Whidbey GEN | 0.1086004714 | $594,543 | $112,300 | $12.20 | | |
| SCH206BOND | School 206 BOND | 0.0000000000 | $594,543 | $0 | $0.00 | | |
| SCH206CAP | School 206 CP | 0.0000000000 | $594,543 | $0 | $0.00 | | |
| SCH206MO | School 206 Enrichment | 0.0000000000 | $594,543 | $0 | $0.00 | | |
| ST | State School | 1.4761226122 | $594,543 | $112,300 | $165.77 | | |
| ST2 | State School Part 2 | 0.0000000000 | $594,543 | $0 | $0.00 | | |
| SWHIDPRBD | P & R S Whidbey BOND | 0.0000000000 | $594,543 | $0 | $0.00 | | |
| SWHIDPRBD3 | P & R S Whidbey BOND3 | 0.0000000000 | $594,543 | $0 | $0.00 | | |
| SWHIDPRMT | P & R S Whidbey GEN | 0.4600000000 | $594,543 | $112,300 | $51.66 | | |
| | Total Tax Rate: | 5.3020436630 | | | | | |
| | | | | Taxes w/Current Exemptions: | $595.43 | | |
| | | | | Taxes w/o Exemptions: | $4,657.10 | | |
Improvement / Building
| Improvement #1: | MANUFACTURED HOME | State Code: | Y | 2596.5 sqft | Value: | $224,543 |
| Bathrooms: | 2 | Bedrooms: | 3 | | Ceiling: | PLASTER PAINTED | Cooling: | EVAP NO DUCT | | Exterior Wall/Cover: | VINYL | Floor Covering: | CARPET 100% | | Floor Structure: | SLAB ON GRADE | Foundation: | SLAB | | Heating: | FHA ELECTRIC | Interior Finish: | PLASTER | | Plumbing Fixture Cnt: | 1 | Roof Slope: | FLAT | | Roof Structure/Cover: | CJ ALUMINIUM HEAVY |   |   |
|
| | Type | Description | Class CD | Sub Class CD | Year Built | Area |
| | BAS | BASE/MAIN FLOOR | 5 | 0 | 2004 | 2596.5 |
| | OWC | OPEN WOOD PORCH W/STEPS/ROOF/C | 5 | 0 | 2004 | 7.0 |
| | oPOL | POLE BARN | 5 | 0 | 2004 | 0.0 |
Sketch
Property Image
Land
| 1 | 32 | AC (03.01-09.99) | 5.0000 | 0.00 | 0.00 | 0.00 | 1.00 | $370,000 | $0 |
Roll Value History
| 2026 | N/A | N/A | N/A | N/A | N/A |
| 2025 | $224,543 | $370,000 | $0 | $594,543 | $112,300 |
| 2024 | $227,291 | $350,000 | $0 | $577,291 | $112,300 |
| 2023 | $205,913 | $330,000 | $0 | $535,913 | $112,300 |
| 2022 | $193,307 | $290,000 | $0 | $483,307 | $112,300 |
| 2021 | $175,322 | $230,000 | $0 | $405,322 | $112,300 |
| 2020 | $174,645 | $190,000 | $0 | $364,645 | $112,300 |
| 2019 | $146,121 | $250,000 | $0 | $396,121 | $112,300 |
| 2018 | $148,999 | $190,000 | $0 | $338,999 | $112,300 |
| 2017 | $150,414 | $190,000 | $0 | $340,414 | $112,300 |
| 2016 | $151,852 | $135,000 | $0 | $286,852 | $280,750 |
| 2015 | $154,730 | $135,000 | $0 | $289,730 | $112,300 |
| 2014 | $166,000 | $114,750 | $0 | $280,750 | $280,750 |
| 2013 | $168,798 | $114,750 | $0 | $283,548 | $283,548 |
| 2012 | $170,198 | $114,750 | $0 | $284,948 | $284,948 |
| 2011 | $172,996 | $135,000 | $0 | $307,996 | $307,996 |
| 2010 | $192,092 | $135,000 | $0 | $327,092 | $327,092 |
| 2009 | $199,226 | $220,000 | $0 | $419,226 | $419,226 |
| 2008 | $202,048 | $237,500 | $0 | $439,548 | $439,548 |
| 2007 | $204,611 | $237,500 | $0 | $442,111 | $442,111 |
Deed and Sales History
| 1 | 03/29/2018 | MANHOME | Manufactured Home | ANDERBERG, CAROL A | ANDERBERG, CAROL A | | | $0.00 | 33631 | |
| 2 | 03/29/2018 | PRD | Personal Representatives Deed | ANDERBERG, BRUCE | ANDERBERG, CAROL A | | | $0.00 | 33630 | 4442397 |
| 3 | 03/04/2003 | WD | Warranty Deed | KENT, DONALD S | ANDERBERG, BRUCE | | | $67,500.00 | 30945 | 4050288 |
| 4 | 12/01/1980 | TRUSTEED | Trustee's Deed | MONTGOMERY, JAMES A | KENT, DONALD S | | | $20,000.00 | 4023 | 377026 |
| 5 | 01/01/1900 | OTHER | Other - Misc. Documents | Unknown | MONTGOMERY, JAMES A | | | $0.00 | 0 | 0 |
Payout Agreement
| No payout information available.. |