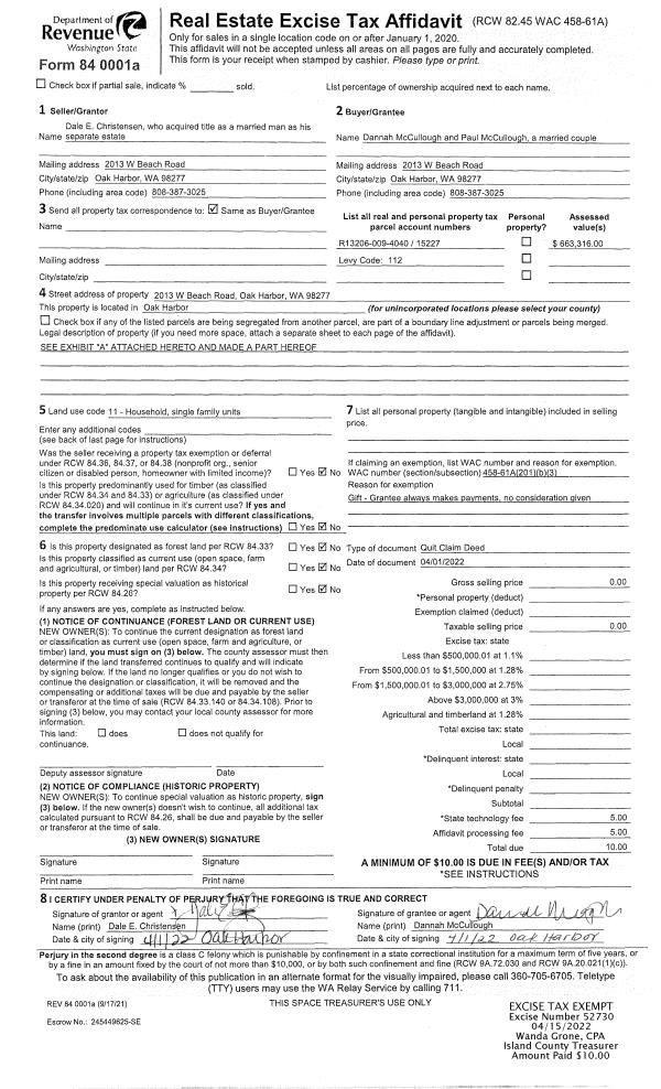
Property
Account |
| Property ID: | 15227 | Abbreviated Legal Description: | 6 - PT GL4 LY W OF W BEACH RD EX N1147.26' SUB EZ (LOT 74 SP 75-21 AF#309022) |
| Geographic ID: | R13206-009-4040 | Agent Code: | |
| Type: | Real | | |
| Tax Area: | 112 - APPRAISER-OH Schl Dist, outside OH, improved, greater than 1 acre | Land Use Code | 11 |
| Open Space: | N | DFL | N |
| Historic Property: | N | Remodel Property: | N |
| Multi-Family Redevelopment: | N | | |
| Township: | 32 | Section: | 06 |
| Range: | R1 |
Location |
| Address: | 2013 WEST BEACH RD OAK HARBOR, WA 98277 | Mapsco: | |
| Neighborhood: | Cycle 1 | Map ID: | 102 |
| Neighborhood CD: | 1 |
Owner |
| Name: | MCCULLOUGH, DANNAH | Owner ID: | 303819 |
| Mailing Address: | PAUL MCCULLOUGH 2013 WEST BEACH ROAD OAK HARBOR, WA 98277 | % Ownership: | 100.0000000000% |
| | | Exemptions: | |
Taxes and Assessment Details
Values
| (+) Improvement Homesite Value: | + | $0 | |
| (+) Improvement Non-Homesite Value: | + | $397,923 | |
| (+) Land Homesite Value: | + | $0 | |
| (+) Land Non-Homesite Value: | + | $500,000 | |
| (+) Curr Use (HS): | + | $0 | $0 |
| (+) Curr Use (NHS): | + | $0 | $0 |
| | | -------------------------- | |
| (=) Market Value: | = | $897,923 | |
| (–) Productivity Loss: | – | $0 | |
| | | -------------------------- | |
| (=) Subtotal: | = | $897,923 | |
| (+) Senior Appraised Value: | + | $0 | |
| (+) Non-Senior Appraised Value: | + | $897,923 | |
| | | -------------------------- | |
| (=) Total Appraised Value: | = | $897,923 | |
| (–) Senior Exemption Loss: | – | $0 | |
| (–) Exemption Loss: | – | $0 | |
| | | -------------------------- | |
| (=) Taxable Value: | = | $897,923 | |
Taxing Jurisdiction
| Owner: | MCCULLOUGH, DANNAH | | |
| % Ownership: | 100.0000000000% | | |
| Total Value: | $897,923 | | |
| Tax Area: | 112 - APPRAISER-OH Schl Dist, outside OH, improved, greater than 1 acre |
| CF | Conservation Futures | 0.0313996660 | $897,923 | $897,923 | $28.19 | | |
| CEM1 | Cemetery #1 | 0.0040018856 | $897,923 | $897,923 | $3.59 | | |
| FIRE2 | Fire & Rescue Dist #2 N Whidbey GEN | 0.5381486274 | $897,923 | $897,923 | $483.22 | | |
| HOBOND | Hospital BOND | 0.1893405597 | $897,923 | $897,923 | $170.01 | | |
| HOGEN | Hospital GEN | 0.3848777722 | $897,923 | $897,923 | $345.59 | | |
| CE | County Current Expense | 0.3674210519 | $897,923 | $897,923 | $329.92 | | |
| CR | County Roads | 0.4614296361 | $897,923 | $897,923 | $414.33 | | |
| ISLANDEMS | Hospital GEN (EMS) | 0.4952018576 | $897,923 | $897,923 | $444.65 | | |
| LIB | Library Sno-Isle GEN | 0.3039084203 | $897,923 | $897,923 | $272.89 | | |
| NWHIDPRMT | P & R N Whidbey GEN | 0.1990272349 | $897,923 | $897,923 | $178.71 | | |
| SCH201MO | School 201 Enrichment | 2.3851112745 | $897,923 | $897,923 | $2,141.65 | | |
| ST | State School | 1.4761226122 | $897,923 | $897,923 | $1,325.44 | | |
| ST2 | State School Part 2 | 0.7953803475 | $897,923 | $897,923 | $714.19 | | |
| | Total Tax Rate: | 7.6313709459 | | | | | |
| | | | | Taxes w/Current Exemptions: | $6,852.38 | | |
| | | | | Taxes w/o Exemptions: | $6,852.38 | | |
Improvement / Building
| Improvement #1: | RESIDENTIAL | State Code: | Y | 2014.0 sqft | Value: | $397,923 |
| Bathrooms: | 2.5 | Bedrooms: | 2 | | Ceiling: | DRYWALL PAINTED | Exterior Wall/Cover: | CEMENT FIBER | | Floor Covering: | CARPET/VINYL 80-20 | Floor Structure: | WOOD W/SUBFLOOR | | Foundation: | CONCRETE | Heating: | FHA GAS | | Interior Finish: | DRYWALL PAINT | Plumbing Fixture Cnt: | 11 | | Roof Slope: | 6" IN 12" | Roof Structure/Cover: | CJ CONCRETE TILE |
|
| | Type | Description | Class CD | Sub Class CD | Year Built | Area |
| | BAS | BASE/MAIN FLOOR | 4 | 0 | 1993 | 1444.0 |
| | BIG | BUILT IN GARAGE | 4 | 0 | 1993 | 855.3 |
| | OWP | OPEN WOOD PORCH W/STEPS | 4 | 0 | 1993 | 78.0 |
| | OWP | OPEN WOOD PORCH W/STEPS | 4 | 0 | 1993 | 189.0 |
| | DWN | DOWNSTAIRS LIVING AREA | 4 | 0 | 1993 | 570.0 |
Sketch
Property Image
Land
| 1 | HB | HIGH BLUFF | 1.8900 | 82328.40 | 186.00 | 0.00 | 1.00 | $500,000 | $0 |
Roll Value History
| 2026 | N/A | N/A | N/A | N/A | N/A |
| 2025 | $397,923 | $500,000 | $0 | $897,923 | $897,923 |
| 2024 | $402,704 | $450,000 | $0 | $852,704 | $852,704 |
| 2023 | $388,365 | $450,000 | $0 | $838,365 | $838,365 |
| 2022 | $355,997 | $450,000 | $0 | $805,997 | $805,997 |
| 2021 | $313,316 | $350,000 | $0 | $663,316 | $663,316 |
| 2020 | $311,484 | $350,000 | $0 | $661,484 | $661,484 |
| 2019 | $233,774 | $400,000 | $0 | $633,774 | $633,774 |
| 2018 | $234,460 | $350,000 | $0 | $584,460 | $212,018 |
| 2017 | $180,044 | $350,000 | $0 | $530,044 | $212,018 |
| 2016 | $182,383 | $350,000 | $0 | $532,383 | $532,383 |
| 2015 | $184,721 | $350,000 | $0 | $534,721 | $534,721 |
| 2014 | $187,060 | $350,000 | $0 | $537,060 | $537,060 |
| 2013 | $189,398 | $244,490 | $0 | $433,888 | $433,888 |
| 2012 | $191,736 | $244,490 | $0 | $436,226 | $436,226 |
| 2011 | $195,246 | $244,490 | $0 | $439,736 | $439,736 |
| 2010 | $206,697 | $244,490 | $0 | $451,187 | $451,187 |
| 2009 | $215,859 | $346,532 | $0 | $562,391 | $562,391 |
| 2008 | $218,851 | $346,532 | $0 | $565,383 | $565,383 |
| 2007 | $221,886 | $346,532 | $0 | $568,418 | $568,418 |
Deed and Sales History
| 1 | 04/01/2022 | QCD | Quit Claim Deed | CHRISTENSEN, DALE E | MCCULLOUGH, DANNAH | | | $0.00 | 52730 | 4543461 |
| 2 | 04/21/2020 | QCD | Quit Claim Deed | CHRISTENSEN, TERESA | CHRISTENSEN, DALE E | | | $0.00 | 42825 | 4485339 |
| 3 | 04/21/2020 | QCD | Quit Claim Deed | MCCULLOUGH, DANNAH B | CHRISTENSEN, DALE E | | | $0.00 | 42824 | 4485340 |
| 4 | 04/21/2020 | WD | Warranty Deed | BARTANEN, JOHN E | CHRISTENSEN, DALE E | | | $555,000.00 | 42823 | 4485338 |
| 5 | 04/08/1999 | WD | Warranty Deed | OSTYN, MICHAEL V | BARTANEN, JOHN E | | | $220,000.00 | 91409 | 99009230 |
| 6 | 12/01/1992 | WD | Warranty Deed | FALK, JAMES P | OSTYN, MICHAEL V | | | $35,000.00 | 30022 | 93000103 |
| 7 | 03/01/1987 | QCD | Quit Claim Deed | FALK, JAMES P | FALK, JAMES P | | | $0.00 | 70670 | 87003651 |
| 8 | 07/01/1978 | OTHER | Other - Misc. Documents | Unknown | FALK, JAMES P | | | $35,000.00 | 83822 | 337749 |
Payout Agreement
| No payout information available.. |