Property
Account |
| Property ID: | 152854 | Abbreviated Legal Description: | 33 - BG ELN SW NW & GL4 INTER NLN CO RD N ALG SD ELN TP ELN GL4 INTER BLUFF NWLY 50' ALG TOP OF BLUFF SWLY IN STRAIGHT LN TP NLN SD RD 150' NWLY ALG SD NLN FR TPB SELY ALG SD NLN TPB EX: BG PT ELN GL4 INTER BLUFF S ALG ELN GL4 180' FR TPB W INTER LN RUN N |
| Geographic ID: | R33033-373-1300 | Agent Code: | |
| Type: | Real | | |
| Tax Area: | 710 - APPRAISER-S Whid Schl Dist, outside Langley, improved & 1 acre or less | Land Use Code | 11 |
| Open Space: | N | DFL | N |
| Historic Property: | N | Remodel Property: | N |
| Multi-Family Redevelopment: | N | | |
| Township: | 30 | Section: | 33 |
| Range: | R3 |
Location |
| Address: | 4745 SARATOGA RD LANGLEY, WA 98260 | Mapsco: | |
| Neighborhood: | Cycle 4 | Map ID: | 911 |
| Neighborhood CD: | 4 |
Owner |
| Name: | WORKMAN, KURT NEIL | Owner ID: | 318999 |
| Mailing Address: | AMANDA JOAN WORKMAN 4745 SARATOGA ROAD LANGLEY, WA 98260 | % Ownership: | 100.0000000000% |
| | | Exemptions: | |
Taxes and Assessment Details
Values
| (+) Improvement Homesite Value: | + | N/A | |
| (+) Improvement Non-Homesite Value: | + | N/A | |
| (+) Land Homesite Value: | + | N/A | |
| (+) Land Non-Homesite Value: | + | N/A | Ag / Timber Use Value |
| (+) Curr Use (HS): | + | N/A | N/A |
| (+) Curr Use (NHS): | + | N/A | N/A |
| | | -------------------------- | |
| (=) Market Value: | = | N/A | |
| (–) Productivity Loss: | – | N/A | |
| | | -------------------------- | |
| (=) Subtotal: | = | N/A | |
| (+) Senior Appraised Value: | + | N/A | |
| (+) Non-Senior Appraised Value: | + | N/A | |
| | | -------------------------- | |
| (=) Total Appraised Value: | = | N/A | |
| (–) Senior Exemption Loss: | – | N/A | |
| (–) Exemption Loss: | – | N/A | |
| | | -------------------------- | |
| (=) Taxable Value: | = | N/A | |
Taxing Jurisdiction
| Owner: | WORKMAN, KURT NEIL | | |
| % Ownership: | 100.0000000000% | | |
| Total Value: | N/A | | |
| Tax Area: | 710 - APPRAISER-S Whid Schl Dist, outside Langley, improved & 1 acre or less |
| CF | Conservation Futures | N/A | N/A | N/A | N/A | | |
| WCD | Whidbey Conservation District | N/A | N/A | N/A | N/A | | |
| FIRE3 | Fire & Rescue Dist #3 S Whidbey GEN | N/A | N/A | N/A | N/A | | |
| HOBOND | Hospital BOND | N/A | N/A | N/A | N/A | | |
| HOGEN | Hospital GEN | N/A | N/A | N/A | N/A | | |
| CE | County Current Expense | N/A | N/A | N/A | N/A | | |
| CR | County Roads | N/A | N/A | N/A | N/A | | |
| ISLANDEMS | Hospital GEN (EMS) | N/A | N/A | N/A | N/A | | |
| LIB | Library Sno-Isle GEN | N/A | N/A | N/A | N/A | | |
| PORTWHID | Port of S Whidbey GEN | N/A | N/A | N/A | N/A | | |
| SCH206CAP | School 206 CP | N/A | N/A | N/A | N/A | | |
| SCH206MO | School 206 Enrichment | N/A | N/A | N/A | N/A | | |
| ST | State School | N/A | N/A | N/A | N/A | | |
| ST2 | State School Part 2 | N/A | N/A | N/A | N/A | | |
| SWHIDPRBD | P & R S Whidbey BOND | N/A | N/A | N/A | N/A | | |
| SWHIDPRBD2 | P & R S Whidbey BOND2 | N/A | N/A | N/A | N/A | | |
| SWHIDPRMT | P & R S Whidbey GEN | N/A | N/A | N/A | N/A | | |
| | Total Tax Rate: | N/A | | | | | |
| | | | | Taxes w/Current Exemptions: | N/A | | |
| | | | | Taxes w/o Exemptions: | N/A | | |
Improvement / Building
| Improvement #1: | RESIDENTIAL | State Code: | Y | 1008.0 sqft | Value: | N/A |
| Bathrooms: | 1 | Bedrooms: | 2 | | Ceiling: | DRYWALL PAINTED | Exterior Wall/Cover: | VINYL | | Floor Covering: | CARPET/VINYL 20-80 | Floor Structure: | WOOD W/SUBFLOOR | | Foundation: | WOOD BLOCKS | Heating: | FHA GAS | | Interior Finish: | DRYWALL PAINT | Plumbing Fixture Cnt: | 6 | | Roof Slope: | 6" IN 12" | Roof Structure/Cover: | STEEL TERNE |
|
| | Type | Description | Class CD | Sub Class CD | Year Built | Area |
| | BAS | BASE/MAIN FLOOR | 3 | 0 | 1961 | 1008.0 |
| | OP1 | OPEN PORCH SLAB | 3 | 0 | 1961 | 100.0 |
| | OWP | OPEN WOOD PORCH W/STEPS | 3 | 0 | 1961 | 640.0 |
| | UTY | STORAGE/UTILITY | 3 | 0 | 1961 | 192.0 |
Sketch
Property Image
Land
| 1 | HB | HIGH BLUFF | 0.0000 | 0.00 | 67.00 | 0.00 | 1.00 | N/A | N/A |
Roll Value History
| 2026 | N/A | N/A | N/A | N/A | N/A |
| 2025 | $160,102 | $550,000 | $0 | $710,102 | $710,102 |
| 2024 | $162,483 | $550,000 | $0 | $712,483 | $712,483 |
| 2023 | $164,862 | $550,000 | $0 | $714,862 | $714,862 |
| 2022 | $151,443 | $550,000 | $0 | $701,443 | $701,443 |
| 2021 | $133,568 | $320,000 | $0 | $453,568 | $453,568 |
| 2020 | $116,027 | $260,000 | $0 | $376,027 | $376,027 |
| 2019 | $83,069 | $290,000 | $0 | $373,069 | $373,069 |
| 2018 | $83,388 | $200,000 | $0 | $283,388 | $283,388 |
| 2017 | $84,025 | $200,000 | $0 | $284,025 | $284,025 |
| 2016 | $85,298 | $200,000 | $0 | $285,298 | $285,298 |
| 2015 | $86,570 | $200,000 | $0 | $286,570 | $286,570 |
| 2014 | $0 | $95,000 | $0 | $95,000 | $95,000 |
| 2013 | $0 | $75,000 | $0 | $75,000 | $75,000 |
| 2012 | $0 | $81,000 | $0 | $81,000 | $81,000 |
| 2011 | $0 | $81,000 | $0 | $81,000 | $81,000 |
| 2010 | $0 | $81,000 | $0 | $81,000 | $81,000 |
| 2009 | $0 | $120,000 | $0 | $120,000 | $120,000 |
| 2008 | $0 | $186,813 | $0 | $186,813 | $186,813 |
| 2007 | $0 | $186,813 | $0 | $186,813 | $186,813 |
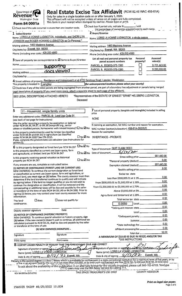
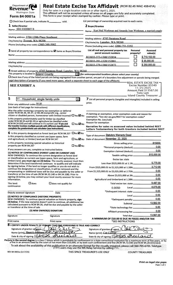
Deed and Sales History
| 1 | 11/22/2025 | WD | Warranty Deed | LUDINGTON, LORIS LA VONNE | WORKMAN, KURT NEIL | | | $815,000.00 | 65549 | 4593881 |
|   | |
| 2 | 08/12/2022 | QCD | Quit Claim Deed | LUDINGTON, ERNEST H | LUDINGTON, LORIS LA VONNE | | | $951,443.00 | 54289 | 4550192 |
|   | |
| 3 | 10/01/1992 | QCD | Quit Claim Deed | COOPER, VERA | LUDINGTON, ERNEST H | | | $0.00 | 24025 | 92019528 |
| 4 | 01/01/1900 | OTHER | Other - Misc. Documents | Unknown | COOPER, VERA | | | $0.00 | 0 | 0 |
Payout Agreement
| No payout information available.. |