Property
Account |
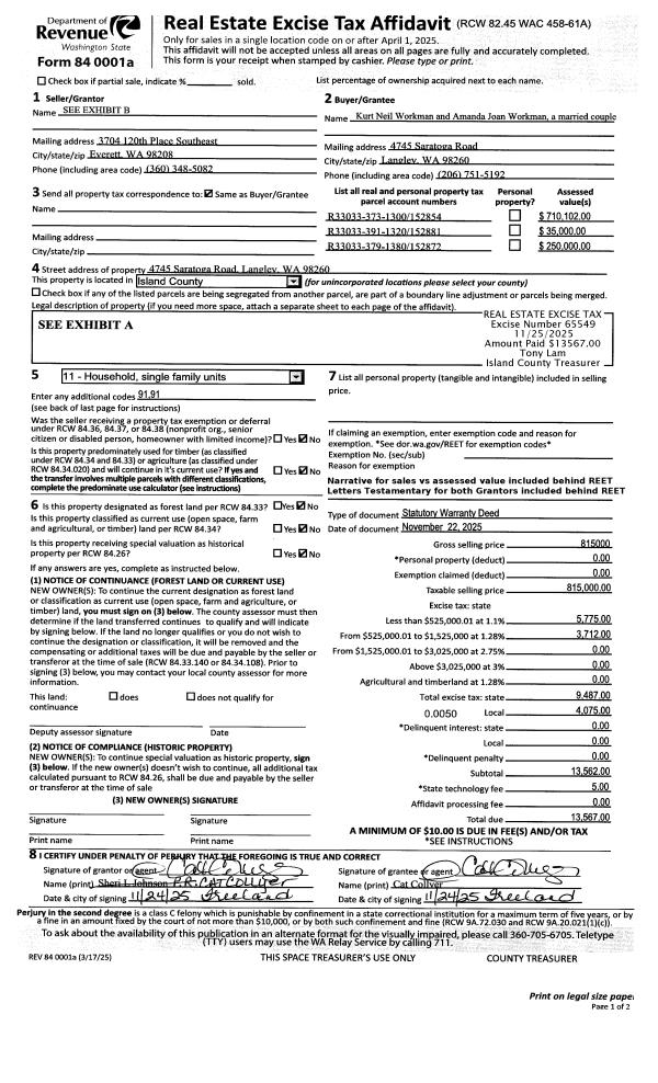
| Property ID: | 152881 | Abbreviated Legal Description: | 48 - IN GL4 AS DESC 116D355 BG @ PT LN OF GL4 & BLUFF SARATOGA PASSAGE S180' FR TPB W/INTER LN NELY 50' NWLY ALG BLUFF FR TPB INTER RD 150' NW FR ELN OF SW NW 33-30-3 NELY ALG LN TO ORIGN PT SELY 50' ALG BLUFF TPB SUB EZ AF#416105 |
| Geographic ID: | R33033-391-1320 | Agent Code: | |
| Type: | Real | | |
| Tax Area: | 719 - APPRAISER-S Whid Schl Dist, outside Langley, vacant & 50 acres or less | Land Use Code | 91 |
| Open Space: | N | DFL | N |
| Historic Property: | N | Remodel Property: | N |
| Multi-Family Redevelopment: | N | | |
| Township: | 30 | Section: | 33 |
| Range: | R3 |
Location |
| Address: | | Mapsco: | |
| Neighborhood: | Cycle 4 | Map ID: | 911 |
| Neighborhood CD: | 4 |
Owner |
| Name: | LUDINGTON, ERNIE H | Owner ID: | 20119 |
| Mailing Address: | 1463 MADRONA AVE EVERETT, WA 98203-1727 | % Ownership: | 100.0000000000% |
| | | Exemptions: | |
Taxes and Assessment Details
Values
| (+) Improvement Homesite Value: | + | $0 | |
| (+) Improvement Non-Homesite Value: | + | $0 | |
| (+) Land Homesite Value: | + | $0 | |
| (+) Land Non-Homesite Value: | + | $35,000 | |
| (+) Curr Use (HS): | + | $0 | $0 |
| (+) Curr Use (NHS): | + | $0 | $0 |
| | | -------------------------- | |
| (=) Market Value: | = | $35,000 | |
| (–) Productivity Loss: | – | $0 | |
| | | -------------------------- | |
| (=) Subtotal: | = | $35,000 | |
| (+) Senior Appraised Value: | + | $0 | |
| (+) Non-Senior Appraised Value: | + | $35,000 | |
| | | -------------------------- | |
| (=) Total Appraised Value: | = | $35,000 | |
| (–) Senior Exemption Loss: | – | $0 | |
| (–) Exemption Loss: | – | $0 | |
| | | -------------------------- | |
| (=) Taxable Value: | = | $35,000 | |
Taxing Jurisdiction
| Owner: | LUDINGTON, ERNIE H | | |
| % Ownership: | 100.0000000000% | | |
| Total Value: | $35,000 | | |
| Tax Area: | 719 - APPRAISER-S Whid Schl Dist, outside Langley, vacant & 50 acres or less |
| CF | Conservation Futures | 0.0313996660 | $35,000 | $35,000 | $1.10 | | |
| HOBOND | Hospital BOND | 0.1893405597 | $35,000 | $35,000 | $6.63 | | |
| HOGEN | Hospital GEN | 0.3848777722 | $35,000 | $35,000 | $13.47 | | |
| CE | County Current Expense | 0.3674210519 | $35,000 | $35,000 | $12.86 | | |
| CR | County Roads | 0.4614296361 | $35,000 | $35,000 | $16.15 | | |
| ISLANDEMS | Hospital GEN (EMS) | 0.4952018576 | $35,000 | $35,000 | $17.33 | | |
| LIB | Library Sno-Isle GEN | 0.3039084203 | $35,000 | $35,000 | $10.64 | | |
| PORTWHID | Port of S Whidbey GEN | 0.1086004714 | $35,000 | $35,000 | $3.80 | | |
| SCH206BOND | School 206 BOND | 0.5960237832 | $35,000 | $35,000 | $20.86 | | |
| SCH206CAP | School 206 CP | 0.3066144020 | $35,000 | $35,000 | $10.73 | | |
| SCH206MO | School 206 Enrichment | 0.4808755445 | $35,000 | $35,000 | $16.83 | | |
| ST | State School | 1.4761226122 | $35,000 | $35,000 | $51.66 | | |
| ST2 | State School Part 2 | 0.7953803475 | $35,000 | $35,000 | $27.84 | | |
| SWHIDPRBD | P & R S Whidbey BOND | 0.0144185398 | $35,000 | $35,000 | $0.50 | | |
| SWHIDPRBD3 | P & R S Whidbey BOND3 | 0.1483535547 | $35,000 | $35,000 | $5.19 | | |
| SWHIDPRMT | P & R S Whidbey GEN | 0.4600000000 | $35,000 | $35,000 | $16.10 | | |
| | Total Tax Rate: | 6.6199682191 | | | | | |
| | | | | Taxes w/Current Exemptions: | $231.69 | | |
| | | | | Taxes w/o Exemptions: | $231.69 | | |
Improvement / Building
Sketch
| No sketches available for this property. |
Property Image
Land
| 1 | HB | HIGH BLUFF | 0.0000 | 0.00 | 60.00 | 0.00 | 1.00 | $35,000 | $0 |
Roll Value History
| 2026 | N/A | N/A | N/A | N/A | N/A |
| 2025 | $0 | $35,000 | $0 | $35,000 | $35,000 |
| 2024 | $0 | $35,000 | $0 | $35,000 | $35,000 |
| 2023 | $0 | $35,000 | $0 | $35,000 | $35,000 |
| 2022 | $0 | $35,000 | $0 | $35,000 | $35,000 |
| 2021 | $0 | $35,000 | $0 | $35,000 | $35,000 |
| 2020 | $0 | $100,000 | $0 | $100,000 | $100,000 |
| 2019 | $0 | $100,000 | $0 | $100,000 | $100,000 |
| 2018 | $0 | $100,000 | $0 | $100,000 | $100,000 |
| 2017 | $0 | $100,000 | $0 | $100,000 | $100,000 |
| 2016 | $0 | $100,000 | $0 | $100,000 | $100,000 |
| 2015 | $0 | $100,000 | $0 | $100,000 | $100,000 |
| 2014 | $83,042 | $250,000 | $0 | $333,042 | $333,042 |
| 2013 | $84,264 | $205,816 | $0 | $290,080 | $290,080 |
| 2012 | $85,485 | $205,816 | $0 | $291,301 | $291,301 |
| 2011 | $86,706 | $205,816 | $0 | $292,522 | $292,522 |
| 2010 | $93,318 | $205,816 | $0 | $299,134 | $299,134 |
| 2009 | $97,600 | $294,046 | $0 | $391,646 | $391,646 |
| 2008 | $100,229 | $294,046 | $0 | $394,275 | $394,275 |
| 2007 | $101,876 | $211,808 | $0 | $313,684 | $313,684 |
Deed and Sales History
| 1 | 11/22/2025 | WD | Warranty Deed | LUDINGTON, ERNIE H | WORKMAN, KURT NEIL | | | $815,000.00 | 65549 | 4593881 |
|   | |
| 2 | 09/01/1961 | TRUSTEED | Trustee's Deed | Unknown | LUDINGTON, ERNIE H | | | $0.00 | 10529 | 0 |
Payout Agreement
| No payout information available.. |