Property
Account |
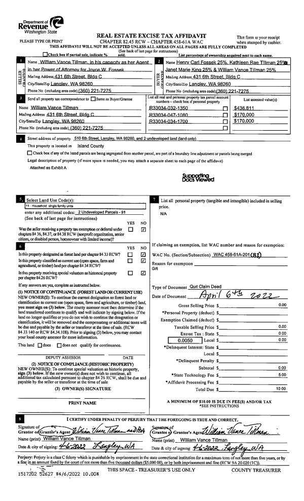
| Property ID: | 153265 | Abbreviated Legal Description: | 7 - BG 1467' W SE CR PLAT OF LANG W TO E LN SW SW S TP 16 1/2' N SEC LN E363.7' N TPB |
| Geographic ID: | R33034-032-1350 | Agent Code: | |
| Type: | Real | | |
| Tax Area: | 700 - APPRAISER-S Whid Schl Dist, in town of Langley | Land Use Code | 83 |
| Open Space: | Y | DFL | N |
| Historic Property: | N | Remodel Property: | N |
| Multi-Family Redevelopment: | N | | |
| Township: | 30 | Section: | 34 |
| Range: | R3 |
Location |
| Address: | 510 6TH ST LANGLEY, WA 98260 | Mapsco: | |
| Neighborhood: | City of Langley | Map ID: | 912 |
| Neighborhood CD: | 04-L |
Owner |
| Name: | FOSSEK ET AL, HENRY CARL | Owner ID: | 304551 |
| Mailing Address: | 431 6TH ST, BLDG C LANGLEY, WA 98260 | % Ownership: | 100.0000000000% |
| | | Exemptions: | |
Taxes and Assessment Details
Values
| (+) Improvement Homesite Value: | + | $0 | |
| (+) Improvement Non-Homesite Value: | + | $162,254 | |
| (+) Land Homesite Value: | + | $0 | |
| (+) Land Non-Homesite Value: | + | $360,450 | |
| (+) Curr Use (HS): | + | $0 | $0 |
| (+) Curr Use (NHS): | + | $59,550 | $2,768 |
| | | -------------------------- | |
| (=) Market Value: | = | $582,254 | |
| (–) Productivity Loss: | – | $56,782 | |
| | | -------------------------- | |
| (=) Subtotal: | = | $525,472 | |
| (+) Senior Appraised Value: | + | $0 | |
| (+) Non-Senior Appraised Value: | + | $525,472 | |
| | | -------------------------- | |
| (=) Total Appraised Value: | = | $525,472 | |
| (–) Senior Exemption Loss: | – | $0 | |
| (–) Exemption Loss: | – | $0 | |
| | | -------------------------- | |
| (=) Taxable Value: | = | $525,472 | |
Taxing Jurisdiction
| Owner: | FOSSEK ET AL, HENRY CARL | | |
| % Ownership: | 100.0000000000% | | |
| Total Value: | $582,254 | | |
| Tax Area: | 700 - APPRAISER-S Whid Schl Dist, in town of Langley |
| CF | Conservation Futures | 0.0313996660 | $525,472 | $525,472 | $16.50 | | |
| LANG | City of Langley | 1.0106798199 | $525,472 | $525,472 | $531.08 | | |
| LANGBOND | City of Langley BOND | 0.0000000000 | $525,472 | $525,472 | $0.00 | | |
| FIRE3 | Fire & Rescue Dist #3 S Whidbey GEN | 1.2130821753 | $525,472 | $525,472 | $637.44 | | |
| HOBOND | Hospital BOND | 0.1893405597 | $525,472 | $525,472 | $99.49 | | |
| HOGEN | Hospital GEN | 0.3848777722 | $525,472 | $525,472 | $202.24 | | |
| CE | County Current Expense | 0.3674210519 | $525,472 | $525,472 | $193.07 | | |
| ISLANDEMS | Hospital GEN (EMS) | 0.4952018576 | $525,472 | $525,472 | $260.21 | | |
| LIB | Library Sno-Isle GEN | 0.3039084203 | $525,472 | $525,472 | $159.70 | | |
| PORTWHID | Port of S Whidbey GEN | 0.1086004714 | $525,472 | $525,472 | $57.07 | | |
| SCH206BOND | School 206 BOND | 0.5960237832 | $525,472 | $525,472 | $313.19 | | |
| SCH206CAP | School 206 CP | 0.3066144020 | $525,472 | $525,472 | $161.12 | | |
| SCH206MO | School 206 Enrichment | 0.4808755445 | $525,472 | $525,472 | $252.69 | | |
| ST | State School | 1.4761226122 | $525,472 | $525,472 | $775.66 | | |
| ST2 | State School Part 2 | 0.7953803475 | $525,472 | $525,472 | $417.95 | | |
| SWHIDPRBD | P & R S Whidbey BOND | 0.0144185398 | $525,472 | $525,472 | $7.58 | | |
| SWHIDPRBD3 | P & R S Whidbey BOND3 | 0.1483535547 | $525,472 | $525,472 | $77.96 | | |
| SWHIDPRMT | P & R S Whidbey GEN | 0.4600000000 | $525,472 | $525,472 | $241.72 | | |
| | Total Tax Rate: | 8.3823005782 | | | | | |
| | | | | Taxes w/Current Exemptions: | $4,404.67 | | |
| | | | | Taxes w/o Exemptions: | $4,404.67 | | |
Improvement / Building
| Improvement #1: | RESIDENTIAL | State Code: | Y | 884.0 sqft | Value: | $162,254 |
| Bathrooms: | 1 | Bedrooms: | 2 | | Ceiling: | DRYWALL PAINTED | Exterior Wall/Cover: | VINYL | | Floor Covering: | CARPET/VINYL 80-20 | Floor Structure: | WOOD W/SUBFLOOR | | Foundation: | CONCRETE | Heating: | FHA GAS | | Interior Finish: | DRYWALL PAINT | Plumbing Fixture Cnt: | 6 | | Roof Slope: | 6" IN 12" | Roof Structure/Cover: | ALUM LIGHT |
|
| | Type | Description | Class CD | Sub Class CD | Year Built | Area |
| | BAS | BASE/MAIN FLOOR | 2 | 0 | 1932 | 884.0 |
| | UB6 | BASEMENT UNFINISHED 6" | 2 | 0 | 1932 | 392.0 |
| | ATU | ATTIC UNFINISHED | 2 | 0 | 1932 | 680.0 |
| | OWP | OPEN WOOD PORCH W/STEPS | 2 | 0 | 1932 | 114.0 |
| | ENP | ENCLOSED PORCH | 2 | 0 | 1932 | 240.0 |
| | UTY | STORAGE/UTILITY | 2 | 0 | 1932 | 0.0 |
| | UTY | STORAGE/UTILITY | 2 | 0 | 1932 | 0.0 |
Sketch
Property Image
Land
| 1 | HS | HOMESITE | 1.0000 | 43560.00 | 0.00 | 0.00 | 1.00 | $360,000 | $0 |
| 2 | 83 | OPEN AGRICULTURE | 4.4931 | 195719.44 | 0.00 | 0.00 | 1.00 | $59,550 | $2,768 |
| 3 | 58 | UTILITIES | 0.0069 | 300.00 | 0.00 | 0.00 | 1.00 | $450 | $0 |
Roll Value History
| 2026 | N/A | N/A | N/A | N/A | N/A |
| 2025 | $162,254 | $420,000 | $2,768 | $525,472 | $525,472 |
| 2024 | $164,453 | $420,000 | $0 | $584,453 | $584,453 |
| 2023 | $166,651 | $420,000 | $0 | $586,651 | $586,651 |
| 2022 | $153,841 | $360,000 | $0 | $513,841 | $513,841 |
| 2021 | $136,811 | $300,000 | $0 | $436,811 | $436,811 |
| 2020 | $126,470 | $300,000 | $0 | $426,470 | $426,470 |
| 2019 | $94,085 | $300,000 | $0 | $394,085 | $394,085 |
| 2018 | $94,381 | $210,000 | $0 | $304,381 | $304,381 |
| 2017 | $67,399 | $210,000 | $0 | $277,399 | $277,399 |
| 2016 | $68,538 | $150,000 | $0 | $218,538 | $218,538 |
| 2015 | $69,677 | $150,000 | $0 | $219,677 | $219,677 |
| 2014 | $68,309 | $148,500 | $0 | $216,809 | $216,809 |
| 2013 | $69,495 | $148,500 | $0 | $217,995 | $217,995 |
| 2012 | $70,683 | $148,500 | $0 | $219,183 | $219,183 |
| 2011 | $71,869 | $148,500 | $0 | $220,369 | $220,369 |
| 2010 | $81,199 | $148,500 | $0 | $229,699 | $229,699 |
| 2009 | $84,117 | $242,000 | $0 | $326,117 | $326,117 |
| 2008 | $80,123 | $275,880 | $0 | $356,003 | $356,003 |
| 2007 | $81,262 | $275,880 | $0 | $357,142 | $357,142 |
Deed and Sales History
| 1 | 09/26/2025 | WD | Warranty Deed | FOSSEK ET AL, HENRY CARL | FOSSEK HOMESTEAD, LLC | | | $0.00 | 65097 | 4591970 |
| 2 | 04/06/2022 | QCD | Quit Claim Deed | FOSSEK, JOYCE | FOSSEK ET AL, HENRY CARL | | | $0.00 | 52627 | 4542930 |
| 3 | 03/27/2013 | PRD | Personal Representatives Deed | FOSSEK, RAY | FOSSEK, JOYCE | | | $0.00 | 10869 | 4336681 |
| 4 | 07/08/1999 | EZ | Easement | FOSSEK, RAY | FOSSEK, RAY | | | $500.00 | 92707 | 99146079 |
| 5 | 01/01/1900 | OTHER | Other - Misc. Documents | Unknown | FOSSEK, RAY | | | $0.00 | 0 | 0 |
Payout Agreement
| No payout information available.. |