Property
Account |
| Property ID: | 153498 | Abbreviated Legal Description: | 0.2400 Acres ins Section 34s Township 30s Range R3s LOT A L-BLA AF#4444280;s |
| Geographic ID: | R33034-061-3510 | Agent Code: | |
| Type: | Real | | |
| Tax Area: | 700 - APPRAISER-S Whid Schl Dist, in town of Langley | Land Use Code | 12 |
| Open Space: | N | DFL | N |
| Historic Property: | N | Remodel Property: | N |
| Multi-Family Redevelopment: | N | | |
| Township: | 30 | Section: | 34 |
| Range: | R3 |
Location |
| Address: | 121 4TH ST LANGLEY, WA 98260 | Mapsco: | |
| Neighborhood: | 42cLG-south | Map ID: | 913 |
| Neighborhood CD: | 42cLGsouth |
Owner |
| Name: | DUROCHER, LARRY R | Owner ID: | 252242 |
| Mailing Address: | 303 EDMONDS ST #302 EDMONDS, WA 98020 | % Ownership: | 100.0000000000% |
| | | Exemptions: | |
Taxes and Assessment Details
Values
| (+) Improvement Homesite Value: | + | $0 | |
| (+) Improvement Non-Homesite Value: | + | $392,951 | |
| (+) Land Homesite Value: | + | $0 | |
| (+) Land Non-Homesite Value: | + | $340,000 | |
| (+) Curr Use (HS): | + | $0 | $0 |
| (+) Curr Use (NHS): | + | $0 | $0 |
| | | -------------------------- | |
| (=) Market Value: | = | $732,951 | |
| (–) Productivity Loss: | – | $0 | |
| | | -------------------------- | |
| (=) Subtotal: | = | $732,951 | |
| (+) Senior Appraised Value: | + | $0 | |
| (+) Non-Senior Appraised Value: | + | $732,951 | |
| | | -------------------------- | |
| (=) Total Appraised Value: | = | $732,951 | |
| (–) Senior Exemption Loss: | – | $0 | |
| (–) Exemption Loss: | – | $0 | |
| | | -------------------------- | |
| (=) Taxable Value: | = | $732,951 | |
Taxing Jurisdiction
| Owner: | DUROCHER, LARRY R | | |
| % Ownership: | 100.0000000000% | | |
| Total Value: | $732,951 | | |
| Tax Area: | 700 - APPRAISER-S Whid Schl Dist, in town of Langley |
| CF | Conservation Futures | 0.0313996660 | $732,951 | $732,951 | $23.01 | | |
| LANG | City of Langley | 1.0106798199 | $732,951 | $732,951 | $740.78 | | |
| LANGBOND | City of Langley BOND | 0.0000000000 | $732,951 | $732,951 | $0.00 | | |
| FIRE3 | Fire & Rescue Dist #3 S Whidbey GEN | 1.2130821753 | $732,951 | $732,951 | $889.13 | | |
| HOBOND | Hospital BOND | 0.1893405597 | $732,951 | $732,951 | $138.78 | | |
| HOGEN | Hospital GEN | 0.3848777722 | $732,951 | $732,951 | $282.10 | | |
| CE | County Current Expense | 0.3674210519 | $732,951 | $732,951 | $269.30 | | |
| ISLANDEMS | Hospital GEN (EMS) | 0.4952018576 | $732,951 | $732,951 | $362.96 | | |
| LIB | Library Sno-Isle GEN | 0.3039084203 | $732,951 | $732,951 | $222.75 | | |
| PORTWHID | Port of S Whidbey GEN | 0.1086004714 | $732,951 | $732,951 | $79.60 | | |
| SCH206BOND | School 206 BOND | 0.5960237832 | $732,951 | $732,951 | $436.86 | | |
| SCH206CAP | School 206 CP | 0.3066144020 | $732,951 | $732,951 | $224.73 | | |
| SCH206MO | School 206 Enrichment | 0.4808755445 | $732,951 | $732,951 | $352.46 | | |
| ST | State School | 1.4761226122 | $732,951 | $732,951 | $1,081.93 | | |
| ST2 | State School Part 2 | 0.7953803475 | $732,951 | $732,951 | $582.97 | | |
| SWHIDPRBD | P & R S Whidbey BOND | 0.0144185398 | $732,951 | $732,951 | $10.57 | | |
| SWHIDPRBD3 | P & R S Whidbey BOND3 | 0.1483535547 | $732,951 | $732,951 | $108.74 | | |
| SWHIDPRMT | P & R S Whidbey GEN | 0.4600000000 | $732,951 | $732,951 | $337.16 | | |
| | Total Tax Rate: | 8.3823005782 | | | | | |
| | | | | Taxes w/Current Exemptions: | $6,143.83 | | |
| | | | | Taxes w/o Exemptions: | $6,143.83 | | |
Improvement / Building
| Improvement #1: | RESIDENTIAL/COMMERCIAL | State Code: | A1 | 2128.0 sqft | Value: | $392,951 |
| Bathrooms: | 3 | Bedrooms: | 3 | | Ceiling: | DRYWALL PAINTED | Exterior Wall/Cover: | SHINGLE | | Floor Covering: | CARPET/VINYL 80-20 | Floor Structure: | WOOD W/SUBFLOOR | | Foundation: | CONCRETE | Heating: | WALL HEAT ELECTRIC | | Interior Finish: | DRYWALL PAINT | Plumbing Fixture Cnt: | 15 | | Roof Slope: | 6" IN 12" | Roof Structure/Cover: | CJ ASPHALT |
|
| | Type | Description | Class CD | Sub Class CD | Year Built | Area |
| | BAS | BASE/MAIN FLOOR | 4 | 0 | 1988 | 1500.0 |
| | AGR | ATTACHED GARAGE | 4 | 0 | 1988 | 350.0 |
| | UPS | UPPER STORY | 4 | 0 | 1988 | 428.0 |
| | OWP | OPEN WOOD PORCH W/STEPS | 4 | 0 | 1988 | 395.0 |
| | OWP | OPEN WOOD PORCH W/STEPS | 4 | 0 | 1988 | 222.0 |
| | OWC | OPEN WOOD PORCH W/STEPS/ROOF/C | 4 | 0 | 1988 | 120.0 |
| | OWC | OPEN WOOD PORCH W/STEPS/ROOF/C | 4 | 0 | 1988 | 24.0 |
| | LOF | LOFT | 4 | 0 | 1988 | 200.0 |
| | OP3 | OPEN PORCH W/ROOF | 4 | 0 | 1988 | 24.0 |
| | UTY | STORAGE/UTILITY | 4 | 0 | 1988 | 60.0 |
Sketch
Property Image
Land
| 1 | 61 | MULTIPLE RESIDENCES | 0.2400 | 10454.40 | 0.00 | 0.00 | 1.00 | $340,000 | $0 |
Roll Value History
| 2026 | N/A | N/A | N/A | N/A | N/A |
| 2025 | $392,951 | $340,000 | $0 | $732,951 | $732,951 |
| 2024 | $397,908 | $340,000 | $0 | $737,908 | $737,908 |
| 2023 | $402,868 | $285,000 | $0 | $687,868 | $687,868 |
| 2022 | $369,282 | $285,000 | $0 | $654,282 | $654,282 |
| 2021 | $325,031 | $285,000 | $0 | $610,031 | $610,031 |
| 2020 | $315,891 | $285,000 | $0 | $600,891 | $600,891 |
| 2019 | $234,865 | $220,000 | $0 | $454,865 | $454,865 |
| 2018 | $169,872 | $220,000 | $0 | $389,872 | $389,872 |
| 2017 | $170,968 | $220,000 | $0 | $390,968 | $390,968 |
| 2016 | $173,159 | $220,000 | $0 | $393,159 | $393,159 |
| 2015 | $175,352 | $220,000 | $0 | $395,352 | $395,352 |
| 2014 | $178,709 | $199,080 | $0 | $377,789 | $377,789 |
| 2013 | $178,709 | $199,080 | $0 | $377,789 | $377,789 |
| 2012 | $178,709 | $199,080 | $0 | $377,789 | $377,789 |
| 2011 | $169,942 | $199,080 | $0 | $369,022 | $369,022 |
| 2010 | $175,791 | $199,080 | $0 | $374,871 | $374,871 |
| 2009 | $183,311 | $218,786 | $0 | $402,097 | $402,097 |
| 2008 | $184,405 | $218,786 | $0 | $403,191 | $403,191 |
| 2007 | $186,573 | $218,786 | $0 | $405,359 | $405,359 |
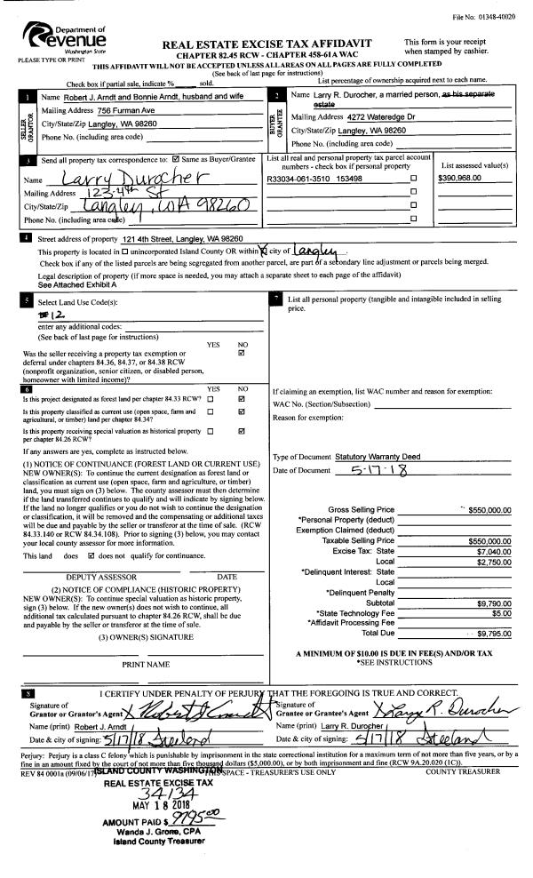
Deed and Sales History
| 1 | 09/08/2025 | WD | Warranty Deed | DUROCHER, LARRY R | STARMOR - LANGLEY LLC | | | $1,017,500.00 | 64787 | 4590821 |
| 2 | 05/17/2018 | WD | Warranty Deed | ARNDT, ROBERT J | DUROCHER, LARRY R | | | $550,000.00 | 34134 | 4444585 |
| 3 | 06/01/1986 | WD | Warranty Deed | GOODSON, LEANNE | ARNDT, ROBERT J | | | $13,500.00 | 61590 | 86007508 |
| 4 | 04/01/1978 | OTHER | Other - Misc. Documents | Unknown | GOODSON, LEANNE | | | $20,000.00 | 84644 | 3400580 |
Payout Agreement
| No payout information available.. |