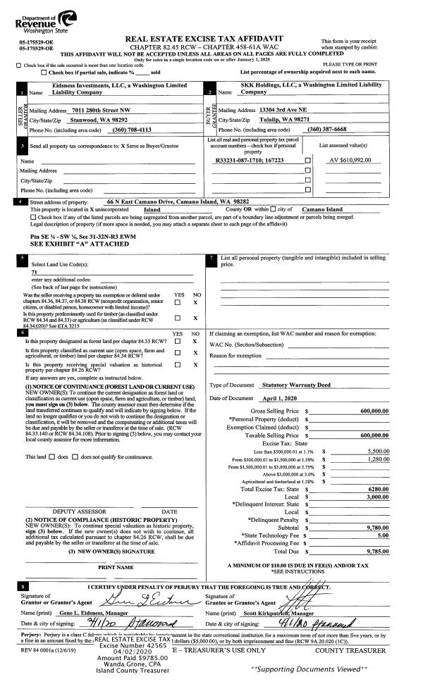
Property
Account |
| Property ID: | 154969 | Abbreviated Legal Description: | 10.5900 Acres ins Section 05s Township 31s Range R3s LOT B BLA 213-17 AF#4434722;s |
| Geographic ID: | R33105-494-0710 | Agent Code: | |
| Type: | Real | | |
| Tax Area: | 592 - APPRAISER-Stan/Cam Schl Dist, Special Dist, improved, greater than 1 acre | Land Use Code | 11 |
| Open Space: | N | DFL | N |
| Historic Property: | N | Remodel Property: | N |
| Multi-Family Redevelopment: | N | | |
| Township: | 31 | Section: | 05 |
| Range: | R3 |
Location |
| Address: | 12 S SUNRISE BLVD CAMANO ISLAND, WA 98282 | Mapsco: | |
| Neighborhood: | Cycle 5 | Map ID: | 916 |
| Neighborhood CD: | 5 |
Owner |
| Name: | MYERS, TOR ELDEN | Owner ID: | 314583 |
| Mailing Address: | LYNNE THOMAS 190 N LAKE GROVE RD CAMANO ISLAND, WA 98282 | % Ownership: | 100.0000000000% |
| | | Exemptions: | |
Taxes and Assessment Details
Values
| (+) Improvement Homesite Value: | + | N/A | |
| (+) Improvement Non-Homesite Value: | + | N/A | |
| (+) Land Homesite Value: | + | N/A | |
| (+) Land Non-Homesite Value: | + | N/A | Ag / Timber Use Value |
| (+) Curr Use (HS): | + | N/A | N/A |
| (+) Curr Use (NHS): | + | N/A | N/A |
| | | -------------------------- | |
| (=) Market Value: | = | N/A | |
| (–) Productivity Loss: | – | N/A | |
| | | -------------------------- | |
| (=) Subtotal: | = | N/A | |
| (+) Senior Appraised Value: | + | N/A | |
| (+) Non-Senior Appraised Value: | + | N/A | |
| | | -------------------------- | |
| (=) Total Appraised Value: | = | N/A | |
| (–) Senior Exemption Loss: | – | N/A | |
| (–) Exemption Loss: | – | N/A | |
| | | -------------------------- | |
| (=) Taxable Value: | = | N/A | |
Taxing Jurisdiction
| Owner: | MYERS, TOR ELDEN | | |
| % Ownership: | 100.0000000000% | | |
| Total Value: | N/A | | |
| Tax Area: | 592 - APPRAISER-Stan/Cam Schl Dist, Special Dist, improved, greater than 1 acre |
| CF | Conservation Futures | N/A | N/A | N/A | N/A | | |
| MC | Mosquito Control | N/A | N/A | N/A | N/A | | |
| CCD | Camano Conservation District | N/A | N/A | N/A | N/A | | |
| EMS1 | Fire & Rescue Dist #1 Camano GEN (EMS) | N/A | N/A | N/A | N/A | | |
| FIRE1 | Fire & Rescue Dist #1 Camano GEN | N/A | N/A | N/A | N/A | | |
| FIRE1BOND | Fire & Rescue Dist #1 Camano BOND | N/A | N/A | N/A | N/A | | |
| CE | County Current Expense | N/A | N/A | N/A | N/A | | |
| CR | County Roads | N/A | N/A | N/A | N/A | | |
| LCIB | Library Sno-Isle BOND (Camano Island) | N/A | N/A | N/A | N/A | | |
| LIB | Library Sno-Isle GEN | N/A | N/A | N/A | N/A | | |
| SCH205_401 | School 205-401 Enrichment | N/A | N/A | N/A | N/A | | |
| SCH205BOND | School 205-401 BOND | N/A | N/A | N/A | N/A | | |
| ST | State School | N/A | N/A | N/A | N/A | | |
| ST2 | State School Part 2 | N/A | N/A | N/A | N/A | | |
| | Total Tax Rate: | N/A | | | | | |
| | | | | Taxes w/Current Exemptions: | N/A | | |
| | | | | Taxes w/o Exemptions: | N/A | | |
Improvement / Building
| Improvement #1: | RESIDENTIAL | State Code: | Y | 2454.8 sqft | Value: | N/A |
| Bathrooms: | 2.75 | Bedrooms: | 3 | | Ceiling: | DRYWALL PAINTED | Exterior Wall/Cover: | PLY/HARDBOARD T-111 | | Floor Covering: | HARDWOOD/CARP 20-80 | Floor Structure: | WOOD W/SUBFLOOR | | Foundation: | CONCRETE | Heating: | WALL HEAT ELECTRIC | | Interior Finish: | DRYWALL PAINT | Plumbing Fixture Cnt: | 12 | | Roof Slope: | 6" IN 12" | Roof Structure/Cover: | CJ ASPHALT |
|
| | Type | Description | Class CD | Sub Class CD | Year Built | Area |
| | BAS | BASE/MAIN FLOOR | 3 | 0 | 1994 | 2454.8 |
| | OCP | OPEN CARPORT | 3 | 0 | 1994 | 700.0 |
| | UTY | STORAGE/UTILITY | 3 | 0 | 1994 | 280.0 |
| | OWR | OPEN WOOD PORCH W/STEPS/ROOF | 3 | 0 | 1994 | 164.0 |
| | OWC | OPEN WOOD PORCH W/STEPS/ROOF/C | 3 | 0 | 1994 | 123.0 |
| | OWR | OPEN WOOD PORCH W/STEPS/ROOF | 3 | 0 | 1994 | 591.7 |
| | UTY | STORAGE/UTILITY | 3 | 0 | 1994 | 1080.0 |
| | UTY | STORAGE/UTILITY | 3 | 0 | 1994 | 1520.0 |
Sketch
Property Image
Land
| 1 | 35 | AC (10.00-30.99) | 10.5900 | 461300.40 | 0.00 | 0.00 | 1.00 | N/A | N/A |
Roll Value History
| 2026 | N/A | N/A | N/A | N/A | N/A |
| 2025 | $470,031 | $370,000 | $0 | $840,031 | $840,031 |
| 2024 | $475,817 | $340,000 | $0 | $815,817 | $815,817 |
| 2023 | $481,601 | $300,000 | $0 | $781,601 | $781,601 |
| 2022 | $441,326 | $290,000 | $0 | $731,326 | $731,326 |
| 2021 | $332,936 | $210,000 | $0 | $542,936 | $542,936 |
| 2020 | $325,991 | $190,000 | $0 | $515,991 | $515,991 |
| 2019 | $262,707 | $220,000 | $0 | $482,707 | $482,707 |
| 2018 | $263,357 | $190,000 | $0 | $453,357 | $453,357 |
| 2017 | $264,652 | $150,000 | $0 | $414,652 | $414,652 |
| 2016 | $255,214 | $150,000 | $0 | $405,214 | $405,214 |
| 2015 | $242,036 | $150,000 | $0 | $392,036 | $392,036 |
| 2014 | $244,590 | $150,000 | $0 | $394,590 | $394,590 |
| 2013 | $247,147 | $128,128 | $0 | $375,275 | $375,275 |
| 2012 | $249,704 | $128,128 | $0 | $377,832 | $377,832 |
| 2011 | $252,259 | $160,160 | $0 | $412,419 | $412,419 |
| 2010 | $256,704 | $160,160 | $0 | $416,864 | $416,864 |
| 2009 | $267,846 | $183,040 | $0 | $450,886 | $450,886 |
| 2008 | $273,526 | $246,000 | $0 | $519,526 | $519,526 |
| 2007 | $278,585 | $226,320 | $0 | $504,905 | $504,905 |
Deed and Sales History
| 1 | 11/14/2024 | QCD | Quit Claim Deed | THOMAS, LYNNE | MYERS, TOR ELDEN | | | $0.00 | 61852 | 4579466 |
| 2 | 03/02/2022 | EZ | Easement | THOMAS, LYNNE | PUBLIC UTILITY DISTRICT NO 1 OF SNOHOMISH COUNTY | | | $0.00 | 52556 | 4542615 |
| 3 | 11/14/2019 | QCD | Quit Claim Deed | THOMAS, LYNNE | THOMAS, LYNNE | | | $0.00 | 41368 | 4477005 |
| 4 | 07/26/2016 | REC | Real Estate Contract | MARCHAND TRUSTEE, GERALDINE | THOMAS, LYNNE | | | $620,000.00 | 25476 | 4404217 |
|   | |
| 5 | 10/14/2015 | QCD | Quit Claim Deed | MARCHAND, GERALDINE | MARCHAND TRUSTEE, GERALDINE | | | $0.00 | 21919 | 4388398 |
| 6 | 08/10/2015 | QCD | Quit Claim Deed | MARCHAND, GEORGE P | MARCHAND, GERALDINE | | | $0.00 | 21589 | 4387022 |
| 7 | 06/01/1989 | WD | Warranty Deed | STEELE, E R | MARCHAND, GEORGE | | | $33,500.00 | 92343 | 89008056 |
| 8 | 05/01/1989 | QCD | Quit Claim Deed | STEELE, E R | STEELE, E R | | | $0.00 | 92344 | 89008052 |
| 9 | 05/01/1989 | QCD | Quit Claim Deed | STEELE, E R | STEELE, E R | | | $0.00 | 92345 | 89008053 |
| 10 | 05/01/1989 | QCD | Quit Claim Deed | STEELE, E R | STEELE, E R | | | $0.00 | 92346 | 89008054 |
| 11 | 05/01/1989 | QCD | Quit Claim Deed | STEELE, E R | STEELE, E R | | | $0.00 | 92347 | 89008055 |
| 12 | 12/01/1983 | EZ | Easement | STEELE, E R | STEELE, E R | | | $0.00 | 60924 | 419536 |
| 13 | 03/01/1970 | EXECUTORD | Executor Deed | MOEN, ELMER | STEELE, E R | | | $11,500.00 | 37784 | 0 |
| 14 | 01/01/1900 | OTHER | Other - Misc. Documents | Unknown | MOEN, ELMER | | | $0.00 | 0 | 0 |
Payout Agreement
| No payout information available.. |