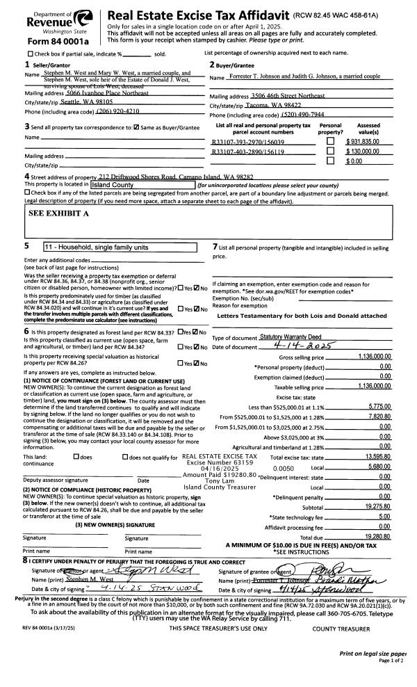
Property
Account |
| Property ID: | 156039 | Abbreviated Legal Description: | 32 - IN GL 4 TGW ADJ TIDES BG MEANDER CR N4*W576.2' N6 *E1705.4' N38*E865.9' N44* E1341.4' TPB N44*E60' N45* W100' S44*W60' S45*E100'TPB DRAINFIELD FOR 403-2890 AF#92010482 |
| Geographic ID: | R33107-393-2970 | Agent Code: | |
| Type: | Real | | |
| Tax Area: | 510 - APPRAISER-Stan/Cam Schl Dist, improved & 1 acre or less | Land Use Code | 11 |
| Open Space: | N | DFL | N |
| Historic Property: | N | Remodel Property: | N |
| Multi-Family Redevelopment: | N | | |
| Township: | 31 | Section: | 07 |
| Range: | R3 |
Location |
| Address: | 212 DRIFTWOOD SHORES RD CAMANO ISLAND, WA 98282 | Mapsco: | |
| Neighborhood: | Cycle 5 | Map ID: | 924 |
| Neighborhood CD: | 5 |
Owner |
| Name: | JOHNSON, FORRESTER T | Owner ID: | 316147 |
| Mailing Address: | JUDITH G JOHNSON 3506 46TH ST NORTHEAST TACOMA, WA 98422 | % Ownership: | 100.0000000000% |
| | | Exemptions: | |
Taxes and Assessment Details
Values
| (+) Improvement Homesite Value: | + | $0 | |
| (+) Improvement Non-Homesite Value: | + | $178,726 | |
| (+) Land Homesite Value: | + | $0 | |
| (+) Land Non-Homesite Value: | + | $750,600 | |
| (+) Curr Use (HS): | + | $0 | $0 |
| (+) Curr Use (NHS): | + | $0 | $0 |
| | | -------------------------- | |
| (=) Market Value: | = | $929,326 | |
| (–) Productivity Loss: | – | $0 | |
| | | -------------------------- | |
| (=) Subtotal: | = | $929,326 | |
| (+) Senior Appraised Value: | + | $0 | |
| (+) Non-Senior Appraised Value: | + | $929,326 | |
| | | -------------------------- | |
| (=) Total Appraised Value: | = | $929,326 | |
| (–) Senior Exemption Loss: | – | $0 | |
| (–) Exemption Loss: | – | $0 | |
| | | -------------------------- | |
| (=) Taxable Value: | = | $929,326 | |
Taxing Jurisdiction
| Owner: | JOHNSON, FORRESTER T | | |
| % Ownership: | 100.0000000000% | | |
| Total Value: | $929,326 | | |
| Tax Area: | 510 - APPRAISER-Stan/Cam Schl Dist, improved & 1 acre or less |
| CF | Conservation Futures | 0.0313996660 | $929,326 | $929,326 | $29.18 | | |
| EMS1 | Fire & Rescue Dist #1 Camano GEN (EMS) | 0.4998471806 | $929,326 | $929,326 | $464.52 | | |
| FIRE1 | Fire & Rescue Dist #1 Camano GEN | 1.2496603404 | $929,326 | $929,326 | $1,161.34 | | |
| FIRE1BOND | Fire & Rescue Dist #1 Camano BOND | 0.1630371212 | $929,326 | $929,326 | $151.51 | | |
| CE | County Current Expense | 0.3674210519 | $929,326 | $929,326 | $341.45 | | |
| CR | County Roads | 0.4614296361 | $929,326 | $929,326 | $428.82 | | |
| LIB | Library Sno-Isle GEN | 0.3039084203 | $929,326 | $929,326 | $282.43 | | |
| SCH205_401 | School 205-401 Enrichment | 1.3697998934 | $929,326 | $929,326 | $1,272.99 | | |
| SCH205BOND | School 205-401 BOND | 0.9354199323 | $929,326 | $929,326 | $869.31 | | |
| ST | State School | 1.4761226122 | $929,326 | $929,326 | $1,371.80 | | |
| ST2 | State School Part 2 | 0.7953803475 | $929,326 | $929,326 | $739.17 | | |
| | Total Tax Rate: | 7.6534262019 | | | | | |
| | | | | Taxes w/Current Exemptions: | $7,112.52 | | |
| | | | | Taxes w/o Exemptions: | $7,112.52 | | |
Improvement / Building
| Improvement #1: | RESIDENTIAL | State Code: | Y | 1108.0 sqft | Value: | $178,726 |
| Bathrooms: | 2 | Bedrooms: | 2 | | Ceiling: | DRYWALL PAINTED | Exterior Wall/Cover: | CEMENT FIBER | | Floor Covering: | HARDWOOD/CARP 60-40 | Floor Structure: | WOOD W/SUBFLOOR | | Foundation: | CONCRETE | Heating: | WALL HEAT ELECTRIC | | Interior Finish: | DRYWALL PAINT | Plumbing Fixture Cnt: | 9 | | Roof Slope: | 3" IN 12" | Roof Structure/Cover: | BEAM BUILT-UP ROCK |
|
| | Type | Description | Class CD | Sub Class CD | Year Built | Area |
| | BAS | BASE/MAIN FLOOR | 3 | 0 | 1953 | 1108.0 |
| | OP1 | OPEN PORCH SLAB | 3 | 0 | 1953 | 634.0 |
| | UTY | STORAGE/UTILITY | 3 | 0 | 1953 | 72.0 |
Sketch
Property Image
Land
| 1 | LB | LOW BANK | 0.1400 | 6098.40 | 60.00 | 0.00 | 1.00 | $750,000 | $0 |
| 2 | 55 | TIDES | 0.1400 | 6098.40 | 60.00 | 0.00 | 1.00 | $600 | $0 |
Roll Value History
| 2026 | N/A | N/A | N/A | N/A | N/A |
| 2025 | $178,726 | $750,600 | $0 | $929,326 | $929,326 |
| 2024 | $181,235 | $750,600 | $0 | $931,835 | $931,835 |
| 2023 | $183,743 | $685,600 | $0 | $869,343 | $869,343 |
| 2022 | $168,661 | $625,600 | $0 | $794,261 | $794,261 |
| 2021 | $146,660 | $500,600 | $0 | $647,260 | $647,260 |
| 2020 | $142,783 | $425,600 | $0 | $568,383 | $568,383 |
| 2019 | $100,193 | $425,600 | $0 | $525,793 | $525,793 |
| 2018 | $100,522 | $375,600 | $0 | $476,122 | $476,122 |
| 2017 | $101,179 | $350,600 | $0 | $451,779 | $451,779 |
| 2016 | $102,492 | $350,600 | $0 | $453,092 | $453,092 |
| 2015 | $94,968 | $350,600 | $0 | $445,568 | $445,568 |
| 2014 | $96,250 | $350,600 | $0 | $446,850 | $446,850 |
| 2013 | $97,533 | $350,600 | $0 | $448,133 | $448,133 |
| 2012 | $98,814 | $389,198 | $0 | $488,012 | $488,012 |
| 2011 | $100,096 | $486,348 | $0 | $586,444 | $586,444 |
| 2010 | $107,300 | $486,348 | $0 | $593,648 | $593,648 |
| 2009 | $111,888 | $538,260 | $0 | $650,148 | $650,148 |
| 2008 | $113,337 | $612,420 | $0 | $725,757 | $725,757 |
| 2007 | $114,806 | $542,086 | $0 | $656,892 | $656,892 |
Deed and Sales History
| 1 | 04/14/2025 | WD | Warranty Deed | WEST, STEPHEN M | JOHNSON, FORRESTER T | | | $1,136,000.00 | 63159 | 4584593 |
|   | |
| 2 | 02/23/2011 | QCD | Quit Claim Deed | WEST, STEPHEN M | WEST, STEPHEN M | | | $0.00 | 3691 | 4291342 |
| 3 | 02/28/2009 | QCD | Quit Claim Deed | WEST, DONALD J | WEST, STEPHEN M | | | $0.00 | 90446 | 4245688 |
| 4 | 06/01/1973 | EXECUTORD | Executor Deed | Unknown | WEST, DONALD J | | | $14,500.00 | 48162 | 0 |
Payout Agreement
| No payout information available.. |