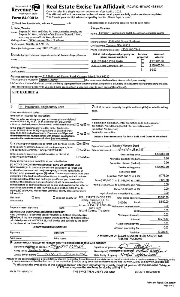
Property
Account |
| Property ID: | 156119 | Abbreviated Legal Description: | 132 - IN GL 4 EX TL 163 BG MEANDER CR N4*W576.2' N6 *E1705.4' N38*E865.9' N44* E1341.4' N45*W140' TPB N44* E100' N45*W100' S44*W100' S45*E100' TPB EX NELY 40' ALSO: BG MC SEC 7&18 N4*W 576.2' N6*E1705.4' N38*E865 .9' N44*E1341.4' N45*W240' TPB N45*W106.99 |
| Geographic ID: | R33107-403-2890 | Agent Code: | |
| Type: | Real | | |
| Tax Area: | 510 - APPRAISER-Stan/Cam Schl Dist, improved & 1 acre or less | Land Use Code | 11 |
| Open Space: | N | DFL | N |
| Historic Property: | N | Remodel Property: | N |
| Multi-Family Redevelopment: | N | | |
| Township: | 31 | Section: | 07 |
| Range: | R3 |
Location |
| Address: | 213 DRIFTWOOD SHORES RD CAMANO ISLAND, WA 98282 | Mapsco: | |
| Neighborhood: | Cycle 5 | Map ID: | 924 |
| Neighborhood CD: | 5 |
Owner |
| Name: | JOHNSON, FORRESTER T | Owner ID: | 316147 |
| Mailing Address: | JUDITH G JOHNSON 3506 46TH ST NORTHEAST TACOMA, WA 98422 | % Ownership: | 100.0000000000% |
| | | Exemptions: | |
Taxes and Assessment Details
Values
| (+) Improvement Homesite Value: | + | $0 | |
| (+) Improvement Non-Homesite Value: | + | $20,000 | |
| (+) Land Homesite Value: | + | $0 | |
| (+) Land Non-Homesite Value: | + | $130,000 | |
| (+) Curr Use (HS): | + | $0 | $0 |
| (+) Curr Use (NHS): | + | $0 | $0 |
| | | -------------------------- | |
| (=) Market Value: | = | $150,000 | |
| (–) Productivity Loss: | – | $0 | |
| | | -------------------------- | |
| (=) Subtotal: | = | $150,000 | |
| (+) Senior Appraised Value: | + | $0 | |
| (+) Non-Senior Appraised Value: | + | $150,000 | |
| | | -------------------------- | |
| (=) Total Appraised Value: | = | $150,000 | |
| (–) Senior Exemption Loss: | – | $0 | |
| (–) Exemption Loss: | – | $0 | |
| | | -------------------------- | |
| (=) Taxable Value: | = | $150,000 | |
Taxing Jurisdiction
| Owner: | JOHNSON, FORRESTER T | | |
| % Ownership: | 100.0000000000% | | |
| Total Value: | $150,000 | | |
| Tax Area: | 510 - APPRAISER-Stan/Cam Schl Dist, improved & 1 acre or less |
| CF | Conservation Futures | 0.0313996660 | $150,000 | $150,000 | $4.71 | | |
| EMS1 | Fire & Rescue Dist #1 Camano GEN (EMS) | 0.4998471806 | $150,000 | $150,000 | $74.98 | | |
| FIRE1 | Fire & Rescue Dist #1 Camano GEN | 1.2496603404 | $150,000 | $150,000 | $187.45 | | |
| FIRE1BOND | Fire & Rescue Dist #1 Camano BOND | 0.1630371212 | $150,000 | $150,000 | $24.46 | | |
| CE | County Current Expense | 0.3674210519 | $150,000 | $150,000 | $55.11 | | |
| CR | County Roads | 0.4614296361 | $150,000 | $150,000 | $69.21 | | |
| LIB | Library Sno-Isle GEN | 0.3039084203 | $150,000 | $150,000 | $45.59 | | |
| SCH205_401 | School 205-401 Enrichment | 1.3697998934 | $150,000 | $150,000 | $205.47 | | |
| SCH205BOND | School 205-401 BOND | 0.9354199323 | $150,000 | $150,000 | $140.31 | | |
| ST | State School | 1.4761226122 | $150,000 | $150,000 | $221.42 | | |
| ST2 | State School Part 2 | 0.7953803475 | $150,000 | $150,000 | $119.31 | | |
| | Total Tax Rate: | 7.6534262019 | | | | | |
| | | | | Taxes w/Current Exemptions: | $1,148.02 | | |
| | | | | Taxes w/o Exemptions: | $1,148.02 | | |
Improvement / Building
| Improvement #1: | RESIDENTIAL | State Code: | Y | 0.0 sqft | Value: | $20,000 |
Sketch
Property Image
Land
| 1 | 15 | SQ (12001-21780) | 0.2900 | 12632.40 | 0.00 | 0.00 | 1.00 | $130,000 | $0 |
Roll Value History
| 2026 | N/A | N/A | N/A | N/A | N/A |
| 2025 | $20,000 | $130,000 | $0 | $150,000 | $150,000 |
| 2024 | $20,000 | $110,000 | $0 | $130,000 | $130,000 |
| 2023 | $20,000 | $110,000 | $0 | $130,000 | $130,000 |
| 2022 | $20,000 | $100,000 | $0 | $120,000 | $120,000 |
| 2021 | $15,000 | $80,000 | $0 | $95,000 | $95,000 |
| 2020 | $15,000 | $80,000 | $0 | $95,000 | $95,000 |
| 2019 | $15,000 | $80,000 | $0 | $95,000 | $95,000 |
| 2018 | $15,000 | $50,000 | $0 | $65,000 | $65,000 |
| 2017 | $15,000 | $30,000 | $0 | $45,000 | $45,000 |
| 2016 | $15,000 | $30,000 | $0 | $45,000 | $45,000 |
| 2015 | $15,000 | $30,000 | $0 | $45,000 | $45,000 |
| 2014 | $15,000 | $30,000 | $0 | $45,000 | $45,000 |
| 2013 | $17,328 | $30,000 | $0 | $47,328 | $47,328 |
| 2012 | $17,328 | $30,000 | $0 | $47,328 | $47,328 |
| 2011 | $17,328 | $37,500 | $0 | $54,828 | $54,828 |
| 2010 | $17,496 | $37,500 | $0 | $54,996 | $54,996 |
| 2009 | $22,783 | $40,500 | $0 | $63,283 | $63,283 |
| 2008 | $23,415 | $40,500 | $0 | $63,915 | $63,915 |
| 2007 | $24,039 | $34,750 | $0 | $58,789 | $58,789 |
Deed and Sales History
| 1 | 04/14/2025 | WD | Warranty Deed | WEST, DONALD J | JOHNSON, FORRESTER T | | | $1,136,000.00 | 63159 | 4584593 |
|   | |
| 2 | 09/01/1976 | TRUSTEED | Trustee's Deed | WEST, DONALD J | WEST, DONALD J | | | $0.00 | 63582 | 0 |
| 3 | 06/01/1973 | EXECUTORD | Executor Deed | Unknown | WEST, DONALD J | | | $14,500.00 | 48162 | 0 |
Payout Agreement
| No payout information available.. |