Property
Account |
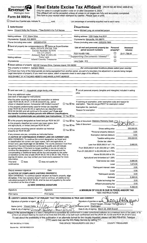
| Property ID: | 157083 | Abbreviated Legal Description: | 14 - IN N1/2 GL 4 |
| Geographic ID: | R33118-495-1280 | Agent Code: | |
| Type: | Real | | |
| Tax Area: | 512 - APPRAISER-Stan/Cam Schl Dist, improved, greater than 1 acre | Land Use Code | 11 |
| Open Space: | N | DFL | N |
| Historic Property: | N | Remodel Property: | N |
| Multi-Family Redevelopment: | N | | |
| Township: | 31 | Section: | 18 |
| Range: | R3 |
Location |
| Address: | 823 S EAST CAMANO DR CAMANO ISLAND, WA 98282 | Mapsco: | |
| Neighborhood: | Cycle 5 | Map ID: | 928 |
| Neighborhood CD: | 5 |
Owner |
| Name: | LONG, MICHAEL L | Owner ID: | 258026 |
| Mailing Address: | 1000 CEDAR AVE #101 MARYSVILLE, WA 98270 | % Ownership: | 100.0000000000% |
| | | Exemptions: | |
Taxes and Assessment Details
Values
| (+) Improvement Homesite Value: | + | $0 | |
| (+) Improvement Non-Homesite Value: | + | $54,318 | |
| (+) Land Homesite Value: | + | $0 | |
| (+) Land Non-Homesite Value: | + | $350,000 | |
| (+) Curr Use (HS): | + | $0 | $0 |
| (+) Curr Use (NHS): | + | $0 | $0 |
| | | -------------------------- | |
| (=) Market Value: | = | $404,318 | |
| (–) Productivity Loss: | – | $0 | |
| | | -------------------------- | |
| (=) Subtotal: | = | $404,318 | |
| (+) Senior Appraised Value: | + | $0 | |
| (+) Non-Senior Appraised Value: | + | $404,318 | |
| | | -------------------------- | |
| (=) Total Appraised Value: | = | $404,318 | |
| (–) Senior Exemption Loss: | – | $0 | |
| (–) Exemption Loss: | – | $0 | |
| | | -------------------------- | |
| (=) Taxable Value: | = | $404,318 | |
Taxing Jurisdiction
| Owner: | LONG, MICHAEL L | | |
| % Ownership: | 100.0000000000% | | |
| Total Value: | $404,318 | | |
| Tax Area: | 512 - APPRAISER-Stan/Cam Schl Dist, improved, greater than 1 acre |
| CF | Conservation Futures | 0.0313996660 | $404,318 | $404,318 | $12.70 | | |
| EMS1 | Fire & Rescue Dist #1 Camano GEN (EMS) | 0.4998471806 | $404,318 | $404,318 | $202.10 | | |
| FIRE1 | Fire & Rescue Dist #1 Camano GEN | 1.2496603404 | $404,318 | $404,318 | $505.26 | | |
| FIRE1BOND | Fire & Rescue Dist #1 Camano BOND | 0.1630371212 | $404,318 | $404,318 | $65.92 | | |
| CE | County Current Expense | 0.3674210519 | $404,318 | $404,318 | $148.55 | | |
| CR | County Roads | 0.4614296361 | $404,318 | $404,318 | $186.56 | | |
| LIB | Library Sno-Isle GEN | 0.3039084203 | $404,318 | $404,318 | $122.88 | | |
| SCH205_401 | School 205-401 Enrichment | 1.3697998934 | $404,318 | $404,318 | $553.83 | | |
| SCH205BOND | School 205-401 BOND | 0.9354199323 | $404,318 | $404,318 | $378.21 | | |
| ST | State School | 1.4761226122 | $404,318 | $404,318 | $596.82 | | |
| ST2 | State School Part 2 | 0.7953803475 | $404,318 | $404,318 | $321.59 | | |
| | Total Tax Rate: | 7.6534262019 | | | | | |
| | | | | Taxes w/Current Exemptions: | $3,094.42 | | |
| | | | | Taxes w/o Exemptions: | $3,094.42 | | |
Improvement / Building
| Improvement #1: | RESIDENTIAL | State Code: | Y | 1816.0 sqft | Value: | $54,318 |
| Bathrooms: | 1 | Bedrooms: | 2 | | Ceiling: | DRY WALL SPRAYED | Exterior Wall/Cover: | SHINGLE | | Floor Covering: | HARDWOOD/CARP 60-40 | Floor Structure: | WOOD W/SUBFLOOR | | Foundation: | CONCRETE | Heating: | BASEBOARD ELECTRIC | | Interior Finish: | DRYWALL PAINT | Plumbing Fixture Cnt: | 6 | | Roof Slope: | 5" IN 12" | Roof Structure/Cover: | CJ ASPHALT |
|
| | Type | Description | Class CD | Sub Class CD | Year Built | Area |
| | BAS | BASE/MAIN FLOOR | 2 | 0 | 1942 | 932.0 |
| | UPS | UPPER STORY | 2 | 0 | 1942 | 884.0 |
| | OWP | OPEN WOOD PORCH W/STEPS | 2 | 0 | 1942 | 208.0 |
| | OWP | OPEN WOOD PORCH W/STEPS | 2 | 0 | 1942 | 48.0 |
| | OWR | OPEN WOOD PORCH W/STEPS/ROOF | 2 | 0 | 1942 | 156.0 |
Sketch
Property Image
Land
| 1 | HB | HIGH BLUFF | 0.0000 | 0.00 | 100.00 | 0.00 | 1.00 | $350,000 | $0 |
Roll Value History
| 2026 | N/A | N/A | N/A | N/A | N/A |
| 2025 | $54,318 | $350,000 | $0 | $404,318 | $404,318 |
| 2024 | $61,799 | $350,000 | $0 | $411,799 | $411,799 |
| 2023 | $63,134 | $350,000 | $0 | $413,134 | $413,134 |
| 2022 | $58,377 | $300,000 | $0 | $358,377 | $100,727 |
| 2021 | $51,817 | $200,000 | $0 | $251,817 | $100,727 |
| 2020 | $51,116 | $200,000 | $0 | $251,116 | $251,116 |
| 2019 | $41,015 | $250,000 | $0 | $291,015 | $291,015 |
| 2018 | $41,215 | $250,000 | $0 | $291,215 | $291,215 |
| 2017 | $41,615 | $200,000 | $0 | $241,615 | $241,615 |
| 2016 | $42,415 | $150,000 | $0 | $192,415 | $192,415 |
| 2015 | $37,888 | $150,000 | $0 | $187,888 | $187,888 |
| 2014 | $38,678 | $150,000 | $0 | $188,678 | $188,678 |
| 2013 | $39,468 | $148,815 | $0 | $188,283 | $188,283 |
| 2012 | $40,256 | $148,815 | $0 | $189,071 | $189,071 |
| 2011 | $41,045 | $148,815 | $0 | $189,860 | $189,860 |
| 2010 | $42,164 | $148,815 | $0 | $190,979 | $190,979 |
| 2009 | $81,510 | $186,161 | $0 | $267,671 | $267,671 |
| 2008 | $81,750 | $119,076 | $0 | $200,826 | $200,826 |
| 2007 | $83,291 | $119,076 | $0 | $202,367 | $202,367 |
Deed and Sales History
| 1 | 03/25/2025 | WD | Warranty Deed | VINCENT HOIBY, PR | LONG, MICHAEL L | | | $335,000.00 | 62936 | 4583709 |
| 2 | 04/01/1976 | EXECUTORD | Executor Deed | Unknown | HOIBY, DAVID | | | $0.00 | 61171 | 0 |
Payout Agreement
| No payout information available.. |