Property
Account |
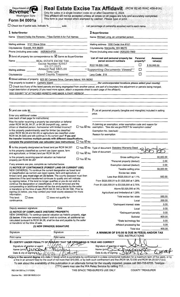
| Property ID: | 157092 | Abbreviated Legal Description: | 15 - IN N1/2 GL 4 |
| Geographic ID: | R33118-505-1280 | Agent Code: | |
| Type: | Real | | |
| Tax Area: | 519 - APPRAISER-Stan/Cam Schl Dist, vacant & 50 acres or less | Land Use Code | 91 |
| Open Space: | N | DFL | N |
| Historic Property: | N | Remodel Property: | N |
| Multi-Family Redevelopment: | N | | |
| Township: | 31 | Section: | 18 |
| Range: | R3 |
Location |
| Address: | CAMANO ISLAND, WA 98282 | Mapsco: | |
| Neighborhood: | Cycle 5 | Map ID: | 928 |
| Neighborhood CD: | 5 |
Owner |
| Name: | LONG, MICHAEL L | Owner ID: | 258026 |
| Mailing Address: | 1000 CEDAR AVE #101 MARYSVILLE, WA 98270 | % Ownership: | 100.0000000000% |
| | | Exemptions: | |
Taxes and Assessment Details
Values
| (+) Improvement Homesite Value: | + | $0 | |
| (+) Improvement Non-Homesite Value: | + | $0 | |
| (+) Land Homesite Value: | + | $0 | |
| (+) Land Non-Homesite Value: | + | $50,000 | |
| (+) Curr Use (HS): | + | $0 | $0 |
| (+) Curr Use (NHS): | + | $0 | $0 |
| | | -------------------------- | |
| (=) Market Value: | = | $50,000 | |
| (–) Productivity Loss: | – | $0 | |
| | | -------------------------- | |
| (=) Subtotal: | = | $50,000 | |
| (+) Senior Appraised Value: | + | $0 | |
| (+) Non-Senior Appraised Value: | + | $50,000 | |
| | | -------------------------- | |
| (=) Total Appraised Value: | = | $50,000 | |
| (–) Senior Exemption Loss: | – | $0 | |
| (–) Exemption Loss: | – | $0 | |
| | | -------------------------- | |
| (=) Taxable Value: | = | $50,000 | |
Taxing Jurisdiction
| Owner: | LONG, MICHAEL L | | |
| % Ownership: | 100.0000000000% | | |
| Total Value: | $50,000 | | |
| Tax Area: | 519 - APPRAISER-Stan/Cam Schl Dist, vacant & 50 acres or less |
| CF | Conservation Futures | 0.0313996660 | $50,000 | $50,000 | $1.57 | | |
| EMS1 | Fire & Rescue Dist #1 Camano GEN (EMS) | 0.4998471806 | $50,000 | $50,000 | $24.99 | | |
| CE | County Current Expense | 0.3674210519 | $50,000 | $50,000 | $18.37 | | |
| CR | County Roads | 0.4614296361 | $50,000 | $50,000 | $23.07 | | |
| LIB | Library Sno-Isle GEN | 0.3039084203 | $50,000 | $50,000 | $15.20 | | |
| SCH205_401 | School 205-401 Enrichment | 1.3697998934 | $50,000 | $50,000 | $68.49 | | |
| SCH205BOND | School 205-401 BOND | 0.9354199323 | $50,000 | $50,000 | $46.77 | | |
| ST | State School | 1.4761226122 | $50,000 | $50,000 | $73.81 | | |
| ST2 | State School Part 2 | 0.7953803475 | $50,000 | $50,000 | $39.77 | | |
| | Total Tax Rate: | 6.2407287403 | | | | | |
| | | | | Taxes w/Current Exemptions: | $312.04 | | |
| | | | | Taxes w/o Exemptions: | $312.04 | | |
Improvement / Building
Sketch
| No sketches available for this property. |
Property Image
Land
| 1 | HB | HIGH BLUFF | 0.0000 | 0.00 | 100.00 | 0.00 | 1.00 | $50,000 | $0 |
Roll Value History
| 2026 | N/A | N/A | N/A | N/A | N/A |
| 2025 | $0 | $50,000 | $0 | $50,000 | $50,000 |
| 2024 | $0 | $50,000 | $0 | $50,000 | $50,000 |
| 2023 | $0 | $50,000 | $0 | $50,000 | $50,000 |
| 2022 | $0 | $50,000 | $0 | $50,000 | $50,000 |
| 2021 | $0 | $25,000 | $0 | $25,000 | $25,000 |
| 2020 | $0 | $25,000 | $0 | $25,000 | $25,000 |
| 2019 | $0 | $50,000 | $0 | $50,000 | $50,000 |
| 2018 | $0 | $50,000 | $0 | $50,000 | $50,000 |
| 2017 | $0 | $50,000 | $0 | $50,000 | $50,000 |
| 2016 | $0 | $50,000 | $0 | $50,000 | $50,000 |
| 2015 | $0 | $25,000 | $0 | $25,000 | $25,000 |
| 2014 | $0 | $25,000 | $0 | $25,000 | $25,000 |
| 2013 | $0 | $25,342 | $0 | $25,342 | $25,342 |
| 2012 | $0 | $25,342 | $0 | $25,342 | $25,342 |
| 2011 | $0 | $25,342 | $0 | $25,342 | $25,342 |
| 2010 | $0 | $25,342 | $0 | $25,342 | $25,342 |
| 2009 | $0 | $25,342 | $0 | $25,342 | $25,342 |
| 2008 | $0 | $25,342 | $0 | $25,342 | $25,342 |
| 2007 | $0 | $25,342 | $0 | $25,342 | $25,342 |
Deed and Sales History
| 1 | 03/25/2025 | WD | Warranty Deed | VINCENT HOIBY, PR | LONG, MICHAEL L | | | $50,000.00 | 62937 | 4583710 |
| 2 | 04/01/1976 | EXECUTORD | Executor Deed | Unknown | HOIBY, DAVID | | | $0.00 | 61171 | 0 |
Payout Agreement
| No payout information available.. |